Skocz do zawartości

Rekomendowane odpowiedzi

Opublikowano (edytowane)

Sambor ,Przemek dobrze prawicie panowie , wszystko to jest prawda . Co do tych temperatur to troche się obawiam czy ruszt wodny nie będzie zbyt blisko palnika i czy tam nie będzie dochodziło do podgotowania wody . Ruszta w tym wymienniku to takie ślepe zaułki .

Jero to co narysowałeś to tzw przedpiec . O czymś podobnym pisał kiedyś właśnie heso . Słaby punkt tej konstrukcji to szczelność całego układu na styku dwóch konstrukcji no i te temperatury o których pisał Przemek . Palnik bez płaszcza wodnego , może z tym być różnie .

Edytowane przez mac65
Opublikowano

Sąsiad kiedyś miał podłączoną do Camino przystawkę na trociny Hajnówka chyba 100KW, nie wiem jaką daje to temperaturę ale na pewno nie małą i nie miał problemów z gotowaniem przy instalacji bez pompki C.O.

Opublikowano (edytowane)

Jero pomysł nie głupi idziesz w stronę konstrukci Hesa.Ja bym w środku kociołek wypełnił większą ilościa szamotu i zrobił by się częściowo kociołek kumulacyjny.Po wygasnieciu ognia przez jakiś czas woda grzana by była od szamotu.Co do połączenia palnika z kociołkiem to wszystko da radę zrobić.Zobaczcietu na forum temat: https://forum.info-ogrzewanie.pl/topic/5859-nowe-stare-palenisko/

Edytowane przez artur
Opublikowano

Sambor ,Przemek dobrze prawicie panowie , wszystko to jest prawda . Co do tych temperatur to troche się obawiam czy ruszt wodny nie będzie zbyt blisko palnika i czy tam nie będzie dochodziło do podgotowania wody . Ruszta w tym wymienniku to takie ślepe zaułki .

Jero to co narysowałeś to tzw przed piec . O czymś podobnym pisał kiedyś właśnie heso . Słaby punkt tej konstrukcji to szczelność całego układu na styku dwóch konstrukcji no i te temperatury o których pisał Przemek . Palnik bez płaszcza wodnego , może z tym być różnie .

O ruszta się nie martw one w miejscu palnika są pełne ale te płomyczki odbite od spodu komory mają swoją temp (ja u siebie zrobiłem do testów taki palnik i komorę spalania w popielniku to całość po trzech godzinach była czerwona jak diabli a dodam ze popielnik wyłożony szamotem )

 

@jero to co pokazałeś będzie działać tak se albowiem PP podaje się nad i w strefę żaru a PW (chociaż tak bym tego nie nazwał) podaje się w dysze palnika.

przy takim podawaniu PW po chwili zaczyna pełnić funkcję nadrzędną i kocioł będzie tamtędy przeciągał zamiast przez dysze

Opublikowano

Doprowadzenie powietrza wzdłuż palnika profilami z naciętymi szczelinami powinno być dobrym pomysłem? Nie wiem jak to jest dokładnie rozwiązane w piecach zgazujących drewno, szukałem jakiegoś przekroju takiego pieca i nic konkretnego nie znalazłem... Muszę zrobić coś na drewno bo dla ojca węgiel jest za drogi, a drewna Camino wciąga duuużo :rolleyes:

dysze.JPG

Opublikowano (edytowane)

Więc dyszę do takiego palnika trzeba odlać samemu, nada się do tego zaprawa szamotowa? z formą nie będzie problemu bo robię w laminacie ;)

Muszę też zrobić nowy komin do Camino, producent podaje 20x20 na 8m wysoki, jeśli zrobię komin o wysokości 6m to jaką powinien mieć wtedy średnicę aby uzyskać nawet większy ciąg niż potrzeba?

Edytowane przez jero
Opublikowano (edytowane)

Witam,

 

Koledzy ma ktoś jakiś pomysł jak w najmniejszym Camino wyciągnąć więcej ciepła ze spalin w krótkim wymienniku poziomym?

Spalić czysto to jedno, a odebrać skutecznie ciepło ze spalin, to już dużo trudniejsze ....

 

Pozdr.

Edytowane przez szponi
Opublikowano

Więc dyszę do takiego palnika trzeba odlać samemu, nada się do tego zaprawa szamotowa? z formą nie będzie problemu bo robię w laminacie ;)

Muszę też zrobić nowy komin do Camino, producent podaje 20x20 na 8m wysoki, jeśli zrobię komin o wysokości 6m to jaką powinien mieć wtedy średnicę aby uzyskać nawet większy ciąg niż potrzeba?

Zaprawa szamotowa się nie nada (rozsypie się) ale polecam beton BOS-135 lub 150. Jeżeli chodzi o komin to nie zawsze duży komin (tzn z dużą średnicą ) będzie lepszy od tego o mniejszym przekroju. Komin trzeba dobrać tak że kocioł będzie miał możliwość jego nagrzania wówczas wytwarza się ciąg kominowy. W przypadku komina o dużej powierzchni istnieje ryzyko wystąpienia prądów zstępujących i tym samym wychładzanie się komina a w skrajnych przypadkach utratę kontroli nad procesem spalania

Jeżeli chodzi o Camino, to te kotły wcale nie są takie wymagające pod względem komina (u mnie kiedyś camino 7 członowy był podpięty pod komin 14x14 o wys. 5m i nie było żadnych problemów z ciągiem)

 

@ szponi raczej niema takiej opcji albowiem tam i tak jest już przepływ turbulentny. ew wstaw zaślepioną rure lub wałek w kanały dymnicowe aby odległość między ścianką rury a wymiennikiem była ok 1,5-3cm to zmusi spaliny na omywanie wymiennika i rozbije strugę

 

Pozdrawiam

  • 2 tygodnie później...
Opublikowano

Dzień dobry.

Może byś szponi spróbował wydłużyć drogę spalin w tym krótkim wymienniku zmuszając je do ruchu po spirali. Gdyby wymiennik miał przekrój kołowy wystarczyłoby wpuszczanie tam spalin pod odpowiednim kątem, ale że jest o ile pamiętam (teściowie mają ten sławny typ pancernika) o przekroju zbliżonym do trapezu to szybko by się one "prostowały". Więc może by tak zrobić jakiś ślimak, jest on przecież powszechnie stosowany w postaci skręconego paska blachy i nazywany, wg. mnie niezbyt słusznie, turbulizatorem. Tworzą się wówczas kanały śrubowe o tyle wydłużające drogę spalin o ile skok śruby sobie zadasz. W gazy nie trzeba wkręcać się długim gwintem/ślimakiem, wystarczy ułamek długości wymiennika - później będą się te spaliny jakoś tam o ścianki obijały po spirali. Momentu pędu im starczy.

Czas przebywania danej cząstki spalin w wymienniku będzie co prawda taki sam jakby biegła po linii prostej, bo musi rozwijać większą prędkość. Więc gdzie zysk? Dowiedziałem się z tego forum że wymiana ciepła przy większych prędkościach przepływu jest lepsza.

Widzę że problem cię mierzi i prędzej czy później spróbujesz każdego sposobu to podsuwam ten.

 

Ale ja też mam pytanie. Jeśli w niektórych kotłach, na ten przykład Camino, tyle ciepła ucieka w komin to może by tak odzyskiwać to ciepło czymś w rodzaju "rekuperatora defa" który jest opisany w "Innowacje w kotle zasypowym" i używać tego ciepła do rozgrzewania PP, PW, czy jakiegoś P3?

A konkretnie - PW im gorętsze tym lepsze, ale czy ta zasada odnosi się też do powietrza pierwotnego? Do jakiej temperatury można rozgrzać PP - w tym wypadku za darmo - całe te 70% zimnego zwykle azotu wychładzającego kocioł?

Cholera, duże to forum, trudno ogarnąć wszystkie tematy i nie wiem czy ten problem krótkiego obiegu ciepła był jeszcze gdzieś poruszany poza przeze mnie wspomnianym "Innowacje...", a coś tak jakoś czuję że to może mieć świetlaną przyszłość.

Pozdrowienia.

Opublikowano

chcecie wynalazek zwiększający powierzchnie wymiany

to odrzyjcie koksownik ze skóry, obmurujcie go cegłą pełną (nawet zwykłą] z przerwą między żeliwem a cegłą ok 5 cm, a rurę dymową podłączcie na samym dole przy podłodze. Całość ocieplić ew, dorobić ładną obudowę. W ten sposób podwoicie powierzchnię wymiany ciepła i zyskacie niewielki bufor ciepła jak w piecu kaflowym.

Opublikowano

Witam kolegów .Czy nie zastanawialiście się nad dwupłaszczowym czopuchem ? Myślę że wyjście spalin można skierować nie od razu w komin a do góry i w komin dopiero pod sufitem . Zyskać można jakieś 1 - 1,5 m powierzchni wymiany . Robiłem kiedyś taką kombinację z palnika olejowego z którego wylot był skierowany w poziomą rurę około 120 mm i długości ok 1,2 m . Rura ta była po długości wspawana w środek bojlera 120 l i potem do pieca kozy a dopiero na końcu w komin . Był to eksperyment . Woda w bojlerze nagrzała się 50st po 15 min a z kozy szło fajne ciepełko . Niestety głośno to chodziło a dżwięk w rurze przypominał odrzutowca .

Zaznaczam że nie wiem jak by wymiennik zachował się na czopuchu , trzeba mieć na uwadze że spaliny nie mogą być za mocno schłodzine .

 

Z kolei mam do Was pytanie . Wygramoliłem z piwnicy moje kamino 3 które od lat 70-tych czekało na swoją kolej i się doczekało ( chodziło jeden sezon ) . Myślę że trzeba je sprawdzić na szczelność . Problem jest z króćcami - nie dam rady ruszyć na zimno . Biorę pod uwagę dospawanie czegoś jednak pewnie wtedy pakuły puszczą . Może ktoś ma jakiś pomysł .

 

post-19891-0-20704000-1363890676_thumb.jpg

 

post-19891-0-18278900-1363890697_thumb.jpg

 

post-19891-0-78424900-1363890709_thumb.jpg

  • 2 tygodnie później...
Opublikowano

Witam, przeglądam wątek o paleniu od góry już od kilku miesięcy, sam próbowałem tak palić ale nie wiem czemu ale zużycie węgla wychodziło mi większe niż w przypadku tradycyjnej metodoy. Pale w piecu camino sześcioczłonowym(żeberka w środku) z miarkownikiem, pompą wspomagającą obieg, powierzchnia ogrzewania to dwa piętra łącznie 120m, z czego połowa to stare grzejniki żeliwne a druga połowa nowa instalacja z aluminiowymi żeberkami, dom jest ocieplony od zewnątrz styropianem 10cm, plus granulat w szczelinach między ścianami dwuwarstwowymi, strop cienka warstwa kramzytu i styropian 6cm. Na maksymalnej ilości węgla jaka mieści się w piecu razem z drzewem na rozpałke przy temperaturze 60 stopni na piecu i ok minus 5 na zewnątrz, zasyp wytrzymuje ok 7h później temperatura zaczyna spadać, testowałem już węgiel z różnych składów, w tym podobno jeden z kopalni Wieczorek, o różnej grubości z kostką włacznie i zawsze dzieje sie tak samo najpierw piec wolno nagrzewa wodę w obiegu a jak zapala sie węgiel to od razu cały zasyp, testowałem też różne ustawienie klapki od powietrza wtórnego, od początku tej zimy w komin poszło już prawie 3 tony węgla, 1 tona miału, 1 tona brunatnego, 250kg koksu i ok 7m drzewa sezonowanej osiki więc raczej to nie jest najleprzy wynik, nie wiem co dalej robic i czy coś robie źle, pomocy

Opublikowano

orcio1

 

Przeczytaj tą stronkę, tu masz skrót najważniejszych informacji http://czysteogrzewanie.pl/warsztat/modyfikacje-kotla/

 

Coś czuję że w Twoim przypadku bez szamotu się nie obędzie. Lepiej pal ciągle z dużo niższą temp. np 45-50C niż np raz na dobę na 60C.

 

Nie może od razu zapaić się cały węgiel, u mnie zanim żar zejdzie na dół to 1/3 do 1/2 z góry ubędzie, szukaj nieszczelności na dole.

  • 1 miesiąc temu...
  • 2 tygodnie później...
  • 2 miesiące temu...
Opublikowano (edytowane)

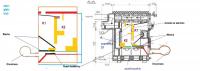
Witam

Mam tki projek

Jakby Camino przerobić z taki sposób - zdjęcie

aby zrobic mu komore do paliwa "K1" (węgiel (groszek), koks) i osbkną komorę do palenia "K2"

Paliwo by się zsuwawo do szczeliny - palnika

Nie wiem czy groszek lub koks by się nie klinował w szczelinie-palnik, proszę o opinie?

Szamotka D1 miała by za zadanie dopalać spaliny - cos w rodzaje defektora

 

Chciałbym palic koksem lub koksikiem (miałowaty kosk)- mało dymu

Czy warto skierować powietrze bezposrednio do popielnika?

Czy najlepiej jakby było bezpośrednio skierowanie na "palnik" - czyli zdjęcie nr 2

powietrze by przechodziło rusztami do "palnika"

post-12699-0-99063400-1377790008_thumb.jpg

post-12699-0-60511900-1377791385_thumb.jpg

Edytowane przez genesis72
  • 3 tygodnie później...
Opublikowano

Witam

 

Prosze o porade posiadam piec camino 3/8 czyli jakieś 21kw wszystko uszczelnione, ogrzewam nim jakies 100m2 (120 aluminiowych żeberek cała instalacja aluminium) zamontowany miarkownik ciagu, a na piecu tak ok 60C cały czas, w tamtym sezonie paliłem metoda od góry węglem orzech gróby i na ściankach piec był strasznie mokry, a po wypaleniu zachodził czarnym syfem (czyszczenie to masakra), komin też strasznie zachodzi musiałem czyścic 2 razy w ubiegła zime (przekrój komina 20x20cm i wysoki na jakieś 15m z tym że w środku komina jest jakias taka wystajac cegła która zwęża go tak o 1/4) W tym roku do całej instalacj dołożyłem zasobknik 140l na ciepłą wodę. Czy ktoś z forumowiczów może mi coś poradzic na owe problemy bo sam niewiem od czego zacząc, a nie chce samemu kombinowac po omacku.

Opublikowano

@m17m

Moja szklana kula mówi, że te problemy to ze zbyt dużej mocy kotła w stosunku do tego, co potrzebuje dom. Gdzieś tak dwukrotnie zbyt dużej. Co z tym począć? Albo ograniczyć moc szamotem, albo rozebrać kocioł i wyjąć ze 3 człony - ale to dla zaawansowanych raczej. Albo wziąć taczkę, zajechać na pobliskie złomowisko i wybrać sobie egzemplarz Camino w dobrym stanie, a o mniejszej mocy.

 

Zrób jak radzi @szponi w każdym razie, to dowiesz się z grubsza, jakiej mocy grzewczej potrzebujesz.

Dołącz do dyskusji

Możesz dodać zawartość już teraz a zarejestrować się później. Jeśli posiadasz już konto, zaloguj się aby dodać zawartość za jego pomocą.
Uwaga: Twój wpis zanim będzie widoczny, będzie wymagał zatwierdzenia moderatora.

Gość
Dodaj odpowiedź do tematu...

×   Wklejono zawartość z formatowaniem.   Usuń formatowanie

  Dozwolonych jest tylko 75 emoji.

×   Odnośnik został automatycznie osadzony.   Przywróć wyświetlanie jako odnośnik

×   Przywrócono poprzednią zawartość.   Wyczyść edytor

×   Nie możesz bezpośrednio wkleić grafiki. Dodaj lub załącz grafiki z adresu URL.

Ładowanie
  • Ostatnio przeglądający   0 użytkowników

    • Brak zarejestrowanych użytkowników przeglądających tę stronę.
×
×
  • Dodaj nową pozycję...

Powiadomienie o plikach cookie

Używając tej strony zgadzasz się na Polityka prywatności.