Skocz do zawartości
IGNOROWANY

Palnik Kipi W Naszych Piecach Wymiana Doświadczeń Użytkowników


Rekomendowane odpowiedzi

Opublikowano

Alfiorz,przy wygrzewaniu domu bardziej sprawdzi się praca z nadzorem. Postojów nie będziesz miał długich. Duża histereza sprawdza się przy dogrzanym domu, żeby utrzymać temperaturę.

Palacz66, przez 6 godzin wychłodziłeś wszystko, łącznie z podłogówką? Teraz kocioł nadrabia straty, dogrzewając sam siebie, instalację i dom, możliwe, że spala wtedy więcej :)  niż miałby na bieżąco uzupełniać straty. Przy stale pracującej pompie CO, temperatura czynnika w kaloryferach i podłodze może być niższa, to też wydłuża postój, ale grzeje chatę cały czas

Opublikowano (edytowane)

Nie prawda, pali mniej. Ale wszystko zależy od instalacji jaka kto posiada.

Po co ma grzać jak jest i tak za ciepło?

Edytowane przez palacz66
Opublikowano

Pozmniejszaliście profilaktycznie czas rozgrzewania grzałki?

Opublikowano

Ok 35cm.

Opublikowano

@alfiorz

1. Kiedy palnik założyłeś?

2. Paliles w kipi peletem 10 mm (bo tak zrozumiałem)?

3. Przy paleniu drewnem (czyli też peletem) ludzie radzą ustawić temp kotła na 70'C. U mnie to pomogło.

4. 8 cm ocieplenia domu to trochę malo...

5. U mnie wiatr 44/36/26 %

 

 

www.kochowka.blogspot.com

Opublikowano

Jak będziesz chciał sprawić sobie ecoSTER TOUCH lub 200 daj znać na PW.

A czy ewentualnie w sprawie econeta też można do Ciebie napisać?
Opublikowano

Jasne kolego Cezar!

Opublikowano

Ok 35cm.

 

Wg DTR minimum to 25cm, wg mnie jest za mało, 35cm i będzie cacy. Po wstawieniu płyt wermikulitowych u mnie zrobiło się 26cm. Jak będzie chwila bardziej przyjaznej pogody wstawiam palnik w drzwiczki popielnikowe. 

Opublikowano (edytowane)

Dlatego napisałem tyle. Tylko nie zapomnij ocieplić popielnika! Jak duży masz popielnik?

Edytowane przez palacz66
Opublikowano

Popielnik zaizolowany wermikulitem, 5cm powyżej płaszcza wodnego. Rozmiary popielnika to 35cm na 60cm.

Opublikowano

A wysokości ile masz? Bo ja też zastanawiam się ale brak mi będzie z 5 cm!

Opublikowano

Nie pamiętam, dużo. Po pewnych modyfikacjach zmieściłbym palnik 100kW :)

Opublikowano

Ja mam palnik w popielniku wyłożonym szamotem pod rusztami wodnymi

Opublikowano

A ile cm od rusztu wodnego i ile od dna popielnika?

Opublikowano

U mnie ruszt wodny jest wysoko, więc to nie problem.

 

eea0baf1fca93188gen.jpg

Opublikowano

Witam

Posiadam palnik Kipi 6-26kw i sterownik pluma 350 w kotle żeliwnym kielar eco 2 29,2kw. Proszę o pomoc ponieważ kocioł spala 50-70 kg peletu na dobe w trybie fuzzy logic. Serwisant rozkłada ręce a serwis kipi tłumaczy że sam nie dam rady ustawić standardu i zostaje odsyłany od jednego do drugiego bez pomocy. Gdybym wiedział, że zostane bez pomocy to nie dam tyle pieniędzy za to wszystko... Troche o domu, ogrzewam na razie parter ok.100m2 i dwa grzejniki żeliwne grzeją piwnice, przyjmijmy grzeje gdzieś 150m2. Na piętrze ok 100m2 temperatura utrzymywana gdzieś okolo 15 stopni bo nie jest wykończone. Mury podwójne, cegła, budownictwo lata 90 ocieplenie ścian 8 cm, dach 15cm. Jest jakaś szansa żeby w ogóle obniżyć te spalanie? Serwisant ustawil moce 22/10/4 nadmuchy 28/25/20. Strasznie wolno dochodzi do zadanej temperatrury i nie ma mowy o jakim kolwiek nadzorze tak jak mówił mi, że będzie to działać. Przeważenie wyszło 18kg. Temperatura zadana na kotle 55 stopni. Pelet mam teraz 6mm i spala go dużo więcej niż 10mm przemysłowego. Proszę o pomoc w ustawieniach tego ustrojstwa.

Nie wiem jak długo użytkujesz palnik, ale nie sugeruj się spalaniem u innych. Jeśli masz problem (ja tez miałem z łuską i nawet z ostatnio kupionym 8mm w którym znalazłem pomielony plastik) uzbrój się w cierpliwośc. Ja zrobiłem reset do ustawień fabrycznych i powoli modulowałem nadmuchem. Ważne żebys przeważył pellet w teście. Na max mocy miałem nadmuch w FL 65% (po aktualizacji oprogramowania) po 5 dniach zszedłem z nadmuchem do 49% i jak na razie powoli mi spada spalanie pelletu. Jak masz problem z ustawieniami zadzwoń do pluma mnie niejaki Pan Sobolewski super pięknie pomógł w ustawieniach doborach histerez (dla mnie czarna magia była). Tym że nie masz ecostera bym sie nie przejmował bo u mnie po aktualizacji nie działał i tylko służył do podglądu pracy kotła. Jak ustawisz parametry to wtedy moduluj mocą nadmuchu. Ja próbowałem ograniczac moc palnika ale jak są zbyt duże wachania temperatur co było ostatnio -7 do +2 to głupiał mi na ograniczonej mocy kocioł. Teraz jadę na 26 kw cały czas na FL  i spalanie dochodzi do 45 kg na dobe bo garaz też grzeję (jak otworzył obiegi to powrót 30 stopni) teraz juz nagrzany więc temperatura powrotu najniżej 42 stopnie. Wiem że łatwo sie mówi bądź cierpliwy w godzine nie ustawisz ale ja reset zrobiłem w niedziele a do dzisiaj schodzę z parametrami nadmuchu przy dośc kiepskiej jakości pelletu. Jak coś pisz na priv to może telefonicznie Ci podpowiem co nie co.

Opublikowano

A ile cm od rusztu wodnego i ile od dna popielnika?

Ja mam bardzo blisko i dna i rusztu ponieważ w U26 nie ma innej możliwości ale to żeliwo więc ruszt jest bezpieczny a przy dnie właśnie robię patent do przedmuchu cyklicznego bo mi się zbiera popiół przed palnikiem

Opublikowano (edytowane)

A do bardziej doświadczonych może coś stać się rusztowi wodnemu jak palnik będzie pracował ok 5cm pod rusztem? Nie będzie podgotowywał wody w nim?

Edytowane przez palacz66
Opublikowano (edytowane)

Będzie gotować cały czas

 

Tak kolego @Dragster

Ty lepiej nic nie zmieniaj z tymi drzwiczkami z przekroju kotła widać , że jest OK.

Edytowane przez robin60
Opublikowano

Czyli czym dalej od rusztu wodnego tym lepiej.

Opublikowano (edytowane)

Nie mogę wyedytować więc napiszę post pod postem. Z ciekawości bo nie przypominam sobie by takie pytanie padło. Jaką macie temperaturę podajnika? Szczególnie w trybie FL gdzie palnik pracuje cały czas.

Edytowane przez Dragster
Opublikowano

Pronto 527c0f4617cbb67e3f9a10a4bbb4fd7e.jpg

 

www.kochowka.blogspot.com

Opublikowano (edytowane)

...

 

Tak kolego @Dragster

Ty lepiej nic nie zmieniaj z tymi drzwiczkami z przekroju kotła widać , że jest OK.

 

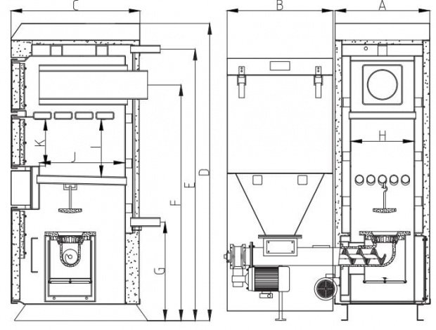
Niby tak. Palnik od ścianki na przeciw jest w tej chwili na takie powiedzmy minimum bo 26cm. Po zaizolowaniu i przy montażu zgodnym z DTR niestety z 35cm zostało 26cm. Problem w tym, że w drzwiach wspawany jest profil, dość szeroki  teoretycznie do niczego on nie służy ale strasznie mi się nagrzewa od odbitego gorącego powietrza. Potrafi konkret odkształcić otwór popielnika. W tej chwili go zaizolowałem i jest ok ale zastanawiam się czy go po prostu nie wyciąć całkowicie i wstawić palnik w drzwi.

 

2ef80673746f248bgen.png

 

395b5a6b9fd2ce6agen.png

Edytowane przez Dragster
Opublikowano (edytowane)

Ty mi szanowny kolego @Dragster nie dawaj zdjęć z palnikiem eco tylko daj  pogląd z palnikiem KIPI i napisz ile masz od końca KIPI do przeciwległej ścianki.

Temp podajnika przy mocy max  23-25 st. 

Edytowane przez robin60

Dołącz do dyskusji

Możesz dodać zawartość już teraz a zarejestrować się później. Jeśli posiadasz już konto, zaloguj się aby dodać zawartość za jego pomocą.
Uwaga: Twój wpis zanim będzie widoczny, będzie wymagał zatwierdzenia moderatora.

Gość
Dodaj odpowiedź do tematu...

×   Wklejono zawartość z formatowaniem.   Usuń formatowanie

  Dozwolonych jest tylko 75 emoji.

×   Odnośnik został automatycznie osadzony.   Przywróć wyświetlanie jako odnośnik

×   Przywrócono poprzednią zawartość.   Wyczyść edytor

×   Nie możesz bezpośrednio wkleić grafiki. Dodaj lub załącz grafiki z adresu URL.

Ładowanie
×
×
  • Dodaj nową pozycję...

Powiadomienie o plikach cookie

Używając tej strony zgadzasz się na Polityka prywatności.