Skocz do zawartości
IGNOROWANY

Pompa Kotłowa - Co I Jak


KachaOpole

Rekomendowane odpowiedzi

Opublikowano

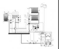
Ja bym zrobił na 3D z siłownikiem na OP(mąż będzie miał to co chciał,będzie zadowolony)Pompę z tej grupy pompowej możesz wykorzystać np.do grzania CWU,może termometry z niej też da się zamontować a są potrzebne za pompami na poszczególne obiegi aby wiedzieć jaka idzie na nie temp.Domalowałem do twojego schematu naczynie przeponowe do układu zamkniętego i zawór bezpieczeństwa powiedzmy 2BAR(ma być na zasilaniu kotła)Mam nadzieje że masz rozdzielacze do OP z rotametrami.

Lokalizacja wszystkich zaworów 3D i pomp w kotłowni (nie w szafkach-tam tylko same rozdzielacze)

post-32948-0-71091100-1510693155_thumb.jpg

Opublikowano

Dokładnie tak. 

Zawsze można zostawić jak jest na teraz (grupa mieszająca ze sterowaniem ręcznym) a przerabiać potem od tych 2 zaworów kulowych do rozdzielaczy (pompa zostanie, dokładasz zawór 3D i siłownik na niego). jeśli są kurki i rotametry na belkach to nawet spuszczać wody by nie trzeba było - tylko miejsca zostawić na przeróbkę.

 

Na rozdzielaczu są takie przezroczyste szklanki z podziałkami.

 

 

Ja bym zrobił na 3D z siłownikiem na OP(mąż będzie miał to co chciał,będzie zadowolony)Pompę z tej grupy pompowej możesz wykorzystać np.do grzania CWU,może termometry z niej też da się zamontować a są potrzebne za pompami na poszczególne obiegi aby wiedzieć jaka idzie na nie temp.Domalowałem do twojego schematu naczynie przeponowe do układu zamkniętego i zawór bezpieczeństwa powiedzmy 2BAR(ma być na zasilaniu kotła)Mam nadzieje że masz rozdzielacze do OP z rotametrami.

Lokalizacja wszystkich zaworów 3D i pomp w kotłowni (nie w szafkach)

 

Dziękuje. Jutro rano wykonam telefon i niech mąż decyduje. Mnie to już przerasta :(

 

Dziękuje Wam za dobre rady, ale sądzę że niedługo znowu poproszę o pomoc :)

Opublikowano

Dziękuje wszystkim którzy pomogli byśmy mieli cieplutko.  Instalacja zrobiona z czujnikiem pogodowym i dwoma zaworami 3D z siłownikiem. Dodatkowo zawór termostatyczny za wymiennikiem c.wu. tak coby się pod prysznicem nie poparzyć. :)

 

Pozdrawiam i dziękuje

Opublikowano

Dobry wieczór wszystkim.

 

Znowu potrzebuje pomocy. Mianowicie mam w domu jedno pomieszczenie nad garażem. Było to po prostu pomieszczenie gospodarcze. Garaż w bryle budynku, dom docieplony, strop nad garażem podczas ostatniego remontu docieplony styropianem grafitowym xps rozciągnięte rury PEX16 z kotłowni do dwóch grzejników (każdy osobno)pod oknami i na niego wylewka 7cm. Pomieszczenie to ma 24m2 Jedno okno na ścianie i jedno dachowe.  

O co chodzi? A no o to, że chciałam do wiosny tam zrobić remont, ale jest za zimno by cokolwiek działać. Dlatego chce by mi teściu podłączył grzejniki które planuje na dniach zakupić. Jednak teściu to ma swoją mentalność. Nie doradzi jakie mają być... ma zasadę, kup ja Ci podepnę. Jak będą za małe to nie będzie na mnie. 

Z tego co czytałam to liczy się metry kwadratowe razy wskaźnik zapotrzebowania na moc. Skorzystałam ze strony na której wyliczyć można owo zapotrzebowanie i mi wyszło 61W/m2

 

Powinnam więc policzyć 24m2 x 61W/m2 = 1464

 

Takiej mocy potrzebuje tam grzejnik. Ale jakoś zbyt proste mi się wydaje takie obliczenie, nie wiem czy trzeba brać pod uwagę średnice rur, długość?

No i jak ten wynik podzielić na dwa grzejniki. Dowolnie czy jest jakaś reguła? 

 

Pomożecie blondynce?

Opublikowano

Grzejniki aluminiowe wysokie na około 60cm. Pomiędzy rurami wystającymi ze ściany jest 50cm

Temperatura zasilania około 65st

Czyli jeśli będzie grzejnik "za duży" to nie wpływa to na nic? Bardziej się obawiam by nie kupić za małych.

Opublikowano

Termostaty ograniczaja moc grzejnika. Nawet jesli nie i to sa zeberkowane grzejniki zawsze można tam zeberko dokrecic... Gdybys mogła wstawic link do zeberka lub grzejnika ktore planujesz kupic lub zdobyc info jaka jest moc zeberka przy jakiej temp. Bo roznie podaja...

Opublikowano

Chodzi mi o grzejniki w takim stylu jak ten. Może nie ta firma, nie wiem jakie dostane w sklepie.

 

 

Znalazłam dane tych grzejników które ja chce kupić.

 

Całkowita wysokość członu: 573
Wysokość montażowa: 500
Całkowita szerokość: 804
Głębokość członu: 90
Objętość wody w członie: 0,3
Masa 1 członu: 1,3
Temperatura robocza do: 95
Ciśnienie robocze do: 1,6
Moc grzewcza 1 Członu dla ^t = 50 ' C: 112
Moc grzewcza 1 Członu dla ^t = 60 ' C: 141
Opublikowano
 

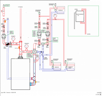
Więc jak powinno być z tymi zaworami zwrotnymi na ogrzewaniu podłogowym i grzejnikowym. Czy powinny być za pompami i na powrotach czy tylko na powrotach ? Oczywiście przy takim schemacie.

  • post-32948-0-71091100-1510693155_thumb.j
Opublikowano

post-61576-0-64107000-1512163017_thumb.jpg

 

Witam 

Szanowni koledzy zwracam się z zapytaniem co sądzicie na temat tego  schematu instalacji jest on dedykowany do kotła podajnikowego Defro Komfort Eko Duo. Pytanie również czy zapewni optymalną ochronę powrotu?? 

Opublikowano

Przy takim układzie pompy na odbiorach pracują w szeregu z pompą na powrocie. Potrzebne jeszcze sprzęgło

Opublikowano

Pytanie jeszcze odnośnie schematu z postu nr 67  czy zasilanie zaworu 3D z obiegu podłogówki moze być wpiete jak na schemacie czy też nie powinno byc  bezpośrednio przed zaworem 4D ?

Opublikowano

Tak jak na schemacie- za zaworem 4d

Opublikowano

Jak wyjdziesz z zasilaniem z obiegu kotłowego to powrót też będziesz musiał wpiąć w obieg kotłowy i jaka będzie wtedy temperatura powrotu?

Gość Digitrax
Opublikowano

Jak robisz od zera zapomnij o schemacie z postu nr 67.

Za jakiś czas powrócisz tutaj zniesmaczony, że masz niską temperaturę powrotu...

Zastosuj sprawdzony i skuteczny schemat z postu nr 69

Opublikowano

Witam dzięki za wszelkiego rodzaju sugestie. Jestem samoukiem i instalację wykonuje pierwszy raz od podstaw  dla siostry ( nowy dom ) wiem ze schemat z postu nr 69 byłby lepszym rozwiązaniem jendnak szwagier  :)  nie zgadza sie na dodatkowe koszty w postaci pompy kotłowej i zaworu termostatycznego w związku z czym jestem zmuszony do wykonania instalacji ze schematu 67. Mam do was jeszcze  pytanie czy można połączyć dwie wężownice w zasobniku na CWU Stalmet czy jeżeli tak to w jaki sposób szeregowo czy równolegle? czy gra jest wogóle warta świeczki. Zasobnik docelowo bedzie służył do instalacji solarnej. 

Zarchiwizowany

Ten temat przebywa obecnie w archiwum. Dodawanie nowych odpowiedzi zostało zablokowane.

  • Ostatnio przeglądający   0 użytkowników

    • Brak zarejestrowanych użytkowników przeglądających tę stronę.
×
×
  • Dodaj nową pozycję...

Powiadomienie o plikach cookie

Używając tej strony zgadzasz się na Polityka prywatności.