Elber Opublikowano 5 Listopada 2019 #1 Opublikowano 5 Listopada 2019 Witam, bardzo proszę o pomoc w dobrze konkretnego modelu kotła gazowego jaki sprawdzi się w mojej sytuacji, dodam że lokalnie każdy instalator ma inną wizję, jedni polecają immergas, inni vaillant, albo jeszcze coś innego i kompletnie nie wiem co wybrać żeby było dobrze. Sytuacja jest następująca; dom, w zasadzie połowa bliźniaka, po generalnym remoncie i termomodernizacji, ściany ocieplone styropianem 17cm, fundament (piwnica) ocieplona pianą PUR 6cm, okna nowe 3 szybowe, nowe drzwi wejściowe, dach ocieplony wełną mineralną 25cm. Piwnica ~60m2 - 3 grzejniki, wiatrołap / ganek 1 grzejnik, parter ~60m2 cały w podłogówce + łazienka na parterze grzejnik drabinkowy, piętro ~ 60m2 całe w podłogówce + łazienka na piętrze grzejnik drabinkowy, pod podłogówką oczywiście styropian. Strych docelowo będzie użytkowy, koło 35m2 styropian jako izolacja stropu + ogrzewanie podłogowe. W kotłowni mam 2 piony - osobny pion na podłogówkę oraz osobny na grzejniki (te 3 piwniczne, 1 z wiatrołapu/ganku i te 2 drabinki z łazienek są na jednym). Rodzina 5cio osobowa.
teres Opublikowano 9 Listopada 2019 #2 Opublikowano 9 Listopada 2019 Szukaj kotła ze względu na: - niską moc minimalną - dobry serwis w okolicy. Jeśli chcesz mieć osobno, pogodowo sterowane obiegi na grzejniki i podłogówkę, to polecam Junkers / Vaillant / Immergas . Jeśli nie, to skup się na tym co napisałem wyżej.
Elber Opublikowano 9 Listopada 2019 Autor #3 Opublikowano 9 Listopada 2019 Sterowany bym chciał mieć tylko parter jako całość i piętro jako całość, w rozdzielaczach nie mam niestety osobnych mieszaczy aktualnie, więc to komplikuje sprawę, jakby wziąć Immergas to potrzebuje mieszacza - divicon za 4k co jest dość łabe. Nie wiem jak sprawa z Junkersem wygląda, co tam by trzeba, jakie moduły i jakie dodatki. Co do Vaillanta to polecają mi kocioł Vaillant ecotec plus vc 206/5-5 + V91 + V71 + multiMATIC VRC 700/6 tylko trzeba by dołożyć do rozdzielaczy mieszacze i pompy i kabelki. Pytanie moje brzmi jakiej modulacji szukać kotła do jakiego maksymalnego kW ? Oraz jakby taka instalacja oparta o Junkersa miała wyglądać ?
TIMON120777 Opublikowano 9 Listopada 2019 #4 Opublikowano 9 Listopada 2019 raczej od jakiego minimalnego poziomu KW a nie jakiego maksymalnego. Przy takiej izolacji obstawiam nic nie licząc tylko szacunkowo łącznie z poddaszem 3x60m2+35m2=215m2x60W=12900W=12,9KW max. czyli ogarnie to nawet 14KW Junkersa który startuje od 1,9KW. Mozna też ryzykować Immergasa victrixa 12KW(równiez start od 1,9KW) lub któryś Vaillant ale tu już nieco wyżej bo w okolicy 3KW moc minimalna. Pozostaje pytanie o sposób grzania CWU- jeśli przepływowo to modele 2 funkcyjne ale tam moc minimalna jest ciut wyższa. Jeśli CWU z bojlera to 14KW ogarnie bez problemu bez obaw o zimny tyłek. co do sterowania kilkoma obiegami to moge w temacie junkersa tylko proponowć połączenie z CW400 sterującym 8 obiegami o reszcie nie mam wiedzy
Elber Opublikowano 9 Listopada 2019 Autor #5 Opublikowano 9 Listopada 2019 CWU planuje Biawara 150l, w domu mam 4 kobity - starczy to ?
teres Opublikowano 9 Listopada 2019 #6 Opublikowano 9 Listopada 2019 1 godzinę temu, Elber napisał: tylko trzeba by dołożyć do rozdzielaczy mieszacze i pompy i kabelki. A czemu nie możesz tego upchać w kotłowni? Junkers i grupy pompowe też nie wychodzi tanio, chociaż mi się podoba praca tego kotła w takim zestawie. Zestaw Junkers zsb 14-5 C + 2* MM100 (grzejniki i podłogówka) + 2 grupy pompowe dowolny producent lub też Junkers HSM (wtedy MM100 może być wewnątrz grupy) 32 minuty temu, Elber napisał: CWU planuje Biawara 150l, w domu mam 4 kobity - starczy to ? Powinno, o ile nie będą brały po 2 kąpiele na raz.
Elber Opublikowano 9 Listopada 2019 Autor #7 Opublikowano 9 Listopada 2019 Bo chciałbym osobno sterować parterem i piętrem, a oba te rozdzielacze są z jednego pionu zasilane, więc nie mogłoby być w kotłowni ?
teres Opublikowano 9 Listopada 2019 #8 Opublikowano 9 Listopada 2019 A po co? Nie wystarczy Ci sterowanie pogodowe + regulacja przepływów na poszczególnych pętlach? Prościej by było dokładać w razie potrzeby dokładać termostaty pokojowe w przyszłości. Jak to zrobisz na grupach pompowych to nie wiem czy tam zmieścisz zawory 3 drogowe z siłownikami, a tylko wtedy miałoby to jakiś sens.
Elber Opublikowano 9 Listopada 2019 Autor #9 Opublikowano 9 Listopada 2019 No tak, tylko jak założę termostat pokojowy to on musi być podłączony z siłownikiem na pętli który albo ją zamknie albo otworzy tak ? Czytam cały czas że podłogówka ma dużą bezwładność i takie sterowanie ON_OFF chyba nie jest dobre ? A po drugie dobre jest takie coś dla pieca, żeby zamykać pętle ? Co z taktowaniem ?
sambor Opublikowano 10 Listopada 2019 #10 Opublikowano 10 Listopada 2019 W dniu 5.11.2019 o 17:56, Elber napisał: bardzo proszę o pomoc w dobrze konkretnego modelu kotła gazowego jaki sprawdzi się w mojej sytuacji, dodam że lokalnie każdy instalator ma inną wizję, jedni polecają immergas, inni vaillant, albo jeszcze coś innego i kompletnie nie wiem co wybrać żeby było dobrze 10 godzin temu, Elber napisał: chciałbym osobno sterować parterem i piętrem Najpierw trzeba zrobić rozeznanie co naprawdę chcemy od kotła a następnie wykonać pod konkretny kocioł i własne wymagania prawidłową instalację, gdyż to co masz nie jest dobre do żadnego z kotłów na gaz i podłogówki. 10 godzin temu, Elber napisał: oba te rozdzielacze są z jednego pionu zasilane, To typowa instalacja do grzejników a nie do podłogówki i twoich wymagań nie spełni. Może na dodatek podaj ile pętli na każdym z poziomów, jakie w nich mają być przepływy , oraz jakie rury idą do w pionie do rozdzielaczy.
Elber Opublikowano 10 Listopada 2019 Autor #11 Opublikowano 10 Listopada 2019 Dolna i górna rozdzielka wygląda taka samo i taka sama ilość obwodów jest: Zdjęcie kotłowni Rurki w szarej otulinie to podłogówka, na dole przy ziemi w czerwonej to grzejniki, 2 zwisające w czerwonej to ciepła woda a biały to zimna woda. Pion podłogówki idzie w rurach 1" ze stali węglowej, a do grzejników plastik. Przepływów niestety nie znam.
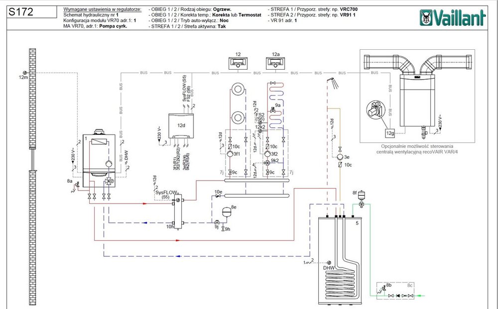
sambor Opublikowano 10 Listopada 2019 #12 Opublikowano 10 Listopada 2019 Jeżeli do podłogówki naprawdę jest rura 1" to nie ma co się bawić - zrobić 1 obieg podłogówki i 1 grzejników a resztę załatwić nastawami lub odcinaniem rozdzielacza. Trzeba zrobić coś takiego jak poniżej i będzie OK- to jest z Vaillanta, identycznie jest u Wolfa, bardzo podobnie w Junkersie A komplikacja ogrzewania prowadzi tylko do większych kosztów eksploatacji lub samego sprzętu, a efektów lepszych nie da. Komfort pozostanie praktycznie taki sam.
gmaj22 Opublikowano 10 Listopada 2019 #13 Opublikowano 10 Listopada 2019 Jeśli autor wątku zechce skorzystać z tego schematu, musi pamiętać o innej lokalizacji ZZ na obiegu mieszacza podłogówki.
sambor Opublikowano 10 Listopada 2019 #14 Opublikowano 10 Listopada 2019 To nie jest pełny schemat hydrauliczny, tylko idea połączenia, głównie automatyki , nie ma też na nim np filtrów pomp a lokalizacja naczynia przeponowego powinna być na powrocie miedzy kotłem a sprzęgłem, a nie za sprzęgłem.
teres Opublikowano 10 Listopada 2019 #15 Opublikowano 10 Listopada 2019 1 godzinę temu, gmaj22 napisał: Jeśli autor wątku zechce skorzystać z tego schematu, musi pamiętać o innej lokalizacji ZZ na obiegu mieszacza podłogówki. A możesz napisać czemu? Coś mi świta, ale nie pamiętam o co tam chodzi i w czym jest błąd.
Elber Opublikowano 10 Listopada 2019 Autor #16 Opublikowano 10 Listopada 2019 A co jest nie tak z tym pionem ? To rura ze stali węglowej cokolwiek to znaczy. Jaki kocioł z tego Vaillanta ? Vaillant ecotec exclusive vc 206/5-5 ? Do tego VR 70 lub VR 71 + multiMATIC VRC 700 ? Nie bawić się w dokładanie to tych rozdzielni osobnych mieszaczy i pomp tylko zrobić to na 1 w kotłowni i ogarnąć górę na siłownikach ? Jest to dobre rozwiązanie ?
sambor Opublikowano 10 Listopada 2019 #17 Opublikowano 10 Listopada 2019 Rura jest OK, wystarczy nawet na 3 poziomy. Co trzeba w schemacie vaillanta masz na tym schemacie. Górę powinieneś ogarnąć tylko przepływami - masz jakąś instalację , więc powinieneś mieć do niej dane obliczeniowe, a tak to będzie partyzantka. Grzanie z wyłączeniem pętli to zawsze dodatkowa strata paliwa i oczywiście kasy na automatykę. jak większość inwestorów pojawiasz się jak już wszystko wykonane i chcesz porad jak to wyprostować, a tak się nie da. Co do oszczędności to prawidłowo policzona instalacja OP nie wymaga innych regulacji jak krzywa grzewcza sterowana temp zewnętrzną i jest najbardziej oszczędna . To co masz teraz spali ci np xxx gazu rocznie, a przy prawidłowej spalisz o 10-20% mniej i koszt projektu czy samych obliczeń OP zwróci się po 2 latach w samym paliwie, nie mówię o kosztach dod automatyki, której nie powinno być. 20 minut temu, Elber napisał: Jaki kocioł z tego Vaillanta ? Vaillant ecotec exclusive vc 206/5-5 ? Do tego VR 70 lub VR 71 + multiMATIC VRC 700 ? Może być taki, reszta jest na schemacie
Elber Opublikowano 10 Listopada 2019 Autor #18 Opublikowano 10 Listopada 2019 Tak bo w zasadzi tam będą 3 poziomy, parter piętro i poddasze, tylko an poddaszu ~ 3 pętle. A nie lepiej byłoby uzupełnić rozdzielacze o mieszacz, pompę i zawór 3d i puścić kabelki do kotłowni ? Wtedy można by zastosować VR 71 który by tym sterował i VR 91 na sterowanie piętrem ? Czy to w moim przypadku nie ma sensu i szkoda zachodu ? Instalator który to instalował mówił żeby dać sterowanie pogodowe a na górze siłowniki i proponował Kocioł Immergas exa 24 tylko do tego ten nieszczęsna grupa mieszająca DIM która w zasadzie kosztuje tyle co piec.
sambor Opublikowano 10 Listopada 2019 #19 Opublikowano 10 Listopada 2019 Ale grupa mieszająca DIM musi być przy kotle, z resztą to proteza.
Elber Opublikowano 10 Listopada 2019 Autor #20 Opublikowano 10 Listopada 2019 Czyli to powinno być na 2 różnych Pionach i oba w kotłowni? Bo widziałem ze są takie rozdzielacze które wlasnie są wyposażone w pompę i mieszacz z zaworem 3d. Nie ma sensu tak robić?to lepiej pogodowka plus siłowniki na górę ?
sambor Opublikowano 10 Listopada 2019 #21 Opublikowano 10 Listopada 2019 2 godziny temu, Elber napisał: to lepiej pogodowka plus siłowniki na górę ? Pogodówka ale bez siłowników! Podaj po kiego grzyba ci te siłowniki? Chyba tylko po to aby więcej kasy wydać, więcej gazu spalić i przykryć kiepską instalację. Siłowniki mają sens w dużej instalacji np w hotelu, pensjonacie gdzie koszty wykonania i ew eksploatacji nie są tak istotne a czesto część pomieszczeń stoi pusta
Elber Opublikowano 10 Listopada 2019 Autor #22 Opublikowano 10 Listopada 2019 Ok,to czy w zaistniałej sytuacji jest jakaś opcja żeby sterować osobno parterem i piętrem ? Rozbudowanie rozdzielaczy o mieszacz i pompę to zły pomysł ?
sambor Opublikowano 10 Listopada 2019 #23 Opublikowano 10 Listopada 2019 Na co to sterowanie poziomów? Niecałe 60m2 a ty robisz nie wiem co! Jakbyś miał poziomy po 200-300m2 to jest sens, a w takim maleństwie wszystko się wyrówna do najwyższej temperatury
Elber Opublikowano 10 Listopada 2019 Autor #24 Opublikowano 10 Listopada 2019 No właśnie sęk w tym że na dole chciałbym mieć trochę cieplej niż na górze, góra będzie do spania, a dół do siedzenia. Ma to sens ???
sambor Opublikowano 10 Listopada 2019 #25 Opublikowano 10 Listopada 2019 Ile to jest "trochę cieplej"?
Rekomendowane odpowiedzi
Zarchiwizowany
Ten temat przebywa obecnie w archiwum. Dodawanie nowych odpowiedzi zostało zablokowane.