-
Postów
1538 -
Dołączył
-
Ostatnia wizyta
-
Wygrane w rankingu
15
Treść opublikowana przez tomekb
-
Wymiana zaworów na termostatyczne w rozdzielaczu dla grzejników.
tomekb odpowiedział(a) na bukowskm temat w Instalacje CO i CWU
Tak są korki pex . -
Wymiana zaworów na termostatyczne w rozdzielaczu dla grzejników.
tomekb odpowiedział(a) na bukowskm temat w Instalacje CO i CWU
Każdy producent ma swoje wymiary uszczelnień my np. mamy fazy pod o-rigi 18x2,2 przeważnie jest to o-ring nie większy niż 18x2,5 . Jeśli będziesz wykręcał i stwierdzisz że jest oring sparciały to najlepiej go wymienić. -
Wymiana zaworów na termostatyczne w rozdzielaczu dla grzejników.
tomekb odpowiedział(a) na bukowskm temat w Instalacje CO i CWU
Można i tak ,... ale chodziło mi abyś wykorzystał sobie zawory z belki rozdzielacza podłogówki do belki powrotnej w rozdzielaczu grzejnikowym , że rozdzielacz jest tego samego producenta to nie trzeba wymieniać nypli . .... W rozdzielaczu podłogowym nowe rotametry na zasilaniu i nowe zawory pod siłownik na belce powrotnej , dlatego na powrotnej bo jak będą na zasilającej to przy domykaniu przez siłownik zaworu woda napiera na grzybek i zawory ,,stukają" . -
Wymiana zaworów na termostatyczne w rozdzielaczu dla grzejników.
tomekb odpowiedział(a) na bukowskm temat w Instalacje CO i CWU
Są takie zawory, taki zawór powinien być założony na belce powrotnej tak aby woda wpływała pod grzybek , są różne rozwiązania tych zaworów dlatego powinno się wymienić też nypel. Z tego co widzę to na drugim zdjęciu masz rozdzielacz do podłogówki z takimi zaworami a że wydaje się że rozdzielacze są z tej samej firmy to w tym przypadku nie musisz zmieniać nypla bo te zawory na górnej belce do podłogówki nie powinny być w tym miejscu . Dlatego proponuję wykorzystać je do rozdzielacza grzejnikowego a do podłogowego kupić zawory i rotametry. -
Wymiana zaworów na termostatyczne w rozdzielaczu dla grzejników.
tomekb odpowiedział(a) na bukowskm temat w Instalacje CO i CWU
Witam , zrób zdjęcie i zrób pomiar grubości belki . Chodzi o ten wymiar 41 jeśli masz taki profil , jeśli rura to też się da dorobić -
Witam , jeżeli ten rozdzielacz jest zasilany z kotła gazowego to niestety trzeba go przerobić. Jeśli kocioł na węgiel lub pelet to będzie działało prawidłowo, tylko zasilanie z kotła powinno wchodzić na dolną belkę, pompa tłoczy to zasilanie w górną belkę i należy przyjąć, że belka górna to belka zasilająca pętle podłogowe i na niej powinny być zamontowane rotametry, a te zawory z górnej belki najlepiej dać na dolną belkę bo inaczej mogą wydawać dziwne odgłosy . Zamiast rotametrów można zastosować te zawory nastawne z czerwonymi kapturkami i na tkz , ,,czuja " regulować przepływ w pętlach .
-
Przeróbka zasilania rozdzielaczy podłogówki. Czy to coś zmieni ?
tomekb odpowiedział(a) na sebasp temat w Instalacje CO i CWU
Prawidłowa instalacja powinna wyglądać tak że pierwsze jest sprzęgło z 4 króćcami zasilanie do kotła , powrót do kotła strona pierwotna , zasilanie instalacji i powrót instalacji strona wtórna , następnie powinien być podłączony rozdzielacz który rozdziela np na 2 obiegi np. Jedna pompa na podłogę druga na grzejniki . Niestety niektórzy producenci poszli na łatwiznę i zrobili w sprzęgle 6 króćców dwa na zasilanie I powrót z kotła ,, strona pierwotna i i cztery na stronę wtórną dwa zasilania i dwa powroty strona wtórna ( i tak jest u Ciebie ) o ile dwie instalację po stronie wtórnej są podobnie zrównoważone to wtedy to działa , ale jeśli na jednej jest kilka grzejników a na drugiej podłogówka która generuje dość duży opór to wtedy jest problem . Dlatego niektórzy producenci zrobili przegrody w sprzęgle , które ukierunkowują ruch ciepłej wody , jedni mają to zrobione dość dobrze drudzy niestety źle . -
Przeróbka zasilania rozdzielaczy podłogówki. Czy to coś zmieni ?
tomekb odpowiedział(a) na sebasp temat w Instalacje CO i CWU
Witam tak tylko zakładasz tą ,, białą skrzynkę i wszystko tam jest , czyli sprzęgło, rozdzielacz I grupy pompowe , w zależności od rodzaju instalacji tak ją konfigurujemy , może być na dwie podłogówki lub podłoga i grzejniki . Druga opcja to wystarczy sprzęgło -rozdzielacz bo pompy już masz i tak jak sugerował Sambor podmienić zawór na większy , ja posiadam esbe 23- 45 stopni 372 z kvs 3,4 . Lub takie same z temperaturą 26- 55 stopni . Ta Kotłownia jak zasila instalację mieszaną nie wiem ile metrów bo zdjęcie dostałem od instalatora który to robił . -
Przeróbka zasilania rozdzielaczy podłogówki. Czy to coś zmieni ?
tomekb odpowiedział(a) na sebasp temat w Instalacje CO i CWU
Witam , często się spotykam z takim problemem i z reguły w 80procent przypadków problem jest ze sprzęgłem, prawidłowa instalacja powinna wyglądać tak że jest sprzęgło a za sprzęgłem jest rozdzielacz ,teraz najcieplejsza woda zbiera się w górnej warstwie twojej ,,rury" pompa od grzejników ma najmniejszy opór i nawet zmieniając parametry pompy to i tak ta pompa będzie zaciągała najwięcej , prawdopodobnie wewnątrz tego sprzęgła nie ma żadnej przegrody rozdzielającej, na rysunku przedstawiam nasze rozwiązanie ,które poprawia działanie takie instalacji, mogę Ci to nawet wypożyczyć abyś sobie podmienił na próbę , trzeba by tylko troszkę zmienić miejscami pompę, drugim rozwiązaniem które możesz zrobić i może też rozwiązać ten problem to zamontowanie zaworu 3d do ręcznej regulacji na części grzejnikowej i oszukać troszkę pompę . Mamy też teraz takie nowe rozwiązanie ,,Fimbox" ,które w firmie Prandelli można kupić pod nazwą EXPERT i tam jest już wbudowany rozdzielacz w sprzęgle , które działa bardzo dobrze i zawsze temperatura która wychodzi do rozdzielacza ma jest taka sama na dwóch zasilaniach . -
Sprzęgło z rozdzielaczem na dwa obiegi i z jedną pompą
tomekb skomentował(a) tomekb wpis na blogu w Ogrzewania podłogowe
Witam, tak może być to zamontowane w poziomie , na zdjęciu tego nie widać , ale chłopaki przekręcili korpus pompy oraz zawór odwrotnie , nawet nakleili nalepki oznaczając zasilanie I powrót . Ważne że wiadomo o co chodzi ;) 😉 -
-
Sprzęgło z rozdzielaczem na dwa obiegi i z jedną pompą
tomekb skomentował(a) tomekb wpis na blogu w Ogrzewania podłogowe
Tak na szybko udało się poskręcać dwa rozwiązania pierwsze jest oparte na sprzęgle z rozdzielaczem a drugie bufor z rozdzielaczem , w buforze można dodatkowo zamontować 3 grzałki elektr. na moim blogu opisywałem szczegółowo to rozwiązanie . -
Sprzęgło z rozdzielaczem na dwa obiegi i z jedną pompą
tomekb skomentował(a) tomekb wpis na blogu w Ogrzewania podłogowe
Witam , mogło by być coś takiego, oczywiście przy zastosowaniu dodatkowych zaworów zwrotnych za godzinkę postaram się mieć to skręcone . -
Sprawne sterowanie grup pompowych ze sprzęgłem dla TERMET
tomekb odpowiedział(a) na SianeKS temat w Instalacje CO i CWU
Dzień dobry, w załączniku przesyłam parę materiałów, w twoim przypadku proponuję przerobić pramix G na pramix S , dokupić dwa siłowniki do tego np. sterownik I2 z firmy Tech , nastawiasz dwie różne krzywe lub wybierasz temperaturę zasilania i wszystko może działać z apki . Sama przeróbka pramixa jest bardzo prosta , mogę dobrać Ci odpowiednie elementy elementy dla tego rozwiązania tak aby zamienić na grupę z siłownikiem. Tam są zastosowane zawory 3d ESBE 1" pasujący siłownik to np. ARA 561 . Jak coś to zapraszam do kontaktu 606217981. DUOTERM.pdf PRAMIX T.pdf PRIMAX G.pdf PRIMAX S.pdf -
Sprzęgło z rozdzielaczem na dwa obiegi i z jedną pompą
tomekb skomentował(a) tomekb wpis na blogu w Ogrzewania podłogowe
Chyba teraz wiem o co Ci chodzi, jutro jak będę miał chwilę to coś na szybko skręcimy do pokazania -
Sprzęgło z rozdzielaczem na dwa obiegi i z jedną pompą
tomekb skomentował(a) tomekb wpis na blogu w Ogrzewania podłogowe
Cześć , jak dobrze Cię zrozumiałem to przy buforze nie potrzebujesz sprzęgła , a grupy spinasz na rozdzielaczu , np takim jak dwa przykłady poniżej zewnątrz wygląda tak jak sprzęgło rozdzielacz ale wewnątrz zasilanie z powrotem jest oddzielone . -
Wpięcie wymiennika płytowego w instalację
tomekb odpowiedział(a) na ldonut temat w Instalacje CO i CWU
Witam , podaj trochę więcej szczegółów , takich jak powierzchnia budynku , jaka technologia budowy , najlepiej jakie jest zapotrzebowanie na ciepło , to wtedy na pewno ktoś pomoże . 🙂 -
Zależy ile obwodów potrzeba , najlepiej dzwoń na 606 217 981 lub pisz priv . Zrobimy specjalną ofertę dla użytkownika infoogrzewanie . :) 😀
-
To teraz już wiesz do kogo masz pisać 🙂 jak coś będzie potrzebne : )
-
-
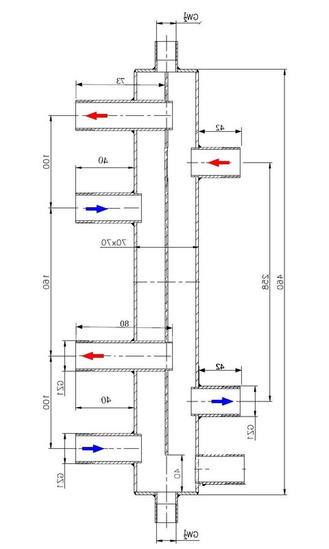
Witam , jak będziesz zainteresowany to mogę Ci wykonać rozdzielacze ze specjalnie wydłużonymi pod twój wymiar nyplami do podłączenia rury Pex . Czyli np. przycinasz sobie na jeden wymiar wszystkie rury podajesz że potrzebujesz nyple aby miały od belki 10cm długości i takie robimy , zaletą tego jest to, że nie masz żadnych dodatkowych połączeń . pozdrawiam Tomekb. ps. jak znajdę gdzieś zdjęcie to wrzucę potem , bo ostatnio komuś robiłem podobny .
-
Wycena poszła na Priv . Pozdrawiam Tomekb
-
Hej , pytałem z ciekawości kolegę bo montuje Panasonica i jest taka ,ale czas oczekiwania to 6miesięcy , pisał mi, że teraz schodzą mu dopiero zamówienia z lutego 🙂
-
Napełnienie instalacji ogrzewania podłogowego wodą
tomekb odpowiedział(a) na Uzytkownik2 temat w Instalacje CO i CWU
Witam serdecznie jest na to nawet norma PN-93C-04607 , niestety nie mogę jej tutaj wkleić ze względów licencji , ale z takich ważnych informacji, to obowiązuje ona w instalacja w których źródło ciepła wynosi powyżej 25 Kw , instalację jeśli nie używamy żadnych ,,inhibitorów" napełnia się wodą o poniżej 6,5 PH tak aby w instalacji utrzymywała się na poziomie 8 do 9,5 PH ( instalacje ze stali i żeliwa) 8do 9 PH w instalacjach CU i mieszanych , oraz 8 do 8,5 w instalacjach z grzejnikami aluminium. Ogólnie mało kto tego przestrzega . 🙂 Pozdrawiam Tomekb . -
Obieg wody w układzie CO a dodatkowa grzałka elektryczna
tomekb odpowiedział(a) na polokokt temat w Instalacje CO i CWU
Witam, jak takie coś potrzebujesz zrobić i ma to u Ciebie ekonomiczne uzasadnienie to lepszym rozwiązaniem będzie sprzęgło z osobną pompą, lub jakiś niewielki bufor, mam parę instalatorów dla których robimy takie sprzęgła i ich klienci są zadowoleni ... ale z tego co zaobserwowali to lepiej, aby grzałka miała osobny czujnik i sterownik. Dużo lepiej to działa i grzałka ,,nie taktuje" 🙂 . Na moim bloku, który jest TUTAJ na forum, możesz sobie też zobaczyć bufor ze sprzęgłem 50 litrowy , w którym są zamontowane 3 grzałki. I też to fajnie pracuje pod względem hydraulicznym, ekonomicznie wychodzi jeszcze drożej od gazu , ale jak nie masz co zrobić z nadwyżką prądu to jak najbardziej się sprawdza no i dodatkowo jest jakaś alternatywa . pozdrawiam Tomekb 🙂
