RedEd Opublikowano 1 Lutego 2013 #851 Opublikowano 1 Lutego 2013 Witam @szwedii jeśli chcesz indywidualnego rozwiązania to porozmawiaj z kolegą @robogaz on zbudował sterownik do swojego tłoka myślę że przebudowanie układu dla twoich potrzeb będzie realne kwestia do dogadania jakie warunki- trzeba rozrysować schemat pracy (jeśli kolega @robogaz się zgodzi), jeśli albo raczej kiedy zrozumiesz jak chciałbyś aby twoje ogrzewanie pracowało w każdym sterowaniu znajdziesz coś co mogłoby pracować inaczej, najlepsze było by sterowanie na plc ale ceny możesz nie znieść no i jeszcze oprogramowanie do tych bardziej zaawansowanych układów to też kasa spora, a jeszcze trzeba umieć to zaprogramować (jeśli ktoś zrobi "rdzeń" programu to reszta nie będzie już tak skomplikowana, pozostanie tylko wyszukanie ew błędów) pozdrawiam RedEd ps posiadam taki na zbyciu/testów http://www.pwkey.eu/...ta&st=rk-2001w4
artur Opublikowano 1 Lutego 2013 #852 Opublikowano 1 Lutego 2013 @szwedi Zobacz wątek http://forum.info-og.../page__st__20�� Guitar jeśli się nie mylę do sterowania ma Auratona 1111 dokładnie rozrysował nawet schemat instalacji i co jak jest sterowane może ten się nada.
maestro23 Opublikowano 1 Lutego 2013 #853 Opublikowano 1 Lutego 2013 Witam. Tak do tej pory rozciąłem kociołek zamierzam jeszcze wyciąć górę aby mieć dobry dostęp do wymienników,a w te miejsce wstawić klapę. amator14 nie ma w obliczeniach góry bo nie będzie tam wody. Z tego co wiem,to w DS komora załadowcza nie wlicza się do powierzchni kotła. A ja myślę wyłożyć ją tylko szamotem i nie odbudowywać płaszcza wodnego. Przemek nie wiem dokładnie, ale 9KW może być dla mnie za mały. Teraz mam ok 120m2 do ogrzania a na dole przydałoby się dołożyć jeszcze żeberek, bo jak mało się pali w kuchni to jest tam zimno. Można jeszcze dołożyć grzejnik na dole w sieni. Może niedokładnie opisałem dom :ma wymiary 12mx10m,piwnica-suterena(bardziej użytkowa niż mieszkalna) nad ziemią,parter i dach(strop ocieplony tylko wiórkami+podłoga. Dom szybko się wyziębia: teraz palę w Zębcu S1wk 14Kw z dospawanym płaszczem który teraz ma 1,5m2 powierzchni i nie radzi sobie. Wiem,że DS to inna konstrukcja, dlatego nie chciałem tego kotła naprawiać, tylko przerobić go na coś lepszego. Wiem ,że te kanały są szerokie i do tego dwa takie same i tu obawiam się braku ciągu. Nie dałoby się tego problemu rozwiązać w inny sposób np. przez ustawienie w ostatnim kanale na środku ścianki z szamotu, zawirowywacze.??Bo praktycznie to przerabiając łatwiej zbudować kocioł od podstaw niż go pociąć(całkowicie). Z tego co widać to przepalone były boki paleniska nad rusztem,nie było co spawać reszta wygląda w miarę. Kocioł ok.10 lat był użytkowany palone wszystkim węgiel, drzewo, trociny(mokre i to pewnie przyczyna awarii) i kolega kupił następny taki sam u producenta Już myślałem,że nie uda mi się wysłać tego posta pare razy próbowałem,ale chyba u mnie coś komputer szwankuje
szwedii Opublikowano 2 Lutego 2013 #854 Opublikowano 2 Lutego 2013 Witam ponownie. Dzieki za odzew. Artur wpadłem na to forum poczytam na spokojnie, gość kumaty na maxa, tylko mały problem, ja z tym wszystkim to za bardzo za pan brat nie jestem wiec szukam czegoś gotowego co by dało rade. Reded no w sumie jak ma to wszystko smigać to juz w łebetku powoli ukłdam. Tak jak pisałem kotłownia oparta na Przemokowym kotle i buforze,podłogówka na całości. Podłogówka sterowana na podstawie pogodówki,bez obniżania tem w pomieszczeniach, grzanie ciągłe. Kocioł bez modulacji mocy, ma smigać na maxa i jak najwydajniej ładować bufor. Ładowanie bez żadnych priorytetów, ładuje bufor i w tym samym czasie jest rozbior na CO i CWU. Tu pompka do doładowania na maxa. I tu bym chciał to jakos spiąć ze sterownikiem tzn. wraz ze złapaniem doświadczenia i przyówarzeniu że np. grawitacyjnie mogę naładowac bufor do 70*C wtedy aby pociągnąć wyżej włącza sie pompka i tu chyba musi byc to jeszcze zgrane z czujnikiem tem. na jakiejs wysokosci bufora. Tu nie problem bo PRZEMO mi takze bufor sklada i przewidzielismy takie cosik. Mozna recznie zalaczac pomke ale po co do kotlowni co chwile zagladac. Dalej, temp. w buforze 90*C pomka stop. Kociol z wentylem i tu sam sie bije z myslami, uzywać go cały czas czy tylko do rozpalania i dalej na podstawie nastawy temp. spalin niech się wlącza i wyłacza. Przykładowo ustawiamy temp. spalin na 180-200*C i jak jest ciag naturalny i pociagnie co by sie rozchjcowalo do tej tem to wentyl stoi jak nie to wentyl ON i tak w kołko. Jak ogarnac ewentualne wygaszanie kotla przy osiagnieciu chcianej temp w buforze. Czy opierac sie na sterowaniku i czujniku w buforze czy może na doświadzeniu i wiedzy ile potzreba wpakowac do kotla drewna lub wegla co by naladowac bufor.Sama podłogówka nie powinna byc kłopotliwa bo mysle ze tu pogodowka i mieszajacy zawór 3D zalatwi sprawe. Zostaje ogarniecia pracy bufora, kotła i komina.Hmmm masło maślane ale powoli mysle dojdziemy do ładu składu. Przemo kuruj się i trzymaj się ciepło(nie pij wiśniówki :D ) POZDRO
amator14 Opublikowano 2 Lutego 2013 #855 Opublikowano 2 Lutego 2013 Mogę pochwalić się kawałkiem kotła,jest już prawie cała część ogniowo spalinowa ,brak płaszcza zewnętrznego ale dzięki temu można jeszcze coś pokombinować.
mjokerm Opublikowano 2 Lutego 2013 #856 Opublikowano 2 Lutego 2013 Ja swojego kociołka zamierzam dostosować do 9-10kw DS. http://forum.info-og..._60#entry141837 Z tego co podał Przemek to u mnie przy szerokości komory (po wyłożeniu szamotem 3cm z boków i z tyłu) 24cm i długości komory 40cm pierwszy kanał wychodziłby 3cm. Po postawieniu ścianki pozostaje zbyt duża powierzchnia rusztu bo 31x24=744 a powinno coś ok 400cm2 czyli prawie 2x za dużo. I teraz mam pytanie do jakiej wysokości przyjmuje się warstwę żaru? Bo np. można zmniejszyć przez dostawienie klinów z szamotu po bokach na dole komory, ale to jeszcze przymało.
przemyslaw2ar Opublikowano 3 Lutego 2013 Autor #857 Opublikowano 3 Lutego 2013 kol. tu nie chodzi o to twoje nieszczęsne przewężenie choć różnie z tym może być. Warstwę żaru ustala wysokość przegrody i zwykle jest to kilka cm ponad grodź. Powierzchnię rusztu możesz zmienić zawęzając ją po bokach klinami jak na którymś obrazku wcześniej.
przemyslaw2ar Opublikowano 3 Lutego 2013 Autor #858 Opublikowano 3 Lutego 2013 Mogę pochwalić się kawałkiem kotła,jest już prawie cała część ogniowo spalinowa ,brak płaszcza zewnętrznego ale dzięki temu można jeszcze coś pokombinować. Będąc szczery to jakoś nie przemawia dla mnie ta konstrukcja ale mogę niemieć racji albowiem górniaki to nie moja działka
przemyslaw2ar Opublikowano 3 Lutego 2013 Autor #859 Opublikowano 3 Lutego 2013 Witam. Tak do tej pory rozciąłem kociołek zamierzam jeszcze wyciąć górę aby mieć dobry dostęp do wymienników,a w te miejsce wstawić klapę. amator14 nie ma w obliczeniach góry bo nie będzie tam wody. Z tego co wiem,to w DS komora załadowcza nie wlicza się do powierzchni kotła. A ja myślę wyłożyć ją tylko szamotem i nie odbudowywać płaszcza wodnego. Przemek nie wiem dokładnie, ale 9KW może być dla mnie za mały. Teraz mam ok 120m2 do ogrzania a na dole przydałoby się dołożyć jeszcze ..... Widzisz zanim zabrałeś się za cięcie trzeba było wszystko skrupulatnie zaplanować,pomierzyć, policzyć a tak to się chłopie napracujesz a efekt wcale nie musi cię zadowolić.Samo cięcie tego kotła bez plazmy to rzecz wręcz niebezpieczna (znam to z autopsji) a i wiele po wycięciu góry nie zostanie :) Zakładając je wszystkie prace wykonasz sam to czy nie prościej było zrobić to od podstaw i porządnie. Ja wiem że sam korpus to wcale nie jest taka straszna robota mając już gotowe drzwiczki i inne tego typu pierdoły. Płaszcz wodny wokoł szamotu bym dał chociaż jakiś cieniutki (1cm) co pozwoli na chłodzenie korpusu i brak odksztalceń. Wiele się nie będę rozpisywał albowiem jeszcze nie czuję się na tyle silny ;) ... a może po prostu wszystko w tym temacie już jest opisane tyle że wcześniej (warto go przekopać od podstaw i zdobyć trochę teorii) Pozdrawiam
artur Opublikowano 3 Lutego 2013 #860 Opublikowano 3 Lutego 2013 Nie wiem czy to juz było tu na forum ale znalazłem coś ciekawego.Może warto spróbować.Chodzi mi przede wszystkim o kotły z bardzo dużą komorą załadowczą: http://www.gulland.c...gy/boiler.htm�� Przepuście to przez tłumacza a zdziwicie się ile można z tego wynalazku wyciągnąć i jakim minimalnym kosztem. :D :D :D
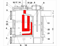
mjokerm Opublikowano 3 Lutego 2013 #861 Opublikowano 3 Lutego 2013 @ przemysław2ar Te 3 cm to mi wyszły z obliczeń które podałeś dla objętości kanału dopalającego dla 10kw czyli 3,2l, a z tego przy mojej aktualnej szerokości 24cm i odległości od palnika do poziomego wymiennika wyszedł 3cm kanał. To przewężenie ma też 3cm ale tam kocioł ma ok 31cm więc pole powierzchni jest większe. chodzi mi czy jako kanał dopalający bierze się pow uwagę tą odległość, którą ja wziąłem (od palnika do poziomego wymiennika) czy tylko od palnika do końca szamotu czy jakoś inaczej? czerwone - szamot zółte - PW Wg tego co podałeś to przystosowując 10kw do mojego kociołka powierzchnia palnika wyszła 100cm2 a powierzchnia kanału dolapalającego 72cm. Dobrze kombinuje czy coś namieszałem.
mjokerm Opublikowano 5 Lutego 2013 #862 Opublikowano 5 Lutego 2013 @amator14 Kolego nie pchaj się w GS jak nie musisz, mam coś takiego i muszę się z tym męczyć. Dobry DS (takie robi kolega przemek) przy jednym pełnym załadunku węgla wytrzymuje ok doby, a drewna 2x na dobę i nie trzeba za każdym razem rozpalać. niektórzy powiększają komorę zasypową do góry (tylko załadunku od góry jest taka możliwość) i do ruchomych ruszt montują dodatkowy napęd i można tak jechać 2 doby. W zależności od opalu to można jechać bez wygaszania kilka dni a nawet tygodni. W dobrym DS jest odpowiednio dobrane palenisko (że nie pali się zbyt duża objętość opału) aby można było modulować mocą w dużym zakresie z dobrą sprawnością. Oczywiście komora załadunkowa powinna być wysoka (aby rzadko dokładać - 1 - 2 razy na dobę) rozszerzająca się ku dołowi, aby nie zakleszczał się opał (szczególnie węgiel). W DS pali się tylko niewielka warstwa opału na dole a gazy powstałe przechodzą przez żar, i dalej przez dyszę szamotową gdzie podawane jest PW i następuje wymieszanie (gazów z powietrzem) i dopalenie w kanale dopalającym (którym są dobre do tego warunki - dookoła rozgrzany szamot) W GS nie ma tak dobrych warunków i niestety nie dopala się wszytko (co generuje straty), bo nie ma takiej możliwości.
przemyslaw2ar Opublikowano 5 Lutego 2013 Autor #863 Opublikowano 5 Lutego 2013 Taki GS jak robi @amator może być też dobrym DS tylko trzeba wspawać dysze powietrzne w miejsce dopalacza którego nie ma ale może w przyszłości być :) Wspawaj tylko te dysze ok 12cm nad rusztem i 4cm od tylnej ściany oraz dołóż szyny prowadzące dla cegieł ok 8cm od tylnej ściany tak aby w przyszłości mieć możliwość budowy pionowej grodzi ;)
mjokerm Opublikowano 5 Lutego 2013 #864 Opublikowano 5 Lutego 2013 A jeszcze zrobić ściankę z płaszczem wodnym, dając za nią miejsce i mocowania dla szamotu (komory dopalającej), i dolny prześwit na palnik szamotowy oraz zamocować klapkę obieg GS/DS - wtedy byłby ciekawy kociołek do wyboru GS lub DS - super rozwiązanie dla kogoś niezdecydowanego.
RedEd Opublikowano 5 Lutego 2013 #865 Opublikowano 5 Lutego 2013 Witam nie radze robić gs i ds jako jednej konstrukcji, lepiej niech to będzie ds, a co do wygaszania ja mam kocioł ok 14 kw prototyp z Przemkiem wymyślony tzn ja miałem wytyczne a Przemek to wyliczył, narysował, wyciął i pospawał, kocioł nie gaśnie bo ma ruszt automatyczny sterowany przez sterownik bruli podgląd tu: https://esterownik.pl/remote/2295 , teraz myślę nad budową podajnika zamiast mechanicznego rusztu i zastanawiam się nad budową kotła od nowa, po pierwsze za duży, a po drugie trudno w nim będzie "upchać" palnik, jeśli ktoś buduje kocioł niech najpierw dobrze wszystko przemyśli a mimo tego i tak będzie coś poprawiał, najważniejsze to moc maksymalną jaką kocioł ma generować trzeba znać, wygrzany obiekt potrzebuje tylko uzupełniać straty, a robienie/kupno kotła na "zapas" to nieporozumienie, jeśli za duży kocioł już jest i palenie cykliczne to huśtawka temperatur w obiekcie rozwiązaniem może być bufor i jakoś to będzie, moc kotła to głównie palenisko i jego wymiary no i paliwo podstawowe ale to ostatnie każdy wybiera sam, pozdrawiam RedEd
mjokerm Opublikowano 5 Lutego 2013 #866 Opublikowano 5 Lutego 2013 Jednak przy poziomym wymienniku nie da się poszaleć z wysokością komory zasypowej.
amator14 Opublikowano 5 Lutego 2013 #867 Opublikowano 5 Lutego 2013 Taki GS jak robi @amator może być też dobrym DS tylko trzeba wspawać dysze powietrzne w miejsce dopalacza którego nie ma ale może w przyszłości być :) Wspawaj tylko te dysze ok 12cm nad rusztem i 4cm od tylnej ściany oraz dołóż szyny prowadzące dla cegieł ok 8cm od tylnej ściany tak aby w przyszłości mieć możliwość budowy pionowej grodzi ;) Dysze już są wspawane post 855 na bocznej ścianie z tyłu rura 1cal niestety 18 cm nad rusztem i 6 cm od tylnej ściany,dołoży się szamot i będzi lepiej..Widoczne tuleje służą jako przewiązka dwu ścian oraz ewentualne mocowanie przegrody pionowej,tulaja jest wstępnie nawiercona,wystarcy przewiercić do końca,nagwintować i mam po dwa mocowania z każdej strony.Aktualnie zastanawiam się gdzie wspawać króciec 2 cale który ma robic za dławicę do PW z boku a nie w drzwiczkach,jak przygotuję aktualny rysunek to wkleję.
amator14 Opublikowano 5 Lutego 2013 #868 Opublikowano 5 Lutego 2013 Wklejam rysunkitego co jest i z pytaniem o wymiary x i y usytuowania dyszy PW.Druga sprawa to czy przyklejenie szamotu na zaprawę do stali jest pewne,co z różną rozszerzalnościa. gs 18 ada.kocioł własny 1dwg Model (1).pdf gs 18 ada.kocioł własny 2 dwg Model (1).pdf
przemyslaw2ar Opublikowano 5 Lutego 2013 Autor #869 Opublikowano 5 Lutego 2013 PW dla DS niżej i tak jak wspominałem daj prowadnice dla cegieł (prostek 3cm) lub płyt szamotowych wówczas jak Ci się znudzi gs włożysz płyty uszczelnisz gliną lub mączką szam. i jazda na DS Cegły możesz przykleić na klej ognioodporny z zachowaniem luzu (zapałki) lub po prostu postaw te dolne warstwy lużno raczej do góry nie polecą ;) a do ew. następnych wspawaj podtrzymki(prowadnice)
mjokerm Opublikowano 6 Lutego 2013 #870 Opublikowano 6 Lutego 2013 @redred Czy masz problem z popiołem na ruszcie (stosując to automatyczne odpopielanie)? Czy to automatyczne odpopielanie jest na tyle skuteczne, że tylko uzupełniasz opał (w komorze załadunkowej) i usuwasz popiół z popielnika?
RedEd Opublikowano 6 Lutego 2013 #871 Opublikowano 6 Lutego 2013 Witam jest aż za bardzo skuteczne i ograniczyłem pracę jego do 2-3 s a na wizualizacji pokazuje pracę 5s, tylko ruszta mam zrobione obrotowe poczytaj temat "kocioł własnego pomysłu" na ostatnich stronach jest konstrukcja rusztu co prawda już zamontowanego ale powinieneś zorientować się jak to jest zbudowane, jednak takie ruszta potrafią za dużo opału "uzupełnić" i wtedy jest problem z przykapcaniem z tego powodu myślę nad podajnikiem i ew sprzedażą tego kotła i budową nowego typowo pod podajnik chyba tłokowy oczywiście w "p2ar" pozdrawiam RedEd
przemyslaw2ar Opublikowano 8 Lutego 2013 Autor #872 Opublikowano 8 Lutego 2013 Witam Ostatnio kilkakrotnie miałem zapytanie o to jak wygląda spalanie W MOIM kotle w zwiazku z tym postanowiłem podzielić się tą informacją ogólnie aby nie pisać tej samej treści co kilka dni. Więc tak, wygląd zewnętrzny kotła sobie tu odpuszczę albowiem niema czym się chwalić ;) Ja wychodzę z założenia że kocioł służy do grzania a nie do podziwiania więc mój kociołek jest szat zewnętrznych pozbawiony (choć czasem mi go szkoda że taki niedopieszczony) , niemniej jednak wracając do tematu. Ja w swoim kotle palę głównie drewnem i biomasą czyli ściślej mówiąc spalam takiego przekładańca suchych zrzyn tartacznych i wilgotnych trocin Wiele czytam o smole w komorze zasypowej i tym podobnym problemom które są mi zupełnie obce za sprawą braku płaszcza w komorze zasypowej, w związku z czym komora pozostaje sucha Jak widać część paleniskowa jest wyłożona szamotem a widoczna sadza to efekt palenia trocinami. Wymiennik p dwóch tygodniach ciągłego palenia jest suchutki a nawet niema zbyt dużo nagaru. A popiół to szary pył Piszę to albowiem chcę tym samym pokazać że da się spalać nawet wilgotną biomasę bez syfu w kotle i kominie lecz trzeba palić ze stałym nadmiarem powietrza i w odpowiednio wysokiej temperaturze Kolejną sprawą którą chciałbym poruszyć to DTR kotłów które robię aby nie robić z tego wielkiej konspiry postanowiłem opublikować je na forum . Wiadomo że kotły robione są na indywidualne zamówienie więc należy traktować to jako kartę informacyjną albowiem niektóre z wymiarów mogą w rzeczywistości się zmienić po wprowadzeniu ustalonych zmian z zamawiającym DTR kotła INO.pdf DTR kotła KDS i KDS-MAXX.pdf DTR kotła KUS III.pdf DTR kotła KUS.pdf WARUNKI SZCZEGÓŁOWE UMOWY.pdf
kono Opublikowano 8 Lutego 2013 #873 Opublikowano 8 Lutego 2013 INO sie bierz do roboty bo kocioł chce a czas leci ;) hahahah
przemyslaw2ar Opublikowano 8 Lutego 2013 Autor #874 Opublikowano 8 Lutego 2013 He he no nie ty jeden. Byłem wyłączony przez blisko 2 tyg. albowiem rozwaliła mnie choroba , teraz pomału zaczynam nabierać rozpędu albowiem terminy gonią a @panczo88 pływa w piwnicy . Ale panowie bez obaw dam radę ;)
sambor Opublikowano 8 Lutego 2013 #875 Opublikowano 8 Lutego 2013 Brak w DTR-ce zalecanego układu połączeń wraz z zabezpieczeniem przed niską temp powrotu - do poprawy!. Pozdrawiam
Rekomendowane odpowiedzi
Zarchiwizowany
Ten temat przebywa obecnie w archiwum. Dodawanie nowych odpowiedzi zostało zablokowane.