Gonzo19 Opublikowano 13 Lutego 2019 #26 Opublikowano 13 Lutego 2019 chodzi o to, aby wymusić jakiś minimalny obieg wody w grzejnikach w trakcie rozgrzewania pieca do temp. pełnego otwarcia 3D. Poza tym, siłownik z zaworem 3D lepiej kontroluje temp. zadaną w porównaniu z zaworem termostatycznym no i ma możliwość ustawienia pewnego stopnia maksymalnego zamknięcia. 3D termostatyczny, nie ma takiej opcji.
gmaj22 Opublikowano 13 Lutego 2019 #27 Opublikowano 13 Lutego 2019 O co chodziło z tymi "trzema grzybami" wyjaśniłem wcześniej - taki skrót myślowy :) Pompa "kotłowo / CWU" to pompa nr 1 , czyli pompa CWU mogaca speniac też funkcję pompy kotłowej przy ciągłej pracy (pierwsze dwa grzyby :) Pompa "grzejnikowa" to pompa nr 2 obiegu CO, zapewniająca wraz z 3D ochronę powrotu (trzeci grzyb :) Pozwoliłem sobie na zmianę szkicu i zaznaczenie dwóch opcji. w każdej z nich grzanie CWU bez zmian. Pierwsza (naszkicowana na czarno) to obniżenie temperatury na grzejniki - moze o to chodzi autorowi? Wtedy zawór zwrotny na powrocie a nie za pompą. Druga (zaznaczona na pomarańczowo) to przeniesienie całego zespołu pompowego przed 3D - wtedy zawór zwrotny za pompę CO. Mamy ochronę powrotu , ale stałą temperaturę na grzejnikach.( o komfort dbają głowice termostatyczne ) Minimalne otwarcie to tak jak wyjaśnił kolega przede mną, żeby zachować obieg po zamknięciu mieszacza. Taki wybieg stosuje się, gdy np. sterownik nie zapewnia obnizania temperatury za zaworem po dogrzaniu pomieszczenia. Zamyka wtedy najczęściej mieszacz i zatrzymuje pompę. Jeśli sterownik ma opcję maksymalnego otwarcia, nie ma zaś minimalnego zamkniecia, mozemy to "oszukać", przestawiając siłownik na zaworze tak, żeby "0" siłownika odpowiadało np. 20% otwarciu (niektóre adaptery napedów mają taką mozliwość). |Trzeba jednak wtedy pamiętać, aby nastawą ograniczyć maksymalne otwarcie zaworu do 75-80% - fizycznie otwierać się bedzie na 100%. Trzeba tylko pamietać, że właściwe otwarcie mieszacza to będzie wartość pokazywana plus 20%.. Pompa za mieszaczem oczywiście w pracy ciagłej. No i pamiętać nalezy, że "auto-lato" zamykając mieszacz, nie zamknie go całkowicie. Mimo zatrzymania pomp, moze dojsć do przebijania temperatury.
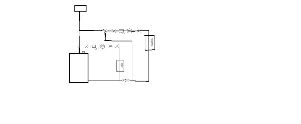
Karol11 Opublikowano 13 Lutego 2019 Autor #28 Opublikowano 13 Lutego 2019 Źle się wyraziłem trochę ale już pokazuję schemacik tego o czym myślałem. To zdaje się dosyć prosty "klasyczny" układ czy jest lepszy od poprzedniej koncepcji? Właśnie wracam od kuzyna który niedawno zakładał piec na pellet i okazało się że ma właśnie taki układ, który namalowałem chwilę przed wizytą. Generalnie był zadowolony z działania ale o szczegóły temperatury powrotu itp nie pytałem nawet bo średnio ogarniał temat. Swoją drogą nie znalazłem tam ani jednego filtra, żadnego zaworu bezpieczeństwa, a zbiornik wyrównawczy (otwarty) podłączony był bądź z jednego pionu (za pompą) bądź (bardziej prawdopodobne z powrotu grzejników). Ciekawa sprawa z tym zbiornikiem ale ja zostaje przy koncepcji układu zamkniętego żeby to jednak po bożemu było.
gmaj22 Opublikowano 13 Lutego 2019 #29 Opublikowano 13 Lutego 2019 Tak jak narysowałeś, może być, pod warunkiem, że powrót cwu wepniesz jako pierwszy od kotła i przeniesiesz zawór zwrotny za pompą CO na powrót. Tak jak zaznaczyłem powyżej w opcji pierwszej - to dokładnie to samo. I najwazniejsze: nie naśladuj kuzyna w kwestii zabezpieczenia kotła. Bo ma niebezpiecznie.
Karol11 Opublikowano 13 Lutego 2019 Autor #30 Opublikowano 13 Lutego 2019 No właśnie tak patrze i patrze i tak właśnie doszedłem że to prawie to samo. Zwrotny rozumiem że jest po to aby cwu nie dmuchała poprzez 3D w grzejniki? a ten za pompą CO jest wtedy chyba zbędny tak? Zaraz się zabiorę za porządny malunek całości. Dzięki pany za pomoc Taki krótki opis dla tej koncepcji, żebym wiedział co w domu powiedzieć. Skorygujcie jeśli się mylę W takim układzie zawór będzie sterował temperaturą grzejników natomiast temperatura powrotu będzie wynikowa i niekoniecznie taka jaką wymarzył sobie producent ale i tak wyższa niż bez zaworu. Poza tym okresowo będzie podbijana przez cwu. A jeśli żadna pompa nie działa bo jest lato a cwu już gotowa, zaworek przymyka grzejniki a otwiera mocno krótki obieg i jest szansa na grawitacje a jeśli nie to wstawiam tu osobną pompkę.
gmaj22 Opublikowano 13 Lutego 2019 #31 Opublikowano 13 Lutego 2019 Tak mniej wiecej: Pamiiętaj, że wtedy ochrona powrotu tylko jako CWU+mieszajaca. Tu obniżasz temperaturę na grzejniki.
zaworek Opublikowano 13 Lutego 2019 #32 Opublikowano 13 Lutego 2019 Ja myślę że przy tym ostatnim schemacie aby była ochrona powrotu pompa CWU musi chodzić cały czas co zwiększa zużycie opału a po drugie woda w zasobniku ma temp.wody w kotłe i nie sądzę aby to było dobre rozwiązanie dla kotła na pellet,to już lepiej dołożyć pompę kotłową=mamy ochronę powrotu i kontrolę nad temp.wody w zasobniku.Natomiast obieg grzejnikowy z zaw.3D nie przyczynia się do ochrony powrotu a wręcz go utrudnia bo schłodzona woda wraca z instalacji do kotła. Nie tanim ale pewnym rozwiązaniem dla kotła na pellet jest zastosowanie sprzęgła hydraulicznego.Za sprzęgłem zaw.3D w funkcji obniżenia temp.na grzejniki
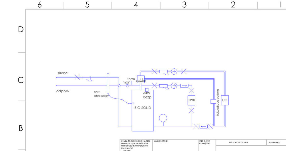
Karol11 Opublikowano 13 Lutego 2019 Autor #33 Opublikowano 13 Lutego 2019 Myślę nad pompą kotłową na nitce powrotu z zaworu 3D bądź zostawieniu miejsca na nią (czy wtedy oprócz zwrotnego który dołożyliśmy na dole trzeba też go założyć za pompą CO?). Co do utrudniania ochrony przez zawór 3D to nie rozumiem. Przecież jak na piecu ustawię więcej ale zawór nie wszystko puści na grzejniki to pozostała część wraca na piec podnosząc temp powrotu. No teraz to pojechałeś z tym schematem, wiem że na cieple się nie oszczędza ale na dodatkowe tysiące to już mi rodzina nie pójdzie. Chociaż zdaję sobie sprawę że to pewnie było by dobre rozwiązanie Puki co trzymam się tańszych rozwiązań i na podstawie wcześniejszych postów spłodziłem taki schemacik. Nie wiem tylko czy jeśli temp powrotu będzie zbyt niska to mogę w zaznaczonym miejscu dołożyć pompkę i czy wtedy dać zaw zwrotny za pompą CO. Reszta jest bez zmian tylko ładniej.
gmaj22 Opublikowano 13 Lutego 2019 #34 Opublikowano 13 Lutego 2019 Skoncentrowałem sie wyłącznie na schematach, które podał autor. Zwróciłem uwagę na plusy i minusy poszczególnych rozwiazań. Faktem jest, że należałoby lepiej zadbać o powrót.
MoskiTe Opublikowano 13 Lutego 2019 #35 Opublikowano 13 Lutego 2019 Karol11 Przy takim schemacie to będzie kostnica na powrocie
Gonzo19 Opublikowano 13 Lutego 2019 #36 Opublikowano 13 Lutego 2019 2 godziny temu, gmaj22 napisał: Pompa "kotłowo / CWU" to pompa nr 1 , czyli pompa CWU mogaca speniac też funkcję pompy kotłowej przy ciągłej pracy (pierwsze dwa grzyby :) ja nie zakładam, że pompa cwu pracuje 24/7 tylko wtedy jak trzeba nagrzać cwu, dlatego nie traktuje jej jako pompy kotłowej Godzinę temu, Karol11 napisał: wcześniejszych postów spłodziłem taki schemacik. oj, te płodzenie zostaw innym :) @MoskiTe ma rację, 28 minut temu, MoskiTe napisał: Przy takim schemacie to będzie kostnica na powrocie
Karol11 Opublikowano 13 Lutego 2019 Autor #37 Opublikowano 13 Lutego 2019 45 minut temu, MoskiTe napisał: Karol11 Przy takim schemacie to będzie kostnica na powrocie Nawet jeśli sterownik bądź jakiś tam termostat będzie w razie potrzeby odpalał pompkę wstawioną w to puste miejsce? Jeśli twierdzicie że ta pompka nie uratuje sytuacji no to może taka?
Karol11 Opublikowano 14 Lutego 2019 Autor #38 Opublikowano 14 Lutego 2019 Nowy dzień i nowy schemat, sory że tak męczę ale czuje że "dochodzę". Nie różni się wiele od poprzedniego prócz pompy kotłowej która miała by załatwić zimny powrót, sterowana ze sterownika bo zdaje się że jest taka opcja bądź osobno jakimś termostatem
Gonzo19 Opublikowano 14 Lutego 2019 #39 Opublikowano 14 Lutego 2019 1 minutę temu, Karol11 napisał: Nowy dzień i nowy schemat, sory że tak męczę ale czuje że "dochodzę". odpuść ten dzień i poczekaj do następnego i zacznij od nowa. Ales sie uczepił tego 3D na wyjściu z kotła. A z tym "dochodzeniem", to ja bym sie tak nie chwalił :D
sambor Opublikowano 14 Lutego 2019 #41 Opublikowano 14 Lutego 2019 17 minut temu, Karol11 napisał: Nowy dzień i nowy schemat, Dobry schemat,
user2018 Opublikowano 14 Lutego 2019 #42 Opublikowano 14 Lutego 2019 A mnie zastanawia ten kocioł 36 kW na pellet. policzyłeś zapotrzebowanie na ciepło i tyle ci wyszło, czy może ta moc wzięła się z kotła miałowego, które się inaczej liczy?
Karol11 Opublikowano 14 Lutego 2019 Autor #43 Opublikowano 14 Lutego 2019 Z doborem mocy wygląda to tak. mieszkanie ma 2 piętra nic nie ocieplone około 250m +bojler cwu aktualnie piec miałowy 29kW. Dobierając nowy kocioł (kierowałem się różnymi kalkulatorami internetowymi i przeleciałem mnóstwo tematów) wyszło mi z tego że 30kW pelletowego by wystarczyło. Ale ten konkretny bio solid pasuje mi idealnie do kotłowni (brak konieczności skuwania i obniżania podłogi) a najbliższe moce tego modelu to 25 lub 36kW.
sambor Opublikowano 14 Lutego 2019 #44 Opublikowano 14 Lutego 2019 Jak masz powstawiane okna to więcej niż 100W/m2 nie potrzeba , wg mnie to ten 25kW będzie za duży,
gmaj22 Opublikowano 14 Lutego 2019 #45 Opublikowano 14 Lutego 2019 I 25 kW jest za dużo przy umiarkowanej zimie. Zakładając 25 kW dla -20 C, to jest ok. 12 kW dla O C. Czyli modulując palnikiem od 30 %, czyli 7 kW, ogarnie w zasadzie całą zimę. Ten 36 kW będzie się moim zdaniem często odstawiał/gasił i ponownie odpalał.
Karol11 Opublikowano 14 Lutego 2019 Autor #46 Opublikowano 14 Lutego 2019 Co do 36 wiem że macie racje trzeba będzie to jednak zmienić. Najchętniej dałbym 30 (więcej prac budowlanych) ale 25 to trochę się boję że w mroźną zimę nie da rady. Dokładnie sprawdziłem metraż i jest 220 m ale dom stary z kratówki nieocieplony rurska grube i jeszcze bojler.
gmaj22 Opublikowano 14 Lutego 2019 #47 Opublikowano 14 Lutego 2019 Grube rurska jak zaizolowane to raczej w tym przypadku zaleta :) Przyjrzałem sie temu SAS-owi i jest to kocioł z palnikiem rynnowym i podajnikiem slimakowym. Nie wiem, jakie są Twoje plany, ale za 13 tysięcy to można już kupić typowy kocioł peletowy albo na ekogroszek 5-klasy czy Ekodesign wraz z osprzętem. Ten kocioł to moim zdaniem wybieg producenta, żeby sprzedać kocioł starszego typu jako kocioł na biomasę. Podobna "sztuczka" jak sprzedawanie kotła C.O. jako "podgrzewacza CWU ;)
Karol11 Opublikowano 14 Lutego 2019 Autor #48 Opublikowano 14 Lutego 2019 W opisach zachwycają się bardzo tym palnikiem, ja zbytnio nie mam porównania piec na pellet widziałem na żywo 1 raz :). Dojrzałem do zmiany mocy pieca to mogę zmienić i sam model tylko na jaki. Czytałem opisy wielu kotłów i ten jakoś przykul moją uwagę jako wszystkomający ale popatrzę jeszcze na inne uparty nie jestem. Ekodesign i 5 klasa musi być będę próbował jakieś dofinansowanie wywalczyć.
MoskiTe Opublikowano 15 Lutego 2019 #49 Opublikowano 15 Lutego 2019 Schemat 4D jest elegancki i będzie pracował ekstra a ten 3d będą problemy i poprawy to już wychodzi przy tych kombinacjach 4d tańsza opcja i dogrzanym powrotem A nie jakieś 3d na wylocie potem kombinuj z powrotem z jakimś ATV idąc tym tropem to za chwile jakiś laddomat wyjdzie albo sprzęgło :-) a można to załatwić 4d i ewentualnie dołożeniem pompy kotłowej, a jeżeli sterownik tego nie obsłuży to jakiś najprostszy za 60zł tylko pod pompę kotłową
Gonzo19 Opublikowano 15 Lutego 2019 #50 Opublikowano 15 Lutego 2019 21 minut temu, MoskiTe napisał: 3d na wylocie potem kombinuj z powrotem z jakimś ATV idąc tym tropem to za chwile jakiś laddomat wyjdzie albo sprzęgło tez sie z tym zgadzam. w tym wypadku 3D na wylocie to jakieś nieporozumienie, no ale autor uparcie chce dawać 3D na wylocie.
Rekomendowane odpowiedzi
Zarchiwizowany
Ten temat przebywa obecnie w archiwum. Dodawanie nowych odpowiedzi zostało zablokowane.