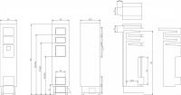
meping Opublikowano 25 Maja 2014 #1 Opublikowano 25 Maja 2014 Witam, Parę miechów temu zacząłem zawracać tyłek pytaniami dotyczącymi zagadnień konstrukcyjnych kotła, planując skonstruować kocioł dopasowany do planowanej przeze mnie instalacji. Mam do ogrzania dom ca 130m2 (dobrze ocieplony), instalacja ma być z buforem ciepła. Zdecydowałem się na kocioł GS, gdyż palony od góry wydaje się prostszy w obsłudze od DS (mam nadzieję, że tym stwierdzeniem nie wywołam kolejnej wojny religijnej ;) ). Na rysunku klapki PG i PW (z kierownicą) zostały zaznaczone na razie mocno schematycznie, brak króćców, tym niemniej chciałbym poznać opinię kolegów na jego temat. Aby było łatwiej ocenić konstrukcję dopiszę, że powierzchnia płaszcza wodnego wyniosła ca 1,5m2, ruszt żeliwny, sztabkowy o wymiarach 26,5 x 20 cm. Wysokość zasypu do dołu drzwiczek załadunkowych - 60 cm. Izolacja - wełna 3cm. Aha. Na pytanie, czemu tak duży kocioł, odpowiadam - chciałem mniejszej mocy, ale z wysokim zasypem i dużym wymiennikiem. Myślałem, że powierzchnia wyjdzie mniejsza i sam się zdziwiłem jak dziś w końcu policzyłem. Nie widzę w tym jednak problemu, bo bufor i tak powinien ustabilizować jego pracę na wysokiej sprawności. Oto rysunki. Liczę na konstruktywną krytykę.
mac65 Opublikowano 26 Maja 2014 #2 Opublikowano 26 Maja 2014 Wszystko fajnie poza tym że ten kocioł przypomina miałowca z Pleszewa a to jak będzie się sprawował to już zależy od paliwa jakie ma w nim być stosowane . Pewne Twoje założenia są błędne bo komora spalania powinna mieć okołom 60 cm wysokości ale to nie znaczy że można ją całą zasypać paliwem bo to złe podejście do tematu .Powierzchnie wymiennika można spokojnie ograniczyć stosując półki bez płaszcza wodnego natomiast samo palenisko dobrze jest wyłożyć ceramika do wysokości zasypu co poprawi warunki do spalania izolując samo palenisko od zimnego płaszcza wodnego . Ceramika w palenisku zapobiega odkładaniu sie smoły na płaszczu kotła i chociaż smoła się wypala to i tak pozostawia na płaszczu syf który trzeba skrobać . To są ogólne moje uwagi co do założeń konstrukcyjnych ale i tak zdecyduje o tym paliwo jakie będziesz stosował w tym kotle .
meping Opublikowano 26 Maja 2014 Autor #3 Opublikowano 26 Maja 2014 Witam, Dziękuję za Twoją opinię. Co do paliwa, to będzie pędzony węglem sortymentu orzech II lub I z Juliusza-Kazimierza lub Wesołej (taki węgiel mają na składzie któremu ufam). Miału nie przewiduję. Wiem, że część komory spalania trzeba przeznaczyć na rozpałkę ;). Wyłożenie komory spalania to dobry pomysł, niestety będzie wymagał zmiany wszystkich rysunków, ale co robić ;). Jeśli możesz, to napisz jakiej grubości cegły najlepiej zastosować? Jeszcze zauważyłem, że nie zaznaczyłem, iż kocioł ma być bez nawiewu z miarkownikiem.
mac65 Opublikowano 26 Maja 2014 #4 Opublikowano 26 Maja 2014 Osobiście używałem szamotu 6x12x24 + tarcza diamentowa i można z tego robić cuda panie . Co do opału to mam również KJ OII ale nie ma co sypać więcej jak 35-40 cm to już max . Jak chcesz większy zasyp to tylko OI bo grubszego od góry nie rozpalisz a i do tego trzeba sporo drewna .Szamot 6 cm od ściany paleniska to dłuższe nagrzewanie kotła ale za to w palenisku piekło a dzięki temu kocioł czyściutki a temperatura w samym palenisku na prawdę potworna aż trudno wytrzymać przy otwartych drzwiczkach zasypowych . Ruszt żeliwny to dobry pomysł ale nie warto na nim oszczędzać lepiej belkowy bo tabliczka to góra dwa sezony . Z dmuchawy bym tak do końca nie rezygnował bo nawet przy węglu KJ zdarzało mi się że bez dmuchawy nie dało się palić ale to zazwyczaj przy sierpniowych zakupach tego paliwa (suchy węgiel się nie pali ) a i miał kociołek przy niej łykną jak było go w nadmiarze .
meping Opublikowano 27 Maja 2014 Autor #5 Opublikowano 27 Maja 2014 Myślałem o szamocie 3 cm, ze względu na to, że zależy mi na niewielkich wymiarach zewnętrznych kotła. Taki jeszcze da się spokojnie ustawić w przyszłej kotłowni. 6 cm to już będę musiał przemyśleć. Ruszt przewidziałem belkowy, tak jak piszesz. Nad dmuchawą się zastanawiałem, ale koliduje ona z klapką PW, chyba żeby przewidzieć jakiś patent do jej blokowania w pozycji zamkniętej... Być może wspawam kołnierz do jej montażu jako opcja na przyszłość.
sambor Opublikowano 27 Maja 2014 #6 Opublikowano 27 Maja 2014 Szamot 3 cm wystarczy, to "standardowy" wymiar wykładziny szamotowej w kotle, natomiast jak robisz wszystko od podstaw to dmuchawę daj z boku lub nawet z tyłu. Dodatkowo powinna być możliwość zasłonięcia wlotu dmuchawy do kotła - aby uniknąć "lewego" powietrza.
SONY23 Opublikowano 27 Maja 2014 #7 Opublikowano 27 Maja 2014 Nad dmuchawą się zastanawiałem, ale koliduje ona z klapką PW, chyba żeby przewidzieć jakiś patent do jej blokowania w pozycji zamkniętej... Być może wspawam kołnierz do jej montażu jako opcja na przyszłość. Nie żebym namawiał do dmuchawy ale miałem bodajże przez dwa sezony ten cud techniki w swoim śmieciuchu. Sterownik boleckiego miał bardzo dokładne ustawienie obrotów tego sprzętu. Od 1-100 stopni, plus minimalne obroty startu. Zmierzam do tego, że mozna ją było spokojnie tak ustawić, że nawet nieszczelne drzwiczki zarówno górne jak i dolne nie powodowały dymienia na kotłownię a wkład w kominie miał okrągły przekrój o średnicy 13 cm. i paliło się wystarczająco mocno, żeby ogrzać dom. Więc jeśli się chce to można ale jak powiedziałem nikogo do tego nie namawiam...
meping Opublikowano 27 Maja 2014 Autor #8 Opublikowano 27 Maja 2014 Szamot 3 cm wystarczy, to "standardowy" wymiar wykładziny szamotowej w kotle, natomiast jak robisz wszystko od podstaw to dmuchawę daj z boku lub nawet z tyłu. Dodatkowo powinna być możliwość zasłonięcia wlotu dmuchawy do kotła - aby uniknąć "lewego" powietrza. Jeśli będzie dmuchawa, to z tyłu. Klapka miarkownika z boku. Nie chcę nic na drzwiczkach popielnika, ani łańcuszka przeszkadzającego w otwarciu drzwiczek zasypowych tudzież wyczystki. Nad dmuchawą zastanawiałem się też jako opcją "TURBO" przy rozpalaniu ;) P.S. SONY, ja nie chcę zrobić śmieciucha, tylko porządny kocioł GS do cyklicznego ładowania bufora :P
SONY23 Opublikowano 27 Maja 2014 #9 Opublikowano 27 Maja 2014 Do bufora to może jednak DS byłby lepszy... ^_^ Właściwie to na 100%. Sorry,że mieszam CI w głowie. Zapomnij...
meping Opublikowano 27 Maja 2014 Autor #10 Opublikowano 27 Maja 2014 To nie mieszanie. Wybór górniaka to w moim przypadku chłodna kalkulacja. Po pierwsze warunki lokalowe - mam miejsce na słupek o niezbyt dużej podstawie. Na tyle niewielkiej, iż poszerzenie kotła o 12cm, tak aby zmieścić w nim szamotki 6cm grubości stanowiło już problem. Długością też nie poszaleję. W zasadzie muszę mieć kocioł z wymiennikiem na górze. Jeśli dolniak, to coś na kształt ksgw zgoda, ale wtedy w zasadzie nie ma jak umieścić dopalaczy szamotowych na wyjściu z palnika. Przynajmniej ja nie wymyśliłem ;). Po drugie decyzja o górniaku z wysokim zasypem zamiast dolniaka została podyktowana sposobem eksploatacji jednego i drugiego rodzaju kotła: dolniak - wracam do domu wieczorem, albo kisi opał (bufor pełen) albo wygasł. Jeśli to pierwsze, to kicha, bo nie po to mam bufor, aby kisić wungiel. Jeśli to drugie, to czyszczę popielnik i ruszt, rozpalam (już jestem brudny), myję łapy, po jakimś czasie idę zasypać komorę (znów brudny), potem co kilka godzin rusztuję (ruchomy ruszt upraszcza, ale jednak). Nie chce mi się. Górniak z wysokim zasypem - wracam z roboty, kocioł wypalił się około południa i wystygł. Czyszczę popielnik (jak trzeba) sypię wungiel, dokładam drewna na rozpałkę, może rozpałkę w płynie, podpalam wychodzę. Po dojściu do wprawy po kilku godzinach jak mi się będzie chciało to przykręcę PW i wrócę następnego dnia po pracy. Na tą chwilę tak to widzę. Może zdanie zmienię. W każdym razie kocioł będzie oszczędnie zrobiony z blachy 4mm, więc majątku nie będzie kosztował, a dowiem się, czy mi pasuje. Na pewno będzie to wygodniejsze i tańsze w eksploatacji od kominka który po dekadzie mi już bokiem wychodzi :/ .
SONY23 Opublikowano 27 Maja 2014 #11 Opublikowano 27 Maja 2014 Może rzeczywiście ma to jakiś sens. Jeżeli się da pomyśl o takiej konstrukcji, którą będziesz mógł po jakimś czasie ( jak Ci się znudzi) przerobić na dolniaka. Np. u góry komory załadowczej wlot do wymiennika od strony tylnej ściany, żeby mozna było łatwo postawić szamotową przegrodę i jakaś mufa wspawana w płaszcz kotła na ewentualne PW za przegrodę. Może jakieś kawałki kontownika na ściankach do mocowania ewentualnej przegrody. W końcu to żaden koszt i przy paleniu od góry raczej nie zaszkodzi a może się kiedyś przydać...
meping Opublikowano 27 Maja 2014 Autor #12 Opublikowano 27 Maja 2014 Wlot do wymiennika jest od tylnej ściany, ale raczej nie będę przerabiał. Jak już, to wyspawam kolejny kociołek ;) . Stal to nie majątek w porównaniu z całością instalacji... Tak jak pisałem, warunki lokalowe są takie, że mogę mieć dobrego górniaka, lub przeciętnego dolniaka. Wybór padł na to pierwsze.
przemyslaw2ar Opublikowano 27 Maja 2014 #13 Opublikowano 27 Maja 2014 Niedawno dostałem wyzwanie od jednego z forumowiczów muratora na stworzenie GS-a Jest to mój pierwszy więc nie wiem czy to tak powinno być zrobione ale doświadczenie mi podpowiada że powinno być ok. Moc max. 14kW Powierzchnia całkowita płaszcza wew.1,52m2 Powierzchnia czynna wymiennika (nie osłonięta szamotem) 1,23m2 Poj. wodna 48l ruszt 20x26cm PW podawane na lini zasypu (listwy napowietrzające pod cegłami) oraz na ujściu z kom. dopalającej do wymiennika na ścianie frontowej PP podawane pod ruszt naturalnie (MCI Bolecki) Zamieszczam fotki z tel. może coś zaczerpniesz do swojego projektu
mac65 Opublikowano 28 Maja 2014 #14 Opublikowano 28 Maja 2014 Przemo nie wiem czy takie były wymogi inwestora czy to twój pomysł z tą komora szamotowa aż pod sklepienie ale z moich osobistych doświadczeń nad tuningiem górniaka tak wysoki szamot to zbyteczna kombinacja i raczej szkodzi niż pomaga . objawy są takie że kocioł bardzo długo startuje i w początkowej fazie dymi niemiłosiernie mimo iż jest rozpalany od góry . Sytuacja sie poprawia dopiero po nagrzaniu się szamotu nad linią ognia a przy tej grubości okładzin będzie to trwało naprawdę długo . Kolejna sprawa to szamot poniżej linii ognia czyli praktycznie od wysokości zasypu aż do rusztu bo tak powinien być umiejscowiony . Jeżeli paliwem ma być węgiel to nie mogą to być lużne wkładki(cegły) ale cała konstrukcja powinna być ze sobą zespolona na zaprawę aby stanowiła monolit a to pozwoli trochę dłużej wytrzymać całej okładzinie . Dolniak czy górniak przy opalaniu węglem zawsze powstaje smoła z warstwy węgla na styku z żarem i tu przydaje się właśnie szamot w palenisku bo nie pozwala osadzać się tej smole na ścianach paleniska a jedynie smoła ładnie się wypala . Zęby nie było tak cacy to są i wady takiego rozwiązania a mianowicie szlakowanie i szkliwienie popiołu a dzieje się tak przy stosowaniu marnej jakości węgla czy domieszek z miałem a raczej tym co on w sobie zgromadzi w czasie drogi od producenta do odbiorcy . Mam nadzieję że te moje uwagi na coś się przydadzą . Pozdrawiam .
HP79 Opublikowano 28 Maja 2014 #15 Opublikowano 28 Maja 2014 Moje subiektywne zdanie - na podstawie użytkowania GS z zabudową szamotową: - szamot na całości - wada, - luźno wstawione płytki - wada, - brak KPW - wada - wąskie drzwiczki popielnikowe - wada (ja bym chciał szufladę) - ruszt żeliwny - zaleta - osobne drzwiczki popielnikowe i rusztowe - zaleta. Część wad będzie nieistotna przy współpracy z buforem - wydaje mi się, że kocioł przeznaczony raczej do gwałtownego spalania. W "normalnym" GS zostawiłbym tylko szczelną ścianę szamotową z tyłu, do samej góry, z mocnym zwężeniem. Można tam podać gorące PW z popielnika (kanały w szamocie, wyloty PW niekoniecznie na samej górze, mogą się zaczynać niżej) lub zastosować KPW. Zrobiłbym też tak samo, gdyby spalanie miało być kroczące (głębsza komora, gorąca tylna ściana + gorące PW + klocek/zapalnik jak u kol. Łysego).
meping Opublikowano 28 Maja 2014 Autor #16 Opublikowano 28 Maja 2014 Mi również się wydaje, że szamot na całości, albo na górze komory spalania i jego brak na dole nie jest najlepszym pomysłem. Wydaje się, że lepiej sprawdzi się szamot na w części zasypowej. Natomiast zastanawiam się, czy Przemkowy patent na doprowadzenie PW poprzez listwę na wysokości góry zsypu nie jest godzien naśladowania (zamiast typowej KPW). Co o nim sądzicie? Ciekawe jest też to okienko do podglądania płomienia jak mniemam. Zastanawiam się również z jakiego jest szkła aby wytrzymało temperaturę i czy nie będzie zachodzić sadzą.
przemyslaw2ar Opublikowano 28 Maja 2014 #17 Opublikowano 28 Maja 2014 Kocioł robiony ściśle wg. wytycznych przyszłego użytkownika z tym że zamiast tego okienka w drzwiach wymiennika miało być szkło ale uznałem to za zbędne albowiem szkło w tym miejscu zajdzie sadzą/smołą już w pierwszym dniu użytkowania :) @HP79 -szamot nie jest na całości a od linii zasypu - płytki muszą być luźno inaczej pękają , te z tyłu są w wyprofilowanych prowadnicach więc na pewno się to nie rozpadnie -zamiast KPW są po obu stronach profile z otworami PW a kolejne jest nad drzwiczkami załadowczymi (używane tylko w razie potrzeby) - drzwi popielnika mają 16x22cm więc większych raczej nie potrzeba - ruszt żeliwny daję zawsze ;) Pierwotnie kocioł miał być niższy, a jego moc nie miała przekraczać 10kW ale że "w trakcie jedzenia apetyt rośnie " to inwestor wprowadził kilka zmian min. miejsce na komorę dopalającą i podwyższenie wysokości zasypu i tym samym kocioł urósł w górę. Ja tam nie jestem zwolennikiem GS jak i palenia byle czego w kotle, a kocioł ten opalany będzie węglem 33 i 34 także nie sądzę aby się z niego mocno kopciło tym bardziej że przyszły użytkownik (starszy Pan) ma już opanowane spalanie od góry i raczej wiedział czego potrzebuje. @meping To okienko jest ze szkła kominkowego samoczyszczącego (ale to tylko teoria albowiem jeżeli nie będzie tam dostatecznie wys.temp. to zachodzi sadzą jak zwykłe szkło kominkowe) zwykła szyba się nie nadaje albowiem pęka po kilku minutach ;) Szamot w kom.zał. powodował by szybsze rozpalanie wsadu jak również zwiększyłby tendencję do szlakowania a przy spalaniu węgla zbyt wysoka temp. złoża jest tak samo niewskazana jak i zbyt niska albowiem węgiel ma się zgazowywać w warstwie kilku cm a następnie gaz powinien się spalać w optymalnych warunkach. Gdybym dał szamot od dołu to odgazowywanie następowało by zbyt gwałtownie i część gazów uszła by kominem nie zdążywszy się dopalić, to tylko moje obserwacje gdy jeszcze u teściów próbowałem okiełznać Camino. Górniaki to jak dotąd nie moja dziedzina ale są wręcz niezbędne do spalania wysokokalorycznego węgla więc pochyliłem się nad nim :)
meping Opublikowano 28 Maja 2014 Autor #18 Opublikowano 28 Maja 2014 Pierwotnie kocioł miał być niższy, a jego moc nie miała przekraczać 10kW ale że "w trakcie jedzenia apetyt rośnie " to inwestor wprowadził kilka zmian min. miejsce na komorę dopalającą i podwyższenie wysokości zasypu i tym samym kocioł urósł w górę. A, to taka sama historia jak u mnie :D Szamot w kom.zał. powodował by szybsze rozpalanie wsadu jak również zwiększyłby tendencję do szlakowania a przy spalaniu węgla zbyt wysoka temp. złoża jest tak samo niewskazana jak i zbyt niska albowiem węgiel ma się zgazowywać w warstwie kilku cm a następnie gaz powinien się spalać w optymalnych warunkach. Gdybym dał szamot od dołu to odgazowywanie następowało by zbyt gwałtownie i część gazów uszła by kominem nie zdążywszy się dopalić, to tylko moje obserwacje gdy jeszcze u teściów próbowałem okiełznać Camino. Górniaki to jak dotąd nie moja dziedzina ale są wręcz niezbędne do spalania wysokokalorycznego węgla więc pochyliłem się nad nim :) Wydaje mi się, iż ze względu na to, że schodzenie żaru w dół zasypu i tak trwa dłuższy czas, nawet jeśli gazowanie będzie intensywniejsze, to wystarczy zwiększyć ilość PW, aby dopalić gazy. Zobaczymy co pokaże praktyka.
przemyslaw2ar Opublikowano 28 Maja 2014 #19 Opublikowano 28 Maja 2014 Z PW trzeba się obchodzić z wyczuciem albowiem minimalna zmiana może powodować duże zmiany, niekiedy wręcz PW jest w ogóle niewskazane a w innym wypadku wskazane, wiele zależy od typu paliwa, granulacji a nawet od kształtu komory dopalającej
Gość lysy1l Opublikowano 28 Maja 2014 #20 Opublikowano 28 Maja 2014 Przemku, jaka jest maksymalna pojemność komory zasypowej?
przemyslaw2ar Opublikowano 28 Maja 2014 #21 Opublikowano 28 Maja 2014 Nie pamiętam dokładnie ale wymiary od rusztu do linii szamotu to 21cm szer. 26cm głęb. i ok 55cm wys. a wys. do sklepienia ok 100cm
Gość lysy1l Opublikowano 29 Maja 2014 #22 Opublikowano 29 Maja 2014 Około 30 litrów, czyli w zależności od granulacji 20-25 kg węgla. To już jest przyzwoicie.
Pieklorz Opublikowano 29 Maja 2014 #23 Opublikowano 29 Maja 2014 Meping Jak dmuchawa, to nie dawaj jej tylko tak od sobie na dole... Sprowadź ją profilem z góry kotła. To ma znaczenie i to duże. Jak będzie pracowac dmuchawa, to możesz zrobić tak,że od popielnika przez płaszcz wodny rurka, po zewnątrz profil w górę nad zasyp i znowu rurka przez płaszcz wodny nad zasyp. Inna metoda to przy sprowadzaniu profilem powietrza z góry kotła, mniejszy profil dajesz w połowie wysokości, tak, aby dojść do dolnej ramki drzwiczek zasypowych i wchodzisz od dołu w rame drzwiczek, na górze zaspawujesz taki daszek od strony paleniska robiąc blaszkę z 3-4otworkami powietrza wtórnego. Na tym profilu dochodzącym pod drzwiczki możesz dorobić regulację mechaniczną ilości powietrza (np. jakąś śrubą z gałką.... Jak myślisz o miarkowniku oraz ewentualnie dmuchawie, to polecam zestaw Boleckiego, o którym częściowo wspomniał sony oraz Przemek SPR-11ka jako sterownik główny. MCI jako miarkownik płynnie regulujący położeniem klapki współpracujący z SPR-11 lub dmuchawka np. WPa117 z klapką do tego stera coś z silnikiem EBM/EMC Na priva wyślę linka do zestawu SPR-11 z MCI Jakbyś miał jakieś pytania odnośnie mojego opisu- odpowiem w wolnej chwili.
toomm Opublikowano 2 Czerwca 2014 #24 Opublikowano 2 Czerwca 2014 Wydaje mi się, iż ze względu na to, że schodzenie żaru w dół zasypu i tak trwa dłuższy czas, nawet jeśli gazowanie będzie intensywniejsze, to wystarczy zwiększyć ilość PW, aby dopalić gazy. Zobaczymy co pokaże praktyka. Witam .. Ten kociołek ja zamówiłem dla mojego taty ,, na pewno nie jest w 100% idealny ale o wiele lepszy niż te produkowane masowo ,, Myśle , że pociągnie 16 h na zasypie ale to pokażą dopiero testy po których opisze na fm lub tu swoje spostrzeżenia . będzie ogrzewał dom 115 m2 w tym bufor (bojler) 330 litrowy , instalacja wymuszona z wymiennikiem rurowym (układ zamknięty 2 bary) i układ otwarty na bufor i kotłownie , kotłownia w innym budynku niż dom ogrzewany . do meping jeśli dojdzie do takiej sytuacji gdzie produkcja gazów jest zbyt duża i podając odpowiednio większą porcje PW w na pewno zostanie przekroczona temperatura ( od ustawionej) czynnika ogrzewanego a w tedy to już nie jest ekonomiczne rozwiązanie , , produkcja węglowodorów musi być w miarę opanowana do zadanej temperatury czynnika , czyli nie większa lub nie mniejsza (co jest mniejszym złem) , wiadomo że w 100% domowym sposobem i bez odpowiednich przyżądów pomiarowych nie jesteśmy w stanie dokładnie ustawić ale po "omacku" coś sie tam da . Mnie pomoże w tym celu termometr spalin który widać na kociołku (zdjęcie nr 1i 2 ) . Bufor pomoże ale tylko wtedy kiedy jest rozładowany i się nagrzewa ale w końcu się nagrzewa i "dupa" zbita a palić trzeba dalej :) . odnośnie twojego kociołka (przekrój) zastanów się nad podniesieniem komory "dopalającej) tej nad zasypem gdyż ogień podczas odgazowania jest raczej "duży" bo gdy "łan" ognia wędrujący do góry napotka przeszkodę odłoży się na niej w postaci sadzy . ot to tyle . Pozdrawiam
sambor Opublikowano 2 Czerwca 2014 #25 Opublikowano 2 Czerwca 2014 Wielkość bufora to trzeba dobrze dobrać, inaczej przy tak dużym czasie palenia - 16h można zagotować instalację - przy buforze 1000l i różnicy temp 60C potrzeba ok 75kWh a jak podzielimy to na 16h to raptem moc potrzebna do ogrzania bufora 1000l wychodzi 4,5kW a przy 330l to tylko 1,5kW. Jeżeli są ograniczenia w odbiorze mocy np termostaty na grzejnikach to warto zmniejszyć czas palenia np do 8h a następnie ciepło "ciągnąć" z bufora. Pozdr.
Rekomendowane odpowiedzi
Zarchiwizowany
Ten temat przebywa obecnie w archiwum. Dodawanie nowych odpowiedzi zostało zablokowane.