IGNOROWANY
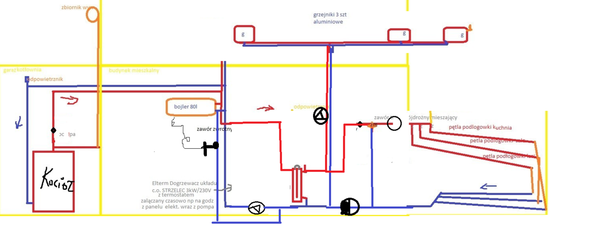
Jak dodać dogrzewacz wody do obecnej instalacji - proszę pomóżcie !
- Odpowiedz w tym temacie
- Ignoruj ten temat
- Czy wyłączyć ignorowanie tego tematu?
- Dodaj nowy temat
-
Ostatnio przeglądający 0 użytkowników
- Brak zarejestrowanych użytkowników przeglądających tę stronę.
-
Podobna zawartość
-
- 4 odpowiedzi
- 511 wyświetleń
-
- 47 odpowiedzi
- 8203 wyświetleń
-
Bufor 500 L + kocioł v klasa na paliwo stałe. Jak poprawić instalacje po firmie hydraulicznej?
Przez tsa78,
- 2 odpowiedzi
- 276 wyświetleń
-
- 11 odpowiedzi
- 842 wyświetleń
-
Vaillant Vuw Atmotec Plus 200/3-5 - jak dolać wody? Jeden zawór bez pętli napełniającej
Przez xBlady,
- 4 odpowiedzi
- 521 wyświetleń
-

Rekomendowane odpowiedzi
Dołącz do dyskusji
Możesz dodać zawartość już teraz a zarejestrować się później. Jeśli posiadasz już konto, zaloguj się aby dodać zawartość za jego pomocą.
Uwaga: Twój wpis zanim będzie widoczny, będzie wymagał zatwierdzenia moderatora.