stapio854 Opublikowano 14 Sierpnia 2017 Autor #51 Opublikowano 14 Sierpnia 2017 I znowu sytuacja że w sklepie gościu mi powiedział że musi mieć wysokość podnoszenia min. 6m chyba muszę zmienić sklep.Może jeszcze pomożecie w wyborze głowicy termostatycznej z zaworem.W sumie to biorę pod uwagę jakiś model z DANFOSS-a np.:https://www.ceneo.pl/8461905lub firmy honeywell np. :https://foxhurt.pl/akcesoria-grzejnikowe-glowice-termostatyczne-glowica-termostatyczna-honeywell-t1002-m30x1-5Jaki byście proponowali sprawdzony zestaw termostatu grzejnikowego.
sambor Opublikowano 14 Sierpnia 2017 #52 Opublikowano 14 Sierpnia 2017 Obie firmy to jedna jakość i podobna cena, ale to co podałeś w ostatnim poście to same głowice, lepiej jest kupić komplet z zaworem, inaczej może być różnie. W poście #35 podawałeś dobry zestaw Danfossa.
stapio854 Opublikowano 14 Sierpnia 2017 Autor #53 Opublikowano 14 Sierpnia 2017 Tak wiem, kupię zestawy to tylko tak poglądowo podałem. Dzięki
stapio854 Opublikowano 16 Sierpnia 2017 Autor #54 Opublikowano 16 Sierpnia 2017 Witam ponownie Możecie doradzić mi jeszcze odnośnie układu c.o, będzie to układ otwarty a pytanie czy ten układ ma mniej więcej wyglądać tak: Przykład 1. Schemat ogólny podłączenia kotła typu SAS do instalacji c.o i c.w.u. w układzie otwartym z wymuszonym obiegiem wody oraz zaworem trójdrogowym 1 – kocioł SAS, 2 – otwarte naczynie wzbiorcze, 3 – zawór zwrotny, 4 – zawór różnicowy, 5 – pompa obiegowa c.o., 6 – zasobnik c.w.u., 7 – zawór trójdrogowy, 8 – pompa obiegowa c.o., 9 – obieg instalacji c.o., RW – rura wzbiorcza, RB – rura bezpieczeństwa, RO – rura odpowietrzająca, RP – rura przelewowa, RS – rura sygnalizacyjna lub tak Czy może jeszcze inaczej, może potrzebna jest druga pompa na układzie grzania CWU i czy potrzebny jest zawór zwrotny. Ogólnie to nie chcę koniecznie komplikować układu lecz jeżeli dla dobrej, sprawne i wydajnej instalacji będzie potrzeba czegoś dokupić i zamontować to niema problemu. Jeszcze jedna sprawa, jeśli będzie sama pompa bez zaworu różnicowego jako awaria dla pompy i stanie się tak że pompa się zepsuje ale napięcie będzie i kocioł będzie pracował dalej? Sory że tak dopytuję ale lepiej wiedzieć więcej przed robotą a później być z tej pracy zadowolonym.
sambor Opublikowano 16 Sierpnia 2017 #55 Opublikowano 16 Sierpnia 2017 Tylko ten ostatni rysunek z dodatkowym ZZ za pompą CO. Jak się boisz o brak zaworu różnicowego to weź pompę i przelej przez nią wodę - zobaczysz jakie są opory, woda przelatuje jakby nic w pompie nie było
stapio854 Opublikowano 16 Sierpnia 2017 Autor #56 Opublikowano 16 Sierpnia 2017 Dzięki więc będę robił jak na ostatnim schemacie Tylko ten zz jest przed pompą obiegową na CWU, pyt. 1 Właśnie tak ma być czy nie ma znaczenia, za czy przed? pyt. 2 Czy ta druga pompa właśnie na CWU to dobre rozwiązanie i w znaczny sposób poprawi pracę bojlera czy jest zbyteczna. pyt. 3 Drugi zawór ( przed / za) pompą na obiegu kotła a grzejnikami jest już zbędny? pyt. 4 Woda grzewcza po bojlerze ma być wpięta po, czy przed zaworem termostatycznym trójdrogowym.
Gość vmilo Opublikowano 16 Sierpnia 2017 #57 Opublikowano 16 Sierpnia 2017 ZZ lepiej jak są ZA pompami. Bez pompy CWU, woda użytkowa będzie osiągała temperaturę zbliżoną do temperatury CO. Jedna pompa -> jeden ZZ. Chyba, że pompa w singlu, to nie trzeba wcale. Powrót z baniaka ma być wpięty jako ostatni.
stapio854 Opublikowano 16 Sierpnia 2017 Autor #58 Opublikowano 16 Sierpnia 2017 Bez pompy osiągnie temperaturę zbliżoną do temp. wody w obiegu c.o ale czy czas nagrzewania wody nie będzie znacznie dłuższy? "Jedna pompa -> jeden ZZ" to znaczy że na każdej pompie musi być lub powinien być zawór zwrotny?
Rober528 Opublikowano 16 Sierpnia 2017 #59 Opublikowano 16 Sierpnia 2017 Moim zdaniem jedna pompa wystarczy przecież będzie wychodzić na cwu i co jaka zadana będzie na kotle. Np. 60c to 60c na cwu i co. Od wielkiej draki można założyć pompę cwu jakby czasem brakowało ciepłej wody,(raczej nie braknie) ale to już są jakieś koszty. Jak jest miejsce to taką pompę można zawsze dołożyć to nie taki problem. Ile osób będzie korzystać? Czym prostszy układ tym lepiej.
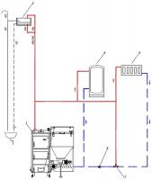
sambor Opublikowano 16 Sierpnia 2017 #60 Opublikowano 16 Sierpnia 2017 Powinno być tak jak na rys poniżej. Pompa do grzania CW powinna być, pozwala ona na lepsze wykorzystanie ciepła produkowanego przez kocioł i osiąganie żądanej temp CW . Przy bojlerze stojącym z wężownicą pompa jest obowiązkowa. Obie pompy 25/40 i nie ważne co trują w sklepie.
stapio854 Opublikowano 16 Sierpnia 2017 Autor #61 Opublikowano 16 Sierpnia 2017 Moim zdaniem jedna pompa wystarczy przecież będzie wychodzić na cwu i co jaka zadana będzie na kotle. Np. 60c to 60c na cwu i co. Od wielkiej draki można założyć pompę cwu jakby czasem brakowało ciepłej wody,(raczej nie braknie) ale to już są jakieś koszty. Jak jest miejsce to taką pompę można zawsze dołożyć to nie taki problem. Ile osób będzie korzystać? Czym prostszy układ tym lepiej.Całkowicie się z tobą zgadzam chcę właśnie w miarę prosty układ, ale wolę się upewnić.Teraz na starym kotle pompę miałem nad samym kotłem i dopiero po pompie rurki rozchodzą się na grzejniki i bojler. I to było dla mnie bardziej jednoznaczne że pompa wtłacza do tych poszczególnych układów i nie ma problemów. Tylko teraz doradzacie mi żeby zamontować pompę przed kotłem na wodzie powrotnej, oczywiście nie neguję tego umiejscowienia tylko czy pompa równie dobrze będzie zasilać gorącą wodą te układy? Następnym (kolejnym) dylematem to czy jak będę miał pompę na powrocie przed kotłem to zz za pompą ale przed wpiętym powrotem z bojlera do kolektora czy za tym wpięciem
stapio854 Opublikowano 16 Sierpnia 2017 Autor #62 Opublikowano 16 Sierpnia 2017 Powinno być tak jak na rys poniżej. Pompa do grzania CW powinna być, pozwala ona na lepsze wykorzystanie ciepła produkowanego przez kocioł i osiąganie żądanej temp CW . Przy bojlerze stojącym z wężownicą pompa jest obowiązkowa. Obie pompy 25/40 i nie ważne co trują w sklepie. No i super, tak właśnie mi się wydawało że będzie lepiej. Co prawda drożej ale jednak chyba bardziej efektywnie. Tym bardziej że sterownik tego slim-a obsługuje dwie pompy i nie powinno być problemu ze sterowaniem pomp.Nie wiem jeszcze gdzie wpiąć termometr z bojlera (gdzie go umiejscowić) do sterowania pompy. Narazie mam poziomy zbiornik 120l. i nie mam w nim króćca do czujnika temperatury. Nawet nie wiem czy te czujniki są wkręcanie w krućce żeby miały bezpośredni styk z wodą czy przypina się je do rur. Bardzo dziękuje wszystkim za pomoc
Rober528 Opublikowano 16 Sierpnia 2017 #63 Opublikowano 16 Sierpnia 2017 Mój przykład: pierwszy kocioł zwykły zasypowy jedna pompa na cały układ , bojler dwupłaszczowy 140l, instalacja miedż grzejniki aluminium N. Fl....da .Po zmianie kotła na podajnik tylko przełożyliśmy tę samą pompę na powrót przed kotłem i zrobiłem spinkę (baypass) zasilanie i powrotu kryzowany zaworem tak jak w instrukcji kotła jedna z opcji (zawór 3d lub 4d lub sprzęgło). wszystko chodziło super. To była pierwsza zima użytkowania. Zacząłem czytać fora i doszedłem do wniosku że przed kolejną zimą zamontuję zawór 4d i dwie pompy gdyż wtedy dopiero będzie wszystko super hiper, i tak zrobiłem. Z nadejściem ochłodzenie w pierwszym tygodniu zauważyłem większe spalanie opalu, ale pomyślałem że może to winna opału, kupiłem inny to samo. W styczniu zamontowałem , sterownik z" pidem "wtedy dopiero wyrażnie ujawniły się błędy w isntalacji. Po pierwsze brak obiegu kotłowego /zmontowałem pompę kotłową ( już miałem trzy pompy) Mało to pomogło sterownik zaczął modulować pracą ale spalanie wzrosło i to znacznie. Następnym problemem była praca cwu. Po uruchomieniu pompy były takie zaburzenia że sterownik nie wyrabiał i znowu spalanie opału. Było w porządku w nocy gdy cwu nie pracowało. efekt był taki po spędzonych kilkunastu tygodni przy sterowniku zdemontowałem go i pompę kotłową. A teraz przed nowym sezonem demontuję zawór 4d i wracam do starego układu z jedną pompą. Opisuję mój przypadek w innej instalacji może być inaczej, chociaż u mojego kuzyna ekipa na jesieni przerobiła instalację wraz z kotłem podajnikowym i zaworem 4d i w sterownik też nie pracuje w pidzie bo nie wyrabia. Na innym forum też są opisywane problemy z zaworami 4d i z pompami cwu .
sambor Opublikowano 16 Sierpnia 2017 #64 Opublikowano 16 Sierpnia 2017 Akurat zaw 4-d jest najgorszym rozwiązaniem dla większości instalacji I o tym piszemy na forum od kilku lat.
papasmurfek Opublikowano 21 Sierpnia 2017 #66 Opublikowano 21 Sierpnia 2017 Z powodu funkcji jaką spełnia.
stapio854 Opublikowano 21 Sierpnia 2017 Autor #67 Opublikowano 21 Sierpnia 2017 Wydaje mi się że ten układ z zaworem termostatycznym trzy drogowym to nic innego jak taki termostat jak w silniku samochodowym. Dopóki kocioł nie osiągnie odpowiedniej (w zależności jaki zawór kupimy i jaki ma termostat) temperatury to jest otwarty tylko mały układ czyli z kotła przez zawór na kocioł. W trakcie gdy temperatura na kotle rośnie i zbliża się do tej z termostatu przyjmijmy 55* termostat zaczyna otwierać powrót z wymienników (grzejniki, podłogówka) i w ten sposób zabezpieczamy kocioł przed dostaniem się do niego wody o zbyt niskiej temperaturze. Zawór ten ma głównie za zadanie zabezpieczyć kocioł przed tzw. korozją niskotemperaturową. Oczywiście jeśli temperatura będzie w dalszym ciągu rosła, to już zadanie sterowania temperaturą przejmuje sterownik z kotła. Bardzo proste rozwiązanie a zarazem powinno być bez awaryjne, nie ukrywam że bardzo mi się kojarzy z układem chłodzenia w samochodzie gdzie jest praktycznie bezobsługowe. Myślę że koledzy z forum w tej sprawie bardzo dobrze doradzają, po co komplikować sobie życie. Proste rozwiązania są w większości przypadków najlepsze.
krisgie Opublikowano 21 Sierpnia 2017 #68 Opublikowano 21 Sierpnia 2017 Jakby ktoś planował instalację i chciał zobaczyć układ z zaworem termostatycznym na powrocie z buforem i bez::
stapio854 Opublikowano 21 Sierpnia 2017 Autor #69 Opublikowano 21 Sierpnia 2017 Zawsze wiedziałem że pismo obrazkowe jest najlepsze ;)
pbk Opublikowano 22 Sierpnia 2017 #70 Opublikowano 22 Sierpnia 2017 Nadal nie wiem w czym 4D jest gorszy od 3D
sambor Opublikowano 22 Sierpnia 2017 #71 Opublikowano 22 Sierpnia 2017 Teoretycznie zaw 4-D powinien obniżać temp wody na odbiory a jednocześnie podwyższać temp powrotu na kocioł , a praktycznie robi tylko jedno albo obniża temp na odbiory albo podwyższa temp powrotu - obu rzeczy nie jest w stanie na raz przeprowadzić. A zaw 3-D robi tylko jedną funkcję albo obniża temp wody na odbiory albo podnosi temp na powrocie, ale robi to w pełnym zakresie i robi dobrze. Aby obniżyć temp wody na odbiory np na podłogówkę stosujemy zaw 3-D mieszający na zasilaniu , ale z drugiej strony aby podnieść temp wody powrotnej do kotła potrzebny jest drugi zaw 3-D i osobna pompa - więcej elementów, drożej ale pewnie . Niektórym zaw 4-D działa a większości nie. Zaw 3-D działa zawsze.
SUSPENSER Opublikowano 27 Sierpnia 2017 #72 Opublikowano 27 Sierpnia 2017 4D to "jednocześnie" robi przy okazji a głównie robi to pierwsze i w tym zakresie działa, ale wiadomo, że nie da się robić priorytetowo obu tych rzeczy na raz. Tak więc 4D działa jak 3D plus przy okazji mniej lub bardziej działa jego dodatkowa funkcja, ale na nią nie mamy wpływu chcąc żeby główne działanie było skuteczne. Przy podobnej cenie 3D i 4D wielu decyduje się na 4D i ja też nie widzę w czym 4D miałby być gorszy od 3D.
Pieklorz Opublikowano 27 Sierpnia 2017 #73 Opublikowano 27 Sierpnia 2017 Głównie chodzi o fachowe wykonanie, bo spitolic mozna wszystko, mniej się spitoli przy 3d... ale też można Przy 4d ważna średnica, odpowiednie łagodne kolana, krótka droga..... i tu wychodzimy z założenia ochrony powrotu i pilnujemy np. 45 na powrocie, wypadkowa obnizona względem kotła idzie na instalację, gdzie precyzyjniej regulujemy zaworami termostatycznymi przy grzejnikach 3d jak na zasilaniu, to dla ochrony powrotu powinien być za pompą jako rozdzielacz i podobnie regulujemy np. na powrót 45st.c a niższa wypadkowa względem kotła idzie sobie na grzejniki, gdzie precyzyjniej regulujemy termostatami grzejnikowymi Jest jeszcze dalej rozbudowana kwestia tj preferencji danego instalatora i dyskusja czy montujemy pompy na zasilaniu czy na powrocie.. to otwiera dalsze pole manewru. Generalnie chodzi o fachowca w budowie instalacji a nie majster-klepkę
shogunzlasa Opublikowano 27 Sierpnia 2017 #74 Opublikowano 27 Sierpnia 2017 Jeśli mamy zawór 3D i pompę w tej części układu - woda zawsze dostanie się tam gdzie chcemy realizując wyznaczony cel (podniesienie temp. powrotu lub obniżenie temp. zasilania). Instalacja z zaworem 4D wyposażona jest zazwyczaj też w jedną pompę w danej części układu (np. na zasilaniu CO) czyli pompujemy większą ilość wody w celu obniżenia temp. zasilania. Tym sposobem woda zapiernicza tam gdzie ma łatwiej (otwarty większy przepływ dla obniżenia temp. zasilania). Jeśli opór dla częsci podnoszenia temp. powrotu jest za duży - to nie będzie on realizowany prawidłowo (bo tam pompy nie ma która to działanie mogłaby wspomóc). Ogólnie zawór 4D wydaje się być troche przereklamowany - jeśli mamy grzejniki z termostatami - obniżenie temp. zasilania grzejników jest nawet szkodliwe (jeśli dobrane są na styk). Z kolei dogrzewanie powrotu zrealizuje kawał rurki wpuszczony w rurę powrotną (jeśli mówimy tu o kotle o w miarę stałej temperaturze) i termometr z podglądem.Można też zastosować pompę mieszającą na tanim sterowniku bądź termikach - włączy się gdy temp. spadnie poniżej zadanej. Opcji jest wiele...W celu ochrony kotła najlepszy jest termostatyczny zawór 3D - który za zadanie ma zawsze zapewnić minimalną temperaturę na powrocie - może się to przydać głównie gdy temperatura kotła mocno się zmienia (np. kocioł zasypowy).
Gość vmilo Opublikowano 28 Sierpnia 2017 #75 Opublikowano 28 Sierpnia 2017 Nikt jakoś nie gada, że 4D całkiem dobrze działa, gdy zasilanie CO jest wysokie. A posiadacze, nie dość że utrzymują na kotłach niskie temperatury, to jeszcze oczekują, że zawór zdziała cuda. A poza tym, najlepsze są instalacje proste. Czym mniej udziwnień tym lepiej.
Rekomendowane odpowiedzi
Zarchiwizowany
Ten temat przebywa obecnie w archiwum. Dodawanie nowych odpowiedzi zostało zablokowane.