HAN Opublikowano 6 Listopada 2013 #1 Opublikowano 6 Listopada 2013 Przedstawiam uproszczony sposób jak przerobić kocioł miałowy na kocioł DS (dolnego spalania)
HAN Opublikowano 6 Listopada 2013 Autor #2 Opublikowano 6 Listopada 2013 CD... Na razie testowanie dzięki wszytkim za porady i pomoc
SONY23 Opublikowano 7 Listopada 2013 #3 Opublikowano 7 Listopada 2013 Teść się też zreformuje jak przyjdzie za jakiś czas do Ciebie, żebys pomógł mu rozkuć komin, bo mu szczotka z ciężarkim tak się zaklinowała, że nie może wyrwać. Jak oglądam Twoje fotki to widzę to co miałem u siebie na początku, ile ja miałem takich"łuków tryumfalnych".. <_< , teraz jest prościej, chociaż efekt końcowy pewnie taki sam. Jeszcze pytanie co do rury w kominie, jaki przekrój i wysokość oraz czy jest jakoś od góry zabezpieczona (obrobiona) przestrzeń na kominie wokół niej ?
gondoljerzy Opublikowano 7 Listopada 2013 #4 Opublikowano 7 Listopada 2013 Z pierwotnego paleniska została 1/4 powierzchni rusztu. Podobnie jest teraz u mnie, tylko ja palę drewnem i mogę żonglować mocą przez rozdrobnienie szczap. Czym karmisz kocioł i jaką masz teraz temperaturę spalin?
HAN Opublikowano 7 Listopada 2013 Autor #5 Opublikowano 7 Listopada 2013 Docelowo będzie sam węgiel a na razie rozpalam na węglu by był żar i wypalam pozostałe klocki sosny (po budowie).. Temp. spalin? a nie mam pojęcia ale mogę trzymać rękę na czopuchu (temp jest stabilna)- chyba troszkę za niska ta temp. wymiennik został więc powierzchnia wymiany jest spora.. Coś bardzo długo nagrzewa mi się instalacja i kocioł pewnie niedostatek mocy... ale przy ciągłym paleniu pewnie byłoby dobrze- na razie nie palę ciągle tylko przepalanki po południu
SONY23 Opublikowano 7 Listopada 2013 #6 Opublikowano 7 Listopada 2013 Latarka w dłoń i sprawdzaj, czy w wyczystkach kotła nie zbiera się kondensat ( popiół w nich powinien być suchy).
mac65 Opublikowano 7 Listopada 2013 #7 Opublikowano 7 Listopada 2013 Coś bardzo długo nagrzewa mi się instalacja i kocioł pewnie niedostatek mocy... ale przy ciągłym paleniu pewnie byłoby dobrze- na razie nie palę ciągle tylko przepalanki po południu Sprawdż sobie teraz przy pełnym obciążeniu jaką temperaturę wyciągniesz na piecu i po jakim czasie .Zima to nie czas na modyfikacje - najwyżej kosmetyka . Szamot też nie lubi przepalania a im go więcej w palenisku tym nagrzewanie dłużej trwa .
HAN Opublikowano 7 Listopada 2013 Autor #8 Opublikowano 7 Listopada 2013 Hy? za jakiś czas sprawdzę kondensat tylko tak troszku usiłuję zarżnąć "kolosa" mam cichą nadzieję że padnie (na co nie wygląda bo mam opał suchy jak pieprz i kondensatu nie widzę) kociołki u Przemka czekają na mnie.... ale do tego czasu muszę się z nim pobawić.. mac65- na razie mam prześwit minimalny w palniku i teraz na zimnej instalacji nagrzewałem do 60C jakieś 2 godziny ale palnik to teraz jakieś 11-12x3cm a max przekrój może być 15x11,5cm więc pole do regulacji jest teraz jest to celowe (do testów) chciałem wybadać jaką jestem w stanie minimalną moc uzyskać przy czystym spalaniu.. dziś zasypałem 5kg węgla i odważyłem 5kg sosny zobaczymy ile będzie się to palić Po wczorajszym paleniu popiołu mam tyle co w dwie ręce można wziąć (małą jedna szufelka) a paliło się od 14 do 23 wieczorem
HAN Opublikowano 7 Listopada 2013 Autor #9 Opublikowano 7 Listopada 2013 Sony czy paleniu w DS potrzeba dużo mniej PW? bo jakoś tak mi się wydaje a zawsze wieczorem ciemno i nie mam jak ustawić
SONY23 Opublikowano 7 Listopada 2013 #10 Opublikowano 7 Listopada 2013 U mnie wlot PP około 20 cm/2, wlot PW jakieś 5cm/2. Ale to nic nie musi znaczyć, musisz sprawdzić u siebie sam. Z tej Twojej rury bez regulacji to chyba będzie szło dużo za dużo. A z tym zarzynaniem to patrz bo wykraczesz, myślisz że kupisz coś lepszego...
HAN Opublikowano 7 Listopada 2013 Autor #11 Opublikowano 7 Listopada 2013 - mam zawór kulowy na wlocie tej rury 5/4" teraz zostało otwarte poniżej połowy przekroju a swoją drogą ciekawy pomysł z tym podawaniem PP "górą" kto wie czy tak by nie było lepiej zimą... ale na razie koniec przeróbek trzeba troszkę potestować co mam
przemyslaw2ar Opublikowano 7 Listopada 2013 #12 Opublikowano 7 Listopada 2013 No i następny użytkownik kopciucha dał się zreformować :) A tak swoją droga to posłuchałbym rad kol. SONY23 albowiem palenisko i ten tak zwany palnik powinien być "kompatybilny z wymiennikiem inaczej padnie kocioł i to w takim momencie ze nie będziesz na to gotowy. Trochę utrudniasz sobie życie z tymi łukami, zwężkami itp., szamot to wcale nie jest recepta na sukces, co prawda pomaga ale wszystko w nadmiarze może szkodzić
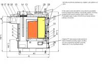
HAN Opublikowano 7 Listopada 2013 Autor #13 Opublikowano 7 Listopada 2013 Przemek nie patrz tak dosłownie na zdjęcia bo to tylko poglądowe są - chciałam pokazać jak to mniej więcej wygląda normalnie nie ma tyle szamotu i nie jest dany do samej góry.. a ścianka "główna- odzielająca" komory spalania od zasypowej musi być cała do góry by to oddzielić; a ten "łuk" to tylko do zmniejszenia mocy w okresach przejściowych sam przekrój palnika może być: 12x3; 12x4;12x5;12x6; 15x6;15x8 i 15x11cm właśnie dzięki tej wyciąganej cegle "łukowi" i zwykłej szamotce na płask za tym cudem rzeźbiarskim " tzw. łukiem".. "kompatybilny" to u mnie pojęcie nieznane to raczej prowizorka a prowizorki sprawdzają się najlepiej i działają najdłużej... hehe hy... a jak padnie toż przecież kolejkę mam do Ciebie Przemek zaklepaną... pozdrawiam
januszj26 Opublikowano 7 Listopada 2013 #14 Opublikowano 7 Listopada 2013 Witam Kolego Han ppodziwiam Cię za zapał twórczy . Ja nie mam czasu na takie eksperymenty ale podziwiam . pozdr.
przemyslaw2ar Opublikowano 7 Listopada 2013 #15 Opublikowano 7 Listopada 2013 Tak? nie wiem, być może masz tą kolejkę zaklepaną ale ja tego wszystkiego na raz nie ogarniam :) A co do szamotu to pisałem ogólnie tak dla potomnych.
HAN Opublikowano 8 Listopada 2013 Autor #16 Opublikowano 8 Listopada 2013 Wiem ale komentarze i porady mile widziane- dopiero uczę się jak palić w DS na miarkowniku też pierwszy sezon... Na razie nie zasypuję do pełna opału i troszku dymi mi przy dokładaniu, mam nadzieję że jak będzie sam węgiel w zasypie to to nie będzie miało miejsca no może prześwit palnika troszku za mały jest i to przez to- będzie chłodniej to popróbujemy... Wczoraj rozpalone o godz.15 a paliło się na pewno do 2 w nocy (tak podejrzewam bo o 6 rano było jeszcze 38 na kotle) zasyp zważyłem to 5kg węgla i 5kg sosny w domu średnio 22C na zewnątrz 6-7C a zapotrzebowanie (wyliczyłem na stronce Juzefa) to 189W/m2 (jak dobrze wpisałem jednostki) czyli sprawność chyba jest niezła..
HAN Opublikowano 9 Listopada 2013 Autor #17 Opublikowano 9 Listopada 2013 Dołączam pozostałe obiecane fotki
januszj26 Opublikowano 9 Listopada 2013 #18 Opublikowano 9 Listopada 2013 Tylko nie załatw sobie komina bo będziesz miał więcej szkody jak pożytku.
HAN Opublikowano 10 Listopada 2013 Autor #19 Opublikowano 10 Listopada 2013 kol.januszj26- nie rozumiem o czym piszesz... możesz dokładnie wskazać "mój" problem?
HAN Opublikowano 15 Listopada 2013 Autor #20 Opublikowano 15 Listopada 2013 Ekhem... witam jak na razie jestem zadowolony z przeróbki- zobaczymy jaka stałopalnosć będzie zimą i czy ruszta nie zawali popiołem i spiekami za 2h po dołożeniu opału bo wtedy lipa z tą całą zabawą w DS. Pierwszy raz widzę coś takiego by nad kominem falowało tylko rozgrzane powietrze (jak nad asfaltem latem) a palę sosną zmieszaną z węglem.... Ale miałbym pytanko do speców od kotłó DS: -czy nadmiar PW może powodować większe dymienie? (dopiero zaczynam "przygodę" z DS- bo w GS "praktycznie" było tak że im więcej tym lepiej-najwyżej wychładzało wymiennik
def Opublikowano 15 Listopada 2013 #21 Opublikowano 15 Listopada 2013 {...."praktycznie" było tak że im więcej tym lepiej-najwyżej wychładzało wymiennik } @HAN, zrób to w dolniaku bo w nim też to działa .
Mikesz62 Opublikowano 16 Listopada 2013 #22 Opublikowano 16 Listopada 2013 Han nad kominem faluje powietrze nic dodać nic ująć.pozdr.
przemyslaw2ar Opublikowano 16 Listopada 2013 #23 Opublikowano 16 Listopada 2013 Fajnie to widać przy minusowych temp albowiem wówczas ok 50-60cm nad kominem będzie widać słup pary (przy spalaniu drewna). Jednym z podstawowych parametrów jest odpowiednia temp. spalania za czym pójdzie też temp spalin. O wiele lepsze efekty widać przy "stałym" spalaniu albowiem wówczas cały system jest odpowiednio wygrzany to i efekt lepszy. Co do PW to niekiedy zdarza się tak ze nieumiejętne jego wykorzystanie może powodować większe kopcenie w fazie rozgrzewania palnika, podobnie jest gdy zastosujemy dużo PW do bardzo kalorycznego paliwa gazowego wówczas wychładza i rozrzedza ono spaliny i tylko pozornie wydaje się że dymu jest mało a analizator wskazuje duże wartości tlenków węgla i azotu. Pozdrawiam
HAN Opublikowano 16 Listopada 2013 Autor #24 Opublikowano 16 Listopada 2013 To jak radzicie ustawić optymalnie PW? poczekać aż kocioł wejdzie w podtrzymanie i wtedy wyregulować otwierając od całkiem zamkniętego? czyżby pozostałość po GS ta rura 5/4" byłaby za duża do tego palnika?
przemyslaw2ar Opublikowano 17 Listopada 2013 #25 Opublikowano 17 Listopada 2013 Kocioł nie powinien wchodzić w podtrzymanie ale powinien chodzić z stale zadaną mocą minimalną potrzebną do uzupełniania strat cieplnych. Podtrzymaniem nazywa się faze pracy gdzie PP jest zamknięte lub uchylone na tyle aby w kotle się tlił żar, co nie koniecznie jest dobre dla kotła i portfela albowiem zatrzymuje to spalanie powstałych gazów ale nie zatrzymuje się odgazowywania Rura jeżeli tylko ma regulację przesłony to nie jest za duża ale raczej wystarczyła by dla twojego palnika 3/4' Kocioł ustaw tak aby nigdy nie gasł płomień , choćby miałby być to ogarek jak od świeczki to jest to lepsze niż stany 0/1. Jeżeli paliwem jest drewno to lepiej ustawić stały dopływ PP a nie bawić się miarkownikami (albo inaczej: miarkownik nigdy nie powinien całkowicie zamknąć PP) a samo podawanie PP powinno być podawane nad ruszt (nie koniecznie nad cały wsad ale nad ruszt) co pozwoli utrzymanie się poduszki żaru na ruszcie i spalanie gazu drzewnego. Pozdr.
Rekomendowane odpowiedzi
Zarchiwizowany
Ten temat przebywa obecnie w archiwum. Dodawanie nowych odpowiedzi zostało zablokowane.