adamu
Stały forumowicz-
Postów
811 -
Dołączył
-
Ostatnia wizyta
Typ zawartości
Forum
Wydarzenia
Blogi
Artykuły
Treść opublikowana przez adamu
-
Regulacja instalacji co Zrównoważenie instalacji/opory hydrauliczne
adamu odpowiedział(a) na adamu temat w Instalacje CO i CWU
Tak zawory i głowice kupione nowe . Regulacje będę przeprowadzał według zaleceń producenta na 3 biegu , a co do podłogi z zasilania CO tam kryza na imbusie potrzebna czy zostawić odkręcone jak jest ? -
Regulacja instalacji co Zrównoważenie instalacji/opory hydrauliczne
adamu odpowiedział(a) na adamu temat w Instalacje CO i CWU
wydajność 1 żeberka dla delta t = 60 C - 167 W wydajność 1 żeberka dla delta t = 65 C - 185 W Na instalacji puszczam 40-45 stopni ,ale nie ma dla nich podanego przelicznika . -
Regulacja instalacji co Zrównoważenie instalacji/opory hydrauliczne
adamu odpowiedział(a) na adamu temat w Instalacje CO i CWU
Mam pirometr to sobie zmierzę temp na wejściu i wyjściu grzejnika aby różnica była 15 stopni . W razie w kupię moduł grundfosa i nastawy wstępne zrobię . Co do podłogówki na pompie CO jest zawór imbusowy na zasilaniu widać na zdjęciu , mam go przykręcić trochę czy max odkręcony ? -
Regulacja instalacji co Zrównoważenie instalacji/opory hydrauliczne
adamu odpowiedział(a) na adamu temat w Instalacje CO i CWU
Nie wiem dlaczego powychodziły takie przepływu zrobione zgodnie z filmem , a tam na końcu była informacja o prawidłowych wartościach do ustawienia ,ze duże grzejniki 0,9m3/h średnie 0,5m3/h ,a małe 0,2 m3/h . A dlaczego wychodzi taka duża moc nie wiem . -
Regulacja instalacji co Zrównoważenie instalacji/opory hydrauliczne
adamu odpowiedział(a) na adamu temat w Instalacje CO i CWU
Ktoś zna takie zawory ,poniewaz zastanawiam sie nad zakupem firma dobra na allegro trafiona okazja : https://www.imi-hydronic.com/sites/EN/pl-pl/produkty/termostatyka/glowice-termostatyczne-i-zawory-grzejnikowe/zawory-termostatyczne/Eclipse/008542b1-0a6f-43c2-9e15-eec7a02faa76 https://allegro.pl/oferta/zawor-termostatyczny-katowy-heimeier-1-2-cala-dn15-7501802442 Cena detaliczna 150zł, w polsce ciężko dostępne z nastawą wstępną oraz automatycznym regulatorem przepływu : -
Regulacja instalacji co Zrównoważenie instalacji/opory hydrauliczne
adamu odpowiedział(a) na adamu temat w Instalacje CO i CWU
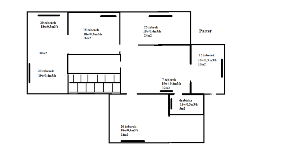
Panowie zrobiłem jak na filmiku grundfos pompa 3 bieg pootwierałem poszczególne grzejniki i spisywałem przepływ na pompie również załączyłem schemat budynku , pompa na starcie 13w , przepływ 0,0 na kilka sekund wskakiwał na 0,1 m3/h. Grzejniki jednak to radiatori 2000 wulkan made in italy teraz diamand robi podobne , proszę po odczytaniu tych wskazań powiedzieć jak to zrozumieć w którym kierunku iść / czy pompa 40 starczy czy założyć 60 . Test na starych zaworach prawdopodobnie zastąpione będą sprawdzonymi danfossami prócz drabinek otwarte na stałe bądz zamykane tam zostają caleffi(niestety bez nastaw wstępnych) . Ewentualnie tak jak wyżej wspominane obliczenie ze wzoru dla temp zasilającej 40-50 stopni z delta 15st. może da dokładniejsze nastawy. -
Regulacja instalacji co Zrównoważenie instalacji/opory hydrauliczne
adamu odpowiedział(a) na adamu temat w Instalacje CO i CWU
Znalazłem zawór danfoss dynamic valve , ponoć do instalacji dwu-rurowych Brak szumów itp. cena kosmos 150zl ,ale znalazłem kątowy w dobrej promocji : https://onninen.pl/pl-PL/zawor-ra-dv-dn15-katowy-013g7713,CEM934 Wzgledem zwykłego zaworu w kwocie 40zl warto dopłacić do tych 75zl ? 15 przyłączy grzejnikowych posiadam wiec i tak będzie wydatek . -
Regulacja instalacji co Zrównoważenie instalacji/opory hydrauliczne
adamu odpowiedział(a) na adamu temat w Instalacje CO i CWU
Tak zostanie wykonana nastawy wstępna po zmianie zaworów . Po zmianie pomp 25/6 na podłogowe 2 bieg przepływ 1.5/2l wiec jest ok natomiast 25/4 w obiegu CO na początku max moc 19w / 1.4m3 czyli max moc po nocy i zamknięciu kilku termostatów spadło do 15w / 1m3 Lecz w domu zimno jakby nie dała rady rozprowadzić ciepła ? Co do zaworów natrafiłem w sklepie na firmę caleffi zawór + głowica ok. 80zł brać pod uwagę czy skupić się na heimeier/danfoss -
Regulacja instalacji co Zrównoważenie instalacji/opory hydrauliczne
adamu odpowiedział(a) na adamu temat w Instalacje CO i CWU
Widziałem , dokładnie tak zrobię jak za 2 tyg. Hydraulik zamontuje mi zawory danfoss , do tego pompa 25/4 i po temacie mam nadzieje . -
Regulacja instalacji co Zrównoważenie instalacji/opory hydrauliczne
adamu odpowiedział(a) na adamu temat w Instalacje CO i CWU
Przy próbie nastawy krzyży na kilku zaworach zaczęła z nim kapać woda nic się zrobić nie da , wzywam hydraulika i do kosza . Jakieś dobre poleceni zawory termo ? Głowice to tam gazowe jakieś się kupi ,ale chodzi typowo o zawory bo te diamonda szumiały no i jak widać nie za długo służyły . -
Regulacja instalacji co Zrównoważenie instalacji/opory hydrauliczne
adamu odpowiedział(a) na adamu temat w Instalacje CO i CWU
Dom 500m2 z czego ogrzewane 250m2 . Jezeli starczy tutaj 25/40 to dlaczego 60 działa na takiej mocy i przepływie ? Zrozumiałe chyba ,ze słabsza nie osiągnie tych parametrów ? Grzejniki mama takie : https://diamond.pl/produkt/grzejnik-wulkan-h-500-n-b/ Do obliczenia mocy muszę dobrać jedna temp stała na grzejniki , a co w przypadku jak z 4d zadawana jest rożna temperatura zależnie od mrozu ? -
Regulacja instalacji co Zrównoważenie instalacji/opory hydrauliczne
adamu odpowiedział(a) na adamu temat w Instalacje CO i CWU
Ponieważ mam duży metraż budynku i grzejniki bliżej kotła grzeją lepiej i szybciej niż te oddalone stad muszę nastawy wstępne/kryzy zrobić .Nawet po pompie widać 25/6 i na max mocy w auto chodzi co złe wpływa na cała resztę np. Pompa podłogowa 25/40 za zaworem 4d podłączona przed pompa CO ledwo 1l/m przepływu dlatego chce wyregulować ta instalacje . -
Regulacja instalacji co Zrównoważenie instalacji/opory hydrauliczne
adamu odpowiedział(a) na adamu temat w Instalacje CO i CWU
Na instalacji są szumy bardziej słyszalne jak głowica przymknie , świadczy o za dużej pompie, mam i założę na próbę dziś 25/40 ,ale nie wiem czy się sprawdzi skoro ma max przepływ 1,5m3 , a 25/60 w adapt 2,0m3 chodziła na starcie . -
Regulacja instalacji co Zrównoważenie instalacji/opory hydrauliczne
adamu odpowiedział(a) na adamu temat w Instalacje CO i CWU
Na powrocie są wszystkie skręcone na 3/4 . Czyli otwarty zawór 4d na maxium oraz drabinki łazienkowe wraz z podlogowka na zdjęciu wszystkie głowice zakręcić i mam bazowy m3/h ? -
Regulacja instalacji co Zrównoważenie instalacji/opory hydrauliczne
adamu odpowiedział(a) na adamu temat w Instalacje CO i CWU
35w / 2.0m3 na zamkniętym 4d , a na otwartym 100% 30w / 1.7m3 . Tez za 4d jest wpięta podlogowka przed pompa co z powrotem do powrotu 4d wiec nie wiem już w którym przypadku i jakie wskazania wybrać . Prosze kogoś o naprowadzenie . -
Regulacja instalacji co Zrównoważenie instalacji/opory hydrauliczne
adamu odpowiedział(a) na adamu temat w Instalacje CO i CWU
Widziałem to ! Sprobuje ,ale co z grzejnikami ,które są bez głowic otwarte na stałe jak drabinki łazienkowe czy dawno robiona podlogowka ? Zostawić je i wliczyć jako wartość początkowa ? Na otwartych wszystkich grzejnikach pompa 25/6 w autoadapt 35w/2.0m3. Pompa wychodzi z 4d , na powrocie do kotła pompa kotlowa ,ale chyba nie zaburza wskazan i pracy założone są zz. -
Regulacja instalacji co Zrównoważenie instalacji/opory hydrauliczne
adamu odpowiedział(a) na adamu temat w Instalacje CO i CWU
Zawory są firmy diamond , a głowice mam jak na załączonym obrazku . Moze to towar nie najwyższych lotów ,ale jeżeli wymiana samych głowic na manualne bądź elektryczne lepszego producenta coś polepszy i będzie pasować to jestem w stanie je zmienić . -
Regulacja instalacji co Zrównoważenie instalacji/opory hydrauliczne
adamu odpowiedział(a) na adamu temat w Instalacje CO i CWU
Ewentualnie zakup modułu alpha reader i równoważenie za pomocą aplikacji ? Ktoś sprawdzał taki sposób spisuje się to ? -
Regulacja instalacji co Zrównoważenie instalacji/opory hydrauliczne
adamu opublikował(a) temat w Instalacje CO i CWU
Witam , czy któryś z szanownych kolegów mógł by mi pomóc w ustawieniu instalacji chodzi o zrównoważenie przepływów /kryzowanie zaworów aby było efektywnie . Obecnie wpięta alpha 2 25/6 na autoadapt w razie czego posiadam na podmianę alpha 2 25/4 ,ale wiem ,ze prócz owej pompy warto jest ustawic instalacje . Po pracy postaram się wrzucić zdjęcia termostatów /głowic schemat budynku w m2 , ilość żeberek w danym pokoju oraz odległości od pieca . Jeżeli jest jeszcze coś potrzebne lub jakieś uwagi jak samemu to zrobić to będę wdzięczny . Pozdrawiam . -
Nowe Aktualizacje Dla Sterowników Kotłów Defro
adamu odpowiedział(a) na wwoytek temat w Kotły z podajnikiem
Szkoda ,ze nie mogą zaimplementować w sterowniku wskaźnika zużycia opału czy tez obecnej mocy kw w pid . -
Nowe Aktualizacje Dla Sterowników Kotłów Defro
adamu odpowiedział(a) na wwoytek temat w Kotły z podajnikiem
Z tematu wynika ,ze większość ma kocioł z palnikiem defro i sterownikiem k1pv4 bądź palnik defro z zapalarka k1prv4 . Niestety bądź stety mam palnik żeliwny Ekoenergii czyli wersje PZ i tu ani tech ani defro nowej wersji aktualizacji nie wydają . -
Nowe Aktualizacje Dla Sterowników Kotłów Defro
adamu odpowiedział(a) na wwoytek temat w Kotły z podajnikiem
Niestety w 3.4.0 nie ma pompy krótkiego obiegu tylko przewałowa i trzeba będzie podłączyć ja bezpośrednio pod gniazdko . -
Nowe Aktualizacje Dla Sterowników Kotłów Defro
adamu odpowiedział(a) na wwoytek temat w Kotły z podajnikiem
Czyli sterownik do palnika Ekoenergii nie został wydany nadal jest stary 3.4.0 k1prv4 pz -
Nowe Aktualizacje Dla Sterowników Kotłów Defro
adamu odpowiedział(a) na wwoytek temat w Kotły z podajnikiem
Ogólnie tragedia ster nie taki tani , a chyba wyglądem ciągnie niz użytecznością . k1prv4 pz /k1pv4 pz aktualizacja stara sprzed 2 lat wersja 3.4.0 ludzie im zgłaszają problemy i błędy w sterowniki do poprawy , a nic nie robią . -
