odpowietrznik Opublikowano 15 Lutego 2018 #26 Opublikowano 15 Lutego 2018 Średnica rur do sprzęgła Cu 28,zasobnik Cu 22.Średnica rur za sprzęgłem zależy od tego jaką muszą przenieść moc dla poszczególnych obiegów(grzejniki,podłogówka)
Fiodor58 Opublikowano 15 Lutego 2018 Autor #27 Opublikowano 15 Lutego 2018 Czym się kierować przy doborze zbiornika wyrównawczego ile powinien mieć litrów?
hajtaler428 Opublikowano 15 Lutego 2018 #28 Opublikowano 15 Lutego 2018 Pojemnością instalacji - naczynie ok 5% pojemności instalacji lub więcej Przy czym jest to pojemność nominalna(od dna do wysokości przelewu) a nie całkowita
gmaj22 Opublikowano 15 Lutego 2018 #29 Opublikowano 15 Lutego 2018 Małe sprostowanie: nominalna to pomiędzy króćcami przyłączeniowymi rur: Jesli są podłączone z boku, to nie liczymy od dna. PS: Mam tu na myśli poziomy, na których przyłączone są rury sygnalizacyjna i przelewowa.
sambor Opublikowano 15 Lutego 2018 #30 Opublikowano 15 Lutego 2018 Ale apteka :P Od rurki do denka od denka do rurki. Chłopy- ja kupuję lub zalecam kupić NP = 10% pojemności instalacji i jest OK, przecież w naczyniu przed pracą i podczas najwyższych temp instalacji też musi być woda . Inaczej wam po skończeniu pracy i wystudzeniu zostaje praktycznie pusty zbiornik - a to nie jest dobre.
gmaj22 Opublikowano 15 Lutego 2018 #31 Opublikowano 15 Lutego 2018 To jest praktyczne podejście: rozszerzalność zładu X 2 :) Przy niewielkich pojemnośćiach litr w tą czy w tamtą nie zrobi różnicy. A od za dużego naczynia krzywda nikomu sie nie stanie. ( o ile konstrukcja wsporcza jest odpowiednia ;) )
Fiodor58 Opublikowano 23 Lutego 2018 Autor #32 Opublikowano 23 Lutego 2018 Panowie ma jeszcze jedno pytanie jeżeli chciałbym zrobić instalacje zamknięta i zabezpieczyć zaworem DBV1 czy mogę go umieścić na piecu ponieważ mam tam kruciec 1" który jak podaje instrukcja może być wykorzystany do CWU, oczywiście pod zawór trzeba zredukować do 3/4 czy może ktoś ma inny pomysł gdzie go zamontować?
odpowietrznik Opublikowano 23 Lutego 2018 #33 Opublikowano 23 Lutego 2018 Możesz go wkręcić w ten króciec(w płaszcz kotła) Oczywiście dla tego typu zaworu zasilanie musi być z sieci(nie z hydroforu) Na dolocie zimnej wody z sieci zamontuj filtr i reduktor ciśnienia wody.Ustaw ciśnienie na reduktorze 1,2bar a w instalacji ciśnienie wyższe o 0,2-0,3 bar czyli ok.1,5bar Oprócz DBV musi być jeszcze naczynie przeponowe układu zamkniętego(na powrocie) i zawór bezpieczeństwa 2-2,5bar(na zasilaniu)
sambor Opublikowano 23 Lutego 2018 #34 Opublikowano 23 Lutego 2018 Naczynie przeponowe musi mieć odpowiednią pojemność Która powinna być policzona
Fiodor58 Opublikowano 23 Lutego 2018 Autor #35 Opublikowano 23 Lutego 2018 A samo naczynie to ile procent całej pojemności instalacji? A druga sprawa zawór bezpieczeństwa to ma być 2, 2.5 bara pytam bo teraz mam 1.5 bara.
sambor Opublikowano 23 Lutego 2018 #36 Opublikowano 23 Lutego 2018 Naczynia przeponowego nie odbierzesz wg procentów Na to są specjalne kalkulatory dostępne w necie ZB dobierasz do maksymalnego ciśnienia roboczego kotła
odpowietrznik Opublikowano 23 Lutego 2018 #37 Opublikowano 23 Lutego 2018 Akurat montowałem zawór schładzający dwufunkcyjny SYR 5067 który jest 3x droższy od Regulusa.Ma już wbudowany reduktor ciśnienia.Podałem ci instrukcję montażu wzorując się na zaworze SYRowskim bo Regulus takowej nie ma a przecież nie puścisz ciśnienia na kocioł takiego jak w instalacji wody użytkowej 3bar a czasami i więcej(zależy na jakie ciśnienie jest nastawiony reduktor na wejściu do domu)
Fiodor58 Opublikowano 24 Lutego 2018 Autor #38 Opublikowano 24 Lutego 2018 Dziękuję panowie za informacje
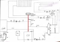
Fiodor58 Opublikowano 23 Października 2019 Autor #39 Opublikowano 23 Października 2019 Witam Panowie chciałem zapytać czy do tego schematu wyżej mogę dołożyć jeszcze dwa rozdzielacze z grzejnikami jeżeli tak to w które miejsce podłączyć, a druga sprawa czy ktoś się spotkał z podłączeniem grzejników łazienkowych bezpośrednio pod piec żeby miały taką samą temperaturę jak na kotle.
Rekomendowane odpowiedzi
Zarchiwizowany
Ten temat przebywa obecnie w archiwum. Dodawanie nowych odpowiedzi zostało zablokowane.