patrykoss8857 Opublikowano 4 Maja 2017 #1 Opublikowano 4 Maja 2017 Buduje domek parterowy o powierzchni użytkowej 92m2. Dom jest na etapie surowym zamkniętym, 8.05 mam nadzieje wchodzi TRZECIA ekipa do tynków cementowo wapiennych. 29.05 wchodzi ekipa do posadzek. Pomiędzy jedną a drugą będę musiał zrobić hydraulikę tj woda użytkowa i centralne ogrzewanie. Plan jest taki: cwu i zwu, grzejniki na rozdzielaczach prowadzone pexem w podłodze sypialnia, sypialnia2, salon, łazienka - grzejniki salon, kuchnia, łazienka, korytarz - podłogówkatrzy pytania, jak zamontować pompe cyrkulacyjną cwu w układzie rozdzielaczowym, najlepiej w każdym źródle poboru.układ rur i ocieplenia - z racji że ekipa która stawiała mi dom sknociła poziomy, pomiędzy jedną ścianą domu a przeciwną mam 7cm różnicy(na 18m długości), będę rozkładał na połowie domu styropian 20cm a na drugiej połowie 17cm, tj mam do dyspozycji 2,5,10cm. Jak rozłożyć poszczególne warstwy uwzględniając prowadzenie rur cwu, zwu, zasilanie i powrót grzejników i w niektórych pomieszczeniach ogrzewanie podłogowe. Czy folie dać pod styropian i i drugą folię pod posadzkę? myślałem żeby rozłożyć folię na niej styro 5cm, na tym styro ułożyć 2 lub 3cm styro w którym by szły rury od cwu i zwu w izolacji lub peszlu (co lepiej?), i na wierzch 10cm, poźniej folia alu tam gdzie podłogówka, zasilanie i powroty dla grzejników 15-20cm od krawędzi ścian, na to folia zwykła no i wylewka.
Gość mak Opublikowano 5 Maja 2017 #2 Opublikowano 5 Maja 2017 Dlaczego chcesz stosować rozdzielacze do cwu? Moim skromnym zdaniem z rozdzielaczem nie będzie działać cyrkulacja cwu Zasada działania cyrkulacji zaczerpnięta ze strony: http://www.budujemydom.pl/woda-i-kanalizacja/20376-cyrkulacja-cieplej-wody-uzytkowej-zasada-dzialania-schematy Rozdzielacz to zbędny wydatek Proponuję najpierw wyrównać poziomy na posadzce co powinno znacznie ułatwić prowadzenie prac
teres Opublikowano 5 Maja 2017 #3 Opublikowano 5 Maja 2017 Gdzieś kiedyś widziałem rozdzielacz do CWU obsługujący cyrkulację ale tylko jeden raz. Możesz założyć jeszcze jedną belkę (cyrkulacyjną) i na powrocie z niej podpiąć pompę.
tomekb Opublikowano 5 Maja 2017 #4 Opublikowano 5 Maja 2017 Dlaczego chcesz stosować rozdzielacze do cwu? Moim skromnym zdaniem z rozdzielaczem nie będzie działać cyrkulacja cwu Zasada działania cyrkulacji zaczerpnięta ze strony: http://www.budujemydom.pl/woda-i-kanalizacja/20376-cyrkulacja-cieplej-wody-uzytkowej-zasada-dzialania-schematy Rozdzielacz to zbędny wydatek Proponuję najpierw wyrównać poziomy na posadzce co powinno znacznie ułatwić prowadzenie prac Sprawa trochę się komplikuje jak układ pomieszczeń nie pozwala na prowadzenie w taki sposób rur . (np . kotłownia usytuowana jest w środku budynku a na jednym końcu domu jest łazienka , a kuchnia z drugiej strony .
tomekb Opublikowano 5 Maja 2017 #5 Opublikowano 5 Maja 2017 Gdzieś kiedyś widziałem rozdzielacz do CWU obsługujący cyrkulację ale tylko jeden raz. Możesz założyć jeszcze jedną belkę (cyrkulacyjną) i na powrocie z niej podpiąć pompę. Witam , może te widziałeś :)
teres Opublikowano 5 Maja 2017 #6 Opublikowano 5 Maja 2017 Dokładnie tak, wygląda na to, że muszę kolegę odwiedzić :)
papasmurfek Opublikowano 5 Maja 2017 #7 Opublikowano 5 Maja 2017 A jakiż to problem zrobić cyrkulację w systemie rozdzielaczowym? Żaden. Pytanie czy to jest opłacalne? I czy rzeczywiście jest sens. Jak od kotłowni do łazienki jest blisko (bo do kuchni to nieporozumienie robić cyrkulację) to komfort nie będzie gorszy niż gdyby tej cyrkulacji nie było.
krisgie Opublikowano 5 Maja 2017 #8 Opublikowano 5 Maja 2017 A czemu do kuchni nie ma sensu? U mnie cyrkulacja jest do kuchni właśnie i do górnego rozdzielacza cwu ale czy to ma jakiś sens to jeszcze nie wiem :)
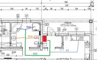
patrykoss8857 Opublikowano 5 Maja 2017 Autor #9 Opublikowano 5 Maja 2017 dziękuję za wszystkie odpowiedzi. załączam schemat pomieszczeń wraz z wymiarami i rozmieszczeniem poszczególnych urządzeń poboru wody. podsumowując: bez rozdzielaczowo.1) mógłbym puścić rure np 25mm do łazienki, od tej rury trójniko redukcjami na pex 20(wanna, prysznic) i pex 16(bidet, umywalka) i od ostatniego urządzenia puścić - rury zgrzewane w podłodze - wolałbym nie.2) rura 25 do prysznica, od prysznica do wanny fi20, od wanny do umywalki fi16, od umywalki do bidetu fi16, od bidetu cyrkulacja fi163) trzecia opcja, rura fi25 do rozdzielacza który mógłbym zamontować w łazience(np pod oknem), na rozdzielaczu daje pompe cyrkulacyjną i wtedy do najdalszego źródła poboru było by 3m, i byłby to bidet.
sambor Opublikowano 6 Maja 2017 #10 Opublikowano 6 Maja 2017 Patrząc na wielkość tej instalacji myślę, że tam nie będzie potrzebna cyrkulacja CW. Wystarczy inst wg środkowego rys z rurą 20 do kuchni i to wszystko.
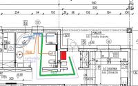
patrykoss8857 Opublikowano 6 Maja 2017 Autor #11 Opublikowano 6 Maja 2017 dziękuję za poświęcony czas. chciałbym ominąć łączenie instalacji w warstwie ocieplenia podłogi, wiem że zgrzewane rury są bardzo wytrzymałe, jednak prosiłbym o ocene sposobu trzeciego z posta wyżej, a tu jest do niego mały schemat:
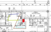
sambor Opublikowano 6 Maja 2017 #12 Opublikowano 6 Maja 2017 Czy nie możesz dać tego rozdzielacza w kotłowni i z niego pociągnąć te rury do odbiorów, Ale nie tak jak chcesz zrobić, tylko najkrótszymi drogami, przez przebicia w scianach
patrykoss8857 Opublikowano 6 Maja 2017 Autor #13 Opublikowano 6 Maja 2017 mogę, czy jeśli rury będą prowadzone w warstwie ocieplenia będę musiał wkładać je w otulinę?
sambor Opublikowano 6 Maja 2017 #14 Opublikowano 6 Maja 2017 Powinno się dać w osłonie, najlepiej w otulinie.
Mirazzboono Opublikowano 5 Listopada 2017 #15 Opublikowano 5 Listopada 2017 Odkopuję temat, bo sytuacja podobna. Rozdzielacz byłby umiejscowiony w kotłowni - teraz pytanie takie. Łazienka górna znajduje się dokładnie nad....kotłownią. Więc wszystkie podejścia do punktów robić z jednego rozdzielacza, czy dwóch.?? No i jeżeli średnica rury zasilającej belkę będzie fi 25, to cyrkulacja też ma mieć 25 ?
Mirazzboono Opublikowano 5 Listopada 2017 #16 Opublikowano 5 Listopada 2017 Nie no, trzeba podzielić, bo belkę z punktami do góry pasuje ...odwrócić do góry..
shogunzlasa Opublikowano 6 Listopada 2017 #17 Opublikowano 6 Listopada 2017 Raz jeszcze... Po to rozdzielacz jest w kotłowni, żeby nie robić pojemnych pionów wodnych gdzie woda będzie stygnąć!Woda podpięta w kotłowni - bierzesz cienką rurą ze źródła ciepła. Woda w rozdzielaczu na piętrze podpięta rurą 25 - pobierasz wode, wylatuje chłodna z rury, chłodna z rozdzielacza, chłodna z pionu i dopiero wtedy ciepła woda się przepcha (jak wylejesz któryś litr wody).
Mirazzboono Opublikowano 6 Listopada 2017 #18 Opublikowano 6 Listopada 2017 Czyli mogę bez problemu rozprowadzić z rozdzielacza z kotłowni do punktów.
shogunzlasa Opublikowano 6 Listopada 2017 #19 Opublikowano 6 Listopada 2017 Tak - nie musisz też wszystkiego rozdzielać - np. umywalka i prysznic w łazience razem nie chodzą - chociaż kto wie co tam ludzie robią jak się ktoś kąpie... :D Poza tym częstsze korzystanie z umywalki i ciepłej wody obniża czas czekania na ciepłą wodę pod prysznicem. Zwiększa za to straty ciepła...Trzeba to sobie rozplanować - dużo punktów ciepłej wody w domu nie ma, więc tragedii też nie.
Mirazzboono Opublikowano 6 Listopada 2017 #20 Opublikowano 6 Listopada 2017 Jeszcze tylko jedno.Z belki rozdzielacza który zasila dół ciężko będzie zrobić wyprowadzenie przez strop do góry.Nie lepiej złączyć ze sobą dwie krótsze ? Jedna do punktów na dole, a druga skierowana w góre dla punktów od poziomu górnego ?
shogunzlasa Opublikowano 6 Listopada 2017 #21 Opublikowano 6 Listopada 2017 To już obojętne - jak wygodnie. Zaizoluj tylko dobrze rury i rozdzielacz bo tam najwięcej ciepła będzie spieprzać (ciepła woda prosto z bojlera).
Mirazzboono Opublikowano 6 Listopada 2017 #22 Opublikowano 6 Listopada 2017 Dziękuję za wyczerpującą odpowiedz
Rekomendowane odpowiedzi
Zarchiwizowany
Ten temat przebywa obecnie w archiwum. Dodawanie nowych odpowiedzi zostało zablokowane.