wladok Opublikowano 6 Grudnia 2016 #1 Opublikowano 6 Grudnia 2016 Witam, szukam porad dotyczących wyboru schematu instalacjii co i cwu w moim nowo pobudowanym domku. Piec ma byc Kostrzewy Twin Bio Luxury 12 kw na pelet -drewno. Na parterze jest podłogówka + jeden grzejnikiem-drabinka + bojler 100l. Poddasze - podłogówka w łazience + trzy grzejniki w pokojach i jeden drabinkowy w łazience. Proszę o porady jaki byłby najbardziej optymalny i ekonomiczny schemat tej instalacjii,jakie pompy,rozdzielacze. Dziekuje.
odpowietrznik Opublikowano 7 Grudnia 2016 #2 Opublikowano 7 Grudnia 2016 Rozdzielacz do ogrzewania podłogowego http://allegro.pl/rozdzielacz-6-sso-do-ogrzewania-podlogowego-i6623538139.html
wladok Opublikowano 19 Grudnia 2016 Autor #3 Opublikowano 19 Grudnia 2016 Czy takie podłączenie jest ok?
sambor Opublikowano 21 Grudnia 2016 #4 Opublikowano 21 Grudnia 2016 Raczej jest źle, ale zrób zdjęcie całości instalacji, a nie fragmentów Ew narysuj jak jest to połączone.
wladok Opublikowano 24 Grudnia 2016 Autor #5 Opublikowano 24 Grudnia 2016 Raczej jest źle, ale zrób zdjęcie całości instalacji, a nie fragmentów Ew narysuj jak jest to połączone. Narysowałem nie wiem czy zrozumiały
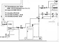
odpowietrznik Opublikowano 24 Grudnia 2016 #6 Opublikowano 24 Grudnia 2016 Niezrozumiały)Zawór 4D jak sama nazwa wskazuje ma 4wyjścia a na rysunku jest tylko 3,gdzie jest zawór 3D regulujący temp na podłogę?Widzę układ zamknięty to naczyńko moze być przymaławe,jest zawór bezpieczeństwa na kotle?Powinno być jak w załączniku +wężownica schładzająca lub zaw.schładzający
wladok Opublikowano 26 Grudnia 2016 Autor #7 Opublikowano 26 Grudnia 2016 Faktycznie ,nie dorysowałem 4-te wyjscie.Zawór schładzający jest pokazany na zdjeciu i na rysunku - DBV.Podłogówkę zasilana z rozdzielacza Colomix z zaworem i pompą jest na dołączonym zdjęciu,grzejniki są zasilane z rozdzielacza drugiego z zaworem rtl na podłogówkę w łązience na górze.
RobertGr Opublikowano 18 Stycznia 2017 #9 Opublikowano 18 Stycznia 2017 Zdecydowanie jest nie tak jak być powinno.
RobertGr Opublikowano 18 Stycznia 2017 #10 Opublikowano 18 Stycznia 2017 A schemat który podał odpowietrznik również nie jest dobry, ponieważ każdy zawór trójdrożny lub czwórdrożny powinien być podłączony bezpośrednio od kotła.
Łobuz Opublikowano 18 Stycznia 2017 #11 Opublikowano 18 Stycznia 2017 Dlaczego w schemacie kolegi odpowietrznika zawory zwrotne sa na powrocie a nie za pompami ? I Czy zawór 3D jest konieczny na obwód grzejnikowy? Pytam ponieważ założyłem podobny temat i i dostałem wskazania na zamontowanie sprzęgła hydraulicznego zeby zrównoważyć prace wszystkich pomp.
odpowietrznik Opublikowano 18 Stycznia 2017 #12 Opublikowano 18 Stycznia 2017 Dla obiegu grzejnikowego zawór zwrotny może być za pompą ale dla podłogówki powinien być w zaznaczonym miejscu na powrocie aby zawód 3D na podłogę brał wodę do podmieszania z powrotu podłogówki a nie z powrotu grzejników.Do obiegu grzejnikowego 3D niekonieczny wtedy zawory termostatyczne na grzejnikach.
Gość Digitrax Opublikowano 18 Stycznia 2017 #13 Opublikowano 18 Stycznia 2017 Zawory zwrotne mają zablokować przepływ wsteczny nie tylko za pompa ale całym układem mieszającym. Sprzęgło jest koniecznie tylko wtedy gdy po jego obu stronach występują zawory 3D. Więc jeżeli wysoką temperaturę powrotu kotła zapewniasz wyłącznie za pomocą pompy kotłowej bez zaworu termostatycznyego (TZM) to sprzęgło nie jest potrzebne. Jeżeli na powrocie kotła masz TZM + pompa to wtedy sprzęgło jest wymagane.
Iks10 Opublikowano 21 Stycznia 2017 #14 Opublikowano 21 Stycznia 2017 Witam Mam pytanie dlaczego na ostatnim schemacie jest pompa zaraz za kotlem z zasilania do powrotu. Nie bardzo rozumiem po co to jest. Z góry dziękuję za wyrozumiałość.
Iks10 Opublikowano 22 Stycznia 2017 #16 Opublikowano 22 Stycznia 2017 Ok dziękuję, rozumiem. A czy ten schemat będzie taki sam jeśli piec będę miał z prawej strony. Tak ma być u mnie że bojler jest na końcu. Czy zawór zwrotny na podłogowe nie powinien być wtedy na zasilaniu. Z góry dziękuję za pomoc.
wladok Opublikowano 26 Stycznia 2017 Autor #17 Opublikowano 26 Stycznia 2017 RobertGr - napisz co jest nie tak w tej mojej instalacjii?
wladok Opublikowano 8 Lutego 2017 Autor #18 Opublikowano 8 Lutego 2017 Pytanie do admin - jak usunąć wpisy ,zmienić treść?
marcin Opublikowano 8 Lutego 2017 #19 Opublikowano 8 Lutego 2017 Posty edytuje się klikając "Edytuj" pod treścią posta. Możliwość ta dostępna jest przez godzinę od napisania posta. Nie ma możliwości usuwania postów. Pozdrawiam.
Rekomendowane odpowiedzi
Zarchiwizowany
Ten temat przebywa obecnie w archiwum. Dodawanie nowych odpowiedzi zostało zablokowane.