mac65 Opublikowano 9 Października 2015 #26 Opublikowano 9 Października 2015 @Sambor Tylko CWU chodzi bardzo dobrze i się nie zapowietrza. Pozakręcam odpowietrzniki. Zostawię tylko ten nad pompą CO. Nic w tym dziwnego bo właśnie kiedy ta pompa rusza to wypycha powietrze przez odpowietrznik nad bojlerem z gałązki zasilania zasobnika .
kapral1980 Opublikowano 9 Października 2015 Autor #27 Opublikowano 9 Października 2015 Zakręciłem wszystkie odpowietrzniki i zostawiłem tylko ten nad CO. Pompa się odpowietrzyła. Zobaczymy za parę godzin. @rumunn9r Piec jest wypoziomowany. Na piecu mam 55 stopni i palę tylko ekogroszkiem, nie mam dodatkowego rusztu wodnego zaraz nad paleniskiem więc raczej nie gotuje mi wody. @mac65 Może tak być. Odkręciłem na chwilę ten odpowietrznik nad samym bojlerem i syknął, pytanie w którą stronę? Jeżeli ma to jakieś znaczenie to ślady osadu z wody dookoła odpowietrnika miałem tylko nad pompą CWU oraz na zasilaniu rozdzielacz CO
mac65 Opublikowano 9 Października 2015 #28 Opublikowano 9 Października 2015 Odpowietrznik jest blisko pompy i jeżeli w gałązce jest powietrze to chwilowo może wyrzucać również wodę dlatego pisałem wcześniej o odpowietrzeniu statycznym bez uruchomionych pomp ale z racji obecności zaworów kierunkowych/zwrotnych ( a głównie to te wspomniane sprężynki w zaworach ) możesz takie odpowietrzenie zrobić ale tylko w momencie kiedy obie pompy pracują . Niestety w instalacji jeszcze będzie krążyło to powietrze i zabieg trzeba będzie powtórzyć w ten sam sposób przynajmniej dwukrotnie . Obserwuj ten rozdzielacz bo każda nieszczelność w układzie może wiązać się z zapowietrzaniem . Ciepełka .
kapral1980 Opublikowano 9 Października 2015 Autor #29 Opublikowano 9 Października 2015 Pompa łapie dalej powietrze :( Wyrzuciła je dopiero w trybie odpowietrzania i przy odkręconym maksymalnie grzejniku. Skąd się ono bierze skoro wszystko szczelne? Nie mam już pomysłów.
sambor Opublikowano 9 Października 2015 #30 Opublikowano 9 Października 2015 Ja bym spróbował zamienić pompy miejscami, może ta od CO ma jakiś feler. Można też zamontować przed tą pompą separator powietrza np taki http://allegro.pl/spirotech-separator-powietrza-pozimy-3-4-i5389363865.html Wiem, że to droga opcja, ale na pewno skuteczna.
kapral1980 Opublikowano 9 Października 2015 Autor #31 Opublikowano 9 Października 2015 Pompy już zamieniałem. Bez skutku. Czytałem o tych separatorach. Trochę drogie. Ech...
rumunn9r Opublikowano 10 Października 2015 #32 Opublikowano 10 Października 2015 Ja bym szukal problemu dalej w instalacji nie w pompie bo z tamtad sie ono bierze
mac65 Opublikowano 10 Października 2015 #33 Opublikowano 10 Października 2015 W takim razie zapytam jakie masz grzejniki bo instalacja widzę miedziana przy kotle a grzejniki ? Może to nie jest powietrze a coś bardziej palnego ?
sambor Opublikowano 10 Października 2015 #34 Opublikowano 10 Października 2015 Grzejniki ponoć stalowe - post #9
kapral1980 Opublikowano 10 Października 2015 Autor #35 Opublikowano 10 Października 2015 Wszystkie grzejniki są stalowe. W grzejnikach powietrze mi się nie zbiera. Pompa wyłapuje chyba całe. Myślę, że kupię ten separator powietrza. Polecacie jakiegoś konkretnego producenta?
kapral1980 Opublikowano 10 Października 2015 Autor #37 Opublikowano 10 Października 2015 Flamco z takimi dinksami metalowymi w środku czy Spirovent z miedzianą siatką? Cena podobna.
mac65 Opublikowano 10 Października 2015 #38 Opublikowano 10 Października 2015 Wszystkie grzejniki są stalowe. W grzejnikach powietrze mi się nie zbiera. Pompa wyłapuje chyba całe. Myślę, że kupię ten separator powietrza. Polecacie jakiegoś konkretnego producenta? A ja polecam zrobić próbę ciśnieniowa instalacji - wyjdzie taniej .Czarów nie ma pompy łykają powietrze i to gdzieś na powrotach , ciśnienie prawdę Ci powie .Byle nie jak w znanym mi przypadku po roku dolewania do CO podniósł się parkiet w salonie .
kapral1980 Opublikowano 10 Października 2015 Autor #39 Opublikowano 10 Października 2015 Próba ciśnieniowa była robiona. Instalacja była nabita powietrzem podczas zalewania posadzek i żadnych spadków nie było. Zanim zamontowałem piec stało wszystko z dwa tygodnie z ciśnieniem około 3 bar(mam zdjęcia na dowód). Wody też nie ubywa.
orzech1976 Opublikowano 10 Października 2015 #40 Opublikowano 10 Października 2015 Na separator szkoda kasy (cuda się nie dzieją musi być jakaś przyczyna) Czy możesz zrobić zdjęcie z boku pieca Zastanawiają mnie te rury na zasileniu idące do góry, rozumiem że do naczynia ale dwie z zasilenia
kapral1980 Opublikowano 10 Października 2015 Autor #41 Opublikowano 10 Października 2015 Dwie rury wychodzą i łączą się razem zaraz za odejściami do pomp, potem już jedną rurą pionowo do naczynia. Z naczynia schodzi przelew do kanalizacji.
orzech1976 Opublikowano 10 Października 2015 #42 Opublikowano 10 Października 2015 W jakim celu to jest zrobione bo nie rozumiem (bardzo możliwe ,że tu jest problem) Jedna rura wystarczy (ten odkos do likwidacji) I jeszcze jak jest podłączone naczynie (zdjęcie lub schemat)
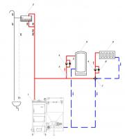
kapral1980 Opublikowano 11 Października 2015 Autor #43 Opublikowano 11 Października 2015 Podłączone są oba wyjścia z pieca do naczynia w celu lepszego odprowadzenia powietrza. Nie wiem jak przez to pompa od co miałaby się zapowietrzyć. Sposób podłączenia naczynia jak w tym układzie:
kapral1980 Opublikowano 11 Października 2015 Autor #44 Opublikowano 11 Października 2015 Może to powietrze w pompie to z kawitacji? Termostaty zamknięte, brak przepływu i pompa mieli wodę w miejscu po godzince zapowietrzona. Odpowietrza się dopiero jak odkręce któryś grzejnik. Z innych objawów powietrze ucieka też automatem jak odłączę wszystkie pompy od prądu.
sambor Opublikowano 11 Października 2015 #45 Opublikowano 11 Października 2015 Dawniej jak były termostaty na wszystkich grzejnikach to jeden powinien być zdjęty lub odkręcony na maxa, aby był przepływ minimalny przez instalację. Weź ustaw pompę na minimum podnoszenia a nie na stały przepływ i zobacz co i jak. Jak gdzieś nie grzeje to trochę zwiększ podnoszenie pompy, aż wszystkie grzejniki będą grzały PS1 Jaka to pompa do CO? PS2 Masz podłogówkę z pompą mieszającą, - ona też daje jakiś odbiór ciepła z kotła. PS3 Bardzo jestem ciekaw jak by zachowywała sie w tym układzie pompa Alpha2
kiminero Opublikowano 11 Października 2015 #46 Opublikowano 11 Października 2015 Na zdrowy rozum to nie ma prawa zaistnieć. Pompa pionowo, więc lepiej mieć nie będzie. Nawet "wędrujące" powietrze powinno w naturalny sposób przez nią przepłynąć, a nie zatrzymywać się na niej. Czy "zapowietrzenie" pompy powoduje zatrzymanie obiegu (grzejniki nie grzeja), czy tylko sobie szumi? Jeśli dochodzi do zatrzymania obiegu, a odpowietrznik nie "syczy", to wymień ten odpowietrznik. Zostaw go też na stałe otwartego. Ja bym usunął ten zawór zwrotny pompy CO (jesli nie korzystasz z priorytetu CWU to jest de facto zbędny, najwyżej na lato zamkniesz zawór przed pompą). Dla "testów" usuń też filtr siatkowy. Taki układ nie ma prawa sie zapowietrzyć. Równie dobrze powietrze mogłoby stanąć w połowie pionowej rury.
kapral1980 Opublikowano 11 Października 2015 Autor #47 Opublikowano 11 Października 2015 Pompy co i cwu wilo yonos pico 25/1-4. Pompa podłogowa wymusza tylko obieg samej podłogoi. Włącza się jej układ w obwód pieca tylko jak puści termostat podłogi. Obecnie mam ustawione 25 stopni ma podłogę więc rzadko to się dzieje. Wszystkie grzejniki z termostatami. Jeżeli odkręce któryś grzejnik na max to zagotuje pomieszczenie. Grzejniki grzeją mimo powietrza w pompie aczkolwiek najdalszy grzejnik zauważalnie gorzej.
wungiel Opublikowano 11 Października 2015 #48 Opublikowano 11 Października 2015 Dawniej jak były termostaty na wszystkich grzejnikach to jeden powinien być zdjęty lub odkręcony na maxa, aby był przepływ minimalny przez instalację. Weź ustaw pompę na minimum podnoszenia a nie na stały przepływ i zobacz co i jak. Czy dobrym rozwiązaniem zamiast otwierania na maxa grzejnika będzie założenie w najbardziej oddalonej gałęzi zaworu pomiędzy zasilaniem a powrotem i ustawienie go na minimalny przepływ?
kapral1980 Opublikowano 11 Października 2015 Autor #49 Opublikowano 11 Października 2015 Ustawienia pompy wypróbowałem chyba wszystkie. Minimum jakie moge ustawić na pompach to podnoszenie 0.5 metra. Baypas pewnie zapewniłby stały przepływ ale jak regulować go automatycznie aby przy każdym zapotrzebowaniu na ciepło zapewnić właściwy przepływ przez grzejniki?
kapral1980 Opublikowano 11 Października 2015 Autor #50 Opublikowano 11 Października 2015 Chciałem prostą instalację CO bez zaworów 4-drożnych, siłowników, wymienników, układów zamkniętych itp. Zwykłe termostaty, mieszacz i dwie pompy i takie problemy.
Rekomendowane odpowiedzi
Zarchiwizowany
Ten temat przebywa obecnie w archiwum. Dodawanie nowych odpowiedzi zostało zablokowane.