Skocz do zawartości
IGNOROWANY

Dużo sadzy


Polo1982

Rekomendowane odpowiedzi

Opublikowano

Witam . Potrzebuje pewnej porady. Otóż posiadam piec Welder na ekogroszek z podajnikiem żeliwnym retorta i rusztem wodnym. Ruszt ten znajduje się 15 cm nad palnikiem a deflektor 11 i w wymienniku mam dużo sadzy. Ruszt wodny to cztery rury a za ostatnią do tylnej ściany jest przerwa 9cm. Zastanawiam się jak ograniczyć tą sadzę. Mam pomysł żeby od dołu do rusztu wodnego przykręcić szamotową płytę oczywiście nie zasłaniając tej ostatniej przerwy. Czy coś takiego pomogło by w dopalaniu sadzy?. Poproszę o opinie lub jakieś wskazówki jak rozwiązać ten problem. 

Opublikowano

Chciałbym zamiast deflektora 18cm odizolować ruszt wodny płyta szamotową żeby nie generował sadzy zostawiając ta przerwę z tylko 9cm. 

 

IMG_20191230_094544.jpg

Opublikowano

Nie wsadzisz tam za bardzo deflektora ani płyty szamotowej ( za male odległości). Najprościej ( nie znaczy najlepiej) wrzucić tę płytę na ruszt.

Opublikowano

Pomoże to w pozbyciu się sadzy? Teraz to po 5-7 dniach w zależności od ustawień te przerwy 1cm między rusztami są zalepione

Opublikowano

Położenie płyty na ruszt wodny pozwoli na dopalenie się gazów, obniżenie temp. spalin ale zarastanie między rurami będzie wg mnie większe. Znam to z autopsji. Podwieszenie pod rusztem deflektora, z powodu małej odległości od palnika do rur również jest nie najlepszym rozwiazaniem. Sam musisz spróbować, co u ciebie się sprawdzi najlepiej

Opublikowano

Zrób mała próbę. Kup szeroką blachę do wypieków odetnij jeden koniec i podwies taka rynnę pod rusztami np na 2 drutach. Jak będzie poprawa w ilości sadzy to już wiesz co trzeba zrobić.

Zwykła cienka blacha przepali się po ok 2 miesiącach, ale jak trafisz na grubą to posłuży cały sezon lub dwa.

Pozostanie drobny problem z czyszczeniem. Ruszta to dość skutecznie ograniczają, ale nic nie stoi na przeszkodzie by dodatkowy arkusz blachy położyć na płask. Ewentualnie lekko go zawinąć po bokach by się dopasował do rusztów.

 

Obawiam się że może wzrosnąć spalanie gdyż ruszta nie będą odbierać już takiej ilości energii cieplnej.

 

Wysłane z mojego MAR-LX1A przy użyciu Tapatalka

 

 

 

 

Opublikowano

Moja propozycja zmiany komory spalania V1.

Blacha może być cienka, to tylko na czasz testów.
Pomiędzy blachą a rusztem wodnym zachowaj odległość 10 mm. Powstałą wnękę zasyp przesianym popiołem.
Gdybyś nie było możliwości włożenia tej konstrukcji w całości, to wykonaj z dwóch części.

936701491_Polo1982_V1_Propozycjazmianykomoryspalania.jpg.410edfd89bfe48e312e006aaffe3c237.jpg

 

Moja propozycja zmiany komory spalania V2.

Do poprzedniej konstrukcji przykręcamy dwie śruby.
Na śrubach zawieszamy blachę bez przykręcania.
Dlaczego bez przykręcania, ponieważ w łatwy sposób będziemy mogli zawieszać blachy o różnej "wysokości".

W taki sposób otrzymaliśmy komorę spalania z nawrotem gazów spalinowych.

2023176296_Polo1982_V2_Propozycjazmianykomoryspalania.jpg.c234ed9871ff42acdd44fe34c29372e4.jpg
  

 

Moja propozycja zmiany komory spalania V3.

To kompletu możemy wykonać komorę dopalania.
Wykonać w taki sposób, by można było wyczyścić dodatkową półkę z osiadłych pyłów.

1618330629_Polo1982_V3_Propozycjazmianykomoryspalania.jpg.b3d0020115b3064e2f2873f8ef1771c9.jpg

Opublikowano

Ok. Biorę się do roboty. A czemu ma służyć ten popiół?

 

Opublikowano

Witam.

A nie lepiej wyciąć ruszt wodny? I po problemie. Przeszedłem to i jest super....

Pozdrawiam Yaro.

Opublikowano

Pewnie lepiej tylko trzeba mieć możliwości i sprzęt do takiej ingerencji

 

 

Opublikowano

Też tak myślałem.....spawarka szlifierka i 4-5 godzin dłubania.

IMG_20191230_163323.thumb.jpg.eb0e87ae7edc912f49cf387a9f442853.jpg

Dojrzewałem do tego tematu 3-4 miesiące..... Naprawde warto.

Sadzy nie zobaczysz.....

Fotka z filmu wykonanego ponad rok temu

A tu komin w środku......

IMG_20191227_091353.thumb.jpg.d9ddf0a888e947ba55d98ce859226f9a.jpg

Pozdrawiam i życzę powodzenia w nowy roku.

Yaro

Opublikowano
6 godzin temu, Andrzej_M_ napisał:

Moja propozycja zmiany komory spalania V1.

Blacha może być cienka, to tylko na czasz testów.
Pomiędzy blachą a rusztem wodnym zachowaj odległość 10 mm. Powstałą wnękę zasyp przesianym popiołem.
Gdybyś nie było możliwości włożenia tej konstrukcji w całości, to wykonaj z dwóch części.

936701491_Polo1982_V1_Propozycjazmianykomoryspalania.jpg.410edfd89bfe48e312e006aaffe3c237.jpg

 

Moja propozycja zmiany komory spalania V2.

Do poprzedniej konstrukcji przykręcamy dwie śruby.
Na śrubach zawieszamy blachę bez przykręcania.
Dlaczego bez przykręcania, ponieważ w łatwy sposób będziemy mogli zawieszać blachy o różnej "wysokości".

W taki sposób otrzymaliśmy komorę spalania z nawrotem gazów spalinowych.

2023176296_Polo1982_V2_Propozycjazmianykomoryspalania.jpg.c234ed9871ff42acdd44fe34c29372e4.jpg
  

 

Moja propozycja zmiany komory spalania V3.

To kompletu możemy wykonać komorę dopalania.
Wykonać w taki sposób, by można było wyczyścić dodatkową półkę z osiadłych pyłów.

1618330629_Polo1982_V3_Propozycjazmianykomoryspalania.jpg.b3d0020115b3064e2f2873f8ef1771c9.jpg

V1 - bardzo dobre

V2 - super

V3 - mam wątpliwości co do ogrzewania kotłowni przez drzwiczki .

Ogólnie - uznanie .

Cięcie rusztu wodnego to już robota nie dla każdego .

Opublikowano
16 godzin temu, Jasa napisał:

,,,, Ogólnie - uznanie . ,,,,

Dziękuje, jest mi niezmiernie miło.

Mam awersje do tych wszystkich "dopalaczy" zawieszonych nad paleniskiem.
 

16 godzin temu, Jasa napisał:

,,,, V3 - mam wątpliwości co do ogrzewania kotłowni przez drzwiczki . ,,,,

To nie tylko ta wada występuje w tym moim poglądowym rozwiązaniu.
Z tyłu kotła na wysokości rusztu wodnego, na pewno jest ścianka wymiennika ciepła, więc wypadało by i to miejsce zaizolować.

Powstała szczelina pomiędzy "komorą spalania" a "komorą dopalania" nie musi być szeroka tak jak wnętrze kotła.
To wszystko zależy o "kultury technicznej" operatora kotła i przede wszystkim należy zachować bezpieczeństwo użytkowania kotła. 

Dołączę wersje V4

289227061_Polo1982_V4_Propozycjazmianykomoryspalania.jpg.b6ced60d7203aad88ee8f1d8bac9d249.jpg

Opublikowano

Nalezy z rozsadkiem podejsc do kazdej modyfikacji. Sam sie o tym przekonalem!

Zmniejszajac drastycznie pole przekroju (mozliwe np. zapylenie kanalu) oslabimy ciag a to moze powodowac cofanie sie dymy/zaru/palnych gazow w strone zasobnika lub na zewnatrz kotla.

Ps. Mimo to uwazam ze pomysl/kierunek sluszny, tylko z rozsadkiem...

Opublikowano
4 godziny temu, Andrzej_M_ napisał:



Mam awersje do tych wszystkich "dopalaczy" zawieszonych nad paleniskiem.
 

 

Nie jesteś w tym odosobniony.

Przez kilka lat "praktykowałem" deflektor z bębna hamulcowego. Efekty lepsze od fabrycznego - do czasu.

W ubiegłym sezonie Retopal nijak nie chciał przypominać paliwa z poprzednich sezonów . Kiedy już "sadzenie" zaczęło mnie wkurzać , obniżyłem deflektor , zwiększyłem napowietrzanie i sadza znikła . Cóż z tego jak w kotle zrobiło się niebiesko a po otwarciu drzwiczek czuć było wyrażny , gryzący zapaszek - duże NOx-y.

W trosce o zdrowie moje, rodziny  i środowiska , bęben opuścił kocioł całkowicie . W chwili obecnej rolę "dopalacza" pełnią płyty szamotowe ułożone na ruszcie awaryjnym ( żeliwnym , nie wodnym )usytuowane  tak , aby po bokach komory spalania została przestrzeń ok.20 mm .

Efekt jest taki że sadza zamieniła się w szary pył i da się z tym żyć.

Niestety nie starczyło mi inwencji na rozwiązanie V2 z nawrotem spalin  - a szkoda , bo bardzo ciekawe.

Opublikowano

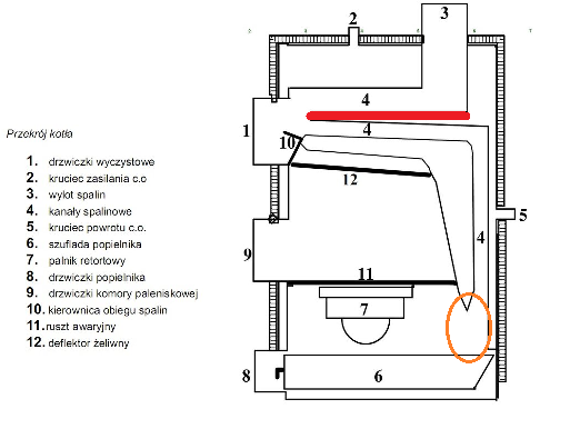
Rozumiem, że taka lub podobna modyfikacja u mnie nie wchodzi w grę, ponieważ po odbiciu się od "sklepienia", spaliny wracają w dół do komory nawrotnej i dopiero póżniej pomiędzy poziomymi półkami do czopucha? Poniżej szkic kotła, z tą różnicą, że u mnie w wersji 11 kW najwyższa półka jest "sucha", czyli kawałek wyciąganej blachy. Rusztu awaryjnego nie ma.

 

318110472_RBRprzekrj.png.2a36f4926368313630f3d3b02acfd788.png

Za odchylaną "kierownicą" spalin (11) i  nad blachą żeliwną (12)- deflektorem zbiera mi się suchy popiół, którego raczej nie usuwam. Czy można przyjąć, że pełni taką samą rolę, jak "zasypka" z popiołu w propozycji kol. @Andrzej_M_? Z wielką uwagę czytam wpisy, bo choć rzadkie, to zawsze konkretne i na temat :)

Spotkałem się z propozycją ograniczenia szerokości szczeliny komory nawrotnej, która jest na całą szerokość kotła (pomarańczowy owal) w celu zwiększenia sprawności. Jak się mogę domyślać, spaliny lepiej omywają komorę spalania, zanim trafią do nawrotnej?

 

 

 

Zarchiwizowany

Ten temat przebywa obecnie w archiwum. Dodawanie nowych odpowiedzi zostało zablokowane.

  • Ostatnio przeglądający   0 użytkowników

    • Brak zarejestrowanych użytkowników przeglądających tę stronę.
×
×
  • Dodaj nową pozycję...

Powiadomienie o plikach cookie

Używając tej strony zgadzasz się na Polityka prywatności.