szakallo Opublikowano 3 Marca 2019 #1 Opublikowano 3 Marca 2019 Witam wszystkich, mam nadzieję że nie dostanę bury ale czy ktoś doradziłby czy warto jeszcze ładować w ściany kable pod regulatory pokojowe jeśli ściany są otynkowane ale jeszcze pętle i posadzki podłogowe nie zalane betonem z miksokreta? Roboty nie dużo bo jeszcze będę gipsował więc nic praktycznie się nie zmieni. Załączam zdjęcie mojej chałupki jeśli warto jeszcze się szarpnąć na to i zrobić proszę o opinię i w jakich pomieszczeniach dodać regulatory i czy dodać gdzieś czujniki temperatury w posadzce? Z góry wielkie dzięki.
kolar7dp Opublikowano 4 Marca 2019 #2 Opublikowano 4 Marca 2019 Pewnie że warto. Ja zrobiłem u siebie w każdym pomieszczeniu oprócz łazienek, a salon wydzieliłem na 2 strefy. Wylewki anhydrytowe mam u siebie więc działać będzie szybciej, ale na Twoim miejscu i tak bym dołożył dla trzymania stałych temperatur w danych pomieszczeniach.
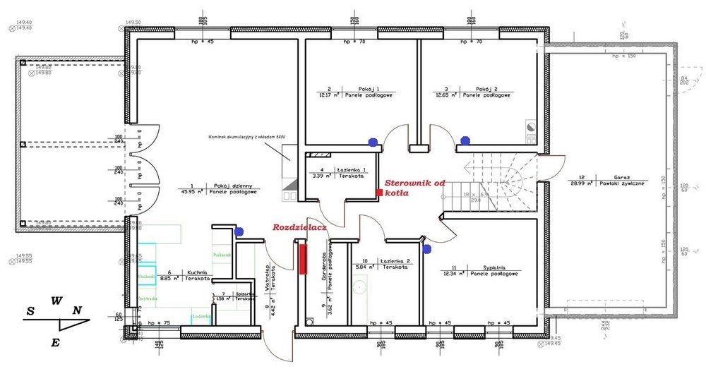
szakallo Opublikowano 4 Marca 2019 Autor #3 Opublikowano 4 Marca 2019 Dzięki za odpowiedź Mówisz że w łazienkach nie potrzeba ? Jeśli możecie napisać ile warto byłoby dać termostatów? Liczyłem jeden na salon i kuchnię ( są tam razem 4 pętle), po jednym do pokojów, i dodatkowo do łazienek ale może masz rację może olać je. Razem 4? Zaznaczyłem niebieskimi kropkami. Czy w łapaczu też potrzebny czy samo wyregulowanie rozdzielacza wystarczyłoby?
bonanza Opublikowano 4 Marca 2019 #4 Opublikowano 4 Marca 2019 Najpierw zobacz, czy sterownik kotła obsłuży Twoje regulatory i jak będzie zarządzał całym układem sterowania (bo dostaniesz z nich informację grzać lub nie). Mówisz jeszcze o czujnikach temperatury w podłodze, gdzie je wepniesz (sterownik, rozdzielacze podłogówki)? Chętnie zobaczę Twoje rozwiązanie sterowania układem.
szakallo Opublikowano 4 Marca 2019 Autor #5 Opublikowano 4 Marca 2019 Powiem szczerze że się nie zastanawiałem zbytnio nad tym. Kocioł myślałem nad Termetem w zestawie z pogodówką i jakimś sterownikiem. Dodatkowo chciałem dodać moduł SALUS KL06 230V +MODUŁ SALUS PL06 i dodatkowo sterowniki w pokojach z PWM. Kocioł pyrkałby sobie na jakimś tam ustawieniu i sterownik od podłogówki miałby za zadanie tylko sterować dodatkowo pomieszczeniami Na razie nie wgłębiałem się w kompatybilność systemu więc liczyłem że ktos coś podpowie.
gmaj22 Opublikowano 4 Marca 2019 #6 Opublikowano 4 Marca 2019 Dodam tylko, że są też termostaty pokojowe "kontaktujące" się z listwą bezprzewodowo. Tam gdzie masz dwie strefy, układasz je nie jedna obok drugiej, ale "jedna w drugiej", co pozwala na równomierne grzanie całej powierzchni. Wtedy jedną pętlą grzejesz non stop a drugą sterujesz temperaturę w pomieszczeniu.
szakallo Opublikowano 4 Marca 2019 Autor #7 Opublikowano 4 Marca 2019 To że są bezprzewodowe to chyba wiedzą wszyscy, dlatego się pytam czy warto szarpać się z kablami jak mam jeszcze czas na to. W salonie i kuchni gdzie jest jakby jedna przestrzeń myślałem rozwiązać to mniej więcej tak jak mówisz czyli 2 pętle grzeją sobie cały czas na małym przepływie a 3 i 4 na siłownikach przez sterownik ze ściany. Przyznam że nie spotkałem się jeszcze z takim rozwiązaniem jak mówisz pętla w pętli to byłoby niezłe.
PioBin Opublikowano 4 Marca 2019 #8 Opublikowano 4 Marca 2019 Zanim cokolwiek położysz to trzeba wiedzieć do czego to podłączyć? I co to ma robić. Inaczej bedzie wisiał tylko kikut ze ściany. Oglądnij "gotowe" rozwiązania sam zobaczysz czy to dla Ciebie. Ale z drugiej strony jak nie położysz to zamykasz sobie drogę na przyszłośc do rozbudowy - zostanie tylko wifi i jakieś gotowce.
szakallo Opublikowano 5 Marca 2019 Autor #9 Opublikowano 5 Marca 2019 Pio właśnie o to mi chodzi wolałbym zrobić sobie na przyszłość kable a nie wszystko wi-fi czy tam inne częstotliwości wysyłać, już niedługo w domach będzie takie promieniowanie że cewka z diodami będzie sama świecić. Kable mam zamiar poprowadzić z lekkim nadmiarem i skitrać je w puszkach od włączników światła w razie czego dodam po puszce z boku i tam będą regulatory lub czujniki temp. Przeglądam zestawy Tech i Salusa i mniej więcej wiem jak to sobie poukładać tylko nie robiłem tego i trochę po omacku jeszcze w tym się poruszam, dlatego miałem nadzieję że ktoś coś podpowie w co warto iść a na co szkoda kasy.
Ksieciunio Opublikowano 5 Marca 2019 #10 Opublikowano 5 Marca 2019 Hej, zawsze możesz położyć dobrej klasy kabel LAN, później wykorzystasz go do czego chcesz. Bo normalny kabel z dwoma żyłami może nie wystarczyć jak będziesz chciał później rozbudować. Tak samo zrobił bym z siecią pod kompa / TV. Zrobić już teraz po kablu, bo uzyskać dobry transfer przez WiFi to sztuka.
szakallo Opublikowano 5 Marca 2019 Autor #11 Opublikowano 5 Marca 2019 Zgadza się pod większość możliwych innych sterowań i internet mam wszystko porobione włącznie z oświetleniem sterowanym czujkami ruchu. Na parter zużyłem prawie 2km kabli.
shogunzlasa Opublikowano 5 Marca 2019 #12 Opublikowano 5 Marca 2019 Salus sralus... Chińszczyzna jak każda jedna :P Najtaniej - Auraton (oczywiście chińszczyzna :P) - rozwiązania przewodowe tanie jak barszcz. Możesz nawet zarzucić zwykłą pompę jak Cię ciśnie bo w listwie od razu jest sterowanie pompą. Mają niedrogie, funkcjonalne regulatory pokojowe. Bezprzewodówki tez w miarę tanio (cena jak za techa przewodowego), tylko jak większa odległość (strop czy cuś) może być kiepsko - lepiej po jednej listwie na piętro. Jeśli za to chodzi o zasięg to tech wypada dużo lepiej. Kiedyś testowaliśmy reg. pokojowe techa i auratona - techa można chyba zapiąć u sąsiada ze 4 ściany żelbetowe dalej... Co do kabli - 4 żyły - są sterowania 2-żyłowe plus komunikacja 3cią linią dla np. obniżenia nocnego ze sterownika głównego. Przy takich przekrojach różnice w cenie są śmieszne...
szakallo Opublikowano 6 Marca 2019 Autor #13 Opublikowano 6 Marca 2019 Dzięki szogun o to mi chodziło jakaś konkretna opinia, jednak będę kładł kable tak zdecydowałem. Teraz pytanie czy taki rozkład regulatorów jak zaznaczyłem ma sens czy dodać gdzieś dodatkowe - warto dołożyć?
bonanza Opublikowano 6 Marca 2019 #14 Opublikowano 6 Marca 2019 Tak obserwuję doświadczenia kolegów w zakresie instalacji kabli w pomieszczeniach i raczej w przypadku C.O. i innych branż, to już jest raczej "średniowiecze". Nie lepiej sterować z web lub aplikacji dla każdego użytkownika w domu (telefon), po co wstawać i iść do "regulatora", żeby przestawić temperaturę? Oczywiście w danym pomieszczeniu mamy czujnik C oraz H, a może i dla wentylacji :-) Dla bajeru warto dać panel HMI z ustawieniami na każdym poziomie domu. Pozdrawiam
szakallo Opublikowano 6 Marca 2019 Autor #15 Opublikowano 6 Marca 2019 Akurat nie chcę mieć web wifi itp po pierwsze jak ustawię temp w pokojach to praktycznie pewne że nie będę zmieniał tam długo. Chciałbym tylko jak najbardziej ograniczyć zjawisko akumulacji posadzki i stosować dwie temperatury w ciągu doby w pokojach i salonie z kuchnią. Łazienki mogą mieć tyle samo cały czas. Dodatkowo od południa w salonie słońce dość mocno dogrzewa więc chciałbym z tego korzystać i nie grzać zbyt mocno jak nie trzeba tam.
gmaj22 Opublikowano 6 Marca 2019 #16 Opublikowano 6 Marca 2019 Moim zdaniem umieszczanie czujników przy samych drzwiach jest niefortunne. Nie dość, że na wprost okien, to jeszcze na "przeciągu". Wschodzące i zachodzące słońce jest dość nisko... :)
mironw Opublikowano 6 Marca 2019 #17 Opublikowano 6 Marca 2019 W dniu 5.03.2019 o 13:45, szakallo napisał: Kable mam zamiar poprowadzić z lekkim nadmiarem i skitrać je w puszkach od włączników światła w razie czego dodam po puszce z boku i tam będą regulatory lub czujniki temp. możesz schować to w zwykłych głębokich puszkach pod tynkiem i zrobić zdjęcia , a jak zechcesz z nich skorzystać to , delikatnie odbijesz tynk do zaślepki i masz puszkę na wierzchu z kablami i do samej kotłowni
mironw Opublikowano 6 Marca 2019 #18 Opublikowano 6 Marca 2019 4 godziny temu, bonanza napisał: Nie lepiej sterować z web lub aplikacji dla każdego użytkownika w domu (telefon), po co wstawać i iść do "regulatora", żeby przestawić temperaturę? A ruch gdzie, przecież ruch to zdrowie
bonanza Opublikowano 7 Marca 2019 #19 Opublikowano 7 Marca 2019 8 godzin temu, mironw napisał: A ruch gdzie, przecież ruch to zdrowie Ruch to kolega będzie miał jak nie ogarnie sterowania oraz technologii i będzie biegał do piwnicy rwąc siwiejące z nerwów włosy. Bo na razie, z tego co widzę na to się zanosi.
szakallo Opublikowano 7 Marca 2019 Autor #20 Opublikowano 7 Marca 2019 Oj bonanza nie skreślaj wszystkich na starcie to że nie robiłem czegoś takiego to nie znaczy że nie dam rady. Wiem jedno chcę jak najmniej bezprzewodówki, bo widziałem już nie jeden wynik w "bogatym domu" w µW/mm² po prostu uważam że to co można zrobić na kablu powinno być na kablu. A co do ruchu to powiem że jeśli będę miał dość to po prostu zaproszę kogoś albo oleję całość, a sam czegoś nowego się nauczę. Pozdro
bonanza Opublikowano 7 Marca 2019 #21 Opublikowano 7 Marca 2019 W swoich postach nigdzie nie wspominałem o urządzeniach bezprzewodowych, mam podobne zdanie, jak najmniej. Chciałem Ciebie tylko uczulić na etapie budowy, gdzie jest największy problem. To, że naładujesz "dwu stanów" ( a nie regulatorów) w każdym pokoju, które informuję układ grzewczy (grzać lub nie), to tylko jeden malutki klocek w całej układance. Tylko jak tym sterować? Gdzie te sygnały wchodzą, jaki źródło grzania (węgiel, gaz), jaki sterownik? Rozdzielacza, pieca? I tak jak, do danego pokoju możesz dodać zawsze "czujnik bezprzewodowy w skrajanym przypadku" to jeżeli skopiesz technologię na etapie budowy, to trudno będzie bezkolizyjnie rozwiązać problem. Teraz, żeby zamknąć temat, to kładź przewody, tylko dobierz odpowiednie miejsca, bo umiejscowienie czujnika temperatury jest kluczowe. I tak jak łatwo jest zamontować sam czujnik temperatury i przekazać dane do sterownika, to już "regulator" pokojowy ma wbudowany wewnętrzny czujnik i zwykle umieszcza się go przy drzwiach (a to jak pisali koledzy ma wpływ na prawidłowe odczyty).
szakallo Opublikowano 7 Marca 2019 Autor #22 Opublikowano 7 Marca 2019 Bonanza - czy to przypadkiem nie ty pisałeś o średniowieczu na kablu? Zgadzam się co do dwustanów przyznam że też mi się to nie podoba dlatego pytam jak to ogarnąć w jakimś sensownym zestawie aby nie było czegoś takiego przy podłogówce. Widzę że są sterowniki pokojowe z PWM coś by to pomogło ale nadal to nie to co chciałbym.
bonanza Opublikowano 7 Marca 2019 #23 Opublikowano 7 Marca 2019 Tak, dla mnie to średniowiecze, ciągać kable do pseudo regulatorów nawet nie wiedząc jak ich używać. Osobiście, podłączam czujnik temperatury, wilgotności w każdym pokoju w wprowadzam dane do sterownika, który zarządza całym układem. Nastawy robię przez telefon, PC lub z centralnego panelu. Najpierw robi się projekt technologiczny, potem automatyki, ale nie odwrotnie, kable a potem projekty. Koledzy podpowiadali, zobacz gotowe rozwiązania całego układu ogrzewania, np: Danfoss. Ale jak chcesz uzyskać konkretne odpowiedzi, to zacznij od przedstawienia technologii (jaki, piec, jakie zawory 3d, 4d, sterowanie pogodowe, rozdzielacze, bufory?) Potem wyjdzie jakiej automatyki potrzebujesz. Zobaczysz dopiero się zacznie. Wątek z instalacją czujników w pokoju przejdzie do historii i zauważysz, że podchodziłeś od końca do rozwiązania problemów z ogrzewaniem. Pozdrawiam
Rekomendowane odpowiedzi
Zarchiwizowany
Ten temat przebywa obecnie w archiwum. Dodawanie nowych odpowiedzi zostało zablokowane.