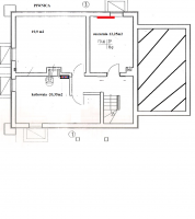
Nyny4 Opublikowano 18 Listopada 2014 #1 Opublikowano 18 Listopada 2014 Mam prośbę o pomoc w doborze mocy kotła na Eko groszek z podajnikiem,, Mam dylemat, ponieważ z obliczeń na stronie ciepłowłasciwe..pl wyszło mi ze piec powinien mieć moc w zakresie 10-12 kW--czy to będzie hulać? Dom jest zbudowany z pustaków 20 cm-Ytoung, ocieplony styropianem 15cm, okna 3 szybowe -alphaline 90. Poddasze wełna skalna Roockwol -28cm...W piwnicy będzie ogrzewane jedno pomieszczenie 12,25m2 ( widać na zdjęciu), parter (55,75m2) cały w podłogówce, dodatkowo grzejnik w salonie i drabinka w łazience+ grzejnik w garażu (20,4m2), Poddasze(75m2)- w pokojach grzejniki ,korytarz +łazienka podłogówka. Łącznie daje 163,4 m2 do ogrzania.. Kotły które biorę pod uwagę to SKAM-P Premium 12kW z IRYD PID FL , DEFRO KOMFORT EKO PZ 15 KW , SKAM-P Premium 17kW z IRYD PID FL
TIMON120777 Opublikowano 18 Listopada 2014 #2 Opublikowano 18 Listopada 2014 spokojnie to 12-ką obskoczysz nie bierz nic mocniejszego
Gość mak Opublikowano 19 Listopada 2014 #3 Opublikowano 19 Listopada 2014 Do kotłowni nie masz pożądnego wejścia z zewnątrz??? Węgiel będziesz wiaderkami nosił czy w woreczkach??? Do tego dom o niskim zapotrzebowaniu na ciepło bo nie wiem czy sobie z tego zdajesz sprawę że te 10kW to będzie Ci potrzebne przy -20 C! Do tego instalacja mieszana podłogowo-grzejnikowa i wierz albo nie palenie węglem to będzie jedna wielka masakra szczególnie w okresach przejsciowych. Kocioł na węgiel będzie bardziej wytwórnią sadzy niż kotłem. W takim domu aż się prosi o nowoczesne źródło ciepła kondensacyjny kocioł gazowy z instalacją solarną do wspomagania cwu albo pompa ciepła ( wtedy lepiej wszędzie dać podłogówkę). I proponuję zapomnieć o węglu.
balbulus Opublikowano 19 Listopada 2014 #4 Opublikowano 19 Listopada 2014 Skoro kolega pyta o piec węglowy, to pewnie taki chce, prawda? Choć racja, im mniejsze zapotrzebowanie, tym mniejsze różnice w kosztach samego paliwa. Masz zaprojektowane grzejniki o mocy około 12,5 kW - jeżeli dasz większy piec, nie ma siły, aby to wykorzystać, chyba że podskoczysz z temperaturą wody w instalacji - acz przypuszczam, że grzejniki projektowane na temperatury 80/60 stopni zasilanie/powrót, więc za bardzo nie ma pola manewru "w górę". Z drugiej strony, temperatura wewnętrzna projektowana 20 stopni - lubisz tyle, czy wolisz więcej (wówczas zwiększy Ci się potrzebna moc grzejników, trzeba będzie kupić większe - o większej mocy - czyli będziesz mógł wykorzystać nieco większy kocioł). Piec 12 kW zapewne w najmroźniejsze dni da radę osiągnąć większą moc, zwłaszcza na solidnym opale - wystarczy na CO i CWU. A wejście oddzielne do kotłowni szczerze polecam, jeżeli nie masz - wykonaj (nawet kosztem wykonania zmian w projekcie i pozwoleniu na budowę, odkopania fundamentów, rozkucia - najlepiej powiększenie otworu okiennego do drzwiowego i wykonania schodów). Nie musi być koniecznie w pomieszeniu kotłowni, bylebyś mógł wejść do piwnicy z zewnątrz. PS. W pomieszczeniu suszarni polecam nawiew, bo o wywiew jak widzę zadbałeś.
marc73 Opublikowano 19 Listopada 2014 #5 Opublikowano 19 Listopada 2014 Nyny4 Ja mam co prawda mniejszy nieco domek, ale i izolację chyba mniejszą niż Twoja. Skam-P Plus 12kW daje radę. Ma palnik, na którym w siarczyste mrozy możesz zapodać 15kW.
Nyny4 Opublikowano 20 Listopada 2014 Autor #6 Opublikowano 20 Listopada 2014 Dzieki wam za podpowiedzi. W sklepach jak pytalem to doradzali 17 , 19 kw .Mam jeszcze dylemat odnosnie palnika Ardeo z obrotowa glowica lub ekoenergia 2 , a moze jest cos trwalszego i lepszego do tego pieca. Tez nurtuje mnie temat odnosnie pomp, czy warto Alpha 2 z funkcja auto adapt( tez do cyrkulacji)brac przy sterowniku pieca IRYD.
marc73 Opublikowano 20 Listopada 2014 #7 Opublikowano 20 Listopada 2014 U mnie pracują 3 pompy Grundfosa. Dwie takie zwykłe - jedna goni wodę na dom, druga CWU (podpięte w obiegu kotła). Dodatkowo jeszcze mam pompę do cyrkulacji. Wszystkie 3 podłączone do IRYDA.
Nyny4 Opublikowano 20 Listopada 2014 Autor #8 Opublikowano 20 Listopada 2014 Spoko ale chodzi mi oto czy funkcja ktora posiadają te pompy (auto adapt) alpha 2 beda dobrze wspolpracowac z IRYDEM i czy warto w te pompy inwestowac...
leszkowaty Opublikowano 20 Listopada 2014 #9 Opublikowano 20 Listopada 2014 iryd sobie poradzi,, bo on zawiaduje czy pompa ma dostawać prąd czy tez nie, a pompa robi to co tam potrafi (posiadam iryda i pompę adaptacyjna i ;ładnie współpracują) musisz sobie tylko odpowiedzieć czy w Twojej instalacji wykorzystasz ten auto-adapt
Nyny4 Opublikowano 3 Marca 2015 Autor #10 Opublikowano 3 Marca 2015 U mnie pracują 3 pompy Grundfosa. Dwie takie zwykłe - jedna goni wodę na dom, druga CWU (podpięte w obiegu kotła). Dodatkowo jeszcze mam pompę do cyrkulacji. Wszystkie 3 podłączone do IRYDA. Hej mam juz piecyk te 12 kw.Tylko duzo pali- czy moge prosic o nastawy iryda pid .
Pieklorz Opublikowano 4 Marca 2015 #11 Opublikowano 4 Marca 2015 Witaj Napisz kolego, czy to jest jeszcze dom w budowie (bez mebli, drzwi,..) czy już mieszkacie (to,że jest to pierwszy sezon jest logiczne) Wklej zdjęcia wykonania instalacji, aby było widać co tam wychodzi na zasilanie (jakie są zawory itp.) i jak wracają rury do powrotów Podaj także, co oznacza,że dużo pali. W pierwszym sezonie czy też przy wygrzewaniu budynku często kocioł pracuje w okolicach mocy znamionowej i >60%, czyli dobowe spalanie może wówczas wynosić w widełkach 35-48kg dla prawidłowo dobranego kotła 12kW. Normalny poziom osiągnie się w drugim-trzecim sezonie w normalnie już zamieszkałym oraz finalnie ocieplonym budynku (uzupełnianie strat ciepła takiego budynku oznacza oscylacje w granicy 30%mocy kotła, czyli powinny to być widełki gdzieś w granicy 12-25kg przy węglu kamiennym ok.26MJ)
seven01 Opublikowano 30 Listopada 2016 #12 Opublikowano 30 Listopada 2016 Witam wszystkich. Pozwólcie ze podepnę się pod temat. Coraz częściej skłaniam się do zmiany zasypowca na podajnik, z tego względu ze nie mam możliwości stałej obsługi kotła. Moje zapotrzebowanie dla domu to 17kw bez cwu, jednakże planuje wykorzystać grzanie z nadwyżki - bojler 140 l. Zamierzam korzystać z groszku typ 32 min 28Mj z kopalni wieczorek. Na chwile obecna dwa typy skam p premium 17kw(21kw max) z batorym i irydem oraz defro komfort eko pz 20 kw ecoenergia i tech. Instalacja grzejnikowa dom z 1970. Cos doradzicie?
Mario1969 Opublikowano 1 Grudnia 2016 #13 Opublikowano 1 Grudnia 2016 Kolego Seven podstawowa informacja to: co ty masz zamiar ogrzewać .Małą szklarnię czy 600m2 porządnie ocieplonego domu. Wstępnie zapotrzebowanie ustaliłeś na stronie ciepłowłaściwe.pl to daj wynik.
seven01 Opublikowano 1 Grudnia 2016 #14 Opublikowano 1 Grudnia 2016 http://cieplowlasciwie.pl/wynik/1vfa. Dokładne zapotrzebowanie jest dla mnie ciężkie do ustalenia z tego względu ze np ściana północna posiada 5 cm styropianu, wnęki okienne przy balkonach także, a jest ich łącznie 4 sztuki. Dlatego w wyniku nie jest uwzględniona izolacja. W zeszłym sezonie przy -18 paląc 24 na dobę złuzycie nie przekraczało 50 kg/ 24h przy węglu 28MJ z wieczorka temp w pomieszczeniu była 21 stopni. Aktualnie brak grzania cwu.
Mario1969 Opublikowano 1 Grudnia 2016 #15 Opublikowano 1 Grudnia 2016 Seven01 prześledź bo może się mylę. Spalałeś max 50kg węgla załóżmy bardzo dobrego 28MJ (7,7kW) z bardzo dobrą sprawnością 70% (5,4kW) tj. 50kg x 5,4kW= 270kW / 24h co daje zapotrzebowanie 11,25 kW/h przy -18. Te 70% sprawności to byłby wynik celujący. Kocioł 18 kW bez zająknięcia łyknie 75kg na dobę , a być może będzie miał na więcej ochotę, Nadmienię. że w tym wątku kocioł 23kW ogrzewa 400m2 nieocieplonego budynku obecnie miałem https://forum.info-ogrzewanie.pl/topic/20059-kocio%C5%82-ogniwo-eko-plus-m-26-opinie-u%C5%BCytkowanie-za-i-przeciw/.
seven01 Opublikowano 1 Grudnia 2016 #16 Opublikowano 1 Grudnia 2016 Mario1969 Twoje obliczenia wydaja się być absolutnie słuszne.Lecz 50 kg od rozpalenia do resztki żaru na ruszcie nie mowie tutaj o stalopalnosci. Ta ilość ledwie starczała na 21 stopni, a moja żona jak nie ma 22 to niezadowolona chodzi. Wiec myślę ze faktycznie potrzeba więcej niż 11,3 kW/h. Obliczenia na ciepło właściwe są wykonane dla 22 stopni. Nie linczujcie świeżaka za ewentualne nieścisłości :) Obecnie grzeje dolniakiem 20kw z pomniejszonym rusztem palnikiem szamotowym temp spalin 180-200 stopni.
papasmurfek Opublikowano 1 Grudnia 2016 #17 Opublikowano 1 Grudnia 2016 No widzisz! Sam sobie odpowiedziałeś. 17kw to maks jaki będziesz potrzebował. Dobra dwunastka dała by radę ogrzać ten dom.
Mario1969 Opublikowano 2 Grudnia 2016 #18 Opublikowano 2 Grudnia 2016 Ja policzyłem ogólnikowo, od odpowiedniego kotła są na forum lepiej zorientowani. Zawsze można uśrednić pomiędzy 12 a 17. Kocioł też wybierz bezproblemowy. Nieraz lepiej tysiaka dołożyć niż bić się potem z koniem.
seven01 Opublikowano 2 Grudnia 2016 #19 Opublikowano 2 Grudnia 2016 Czyli rozumiem ze np defro eko komfort pz o znamionowej mocy 15 kw spokojnie da rade ogrzać dom, a może i starczy na cwu ?? Wcześniej myślałem ze defro podaje moc maks stąd to 20 kw, dopiero w dtr doczytałem ze jest to moc znamionowa. Szkoda tylko ze nie podają maksymalnej.
Pieklorz Opublikowano 3 Grudnia 2016 #20 Opublikowano 3 Grudnia 2016 W przypadku Skama można jeszcze zadziałać nieszablonowo np. wybierając Skam-P Premium 12kW ze średnim batorym (jest odrobinę większy od małej ekoenergii) albo Skam-P Premium 17kW, ale z małym batorym (deko mniejszy od małej ekoenergii) pytanie czy przy tym pz nauczyli się palnika i sposobu obchodzenia z nim, czy montują seryjny. Jak seryjny, to wybierz kocioł od nich z innym palnikiem, bo przy większym zapotrzebowaniu polegniesz
seven01 Opublikowano 3 Grudnia 2016 #21 Opublikowano 3 Grudnia 2016 Kolego Pieklorz masz na mysli skama 12 kW z batorym 25 lub 17 kW z batorym 10 ??. Znalazłem dtr gdzie był jeszcze batory 20, ale na stronie są tylko trzy wersje 10,25,40
Pieklorz Opublikowano 3 Grudnia 2016 #22 Opublikowano 3 Grudnia 2016 Producent palnika trochę rzeźbił z nazwami Potocznie ja mówię mały, średni, duży Wkleję Ci fotkę małego i średniego koło siebie
Pieklorz Opublikowano 3 Grudnia 2016 #23 Opublikowano 3 Grudnia 2016 Dla porównania wkleję Ci jeszcze fotkę tzw małej ekoenergii
Rekomendowane odpowiedzi
Zarchiwizowany
Ten temat przebywa obecnie w archiwum. Dodawanie nowych odpowiedzi zostało zablokowane.