Dragster Opublikowano 1 Listopada 2014 #1 Opublikowano 1 Listopada 2014 Witam wszystkich. Mam prośbę do Was o pomoc. Walczę z podłogówką już jakiś czas po tym jak zostawił mnie instalator z tym samego. Mam 7 pętli podłogówki od 50m do 100m. Gubość rur przy piecu miedź fi28 do rozdzielaczy fi22. Pompa do podłogówki Wilo Yanos Pico 25/1-4. Podłoga w pex16. zawór 3D Afriso ATM 361. Zastanawiam się co jest nie tak. Przypływów prawie tak jakby nie było. Praktycznie tylko na 3cim biegu pompy coś zaczyna być widać od 0.5-0.8. Dziękuję za pomoc
sambor Opublikowano 1 Listopada 2014 #2 Opublikowano 1 Listopada 2014 Daj jakiś schemat, rysunek jak to jest połączone. może jakieś foto. Teoretycznie pompa ok, zawór też wystarczy. Czy podłogówka była odpowietrzana?
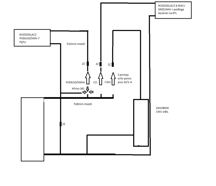
Dragster Opublikowano 1 Listopada 2014 Autor #3 Opublikowano 1 Listopada 2014 Podłogówkę przelałem z węża, każda pętle z osobna. Potem pompą na 3cim biegu każdą pętlę również z osobna aż przestało szumieć. W skrócie na szybko wygląda to tak: Podłoga generalnie grzeje, w pomieszczeniach jest 25st przy temperaturze zasilania 36st. Martwi mnie natomiast kompletny brak możliwości regulacji. Wyczuwam różne temperatury posadzki w poszczególnych pętlach. Górna belka zasilająca. Pompa na 2gim biegu.
kiminero Opublikowano 1 Listopada 2014 #4 Opublikowano 1 Listopada 2014 Zdjęcia mieszacza i rozdzielacza by się przydały. Zdarzyła mi się dwukrotnie sytuacja kiedy ten właśnie zawór jakimś cudem się zacinał. Od tej pory mam do nich lekkie uprzedzenie, chociaż były to sytuacje, gdzie przepływ był, ale efektu cieplnego nie było. W obydwu przypadkach musiałem zawory zdemontować i "ręcznie" grzybek zaworu "odkleić" (wystarczyło palcem nacisnąć od strony wody gorącej). Powodem było zakręcenie zaworu przez użytkowników i pozostawienie go tak na dłuższy czas. Odkąd zabroniłem dotykania się pokrętła regulacyjnego, problem nie występuje. Sprawdź jeszcze dla pewności rodzaj przepływomierzy (powrotne czy zasilające) i czy są właściwie w związku z tym podpięte belki. Aby wykluczyć braki napływu, wyłącz resztę pomp i wtedy oceń zmianę na rotametrach. Filtr standardowo do kontroli.
sambor Opublikowano 1 Listopada 2014 #5 Opublikowano 1 Listopada 2014 Schemat jest dobry, może być problem z rotametrami - niewłaściwe rotametry do rozmiaru belki i czy nie zacina się zaw 3-D? Czy sprawdzałeś działanie regulacji podłogi tylko na 1 pętli , pozostałe zamknięte?
Dragster Opublikowano 1 Listopada 2014 Autor #6 Opublikowano 1 Listopada 2014 Temperatura na belce jest taka sama jak za zaworem 3D. Aczkolwiek niższa o 4st niż zadana. Zadana ~39-40st pokrętło ustawione na 5.2 a temperatura za zaworem 36st. Temperatura na kotle 60st. Zauważułem jedno: rożnica temperatury zasilania zaworu 3D 5st powoduje różnicę za zaworem na poziomie 0.5st. Rotametry mają zero u góry czyli są odpowiednie dla belki zasilającej. Martwi mnie ich wątpliwa jakość, całe plastikowe. Może są nie od kompletu z nyplem.
Dragster Opublikowano 1 Listopada 2014 Autor #7 Opublikowano 1 Listopada 2014 Schemat jest dobry, może być problem z rotametrami - niewłaściwe rotametry do rozmiaru belki i czy nie zacina się zaw 3-D? Czy sprawdzałeś działanie regulacji podłogi tylko na 1 pętli , pozostałe zamknięte? Tak sprawdziłem, na 2gim biegu pompy przy otwartej jednej pętli przepływ pojazuje każdy rotametr na poziomie 2.0-2.5l/s
sambor Opublikowano 1 Listopada 2014 #8 Opublikowano 1 Listopada 2014 A jak ustawisz pompę na 3 bieg to jakie są przepływy?, może jednak te pętle są większe niż pisałeś? Jeżeli to nie pomoże to są dwie rzeczy do zrobienia: wymienić zawór 3-D na VTA 572 lub pompę na 25/60, albo rozdzielacz na markowy np Uponor, Purmo. Wymiana samych rotametrów jest kłopotliwa, ale w tym może ci pomóc kolega z forum @tomekb, skrobnij do niego na priv https://forum.info-ogrzewanie.pl/user/4018-tomekb/.
Dragster Opublikowano 1 Listopada 2014 Autor #9 Opublikowano 1 Listopada 2014 Na 3 biegu pompy do 1l/s. Pętle na 100% nie większe niż 100m. Generalnie na rotametrach nie widać różnicy pomiędzy pętlą najkrótszą a najdłuższa. Z kolegą @tomekb już się kontakowałem, posiada takowe pasujące do tego rozdzielacza. Wymienię może jednego na próbę.
sambor Opublikowano 1 Listopada 2014 #10 Opublikowano 1 Listopada 2014 Jeden rotametr to nic nie da , trzeba wszystkie, przecież dla 1 pętli to na starych rotametrach też chodzi dobrze. Przepływy nie powinny być większe niż 2,0l/min.
Dragster Opublikowano 1 Listopada 2014 Autor #11 Opublikowano 1 Listopada 2014 Sprawdziłem to jeszcze raz, pompa na 3ci bieg. Wszystkie rotametry otwarte. Pierwsze dwie pętle 1.5l/s (kuchnia, łazienka ) salon: 3 plętle 1l/s, najdłuższa pętla w salonie 0.5l/s, wiatrołap/korytarz na poziomie 1l/s. Może faktycznie za mała pompa lub zawór 3D.
sambor Opublikowano 1 Listopada 2014 #12 Opublikowano 1 Listopada 2014 Identyczny temat już był na forum, pomogła wymiana pompy https://forum.info-ogrzewanie.pl/topic/18133-problem-z-przep%C5%82ywem-pod%C5%82og%C3%B3wka/ U ciebie jest chyba to samo.
Dragster Opublikowano 1 Listopada 2014 Autor #13 Opublikowano 1 Listopada 2014 Czyli 3D i pompa. Przeliczę jeszcze raz długości pętli ze zdjęć bo coś faktycznie jest nie tak. Poradźcie mi jeszcze: pompa Wilo Stratos Pico 25/1-6 czy Grundfos Aplha 25/60?
sambor Opublikowano 1 Listopada 2014 #14 Opublikowano 1 Listopada 2014 Szczerze mówiąc wolę Grundfosa, do Wilo nie mam zaufania np pompa głebinowa Wilo padła po 4 latach, Grunfos w tych samych warunkach pracuje już 5 lat, Wilo Stratos Pico w mojej kotłowni padło po roku sporadycznej pracy doprowadzając do zagotowania kotła na paliwo stałe. Może to uprzedzenie, ale Wilo nie montuje i nie polecam, choć podobno to ta sama klasa pomp.
Dragster Opublikowano 1 Listopada 2014 Autor #15 Opublikowano 1 Listopada 2014 Dziękuje za podpowiedzi. Mam jeszcze jedno pytanko a nie chce zakładać nowego tematu. Automatyka do sterowania podłogówki, co byście polecili. Sam zastanawiam się nad Purmo TempCo. Może coś innego sprawdzonego w bojach.?
sambor Opublikowano 1 Listopada 2014 #16 Opublikowano 1 Listopada 2014 A co miałaby ta automatyka robić?
Dragster Opublikowano 1 Listopada 2014 Autor #17 Opublikowano 1 Listopada 2014 Zwykłe sterowanie temperaturą w pomieszczeniach. 4 termostaty, 7 siłowników i listwa W między czasie policzyłem długości pętli ze zdjęć. Najdłuższa ma 96m i to liczyłem z nadmiarem +10%. Na niej własnie jest przy otwartych wszystkich rotamertach na max 0.5l/s, pompa 3ci bieg. Zastanawiam się czy nie zrobić podmieszania przez sterownik na kotle. Mam zawór 3D Afirso ARV 384 bez siłownika który ma KVS 12m3/h. Chcąc zaoszczędzić sobie kłopotów wstawiłem w jego miejsce tego Afriso 361 za namową znajomego, bo mniej kłopotów. Za cenę nowego 3D mogę kupić siłownik zapewne. Pod sterownik na kotle mogę podłączyć 2 zawory mieszające.
kiminero Opublikowano 1 Listopada 2014 #18 Opublikowano 1 Listopada 2014 No to lepiej być nie może. Do tego sterowanie pogodowe z dopasowaną krzywą grzewczą zamiast tych termostatów. Jeśli już są, to jedno i drugie może razem pracować.
sambor Opublikowano 1 Listopada 2014 #19 Opublikowano 1 Listopada 2014 Siłowników na pętlach nie montuj z tym tylko kłopoty, najlepsze jest sterowanie pogodowe , zawór 3-D z siłownikiem to największa wygoda, wtedy pompa 25/40 wystarczy.
Dragster Opublikowano 1 Listopada 2014 Autor #20 Opublikowano 1 Listopada 2014 Czyli najlepszym rozwiązaniem było by podłączyć 2 zawory 3D z siłownikami pod piec (podłogówka parter i grzejniki piętro). Do tego termostaty pokojowe podłączone pod automatykę pieca. Rozumiem, że termostaty pokojowe podłączamy w najchłodniejszym pokoju (głowica termostatyczna grzejnika na full).
sambor Opublikowano 1 Listopada 2014 #21 Opublikowano 1 Listopada 2014 To jaki masz ten kocioł? jakie grzejniki, ? Jak instalacja nowa to na grzejniki nie ma sensu dawać zaw 3-D Jak są grzejniki żeliwne to prędzej można taką przeróbkę robić. Przy kotle na paliwo stałe i dwóch zaworach 3-D trzeba pomyśleć o ochronie powrotu na kocioł, inaczej kocioł szybko zgnije.
Dragster Opublikowano 1 Listopada 2014 Autor #22 Opublikowano 1 Listopada 2014 To jest zupełnie nowa instalacja. Grzejniki mam V22 75/65/20 przewymiarowane na 30%(Stelrad). Wszędzie głowice termostatyczne. Kocioł Heiztechnik HT EKO DUO 25KW ze sterownikiem HT-800.
sambor Opublikowano 1 Listopada 2014 #23 Opublikowano 1 Listopada 2014 Jak są głowice na grzejnikach to nie ma co myśleć o zaw 3-D na zasilaniu grzejników. Kocioł wymaga jednak ochrony powrotu - jak masz to zrealizowane?
krisb Opublikowano 1 Listopada 2014 #25 Opublikowano 1 Listopada 2014 Witam wszystkich. Mam prośbę do Was o pomoc. Walczę z podłogówką już jakiś czas po tym jak zostawił mnie instalator z tym samego. Mam 7 pętli podłogówki od 50m do 100m. Gubość rur przy piecu miedź fi28 do rozdzielaczy fi22. Pompa do podłogówki Wilo Yanos Pico 25/1-4. Podłoga w pex16. zawór 3D Afriso ATM 361. Zastanawiam się co jest nie tak. Przypływów prawie tak jakby nie było. Praktycznie tylko na 3cim biegu pompy coś zaczyna być widać od 0.5-0.8. Dziękuję za pomoc A kolega sprawdził Kvs tego zaworu? troszkę mało jak na te 7 pętli, bo tylko 1,6 m3/h. I tu jest chyba problem. Ja zastosowałem ESBE 572 i zero problemów. 8 pętli po 95 m i pompa Grundfosa chodzi ma I biegu. Przepływy rzędu 1,5 l/min. Ale zawór ma Kvs 4,5 m3/h. I to jest chyba wąskie gardło, tzn zawór Afriso 361. Trzeba było choć 561 zastosować, Kvs ma 2,5 m3/h, ale to i tak ciut mało, jak będziesz chciał ostrzej pędzić tą podłogówkę. To trzeba było dokładnie policzyć. Mam wrażenie, że ten Afriso to był wstawiony na zasadzie,"a może się uda"! I posłuchaj kolegów, nie montuj siłowników, to pomyłka! Przerabiałem to. Sterowanie pogodowe na 3D z siłownikiem pięknie załatwia spraę. Pozdrawiam
Rekomendowane odpowiedzi
Zarchiwizowany
Ten temat przebywa obecnie w archiwum. Dodawanie nowych odpowiedzi zostało zablokowane.