Skocz do zawartości
IGNOROWANY

Jak rozłożyć rury do centralnego ogrzewania


PolSeo

Rekomendowane odpowiedzi

Opublikowano

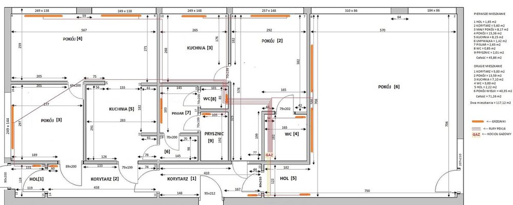
Witam, planuje podłączyć ogrzewanie gazowe i w tym celu samemu układam rury do grzejników są to rury pex 16
może ktoś zobaczyć czy dobrze je rozłożyłem na projekcie są koloru czerwonego
mam 15 grzejników zrobiłem 8 obiegów, kocioł gazowy będzie w pomieszczeniu nr [4] ale
gdybym wyburzył jedną sciankę mógby on być w pomieszczeniu [6] czyli bardziej w środku całego mieszkania,
jak myślicie czy w pokoju pod numerem [3] będzie grzać grzejnik bo idą tam najdłuższe rury i na jednym obiegu podłaczone są jeszcze dodatkowe grzejniki w holu?grzejnik.thumb.jpg.f9e4891ce10b7f876b79ecdcfe8bfa5a.jpg

Zarchiwizowany

Ten temat przebywa obecnie w archiwum. Dodawanie nowych odpowiedzi zostało zablokowane.

  • Ostatnio przeglądający   0 użytkowników

    • Brak zarejestrowanych użytkowników przeglądających tę stronę.
×
×
  • Dodaj nową pozycję...

Powiadomienie o plikach cookie

Używając tej strony zgadzasz się na Polityka prywatności.