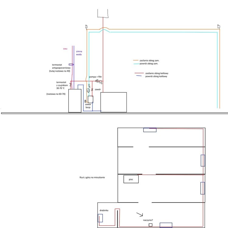
conneus Opublikowano 8 Października 2019 #1 Opublikowano 8 Października 2019 Witam, mam problem z obmyśleniem instalacji C.O w mieszkaniu. Ogrzewanie będzie realizowane za pomocą piecokuchni ~8KW (jest to moc zapewne bez sprawności to trzeba liczyć z 2x mniej). Inne sposoby prócz węgla nie wchodzą w grę(mam 3 fazy, ale ogrzewanie prądem nawet w akumulacji nie wychodzi tanio). Problemem jest poprowadzenie rur... Rury muszą iść górą, niestety wysokość pomieszczenia to tylko 2,5m co wykreśla praktycznie naczynie otwarte, a typowo zamkniętego obiegu do tego typu pieca bez sterowalności (tylko szufladka na dole) nie chce dawać. Dlatego obmyśliłem coś w tym stylu by zrobić cześć otwartą z pieca i zamknięta na grzejniki. Niestety z racji, że mam mało miejsca by to wyglądało jak na zdjęciu. Z tego co się dowiedziałem ciśnienie naczynia powinno być 0,2 + bar na każdy metr różnicy między naczyniem a rurami później położonymi przy podłodze. Różnica ta u mnie wynosi ~2m tak więc ciśnienie przepony wynosi 0,4bar a ciśnienie wody 0,3 bar. Naczynie 12l (wiem, że pewnie za dużo, ale praktycznie ta sama cena co 8). Wody z układzie to będzie 4 grzejniki po maks 10 żeber + drabinka + rury to jakieś 30-40l. Teraz pytanie czy mój schemat i obliczenia mają jakikolwiek sens działania? Zawór bezp. 3 czy 1,5 bar? Zakładam, że trzeba dać 2 zawory, 1 na zasileniu a 2 na na powrocie lepiej dać tak samo blisko pieca czy dalej (np koło drabinki). Przed trójnkiem do naczynia przeponowego będzie separator powietrza + jakieś tam automaty w niektórych miejscach. Pozdrawiam PS. zapomniałem napisać instalacja otwarta tzn. piec i bojler z rury 1" stalowej (mam takie wyjście z pieca), albo miedzi 22-28. Układ zamknięty z pex 20.
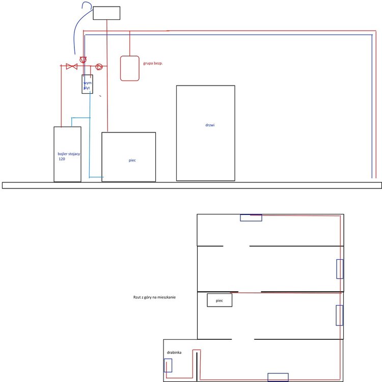
gmaj22 Opublikowano 8 Października 2019 #2 Opublikowano 8 Października 2019 Żle to masz narysowane. Jedna pompa na obiegu kocioł - wymiennik - bojler. Wymiennik na lato odcinany zaworami - grzejesz tylko wodę. Temperatura w bojlerze pilnowana przy pomocy zaworu termostatycznego z głowicą i czujnikiem z kapilarą w bojlerze.Skoro to piecokuchnia, więc takie rozwiązanie pewnie bierzesz pod uwagę. Jeść przecież trzeba cały rok :) Druga pompa obiegu wtórnego na powrocie przed wymiennikiem płytowym. Zbiornik membranowy nie musi być pod sufitem - może być na powrocie. Czy i jaki - najlepiej policzyć - to zależy od pojemności układu oraz temperatury wody. (przyrost objetości wraz ze wzrostem jej temperatury a co za tym idzie - wzrost ciśnienia) Obie pompy powinny tłoczyć do wymiennika. Stąd w obiegu kotłowym pompa na zasilaniu - drugi powód to wysokość montażu naczynia otwartego - tu jesteś ograniczony wysokością pomieszczenia. Pompa w obiegu CO - na powrocie.
conneus Opublikowano 8 Października 2019 Autor #3 Opublikowano 8 Października 2019 Gotowane raczej na tym nie będzie (nie zbyt wygodne, rozpalanie i gotowanie, już nie mówiąc o smoleniu komina, przy takim przepaleniu by coś zagotować), woda w lato raczej grzana elektrycznie grzałką w bojlerze ( no chyba, że awaria jakaś by była). Ogólnie zasilenie i powrót od wymiennika na początku idą "górą" bo musi to iść nad futryną. Jeśli naczynie przeponowe nie musi być bezpośrednio przy piecu to miałbym ciekawsze miejsce na upchnięcie go z dala od pieca,a przy wymienniku dałbym dodatkowy zawór bezpieczeństwa. Miejsce innego położenia naczynia jest na dole. Jeśli naczynie ze względów bezp. musi być przy piecu to będzie na samym dole pomiędzy wymiennikiem a piecem , a trójnik do naczynia dam po stronie ssawnej pompy.
sambor Opublikowano 8 Października 2019 #4 Opublikowano 8 Października 2019 Ja zrobiłbym to na instalacji otwartej i byłoby OK.
conneus Opublikowano 8 Października 2019 Autor #5 Opublikowano 8 Października 2019 Wtedy będzie 15-25 cm różnicy między dołem naczynia otwartego a rurami do grzejników :/ Pasowało by mi też tak zrobić, ale nie wiem czy układ nie będzie się zapowietrzać za bardzo, albo czy nie będzie wywalać wody.... No chyba, że dać pompę na powrocie, i poszukać jakiejś z podnoszeniem ~3m co by dało naczynie na wys min. 2,1 m.
Gość Opublikowano 8 Października 2019 #6 Opublikowano 8 Października 2019 @conneus A dlaczego dołem rur nie puścisz?
conneus Opublikowano 8 Października 2019 Autor #7 Opublikowano 8 Października 2019 Brak możliwości drewniany strop. Drewniane deski na podłodze o grubości 4-5 cm, jakbym naruszył 1 to by mi z pól ściany odpadło, bo akurat nachodzi 2-3cm pod tynk. Tzn może uda mi się jakoś powrotną zrobić dołem, ale zasilanie i tak musi iść dołem później w pomieszczeniach na samym dole i na górze, gdyż tam są ukosy.
Gość Opublikowano 8 Października 2019 #8 Opublikowano 8 Października 2019 Ale belki idą wzdłuż czy wszerz? Pewnie w wszerz ścian,ale ja nie widzę problemu by to wykonać :)
conneus Opublikowano 8 Października 2019 Autor #9 Opublikowano 8 Października 2019 Akurat wzdłuż ściany... i to 3m... ale tak czy siak popatrzę jutro i może uda się jakiegoś pexa tam zarzucić czy inne pieruństwo. W sumie jakby pompa na powrocie była to nie ma wtedy różnicy czy rura będzie 1 cm pod naczyniem, jedynie naczynie ma być najwyższym punktem.
Gość Opublikowano 8 Października 2019 #10 Opublikowano 8 Października 2019 To jeszcze lepiej-jeżeli nie ma syfu w stropie to powinno być ok.U mnie nie było.
Gość Opublikowano 8 Października 2019 #11 Opublikowano 8 Października 2019 5 minut temu, conneus napisał: Akurat wzdłuż ściany Belki na pewno wzdłuż bo deskowanie jest odwrotne do położenia belek.
conneus Opublikowano 8 Października 2019 Autor #12 Opublikowano 8 Października 2019 Ale i tak by zdjąć tą deskę muszę rozebrać pół pomieszczenia bo są na pióru wpust i akurat zaczyna się z naprzeciwka. Najwyżej jutro coś pokombinuję. Może akurat legary czy coś idzie idealnie w tym miejscu to wytnę i wstawię z powrotem. Ale wracając do układu. Załóżmy, że jeśli rura by szła dołem taki układ może być? Dodam, że potrzeba tak czy siak mi pexa potem na grzejniki. To rura wbiorcza i z 1m powrotu będzie ze stali + rury do bojlera. Otwarta instalacja by pasowała bo na samym wymienniku i pompie idzie oszczędzić dużo...
Gość Opublikowano 8 Października 2019 #13 Opublikowano 8 Października 2019 Ok,tutaj gdzie masz piecokuchnię to nie dawaj grzejnika-duże to pomieszczenie?
conneus Opublikowano 8 Października 2019 Autor #14 Opublikowano 8 Października 2019 15 m2 akurat jako kuchnia będzie.
Gość Opublikowano 8 Października 2019 #15 Opublikowano 8 Października 2019 To nie dawaj. Ja mam kocioł w takiej samej kuchni-ciut więcej bo jeszcze korytarz i jest tam cieplutko. Ty natomiast będziesz miał piecokuchnię,która oddaje do otoczenia prawie albo ponad 2kW
Gość Opublikowano 8 Października 2019 #16 Opublikowano 8 Października 2019 Zawsze z tej strony możesz puścić rury bo może łatwiej jest podłogę rozebrać albo masz tam meble i za meblami można puścić itp
conneus Opublikowano 8 Października 2019 Autor #17 Opublikowano 8 Października 2019 90cm ścianą z 2 kominami w środku i kanałem wentylacyjnym. Raczej już bezpieczniej będzie przebić się dołem pod drzwiami z 1 rurą. Popatrzę jutro może pójdzie puścić stal 3/4 bo pexa wolę nie mimo, że mam zaciskarke. Bo akurat to będą w połączenia pod podłogą i jak znam życie akurat one dadzą znać o sobie.
Gość Opublikowano 8 Października 2019 #18 Opublikowano 8 Października 2019 No wiesz,nic nie pisałeś o tak grubej ścianie oraz o położeniu komina:) 6 minut temu, conneus napisał: Bo akurat to będą w połączenia pod podłogą Dlaczego ma być łączone pod podłogą? Rurą sobie wyjdziesz pod sam piec. Z drugiej strony ciężko Ci będzie włożyć tam rurę stalową,no chyba że dość dużo wytniesz tej podłogi.
sambor Opublikowano 8 Października 2019 #19 Opublikowano 8 Października 2019 1 godzinę temu, conneus napisał: Wtedy będzie 15-25 cm różnicy między dołem naczynia otwartego a rurami do grzejników :/ Pasowało by mi też tak zrobić, ale nie wiem czy układ nie będzie się zapowietrzać za bardzo, albo czy nie będzie wywalać wody.... No chyba, że dać pompę na powrocie, i poszukać jakiejś z podnoszeniem ~3m co by dało naczynie na wys min. 2,1 m. Te 2,1m o których piszesz , przy pompie na powrocie to musi być nad najwyższą rurą - czyli u sąsiada!
conneus Opublikowano 8 Października 2019 Autor #20 Opublikowano 8 Października 2019 No to trzeba będzie zrobić trójnik na rurę wzbiorcza przy piecu i dać pompę na zasilanie. Chociaż wydawało mi się, że u kogoś widziałem naczynie blisko rur a miał pompę na powrocie. Ps. sąsiada nie mam wyżej :D
sambor Opublikowano 8 Października 2019 #21 Opublikowano 8 Października 2019 To naczynia nad stropem nie można dać? Powinieneś zrobić tak - rury jak najniżej a naczynie nawet dorabiane na wymiar jak najwyżej - tam ze 20cm różnicy powinno być.
conneus Opublikowano 9 Października 2019 Autor #22 Opublikowano 9 Października 2019 Niestety nade mną jest ślepy strych akurat bo mam mieszkanie narożne na 1P, a u nas w kamienicy są 2 piętra. To mam ślepą przestrzeń bez dostępu. Po 2 godzinach batalii planowania. znalazłem słaby punkt, mianowicie deski pod futryną. Po stratach w postaci wykręconego kciuka udało mi się usunąć te deski. I mam teraz możliwość puszczenia czegoś co ma ~28 mm ( w otulinie) i zastanawiam się nad pex, albo Cu. bo niestety będzie 2x skręt 90 stopni po każdej stronie rurki. No to myślałem teraz nad czymś takim... Jeszcze znalazłem super naczynie 10l o wym 18x18x30 /wys. x szer. x dł./ jest szersze a nie wysokie, tylko nie mam pojęcia jaka pojemność wodna kotła jest , ale 10l to spokojnie starczy do instalacji nawet jakby miała 100l.
sambor Opublikowano 9 Października 2019 #23 Opublikowano 9 Października 2019 Coś w tym guście, jaka wyjdzie odległość między rurą nad drzwiami a naczyniem. Miedź będzie lepsza , łatwiej poprawić błędy.
Gość Opublikowano 9 Października 2019 #24 Opublikowano 9 Października 2019 To trochę bez sensu bo i tak puszczasz zasilenie górą,więc dlaczego i powrotu tam nie dać lub odwrotnie,czyli dlaczego zasilenia dołem nie dać? Przecież jak dasz zasilenie dołem to temat z naczyniem masz rozwiązany.
conneus Opublikowano 9 Października 2019 Autor #25 Opublikowano 9 Października 2019 Haha, no patrz się o tym nie pomyślałem. Przecież i tak ta instalacja jest o biegu pompowym tylko. Tylko sczerze musze zobaczyć czy tam 2 rurki wejdą.
Rekomendowane odpowiedzi
Zarchiwizowany
Ten temat przebywa obecnie w archiwum. Dodawanie nowych odpowiedzi zostało zablokowane.