Skocz do zawartości
IGNOROWANY

Dobór kotla


przygody

Rekomendowane odpowiedzi

Opublikowano

No właśnie, tak się zastanawiam od czego to zależy bo wydaje mi się, że przy takim zapotrzebowaniu wystarczyłby kocioł z normalną pojemnością i dobrą modulacją bo nawet w okresach przejściowych będzie sporo potrzebował tych kW. Wątpię by często się wygaszał.

Opublikowano
10 godzin temu, sambor napisał:

Ja nie wierzę w tą moc 17kW - chyba , że to dla domu starego, ale dla nowego nie może być powyżej 40-50W/m2 czyli albo dom prawie 400m2 albo brak kilku okien.

Z resztą inst też skopana - do PC stosuje rozdzielacze z pompą mieszającą i do tego ma być  ten Biawar - zgroza.

Faktycznie trochę pomiseszałem z tym 17KW 

CW.jpg

Opublikowano
10 godzin temu, sambor napisał:

Z resztą inst też skopana - do PC stosuje rozdzielacze z pompą mieszającą i do tego ma być  ten Biawar - zgroza.

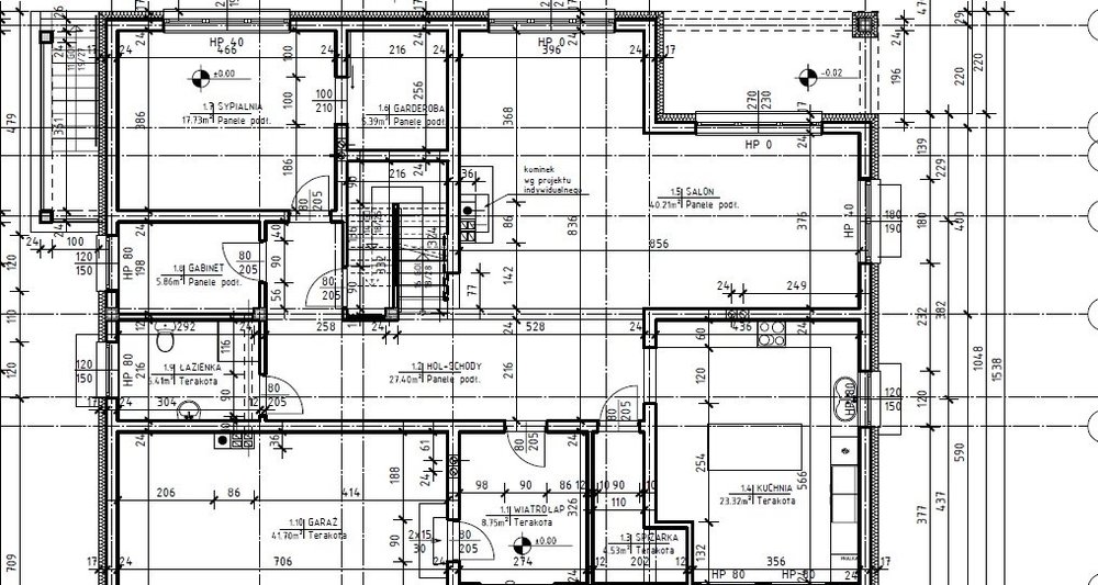
Kolego możesz rozwinąć swoją myśl? Jestem laikiem w tej dziedzinie i za tydzień będę robił wylewki więc jest jeszcze okazja coś poprawić.

parter.jpg

poddasze.jpg

Opublikowano
3 godziny temu, badyl7 napisał:

Kolego możesz rozwinąć swoją myśl? Jestem laikiem w tej dziedzinie i za tydzień będę robił wylewki więc jest jeszcze okazja coś poprawić.

Poplątały mi się te nicki - jeden badyl ( @badyl7) pisze Biawarze , drugi o  ( @Badyl18) o PC i bądź tu na szybki ze smartfona mądry.

Przyjmij, że to post  nie do Ciebie, ale zdjęcia rozdzielaczy możesz dać, ponadto daj średnice rur do rozdzielaczy.

Opublikowano
W dniu 2.11.2018 o 22:37, sambor napisał:

 

Przyjmij, że to post  nie do Ciebie, ale zdjęcia rozdzielaczy możesz dać, ponadto daj średnice rur do rozdzielaczy.

Średnica rur do rozdzielaczy 25mm

45420990_298697770972953_1369920629838446592_n.jpg

45491654_478155186007823_9198742649975078912_n.jpg

45593352_824853681239212_7418321213627301888_n.jpg

Zarchiwizowany

Ten temat przebywa obecnie w archiwum. Dodawanie nowych odpowiedzi zostało zablokowane.

  • Ostatnio przeglądający   0 użytkowników

    • Brak zarejestrowanych użytkowników przeglądających tę stronę.
×
×
  • Dodaj nową pozycję...

Powiadomienie o plikach cookie

Używając tej strony zgadzasz się na Polityka prywatności.