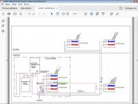
JacekZet Opublikowano 29 Października 2017 #1 Opublikowano 29 Października 2017 Witam Wszystkich Forumowiczów. Zwracam się do Was, specjalistów forum o pomoc. Mieszkam już kilka lat w domku, gdzie od "fachowca" odziedziczyłem taką instalację CO jak w załączniku. Co roku zimą są jazdy z ustawieniem temperatury w pomieszczeniach a Pan Fachowiec znikł po zainkasowaniu kasy (to chyba standard!). Chciałbym sobie z tym problemem jakoś poradzić sam, ale poddałem się. Po przewertowaniu forów doszedłem do wniosku, ze czegoś tu brakuje... Pomożecie??? Dane: Łączna pow grzewcza ok 250m2, Wykonanie instalacji rur grzewczych zgodnie ze sztuką (do 80 mb obwód grzewczy, układanie zgodne z rastrem folii do ogrzew podłogowego), Instalacja 99% w podłogówce + 1 kaloryfer (sypialnia parter) + 2 kaloryfery (garaż i warsztat - pow dodatkowa) ale nie podłączone, 5 szt rozdzielczy stref grzewczych, ale bez wyposażenia (bez wskaźników przepływu). W każdym tylko zawory ręczne i odpowietrzniki (automat+manual) na zasilaniu i powrocie, Kocioł BROTJE WBS 22 C (22kW) kondensat jednofunkcyjny, Całość układu CO zasilona tylko z pompy obiegowej pieca (pompa 3-biegowa GRUNDFOS UPS 15-50 130), Każde pomieszczenie (jeden lub dwa obwody) jest "sterowane" poprzez czujnik temperatury i napęd elektryczny grzejnikowy zainstalowany na powrocie obwodu (prosta automatyka SALUS). ..tyle.. Czytałem o zespołach pompowych w każdym rozdzielaczu, o sprzęgłach hydraulicznych, itp... Co zrobić żeby "ogarnąć" mój problem? Z góry dziękuję za pomoc... Jacek STREFY GRZEWCZE 2017.pdf
odpowietrznik Opublikowano 29 Października 2017 #2 Opublikowano 29 Października 2017 Ta pompa w kotle nie da rady tak dużej podłogówce.Powinno być sprzęgło a za nim większa pompa na OP.Jeżeli miałyby być oprócz OP grzejniki to wtedy dodatkowa pompa na grzejniki a na OP zawór 3D i za nim mocniejsza pompa. Obawiam się że również będą zaniżone przekroje rur do poszczególnych rozdzielaczy OP.Jednym słowem trudno to będzie ogarnąć.W dodatku brak rotametrów to totalna porażka=nie wiadomo jakie są przepływy w poszczególnych pętlach
JacekZet Opublikowano 30 Października 2017 Autor #3 Opublikowano 30 Października 2017 Dzięki za szybką odp. Sugerujesz jedną pompę za sprzęgłem dla całości OP, czy indywidualne grupy pompowe dla każdej szafki rozdzielczej?
odpowietrznik Opublikowano 30 Października 2017 #4 Opublikowano 30 Października 2017 Nie wiem jak biegną rury i jakiej średnicy do poszczególnych rozdzielaczy tak ze trudno coś doradzić.Z podanego pliku widać ze tych rozdzielaczy jest aż 5,nie byłoby sensu dla każdego oddzielna pompa i 3D(to byłaby masakra cenowa)i nikt tak nie robi.Być może wystarczyłaby jedna pompa o sporej wydajności lub max.dwie(ale nie widzę instalacji więc trudno coś powiedzieć czy wchodzi w rachubę opcja dwóch pomp-wtedy oczyw.2x3D) Jak już pisałem wcześniej przeszkodą mogą być również zbyt małe średnice rur do rozdzielaczy"wąskie gardło" które nie będą w stanie przenieść odpowiedniej mocy.No i coś musi sterować tą pompą(mi) i zaworem(mi)3D zazwyczaj są to moduły mieszaczowe dedykowane do kotła danego producenta
shogunzlasa Opublikowano 30 Października 2017 #5 Opublikowano 30 Października 2017 Co się tak wszyscy na rotametry rzucili? Jak jest coś zrobione dobrze to bez nich też ustawisz wszystko - zejdzie dłużej ale też się da...W instalacji nie ma mieszacza - więc idzie jedna temp. na wszystkie obiegi. Jeśli mówisz że podłogówka była rozkładana po liniach to znaczy że nikt nie liczył zapotrzebowania na ciepło i ile tych rurek o tej temp tam być musi (kaloryfer też się liczy a nie że akurat taki pasuje pod okno) - więc pewnie niektóre pomieszczenia przy tej temp niedomagają inne mogą być przegrzane. Masz sterowanie zerojedynkowe. Czyli nie mieszasz wody na chłodniejszą jak jest za ciepło a wyłączasz cały obieg aż wystygnie. Jak jest za zimno to włącza się znowu - jak podłogówki jest za mało dla danej temp. zasilania to ten obieg się nie zamknie. I tutaj główne pytanie co steruje zaworami termostatycznymi? Do każdej głowicy (każdego obiegu) podpięty jest jakiś osobny czujnik?P.S. jak ty grzejesz wodę w CWU przy kotle jednofunkcyjnym bez mieszacza? Prąd?
odpowietrznik Opublikowano 30 Października 2017 #6 Opublikowano 30 Października 2017 Opcja z 2pompami miałaby sens gdyby była możliwość poprowadzenia dodatkowych rur w okolice rozdzielacza tego dla OP 81m2 wtedy byłyby dwa niezależne obiegi mieszaczowe dla parteru i piętra(załącznik)Ale pewnie na tym etapie nie ma już takiej możliwości więc chyba skazany jesteś na 1pompę. Ps.CWU grzeje szybko za pomocą kotła) i zaden mieszacz nie jest mu do tego potrzebny)
shogunzlasa Opublikowano 30 Października 2017 #7 Opublikowano 30 Października 2017 Cwu grzeje bezpośrednio - tylko jaką temp? Skoro ma z niego zasilone CO to grzeje bojler do 40 stopni? Jak włoży 2 mieszacze, potrzebuje 2 pompy za nimi. a to i tak nie poprawi racji bytu bo do mieszaczy będzie podpięte ileś pomieszczeń. Jak są robione bez obliczeń to bedą różne przepływy i różne temp. - trzeba założyć sterowanie pętli. I tu dochodzimy do najważniejszego - sterowanie już jest! Więc mieszacze tu nie pomogą... Potrzebne info: 1. Co steruje termostatami? Są wpięte grupowo do jednego czujnika / każdy ma swój regulator? 2. Jaka jest średnica rury z pieca a jaka średnica idzie do rozdzielaczy? 3. Jakie są problemy ze sterowaniem dokładnie? Pomieszczenia się przegrzewają? Jest za zimno 4. Na jakiej temp. zasilania z pieca to chodzi 5. Do jakiej temp. grzeje się CWU. Póki co ewidentnie widać, że jeśli nie ma sterowania przepływem to woda leci tam gdzie ma łatwiej. Obróci tam pewnie kilka razy szybciej. Zacząć trzeba od wyregulowania przepływu do każdego rozdzielacza - czyli zdławić te mniejsze by więcej mocy doszło do reszty. Jeśli leci to po jednej linii to moc też jest ograniczona - więc pompa musi cisnąć na maksa. I ostatnie - gdzie jest jakiś bypass w rozdzielaczu gdyby się termostaty zamknęły? Jeśli bypass jest wcześniej to w nim woda sobie krąży bo ma najłatwiej...
sambor Opublikowano 30 Października 2017 #8 Opublikowano 30 Października 2017 Widzę, że autor tematu ma kolejnego doradcę, oj będzie znowu sezon w plecy.
odpowietrznik Opublikowano 30 Października 2017 #9 Opublikowano 30 Października 2017 Dopiero teraz zwróciłem uwagę na kocioł i jest on już troszku wiekowy a co za tym idzie chyba nie za bardzo ma możliwość sterowania dwoma obiegami grzewczymi.Grzejniki są podłączone z tego samego rozdzielecza co podłogówka?jak tak to i ja się poddaje)
shogunzlasa Opublikowano 30 Października 2017 #10 Opublikowano 30 Października 2017 Pal licho niepodłączone grzejniki - pytanie co się dzieje że podłogówka daje w d**e. Bez odpowiedzi na powyższe możemy sobie gdybać - ale podejrzewam że mniejsze pomieszczenia grzeją, większe nie - przepływ jest do d... Pytanie jeszcze co steruje termostatami...
sambor Opublikowano 30 Października 2017 #11 Opublikowano 30 Października 2017 Dopiero teraz zwróciłem uwagę na kocioł i jest on już troszku wiekowy a co za tym idzie chyba nie za bardzo ma możliwość sterowania dwoma obiegami grzewczymi.Grzejniki są podłączone z tego samego rozdzielecza co podłogówka?jak tak to i ja się poddaje) Wiek kotła nie ma znaczenia, trzeba tylko moduł mieszacza CIM-C sterujący pogodowo mieszaczem i pompą oraz moduł MSR do 2 obiegów. Nie wiem czy to jeszcze się kupi w Pl. Może w BIM-ie? Ale można to wykonać na elementach niefirmowych i sterować kotłem.on/ of przez styk zwierny jak dawniej robiło się do Termetów Nie zależnie co się zrobi to trzeba do rozdzielaczy dostarczyć wodę w potrzebnej ilości oraz tą wodę wpuścić w pętle tak, aby w każdej pętli był przepływ ok 1,5-2l wody/min i tego się nie da ustawić na oko czy na "pałę" jak chcieli fachowcy, którzy przychodzili do tej instalacji, to trzeba wyregulować tak aby działało prawidłowo.
JacekZet Opublikowano 30 Października 2017 Autor #12 Opublikowano 30 Października 2017 Cwu grzeje bezpośrednio - tylko jaką temp? Skoro ma z niego zasilone CO to grzeje bojler do 40 stopni? Jak włoży 2 mieszacze, potrzebuje 2 pompy za nimi. a to i tak nie poprawi racji bytu bo do mieszaczy będzie podpięte ileś pomieszczeń. Jak są robione bez obliczeń to bedą różne przepływy i różne temp. - trzeba założyć sterowanie pętli. I tu dochodzimy do najważniejszego - sterowanie już jest! Więc mieszacze tu nie pomogą... Potrzebne info: 1. Co steruje termostatami? Są wpięte grupowo do jednego czujnika / każdy ma swój regulator? 2. Jaka jest średnica rury z pieca a jaka średnica idzie do rozdzielaczy? 3. Jakie są problemy ze sterowaniem dokładnie? Pomieszczenia się przegrzewają? Jest za zimno 4. Na jakiej temp. zasilania z pieca to chodzi 5. Do jakiej temp. grzeje się CWU. Póki co ewidentnie widać, że jeśli nie ma sterowania przepływem to woda leci tam gdzie ma łatwiej. Obróci tam pewnie kilka razy szybciej. Zacząć trzeba od wyregulowania przepływu do każdego rozdzielacza - czyli zdławić te mniejsze by więcej mocy doszło do reszty. Jeśli leci to po jednej linii to moc też jest ograniczona - więc pompa musi cisnąć na maksa. I ostatnie - gdzie jest jakiś bypass w rozdzielaczu gdyby się termostaty zamknęły? Jeśli bypass jest wcześniej to w nim woda sobie krąży bo ma najłatwiej... Dzięki za garść porad i niezwykle dla mnie cennych informacji! Podaję odpowiedzi na pytania: Ad.1 Chodzi o siłowniki? Jest to taki prosty system automatyki firmy SALUS. W skrócie: Na ścianie termostat połączony 4 przewodami z panelem sterującym 6-wejściowym. Generalnie jeśli np w salonie mam 3 obwody grzewcze układ jest taki, że jeden termostat jest podłączony do wejścia panelu sterującego, a do wyjść są podłączone 2 siłowniki owiewające/zamykające na raz wszystkie dwa obwody. Taki układ (jeden sterownik - kilka siłowników/obwodów) jest u mnie w dwóch przypadkach - piętro pokój i parter salon. Jeżeli pomieszczenie ma jeden obwód, wtedy jeden termostat steruje jednym siłownikiem. Schemat połączeń i zastosowane komponenty sterujące w załącznikach. Ad.2 Całość instalacji wykonane jest zgrzewanym PCV, z pieca wychodzi średnica zewn rury 34 mm z zaworem 1", do rozdzielczy dochodzi nieco cieńsza, z zaworami 3/4" Ad.3 Nie dogrzewa pomieszczeń, jest za zimno. Ad.4 Temp zadana kotła 50 stp.C, krzywa grzania 1,44, temp komfort (zadana na na piecu) 27 stp. C, ale komfortem sterują termostaty ścienne. Ad.5 Temp zadana CWU 50 stp.C.
JacekZet Opublikowano 30 Października 2017 Autor #13 Opublikowano 30 Października 2017 Wiek kotła nie ma znaczenia, trzeba tylko moduł mieszacza CIM-C sterujący pogodowo mieszaczem i pompą oraz moduł MSR do 2 obiegów. Nie wiem czy to jeszcze się kupi w Pl. Może w BIM-ie? Ale można to wykonać na elementach niefirmowych i sterować kotłem.on/ of przez styk zwierny jak dawniej robiło się do Termetów Nie zależnie co się zrobi to trzeba do rozdzielaczy dostarczyć wodę w potrzebnej ilości oraz tą wodę wpuścić w pętle tak, aby w każdej pętli był przepływ ok 1,5-2l wody/min i tego się nie da ustawić na oko czy na "pałę" jak chcieli fachowcy, którzy przychodzili do tej instalacji, to trzeba wyregulować tak aby działało prawidłowo. SAMBOR dzięki za podpowiedź. Przedstawiony przez mnie schemat sterowania jest nazwijmy to "uproszczony" Niektóre pomieszczenia wyposażyłem w bezprzewodowe czujki temperatury centrali alarmowej, a termostaty ścienne także są wpięte przez centralkę alarmową. Centrala alarmowa steruje wyjściami na panele sterujące siłownikami. Jedno wyjście z centrali alarmowej steruje tym wejściem pieca (ON/OFF) i wprowadza go do pracy. W jaki sposób można ustawić przepływ pętli bez przepływomierzy? Obliczeniowo, czy jakimś magicznym urządzeniem? Co to jest moduł CIM i co to jest MSR? Z czym toto się je? ;) Czy dobrze rozumiem, że dobrze byłoby "wywalić" kaloryfery na jakiś oddzielny obwód grzewczy? P.S. Porada ODPOWIETRZNIKA (schemat) w sumie wydaje się logiczna... pozdr Jacek
JacekZet Opublikowano 30 Października 2017 Autor #14 Opublikowano 30 Października 2017 Opcja z 2pompami miałaby sens gdyby była możliwość poprowadzenia dodatkowych rur w okolice rozdzielacza tego dla OP 81m2 wtedy byłyby dwa niezależne obiegi mieszaczowe dla parteru i piętra(załącznik)Ale pewnie na tym etapie nie ma już takiej możliwości więc chyba skazany jesteś na 1pompę. Ps.CWU grzeje szybko za pomocą kotła) i zaden mieszacz nie jest mu do tego potrzebny) Witam ODPOWIETRZNIK. Dzięki za pomoc! W sumie ten układ jest realny do zastosowania! Mogę spokojnie wstawić układ pompowo/mieszaczowy "wspomagający" piętro. Jestem także w stanie wstawić sprzęgło, układ pompowo/mieszaczowy "wspomagający" parter i wydzielić jeden obwód kaloryferowy... Kwestia czy to zadziała... Całość mojej instalacji wykonane jest zgrzewanym PCV, z pieca wychodzi średnica zewn rury 34 mm z zaworem 1", do rozdzielczy dochodzi nieco cieńsza, z zaworami 3/4. ..i nie śmiać się z mojej instalacji! Wykonana była przez (tfu!) "Fachowca" - przez duże Fe... :(
odpowietrznik Opublikowano 30 Października 2017 #15 Opublikowano 30 Października 2017 Grzejniki powinny być na osobnym rozdzielaczu.Chcąc kombinować z tym CIM-C dla OP to wchodzi w rachubę tylko jedna pompa na całość podłogi bo on obsługuje tylko 1pompę i 1 zawór mieszający. Rurę PP masz zapewne fi.32 a dalej pewnie fi 25 tylko jak daleko idzie ta fi 32(przynajmniej do rozdzielacza tego 81m2?) Z regulacją przepływów będzie porażka bez rotametrów można próbować "magicznym przyrządem pt.klucz imbusowy" bo w belce zasilającej powinny być zaworki na typ klucza?Do regulacji przepływów muszą być ściągnięte siłowniki ale marnie widzę tą regulację na oko,w ciemno,czy jest w ogóle możliwa?)Można też próbować dokupić same rotametry ale czy podejdą do twoich nierdzewnych belek?nie wiem)
sambor Opublikowano 30 Października 2017 #16 Opublikowano 30 Października 2017 SAMBOR dzięki Co to jest moduł CIM i co to jest MSR? Z czym toto się je? ;) Czy dobrze rozumiem, że dobrze byłoby "wywalić" kaloryfery na jakiś oddzielny obwód grzewczy? Tak trzeba przepiąć grzejniki na osobny obieg Te CIM i MSR to firmowe elementy sterowania taką instalacją
shogunzlasa Opublikowano 31 Października 2017 #17 Opublikowano 31 Października 2017 Rura 32 w PP to nie odpowiednik 1 cala jak uważają niektórzy a odpowiednik 3/4 lub miedzi 22 jeśli weźmiemy pod uwagę pojemność wodną 1 metra rury. PP 25 to miedź 18, PP zbrojone ma ten przepływ większy bo ścianka jest cieńsza ale nie jest to tak, że 32 PP to 28 w miedzi czy 1 cal w stali...Widać więc mamy ograniczoną moc - którą można zwiększać prędkością przepływu (mocniejsza pompa, szybszy bieg). Nie można też go zwiększyć w nieskończoność bo będą szumy w instalacji i stuki przy otwarciu termostatów. Sęk w tym, że tego przepływu nie można wyregulować bo jest nieznany. Jako że jest za zimno widać że brakuje mocy (więc rura jest za mała).O ile pomieszczenia jako tako by się regulowały bo automatyka do nich jest to problem leży w przepływie do rozdzielaczy, który jest nieznany. Podział na 2 obiegi góra, dół pomoże (bo zwiększy moc przenoszoną przez rury) ale nie załatwi sprawy w 100% bo na 1nym obiegu znów będą 3 rozdzielacze o nieznanym przepływie, przez co woda obróci tam gdzie ma łatwiej - trzeba przytłumić mniejsze obiegi...Trzeba wyjść z pieca grubą rurą (najlepiej do sprzęgła), rozdzielić ja na 3 obiegi (pompa na każdym)1. Grzejniki na wyższą temp. (założyć na 2 termostaty - tutaj sterowanie temp już odpadnie).2. Podłogówka parter (tutaj większa rura która rozdzieli się na 3 obiegi)3. Podłogówka piętro (grubsza rura która podzieli się na 2 obiegi)Podłogówki zmieszać zaworem 3D - stworzymy wtedy w miare niezależne względem siebie obiegi które będą pobierać niewiele wody z grzejącegu układu. Teraz na każdą rurę do rozdzielacza założyć zawór (np. grzybkowy PP) którym stłumimy mniejsze układy by większa moc trafiała do większej pętli (tutaj niestety metoda prób i błędów). Jeśli jest jakiś bypass po drodze to trzeba go ściągnąć i puścić jakąś podłogówkę bez termostatu by pompa miała przez co cisnąć.Rozwiązanie nie będzie idealne, ale sterować przepływem w pomieszczeniach się nie da - bo całe elektroniczne sterowanie szlag trafi. Zaworów 3D sterować nie trzeba bo piec będzie zmieniać temp...
sambor Opublikowano 31 Października 2017 #18 Opublikowano 31 Października 2017 Widzę, że autor tematu dostał pełne wytyczne od " kolejnego fachowca", teraz potrzeba jeszcze kolejnego "wykonawcy" A tak na serio ta inst jest przykładem gdzie oszczędzano i teraz odbija się to na inwestorze i tylko na inwestorze, który jak sam pisze: Co roku zimą są jazdy z ustawieniem temperatury w pomieszczeniach a Pan Fachowiec znikł po zainkasowaniu kasy (to chyba standard!). Chciałbym sobie z tym problemem jakoś poradzić sam, ale poddałem się. Po przewertowaniu forów doszedłem do wniosku, ze czegoś tu brakuje... Pomożecie??? To teraz inwestor ma stos rad, a słynne partyjne "Pomożecie!" jest nadal aktualne, gdyż z większości tych rad nic nie wynika. A brednie o sterowaniu termostatami pokojowymi podłogówką są bezcenne. PS A ile gazu na takie grzanie wychodzi i jakie są temp w pokojach ?
shogunzlasa Opublikowano 31 Października 2017 #19 Opublikowano 31 Października 2017 Nie masz pewności czy to on oszczędzał więc takie założenie może być z góry błędne. Co do rad - normalne, że chce szukać pomocy - w końcu chce mieć ciepło. Najprościej pewnie napisać - rozkuj pół domu, całą elektronikę wyrzuć i zrób to na nowo... Wiadomo tutaj będzie tzw. druciarstwo i nigdy nie będzie działać tak jak dobrze zaprojektowana instalacja, ale to ma po prostu zacząć grzać. Co do sterowania - jest kiepskie - ale zasada działania taka sama jak w zaworach RTL. Czujnik zamyka pętle i otwiera jeśli jest taka potrzeba i tyle - działa to kiepsko bo nie ma regulacji płynnej ale albo to zostawi i będzie jakąś regulacje miał, albo wywala to do kosza i robi to na regulacji przepływu czyli cały osprzęt od nowa.
sambor Opublikowano 31 Października 2017 #20 Opublikowano 31 Października 2017 Ale właśnie wy tak piszecie - "daj grube rury, 2-3 pompy" jakby to szło o klocki Lego i zabawę w przedszkolu. Bez rotametrów nie ma szans ogarnąć tego tematu, gdyż nie wiemy nawet jakie rury do tych rozdzielaczy zaproponować. Może da się zamontować same rotametry, bez ruszania reszty, ale tu przydatna byłaby konsultacja kolegi @tomekb - producenta takiego osprzętu. może ma w swojej ofercie rotametry do tego typu rozdzielacza. Jeżeli prawdą jest to inwestor pisze - pętle po max 80m to w pokoju 16m2 na piętrze rozstaw byłby ok 20cm to dużo za dużo dla samej podłogówki a na dodatek jest pewnie drewniana podłoga, gdyż to sypialnia. Na to nikt z nas nie pomoże
shogunzlasa Opublikowano 31 Października 2017 #21 Opublikowano 31 Października 2017 Ale wtedy cały osprzet termostatów idzie do kosza z całym sterowaniem... Chcesz zmienić typ sterowania na przepływowy, gdzie każda zmiana będzie odczuwalna na 5ciu rozdzielaczach...Bez ruszania się nie da bo rurką 3/4 cala nie objedziesz takiej mocy, chyba że pompa będzie mieć przepływ 0,7 - 1 m/s - wtedy by miał tornado po kolankach. Skoro pisze że jest za zimno - to znaczy że brakuje mocy...Jak dasz za grube rury to się nic nie dzieje bo od tego są termostaty - zamkną nadwyżke mocy - jak przewymiarowany grzejnik. Przepływ trzeba będzie trochę podrównać - zajmie to pewnie całą zimę - metodą prób i błędów - tutaj nie trzeba cudów - bo są termostaty. Bez przeróbki kotłowni i tak sie nie obejdzie. Pytanie czy chce się pozbyć całego osprzętu i zrobić to co mówisz, czy kombinować z tym co ma.
JacekZet Opublikowano 31 Października 2017 Autor #22 Opublikowano 31 Października 2017 Widzę, że autor tematu dostał pełne wytyczne od " kolejnego fachowca", teraz potrzeba jeszcze kolejnego "wykonawcy" A tak na serio ta inst jest przykładem gdzie oszczędzano i teraz odbija się to na inwestorze i tylko na inwestorze, który jak sam pisze: To teraz inwestor ma stos rad, a słynne partyjne "Pomożecie!" jest nadal aktualne, gdyż z większości tych rad nic nie wynika. A brednie o sterowaniu termostatami pokojowymi podłogówką są bezcenne. PS A ile gazu na takie grzanie wychodzi i jakie są temp w pokojach ? Witam Złotówkowe "spożycie" gazu: ok 1800,00 zł max w okresie zimowym - za dwa najzimniejsze miesiące... ale to było max Z temperaturą szału nie ma: ok20 - 22 stp. C Mam wrażenie, że obwody grzewcze są totalnie "rozjechane" przepływowo, bo w niektórych miejscach podłoga jest zimna, a obok, bardzo ciepła... Myślę, że bez wyposażenia belek w przepływomierze nie uda się nic zdziałać. Czy takie przepływomierze, są "uniwesalne", czy należy się kierować jakimś parametrem? Czy uda mi się je wymienić na moich belkach (zdjęcie 1 post)? pozr
JacekZet Opublikowano 31 Października 2017 Autor #23 Opublikowano 31 Października 2017 Rura 32 w PP to nie odpowiednik 1 cala jak uważają niektórzy a odpowiednik 3/4 lub miedzi 22 jeśli weźmiemy pod uwagę pojemność wodną 1 metra rury. PP 25 to miedź 18, PP zbrojone ma ten przepływ większy bo ścianka jest cieńsza ale nie jest to tak, że 32 PP to 28 w miedzi czy 1 cal w stali... Widać więc mamy ograniczoną moc - którą można zwiększać prędkością przepływu (mocniejsza pompa, szybszy bieg). Nie można też go zwiększyć w nieskończoność bo będą szumy w instalacji i stuki przy otwarciu termostatów. Sęk w tym, że tego przepływu nie można wyregulować bo jest nieznany. Jako że jest za zimno widać że brakuje mocy (więc rura jest za mała). O ile pomieszczenia jako tako by się regulowały bo automatyka do nich jest to problem leży w przepływie do rozdzielaczy, który jest nieznany. Podział na 2 obiegi góra, dół pomoże (bo zwiększy moc przenoszoną przez rury) ale nie załatwi sprawy w 100% bo na 1nym obiegu znów będą 3 rozdzielacze o nieznanym przepływie, przez co woda obróci tam gdzie ma łatwiej - trzeba przytłumić mniejsze obiegi... Trzeba wyjść z pieca grubą rurą (najlepiej do sprzęgła), rozdzielić ja na 3 obiegi (pompa na każdym) 1. Grzejniki na wyższą temp. (założyć na 2 termostaty - tutaj sterowanie temp już odpadnie). 2. Podłogówka parter (tutaj większa rura która rozdzieli się na 3 obiegi) 3. Podłogówka piętro (grubsza rura która podzieli się na 2 obiegi) Podłogówki zmieszać zaworem 3D - stworzymy wtedy w miare niezależne względem siebie obiegi które będą pobierać niewiele wody z grzejącegu układu. Teraz na każdą rurę do rozdzielacza założyć zawór (np. grzybkowy PP) którym stłumimy mniejsze układy by większa moc trafiała do większej pętli (tutaj niestety metoda prób i błędów). Jeśli jest jakiś bypass po drodze to trzeba go ściągnąć i puścić jakąś podłogówkę bez termostatu by pompa miała przez co cisnąć. Rozwiązanie nie będzie idealne, ale sterować przepływem w pomieszczeniach się nie da - bo całe elektroniczne sterowanie szlag trafi. Zaworów 3D sterować nie trzeba bo piec będzie zmieniać temp... Dzięki za włączenie się do dyskusji Twoja porada bezcenna - ale na etapie budowy. Opcja idealna. W obecnej chwili nie rozdzielę piętra i parteru, zasilenie i powrót całości idzie jedną rurą, zakładam że jest to taka jak wychodzi z pieca czyli 1". Dostęp do niej poza kotłownią mam jedynie za rozdzielczem (tym 81m2), gdzie mam dostęp do pionu. Tam się mogę z "czymś" wciąć... pozdr Jacek
JacekZet Opublikowano 31 Października 2017 Autor #24 Opublikowano 31 Października 2017 Ale wtedy cały osprzet termostatów idzie do kosza z całym sterowaniem... Chcesz zmienić typ sterowania na przepływowy, gdzie każda zmiana będzie odczuwalna na 5ciu rozdzielaczach... Bez ruszania się nie da bo rurką 3/4 cala nie objedziesz takiej mocy, chyba że pompa będzie mieć przepływ 0,7 - 1 m/s - wtedy by miał tornado po kolankach. Skoro pisze że jest za zimno - to znaczy że brakuje mocy... Jak dasz za grube rury to się nic nie dzieje bo od tego są termostaty - zamkną nadwyżke mocy - jak przewymiarowany grzejnik. Przepływ trzeba będzie trochę podrównać - zajmie to pewnie całą zimę - metodą prób i błędów - tutaj nie trzeba cudów - bo są termostaty. Bez przeróbki kotłowni i tak sie nie obejdzie. Pytanie czy chce się pozbyć całego osprzętu i zrobić to co mówisz, czy kombinować z tym co ma. Witam Co do rujnacji kotłowni - jestem na nią i tak przygotowany, bo to, co tam sie dzieje to masakra nie nadająca się nawet do zamieszczenia w formie zdjęcia... Zanim jednak się na to zdecyduję, chciałbym Waszej porady, żeby znów nie być narżniętym przez jakiegoś fachurę... Muszę co-nieco na ten temat się dowiedzieć. pozdr
sambor Opublikowano 31 Października 2017 #25 Opublikowano 31 Października 2017 W kwestii rotametrów to musisz się złapać z kolegą @tomekb na priv, on ci powie co i jak pomierzyć , gdyż nie ma uniwersalnych rotametrów, do każdej belki praktycznie są inne, teoretycznie zamiast zaworu to zawsze rotametr wstawisz.
Rekomendowane odpowiedzi
Zarchiwizowany
Ten temat przebywa obecnie w archiwum. Dodawanie nowych odpowiedzi zostało zablokowane.