papasmurfek Opublikowano 31 Marca 2016 #1 Opublikowano 31 Marca 2016 Witam! Jak najlepiej sterować grzaniem OP w pomieszczeniu w którym będzie użytkowany wkład kominkowy, aby nie dopuścić do przegrzania pomieszczenia. Czy zwykła głowica termostatyczna z kapilarą zew. sprawdziła by się w takim układzie? np. taka:
sambor Opublikowano 31 Marca 2016 #2 Opublikowano 31 Marca 2016 A jak tą kapilarę na ścianie rozwiesisz? To już lepiej sterownik pokojowy i siłownik na rozdzielaczu
papasmurfek Opublikowano 31 Marca 2016 Autor #3 Opublikowano 31 Marca 2016 No tak się składa, że wspomniane pomieszczenie jest przez ścianę z kotłownią więc nie był by to duży problem. Nie wiem tylko jak ze skutecznością działania przy takim rozwiązaniu? Może ktoś podrzuci jakieś przykładowe urządzenia? Druga sprawa czy warto bawić się w takie rozwiązania? Salon jest dosyć mały (ok 17m2) i dosyć niski (ok. 2.3m) martwię się więc,że po napaleniu w kominku będzie za gorąco.
kiminero Opublikowano 31 Marca 2016 #4 Opublikowano 31 Marca 2016 17 m2, rozgrzane parę ton betonu i odpał kominka, który po 10 min wypromieniowuje kilka kW przez szybę... Żadne rozwiązanie tego nie pogodzi. Okna otwierać.
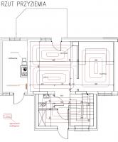
papasmurfek Opublikowano 31 Marca 2016 Autor #5 Opublikowano 31 Marca 2016 Akumulacyjna obudowa kominka z szamotu wentylowana DGP grawitacyjnie. Salon otwarty na kuchnie i hol. OP podzielone na dwie sekcje po ok. 50m. Wrzucam rysunek poglądowy.
esselite Opublikowano 1 Kwietnia 2016 #6 Opublikowano 1 Kwietnia 2016 Przez szybę pójdzie naprawdę dużo, będzie sauna. Obawiam się, że nawet przy kompletnie wyłączonym ogrzewaniu będzie bardzo gorąco.
papasmurfek Opublikowano 1 Kwietnia 2016 Autor #7 Opublikowano 1 Kwietnia 2016 Ma ktoś jakieś doświadczenia z tym związane? Ile to jest dużo ciepła? Wkład kominkowy planuje "Maja" narożny lewy 12 kw.
sambor Opublikowano 1 Kwietnia 2016 #8 Opublikowano 1 Kwietnia 2016 Ja na początek zbiłbym bez wyłączania podłogówki, w późniejszym etapie możesz dostawić termostat pokojowy do sterowania pętlą. lub pętlami. Ale pamiętaj, że ponowne nagrzanie podłogówki trwa długo , przez co są wahania temperatury w pomieszczeniu. Nie wiemy natomiast czy kominek to ogrzewanie czy tylko "nastój".
CooleR Opublikowano 1 Kwietnia 2016 #9 Opublikowano 1 Kwietnia 2016 ile to jest, hmm.... ja Ci nie powiem, ale mam kominek 16 kw i obudowę z cegły szamotowej, ok 1,5 tony. przy chwilowym paleniu ok 2-3 godz, spokojny płomień tak dla klimatu, to obudowa się słabo nagrzewa, powietrze z kratek znacznie cieplejsze. przy paleniu ciągłym, obudowa ma ok 80 st C i wtedy mogę wyłączyć c.o., bo kominek jest w stanie utrzymać temp komfortową w domu, góra 24 st C dół 22, ale u mnie kominek stoi w centralnym miejscu domu na parterze, cały parter to przestrzeń otwarta i obok kominka schody na piętro, a komin na piętrze robi za dodatkowy grzejnik. w tym roku w styczniu kocioł był wygaszony na 3 dni i kominek zdał egzamin, spalił 9 paczek brykietu po 10 kg z ciastoramy, temp nocami spadała do - 18. tylko jest pytanie, czy Ty potrzebujesz takiej obudowy przy takiej powierzchni?
papasmurfek Opublikowano 1 Kwietnia 2016 Autor #10 Opublikowano 1 Kwietnia 2016 Jest jeszcze góra ktora ma być ogrzewana z DGP grawitacyjnego. To nie będzie główne źródło ogrzewania, ale planuje go czesto używać. Mam dostęp do taniego drewna. W salonie nie będę robił żadnych otworów w obudowie. Ma być ogrzewany przez promieniowanie z obudowy. Konwekcyjnie grzana ma byc góra. Chyba zrobię tak jak @sambor radzi. Sterowanie zawsze można dołożyć.
CooleR Opublikowano 1 Kwietnia 2016 #11 Opublikowano 1 Kwietnia 2016 w wkład nadaje się do takiej obudowy?
papasmurfek Opublikowano 1 Kwietnia 2016 Autor #12 Opublikowano 1 Kwietnia 2016 Obudowa będzie wentylowana, ale powietrze ma być kierowane wszędzie tylko nie do salonu.
MikiQ Opublikowano 1 Kwietnia 2016 #13 Opublikowano 1 Kwietnia 2016 Nie wiem jakiej firmy masz wkład ale zgodnie z zapisami w karcie Tarnava (taki mam u siebie) jest wyraźnie napisane że musi być kratka w obudowie kominka. Więc może sprawdź najpierw.
papasmurfek Opublikowano 1 Kwietnia 2016 Autor #14 Opublikowano 1 Kwietnia 2016 Kratki.pl model maja lewy ze szprosem. Kratka bedzie, przez ścianę do kuchni. Koledzy spokojnie wszystko (tak myślę) przemyslalem. Za miesiąc zaczynam budowanie, wyjdzie w praniu gdyby co.
Rekomendowane odpowiedzi
Zarchiwizowany
Ten temat przebywa obecnie w archiwum. Dodawanie nowych odpowiedzi zostało zablokowane.