tablo888 Opublikowano 14 Grudnia 2015 Autor #76 Opublikowano 14 Grudnia 2015 Gdybym wiedział,ze taki piec z podajnikiem to same problemy to w życiu bym nie zmieniał:/ Stary piec ma 23lata nie cieknie a został wymieniony tylko dlatego,ze miało być komfortowo i trendy:) Przy starym piecu przesiadywałem w kotłowni tylko gdy się robiło zimno w domu aby dołożyć a teraz to się chyba zwolnię z pracy i przeprowadzę całkiem do kotłowni zabierając ze sobą do czytania wszystko o sterownikach pid zaworach x- droznych kalorycznosciach ekogroszku spiekach itp Mam już pomału dość. Może jest tutaj jakiś instalator z okolic Poznania Leszna który założy Mi ten zawór 4drogowy oczywiście odpłatnie bo w tej chwili to zaczynam wątpić,że u Mnie w okolicy ktoś potrafi to zrobić tak aby chodziło dobrze i nie sprawiało problemów:/ Załamany
nex1983 Opublikowano 14 Grudnia 2015 #77 Opublikowano 14 Grudnia 2015 Dobrze dobrany piec z PID to bajka, ja jestem w kotłowni raz na tydzień wybrać popiół i raz na 2 tyg dołożyć węgla
tablo888 Opublikowano 14 Grudnia 2015 Autor #78 Opublikowano 14 Grudnia 2015 Zapewne instalacja nowa i wykonana przez instalatora a nie amatora ale za błędy się płaci:/
tablo888 Opublikowano 15 Grudnia 2015 Autor #79 Opublikowano 15 Grudnia 2015 Witam mam pytanie czy można montować pompę w poziomie za zaworem 4drogowym? Jest za mało miejsca miedzy piecem a tym rozgałęźnikiem na piony.Gdyby miała być zamontowana pionowo trzeba obciąć tą dwu calową rurę. Dzisiaj był 3 instalator i twierdził,że tak może być on by tego nie obcinał i włożył ją za zaworem w poziomie aby zmieścić. Wole zapytać na zapas aby Mnie niczym nie zaskoczył... Pozdrawiam
SUSPENSER Opublikowano 15 Grudnia 2015 #80 Opublikowano 15 Grudnia 2015 Można pompę zamontować w poziomie. Proponuję nastawy PP-2 D22 zmienione w serwisowym 3111 Perłą jest tania i to cały jej "hit" ale jak chcesz porządny i bezproblemowy węgiel kup np. Jaret Plus
tablo888 Opublikowano 15 Grudnia 2015 Autor #81 Opublikowano 15 Grudnia 2015 Dziekuje za odpowiedz. Mam pytanie jesli sa dwa powroty z instalacji z góry jeden a drugi z prawej strony wchodzacy do pieca czy przy montażu takiego zaworu oba maja byc połączone i dopiero wchodzic do kotla. Czy może byc tak ze ten z gory idzie do zaworu i wraca do kotla laczac sie z tym drugim?
Animus Opublikowano 15 Grudnia 2015 #82 Opublikowano 15 Grudnia 2015 W poziomie ale niech ją rozkręci 4 śruby i ustawi do pionu .
Mancio Opublikowano 16 Grudnia 2015 #83 Opublikowano 16 Grudnia 2015 Powroty sumujesz przed 4d . bojler przed samym wejściem do kotła. 4d taki jak wyjście z kotła 6/4 Esbe na przyklad
tablo888 Opublikowano 16 Grudnia 2015 Autor #84 Opublikowano 16 Grudnia 2015 Teraz to już sam nie wiem ten powrót jest na dole a trzeba by go podpiąć z górnym powrotem złączyć i wejść w zawór 4drozny i pościć w dół do pieca z zaworu. Żaden instalator nie zwrócił na to uwagę chcieli podłączać górny powrót do zaworu i łączyć dopiero przy piecu ale juz za zaworem. Ale logicznie myśląc to przecież wracająca woda z dolnego powrotu jest chłodniejsza i wtedy z ochrony kotła nici no chyba że jak się ona zmiesza z obiegiem kotłowym to będzie dobrze? Czy ten dolny powrót można normalnie podnieść nie będzie to miało jakiegoś wpływu woda musi iść w górę jest pompka ale czy to będzie działać?. Wychodzi na to,że mam pecha co do instalatorów zaczynam wątpić czy ktoś potrafi to podłączyć w mojej okolicy:/.
Mancio Opublikowano 16 Grudnia 2015 #86 Opublikowano 16 Grudnia 2015 Cześć, przewał i bojler zasilany bezpośrednio z wyjścia kotła, obieg kotłowy -na czerwono- rurą taką jak wychodzi z kotła , 2 powroty najlepiej połącz przy podłodze a potem 1 rurą do góry , ja też podnoszę powrót z 3 pionów z podłogi do zaworu na wysokość góry kotła, jedyne co zauważyłem to słabiej grzeje dół kaloryferów na parterze tam gdzie kocioł ale tylko gdy działam na grawitacji , z pompką jest ok , ja mam zawór 6/4 ESBE i na jesień ustawiam 4D otwarty na 3/4 i grzeję grawitacyjnie bez pompki , z pompką otwarcie ok 1/4
tablo888 Opublikowano 18 Grudnia 2015 Autor #87 Opublikowano 18 Grudnia 2015 Mam pytanie Animus do Ciebie jak będzie grzane tylko cwu latem nie są potrzebne jakieś zawory odcinające na kaloryfery czy wystarczy tylko 4drogowy zamknąć. Znalazłem instalatora ale wole mu przedstawić ten rysunek co podałeś i może coś z tego będzie. Czy tak jak narysowałeś jest dobrze ochrona powrotu i regulacja na grzejnikach będzie zachowana wole spytać bo Ma się zjawić jutro na oględziny. Bardzo dziękuje za wszystkie odpowiedzi jak do tej pory informacji zebrałem bardzo dużo już przez chwile Myślałem,że sam zacznę to robić bo ręce opadały od tych instalatorów:/ Pozdrawiam
Animus Opublikowano 18 Grudnia 2015 #88 Opublikowano 18 Grudnia 2015 Ja zamykam zawór przy pompie i przekręcam zawór 4 -D w drugą stronę wtedy mam 2 obiegi jeden większy przez bojler CWU a drugi mały przez zawór 4-D przy kotle . Co do tego jednego powrotu poza zaworem to będzie działać to jest sprawdzone . Jak chcesz grzać latem to zrób tak: http://i.imgur.com/yMQZbOE.png
Animus Opublikowano 19 Grudnia 2015 #89 Opublikowano 19 Grudnia 2015 Nie zapomnij o zaworach zwrotnych i o pompce na CWU.
tablo888 Opublikowano 20 Grudnia 2015 Autor #90 Opublikowano 20 Grudnia 2015 Jutro instalator ma potwierdzić czy zjawi się w środę. W rozmowie telefonicznej mówiłem mu o tym aby obieg cwu zrobić grawitacyjnie to powiedział,że musi być pompka aby to dobrze działało i nie zaciągało jakąś rurka gorącej wody nie wiem o co chodzi. Zdam się na niego wspominał coś o zaworach zwrotnych i mówił,że ten dolny powrót mósi być podniesiony do góry. Pompki już nie zdarzę zamówić z internetu(święta) Instalacje widział na żywo i mówił,że koszt robocizny to 500zł plus towar rury cu 35 i zawór już mam Ciekaw jestem ile wyjdzie razem wszystko:/ Super prezent na święta :/ Dodam fotki po instalacji czy wszystko ok. Straciłem nadzieje,że ktoś to podłączy... Zobaczymy jak wyjdzie. Ile może kosztować taka pompka na cwu? No i czy dobrze rozumiem działanie cwu ustawiam na sterowniku cwu np 45 i pompka podaje do tego momentu jak osiągnie temp to się wyłącza jak spadnie to się załącza i tak w kółko?Pozdrawiam
Animus Opublikowano 20 Grudnia 2015 #91 Opublikowano 20 Grudnia 2015 Jeżeli bojler ma działać grawitacyjnie to trzeba grubsze średnice rur od bojlera do kotła i trzeba podnieść do góry ten powrót .Jak pompka ma pchać wodę w bojler to powrót może być tam a rurki do bojlera cieńsze. Pompka cena: http://allegro.pl/pompa-obiegowa-c-o-experia-l-25-40-alpha-2l-5w-i5702384887.html
tablo888 Opublikowano 22 Grudnia 2015 Autor #92 Opublikowano 22 Grudnia 2015 Jutro chwila prawdy zjawia sie Pan instalator a Mnie nie będzie w domu praca:/
tablo888 Opublikowano 23 Grudnia 2015 Autor #93 Opublikowano 23 Grudnia 2015 Witam Dzisiaj był pan instalator z 25letnim stażem. Miałem kupione rury cu 35 nie bo po co zamontował cu 28 bo nie ma kształtek w okolicy tylko na zamówienie. Zawór dn32 do dupy kupiłem bo one się niczym nie różnią od dn 25 środek mają taki sam. Pompę która działa i nie hałasowała w pionie zamontował w poziomie i hałasuje ale to się unormuje niebawem kiedy nie wiadomo:/ Miałem nawet naczynie przelewowe a teraz nie mam bo po co skoro te piece się nie gotują(naczynie za pompą) a teraz najlepsze koszt robocizny i materiału 1700zł. Pompa cwu pobiera tylko 32w. Normalnie ręce mi opadły jak wróciłem z pracy.Najlepsze teksty dnia to będzie chodzić jak pszczółka po rozmowie tel bo byłem w pracy i będę bardzo zadowolony.Teraz pytanie co zrobić aby pompa lfp przestała śrutować próbowałem odpowietrzać ale nic to nie daje... Gdzie umieścić czujnik cwu mam bojler taki niezbyt nowoczesny pan instalator umiejscowił czujnik pod wełna jednak pompa wtedy cały czas chodzi a temp nastawiona 45 osiąga max 36 po paru godzinach. Z ochrony kotła raczej nici nie mam termometra ale nawet ręką czuć że ta woda co wpływa do kotła nie ma 50stopni. Normalnie się załamałem straciłem już całkowicie nadzieje,że będzie dobrze. Jedyne co działa chyba dobrze to,że mogę obniżyć temp na grzejnikach i wszystkie grzeją równo. Ogólnie to zostałem potraktowany jak małolat który się naczytał cytuje w muratorze za dużo i zaczyna gwiazdorzyc. Życze Wszystkim Wesołych Świąt.... Mi zostało pociąć tą rure cu35 i dać każdemu z rodziny kawałek....
tablo888 Opublikowano 24 Grudnia 2015 Autor #94 Opublikowano 24 Grudnia 2015 Czy ta pompa LFP jest zamontowana prawidłowo cały czas hałasuje tak jak by coś tam było w środku taki metaliczny dźwięk czy trzeba ją jakoś wypoziomować Animus pisałeś aby odkręcić 4srubki i ustawić ją do pionu jak to zrobić? Boje się,że ona długo tak nie pociągnie i kolejny wydatek
tablo888 Opublikowano 25 Grudnia 2015 Autor #95 Opublikowano 25 Grudnia 2015 No i stalo sie pompa wysiadła mruga dioda 3krotnie. Zamienilem pompe na obieg CO na dobra i slychac takie same stuki miedzy zaworem 4drogowym a pompa przed pompa jest zawor zwrotny i filter o co tu biega. Slychac jak by cos stukalo w rurach w srodku. pompka na 3 mocniej na 1 mniej
leszkowaty Opublikowano 25 Grudnia 2015 #96 Opublikowano 25 Grudnia 2015 to może dzwonić zawór zwrotny (dźwięk podobny do uderzenia czymś metalowym o rurkę, takie delikatne dzwonienie) a pompa nie była zapowietrzona? co do montażu pompy , jeśli os wirnika pompy jest w poziomie to raczej jest ok te "cztery śrubki" służą do zmiany położenia korpusu pompy względem osi przepływu
tablo888 Opublikowano 25 Grudnia 2015 Autor #97 Opublikowano 25 Grudnia 2015 No a czy zawor wzrotny nie powinien być za pompą teraz jest przed jest to wlasnie taki dzwiek jak piszesz. Gdzies czytalem na forum,ze takie polozenie zaworu moze uszkodzic pompe elektroniczną gdy jest ustawiona w charakterystyce proporcjonalnej. . MMruga dioda 3razy jak sie robi reset bledu.W instrukcji jest napisane wcisnij reset.Pompa jest na gwarancji ale by la rozbierana aby zmienic polozenie.Pompa byla odpowietrzona leciala woda
Mancio Opublikowano 26 Grudnia 2015 #98 Opublikowano 26 Grudnia 2015 Tablo , miałeś porady jak to zrobić, potrzebowałeś kombi a dostałeś tańszy kabriolet, nie dość, że przepłaciłeś to miał być grafit a jest biały, pogoń hydraulika do poprawek, pozdrawiam
tablo888 Opublikowano 26 Grudnia 2015 Autor #99 Opublikowano 26 Grudnia 2015 No jest tak jak piszesz gosc zarzekal sie,ze bedzie dobrze.Mnie w domu nie bylo bylem w pracy.W poniedzialek ma sie zjawic i posluchac co to stuka. Mowil cos o przelozeniu zaworu zwrotnego za pompe.Ogolnie to nie mozna nikomu ufac juz z bratem stwierdzilem mpglismy to zrobic sami wedlug porad z forum.Czy od tego stukania pompa mogla stanac?
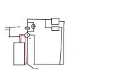
tablo888 Opublikowano 26 Grudnia 2015 Autor #100 Opublikowano 26 Grudnia 2015 Czy w tym miejscu powinien byc zawór zwrotny nie zakłóca to działania zaworu 4drogowego grawitacyjnie?? Nawet gdy przestawię zawór na obieg kotłowy to nie robi się gorący....
Rekomendowane odpowiedzi
Zarchiwizowany
Ten temat przebywa obecnie w archiwum. Dodawanie nowych odpowiedzi zostało zablokowane.