piotrkierys
Stały forumowicz-
Postów
312 -
Dołączył
-
Ostatnia wizyta
-
Wygrane w rankingu
1
Typ zawartości
Forum
Wydarzenia
Blogi
Artykuły
Treść opublikowana przez piotrkierys
-
Witam Dzisiaj paliłem drewnem w kotle i 2g50m bufor został cały nagrzany prawie do 80c Wysłane z mojego VOG-L29 przy użyciu Tapatalka
-
Robin Jednak nie mam takiej opcji w sterowniku niema To co muszę zrobić żeby uaktualnić sterownik Wysłane z mojego VOG-L29 przy użyciu Tapatalka
-
Ja mam trochę inaczej Przez econet jest tak A później sprawdzę jescze w sterowniku Wysłane z mojego VOG-L29 przy użyciu Tapatalka
-
Ja mam u siebie sterownik z pokrętłem A jak mogę go unowocześnić Wysłane z mojego VOG-L29 przy użyciu Tapatalka
-
Robin 60 a w takim układzie jak będzie działac pompa do c.w.u. Teraz u mnie jest tak, posiadam sterownik ecomax850 i moduł B do sterowania buforem, kocioł mi się odpala jak u góry bufoa temperatura spadnie do 40c, a pompa c.w.u się zalancza od temperatury bufora, a teraz naprzyklad kocioł będzie zimny i a bufor gorący to pompa c.w.u będzie przcowac i ciągnąć zimna wodę z kotła a kocioł się nie odpali dopuki nie spadnie do 40c temperatura w buforze Wysłane z mojego VOG-L29 przy użyciu Tapatalka
-
To na wiosnę będę działał i trzymał się już tego schematu A od strony grzejników może zostać po staremu, zasysa ciepła wodę z góry bufora a powrót u samego dołu Wysłane z mojego VOG-L29 przy użyciu Tapatalka
-
-
Dzięki wszystkim za pomoc Robin od góry nie mogłem podłączyć wyjścia c.o na dom bo tam tam jest mufa wspawana 1/2 Dlatego zrobiłem tak jak mam Ale teraz na to wychodzi ze to jest źle i napewno jak się skończy sezon grzewczy to będę musiał to przerobić tak jak mi radzicie A jak już przerobię ten bufor i wymienię kocioł na nowy to bufor będzie się szybciej nagrzewal i będzie oszczędność w plecie ? Kotła nie będę czyścił niewiem czy jest sens bo ja teraz tak palę ze jak jadę do pracy to pali się pellet a wieczorem palę drewnem Wysłane z mojego VOG-L29 przy użyciu Tapatalka
-
Bufor kosztował 700zl kolega mi załatwiał z Niemiec Jescze zobaczę jak długo będzie się nagrzewal bufor przy paleniu drewnem A teraz się zastanawiam jak będę musiał spuszczać całą wodę i wyciągać bufor żeby wspawać ta jedna mufe to odrazu może wspawam te kolana, a te kolana mają być na zasilaniu i powrocie z kotła i tak samo na zasilaniu i powrocie z central ego ogrzewania Wysłane z mojego VOG-L29 przy użyciu Tapatalka
-
Teraz to ciężko będzie mi coś przerobić w buforze na dodatek jest nierdzewny musiał bym go rozciąć , taki bufor kupiłem ja tam nic nie przerabiałem Ewentualnie sprubuj wspawać jakąś mufe po przeciwnej stronie bufora do powrotu z ogrzewania domu Pomoże to coś Wysłane z mojego VOG-L29 przy użyciu Tapatalka
-
Palnik Kipi W Naszych Piecach Wymiana Doświadczeń Użytkowników
piotrkierys odpowiedział(a) na temat w Kotły pelletowe
No tak miało być, ale w tedy jescze nie miałem bufora a jak już kupiłem bufor i się okazało że ma jedno wyjście na powrocie wtedy zmieniłem swój schemat ale nik nie twierdził ze to jest źle więc tak zrobiłem A teraz niewiem czy mam to przerabiać czy może zostać Wysłane z mojego VOG-L29 przy użyciu Tapatalka -
Palnik Kipi W Naszych Piecach Wymiana Doświadczeń Użytkowników
piotrkierys odpowiedział(a) na temat w Kotły pelletowe
Niżej Mój temat jak przerabiałem kotłownie I nikt z kolegów nie zgłaszał ze coś nie tak mam z powrotem przy poloaczrniu bufora Ale proszę o wasze rady zawsze po sezonie mogę coś przerobić https://r.tapatalk.com/shareLink/topic?url=https://forum.info-ogrzewanie.pl/topic/23718-zasilanie-grawitacyjne/&share_tid=23718&share_fid=110131&share_type=t&link_source=app Wysłane z mojego VOG-L29 przy użyciu Tapatalka -
Palnik Kipi W Naszych Piecach Wymiana Doświadczeń Użytkowników
piotrkierys odpowiedział(a) na temat w Kotły pelletowe
Jest tak zrobione jak na schemacie bo byfor miał tylko jedno wyjście dołem Ale myślę że pompa c.o ktura tłoczy wodę na obieg grzejnikowy to wyciąga ciepła wodę z bufora to automatycznie powrut zimnej wody wraca do bufora Ale czy takie rozwiązanie jest prawidłowe to już sam niewiem Cala instalacji w kotłowni i podłączenie bufora wykonałem sam a nie jestem hydraulikiem czerpałem wiedze z tego forum Wysłane z mojego VOG-L29 przy użyciu Tapatalka -
Palnik Kipi W Naszych Piecach Wymiana Doświadczeń Użytkowników
piotrkierys odpowiedział(a) na temat w Kotły pelletowe
To ciężko stwierdzić bo innym termometrem nie miezylem spalin Wysłane z mojego VOG-L29 przy użyciu Tapatalka -
Palnik Kipi W Naszych Piecach Wymiana Doświadczeń Użytkowników
piotrkierys odpowiedział(a) na temat w Kotły pelletowe
Temperatura spalin w granicach 125c Palnik idzie na pełnej mocy 20kW spalanie na pełnej mocy to 3,6kg/g Wysłane z mojego VOG-L29 przy użyciu Tapatalka -
Palnik Kipi W Naszych Piecach Wymiana Doświadczeń Użytkowników
piotrkierys odpowiedział(a) na temat w Kotły pelletowe
Witam byfor nie posiada wężownicy, kocioł jest podłączony rura fi28 do gury bufora i u dołu bufora jest powrut do kotła, ochrona powrotu to zawór vtc511 55c 1cal czujniki temperatury mam zamontowane 50cm od góry i 30cm od dołu bufora,za buforem mam zawór 3d kturym puszczam temperaturę na dom (może mam złe pompkę ustawiona) Tak myślę że to przez kocioł tak długo laduje bufor, jednak przy paleni drewnem trochę się zbiera tej czarnej sadzy na ściankach kotła Niżej schemat podloczenia buforu do kotła Pozdrawiam Wysłane z mojego VOG-L29 przy użyciu Tapatalka -
Palnik Kipi W Naszych Piecach Wymiana Doświadczeń Użytkowników
piotrkierys odpowiedział(a) na temat w Kotły pelletowe
Coraz bardziej jestem przekonany do wymiany kotła, w tym sezonie spale drewno kture mi zostało i pewnie przejdę na sam pellet Wysłane z mojego VOG-L29 przy użyciu Tapatalka -
Palnik Kipi W Naszych Piecach Wymiana Doświadczeń Użytkowników
piotrkierys odpowiedział(a) na temat w Kotły pelletowe
Ja nic z Czech nie brałem Mam bufor nierdzewny oizolowany oryginalnym pokrowcem Pianka 10cm i do tego cały byfor obłożyłem Steropian em grafit 10cm na piance jest to zrobione szczelnie, a instalacja mam tak zrobiona z bufora zawor 3d i puszczam pogodowo teraz idzie mi na grzejniki 33c w całym domu mam 18szt grzejników 1000x600 temperatura w domu to 22,6c 220m2 do grzania A bojler mam podłączony besposrednio pod bufor, jak bym wymieniał kocioł to bym to przerobił Ja się zastanawiałem nad kotłem Lumo Bio Max Plus Wysłane z mojego VOG-L29 przy użyciu Tapatalka Umnie grzanie bufora 850l peletem wyglada tak Wygląda na to że dużo tracę peletu Wysłane z mojego VOG-L29 przy użyciu Tapatalka -
Palnik Kipi W Naszych Piecach Wymiana Doświadczeń Użytkowników
piotrkierys odpowiedział(a) na temat w Kotły pelletowe
Witam szanownych Kolegów Przymierzam się do wymiany swojego starego śmieciucha w którym jest zamontowany palnik kipi 20kW I tera tak posiadam kocioł w kturym palę drewnem i peletem na zmianę do tego jest podpięty bufor 850l, pałac samym peletem żeby nagrzać bufor z 30c do 70c muszę palić 5,5godziny, bufor sie rozładuje w 7 godzin Czy jak wymienię na kocioł typowo peletowy taki kocioł będzie szybciej nagrzewal bufor Proszę o opinię jaki kocioł byłby najlepszy chce skorzystać z funduszu Czyste Powietrze Wysłane z mojego VOG-L29 przy użyciu Tapatalka -
Palnik Kipi W Naszych Piecach Wymiana Doświadczeń Użytkowników
piotrkierys odpowiedział(a) na temat w Kotły pelletowe
Dzięki koledzy za pomoc Wyłączyłem econet z prądu na 10 sekund i wszystko wróciło do normy kod 0000 działa Pozdrawiam Wysłane z mojego VOG-L29 przy użyciu Tapatalka -
Palnik Kipi W Naszych Piecach Wymiana Doświadczeń Użytkowników
piotrkierys odpowiedział(a) na temat w Kotły pelletowe
Będę w domu to zrobię restart Kod 4996 nie działa Wysłane z mojego VOG-L29 przy użyciu Tapatalka -
Palnik Kipi W Naszych Piecach Wymiana Doświadczeń Użytkowników
piotrkierys odpowiedział(a) na temat w Kotły pelletowe
Witam Koledzy posiadam palnik kipi 20kW i sterownik Ecomax 850 dzisiaj chciałem wejść w ustawienia serwisowe (econet) , wpisuje 0000 i nie działa Jaki jest teraz kod do ustawień serwisowych Pozdrawiam Wysłane z mojego VOG-L29 przy użyciu Tapatalka -
Palnik Kipi W Naszych Piecach Wymiana Doświadczeń Użytkowników
piotrkierys odpowiedział(a) na temat w Kotły pelletowe
Witaj posiadam taki smar do przekładni kątowej kosy spalinowej i nim mogę nasmarować przekadnie palnika Wysłane z mojego VOG-L29 przy użyciu Tapatalka -
Palnik Kipi W Naszych Piecach Wymiana Doświadczeń Użytkowników
piotrkierys odpowiedział(a) na temat w Kotły pelletowe
Witam sanownych kolegow Chcę wyczyścić i przesmarować swój palnik Kipi 20kW, takie pytanie do was jakiego smaru użyć Wysłane z mojego VOG-L29 przy użyciu Tapatalka -
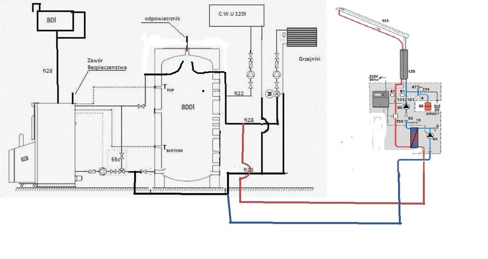
Witam wszystkich Chciał bym założyć sobie kolektory słoneczne 3 panele do grzania C.W.U, posiadam bojler nierdzewny poziomy 120l z jedno wężownicą C.O i bufor nierdzewny 800l bez wężownicy, zastanawiam sie jak by to podłączyć żeby dobrze działało 1 opcja przez wymiennik płytowy 2 opcja kupić nowy bojler 300l z dwoma wezownicami zdjęcie przedstawia schemat mojego podłączenia schemat jak to widzę z wymiennikiem płytowym Proszę was o rade Pozdrawiam
