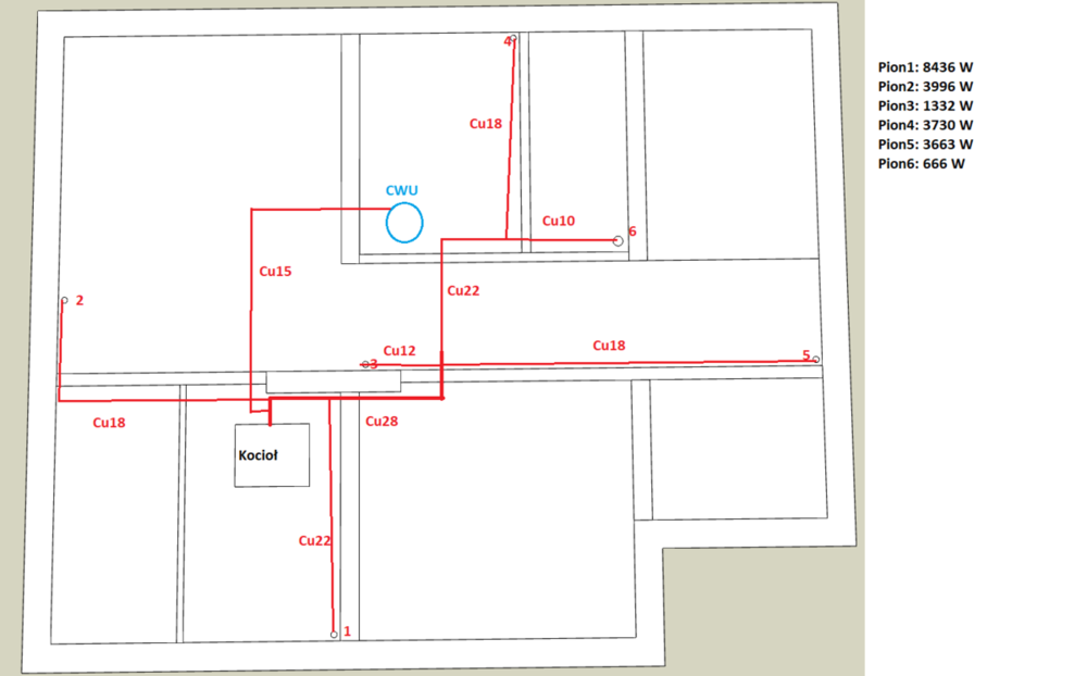
palaczRybnik Opublikowano 22 Marca 2020 #1 Opublikowano 22 Marca 2020 Witam wszystkich, Chciałem prosić o pomoc w zaprojektowaniu instalacji CO w moim domu. Chce w domu zmodernizować kotłownię. Dom jest stary został wybudowany w latach 70 ale jest po termomodernizacji . Ściany docieplone styropianem grafitowym 14 cm lambda 032. W załączniku mam rzeczywiste wymiary domu wraz z rozlokowaniem pionów. Na pionach będą podpięte nastęujące grzejniki. Parametery grzejników lizyłęm dla 55/45/20Pion 1 - łączna moc 6300 W Pierwsze piętro V22 600x2000 - 1690 W V22 600x2000 - 1690 W Parter C22 600x1800 - 1444 W C22 600x1800 - 1444 W Pion 2 - łączna moc 3000 W Pierwsze piętro V22 600x1800 - 1521 W Parter C22 600x1800 - 1444 W Pion 3 - łączna moc - 1050 W Pierwsze piętro V22 600x600 - 507 W Parter C22 600x600 - 542 W Pion 4 - łączna moc - 3000 W Pierwsze piętro V22 600x1200 - 1014 W V22 600x600 - 507 Drabinka do suszenia ręczników - 400 W - tutaj strzelam bo nie wiem ile ma Parter C22 600x600 - 542 W C22 600x600 - 542 W Pion 5 - łączna moc - 2900 W Pierwsze piętro V22 600x1000 - 845 W V22 600x1100 - 929 W Parter C22 600x600 - 542 W C22 600x600 - 542 W Pion 6 - łączna moc 542 W Parter C22 600x600 - 542 W Chciałbym prosić o pomoc w dobrze przekroju rur miedzianych. Dom był niedawno remontowany i na piętrze instalacja jest już zrobiona w miedzi, a teraz chciałym wymienić resztę instalacji tak żeby wszystko było w miedzi. Na rysunku zaznaczyłem jak mniej więcej widziałbym rury. Próbowałem nawet dopierać przekroje na podstawie udostępnionego na forum kalkulatora, ale nie jestem pewien czy dobrze się nim posługuje. Dom niestety ma wymiary 11 m x 13,5 m a jak widać na rusynku piony są w najdalszych punktach budynky. Druga sprawa. Chciałbym prosić o radę odnośnie kotła. Zdecydowałem się na SKAMP-PV 20kW kocioł ma zasilanie 5/4 i teraz pytanie czy mogę podłączyć taki kocioł używając rur Cu28 czy muszę podłączyć wszystko za pomocą Cu35. Chciałym wykorzystać sprzęgło tak jak na tym schemacie.
Uzytkownik2 Opublikowano 22 Marca 2020 #2 Opublikowano 22 Marca 2020 Powinieneś dobrać grzejniki na wyższe parametry temperatury jak dla kotła na paliwo stałe.Przecież temperatura wody powracającej do kotła nie może być 45st (korozja niskotemp) Takie temperatury to dla kotła kondensacyjnego.Sugeruje 65/50/20
palaczRybnik Opublikowano 22 Marca 2020 Autor #3 Opublikowano 22 Marca 2020 Dziękuję za zwrócenie na to uwagi. Policzyłem raz jeszcze dla zasugerowanych parametrów: Pion 1 - łączna moc 8436 W Pierwsze piętro V22 600x2000 - 2220 W V22 600x2000 - 2220 W Parter C22 600x1800 - 1998 W C22 600x1800 - 1998 W Pion 2 - łączna moc 3996 W Pierwsze piętro V22 600x1800 - 1998 W Parter C22 600x1800 - 1998 W Pion 3 - łączna moc - 1332 W Pierwsze piętro V22 600x600 - 666 W Parter C22 600x600 - 666 W Pion 4 - łączna moc - 3730 W Pierwsze piętro V22 600x1200 - 1332 W V22 600x600 - 666 W Drabinka do suszenia ręczników - 400 W - tutaj strzelam bo nie wiem ile ma Parter C22 600x600 - 666 W C22 600x600 - 666 W Pion 5 - łączna moc - 3663 W Pierwsze piętro V22 600x1000 - 1110 W V22 600x1100 - 1221 W Parter C22 600x600 - 666 W C22 600x600 - 666 W Pion 6 - łączna moc 666 W Parter C22 600x600 - 666 W Przeliczyłem również na nowo średnicę rur, ale nie jestem pewien czy dobrze korzystam z kalkulatora który znalazłem na forum.
sambor Opublikowano 22 Marca 2020 #4 Opublikowano 22 Marca 2020 21 minut temu, palaczRybnik napisał: Dziękuję za zwrócenie na to uwagi. Policzyłem raz jeszcze dla zasugerowanych parametrów: Nie słuchaj złych podpowiedzi - ten pseudoznawca nie wie co pisze! Rury w większości pionów są Ok, tylko do pierwszego pionu do grzejników na parterze daj Cu28. Kotłownię zrób wg schematu z postu 1 , rurą Cu28 i będzie OK. 4 godziny temu, Grundfos napisał: Powinieneś dobrać grzejniki na wyższe parametry temperatury jak dla kotła na paliwo stałe.Przecież temperatura wody powracającej do kotła nie może być 45st (korozja niskotemp) Takie temperatury to dla kotła kondensacyjnego.Sugeruje 65/50/20 Bredzisz chłopie! Mam nadzieję że to nie objaw koronowirusa!
Uzytkownik2 Opublikowano 22 Marca 2020 #5 Opublikowano 22 Marca 2020 Moc grzejników dla danego pomieszczenia powinieneś dobierać do obciążenia cieplnego tego pomieszczenia. Nie wiem na jakiej podstawie dobrałeś te wielkości grzejników
palaczRybnik Opublikowano 22 Marca 2020 Autor #6 Opublikowano 22 Marca 2020 No cóż grzjeniki na pierwszym piętrze były dobierane na metodę weź Pan większe będzie dobrze. Nie było nic przeliczane. Na parterze obecnie są stare żeliwne grzejniki i będą wymieniane na stalowe. Dobrałem je na podstawie analogii do pierwszego piętra. Aktualnie dom ma takie parametry, ale w przyszłości planuje izolację strychu i stworzenie tam dwóch pomieszczeń. https://cieplowlasciwie.pl/wynik/6suq
hajtaler428 Opublikowano 22 Marca 2020 #7 Opublikowano 22 Marca 2020 6 godzin temu, Grundfos napisał: Powinieneś dobrać grzejniki na wyższe parametry temperatury jak dla kotła na paliwo stałe.Przecież temperatura wody powracającej do kotła nie może być 45st (korozja niskotemp) Takie temperatury to dla kotła kondensacyjnego.Sugeruje 65/50/20 A co to ma do rzeczy? W schemacie masz sprzęgło i w obiegu kotłowym zawór 3d do ochrony powrotu więc woda z powrotu CO czy OP nie wraca do kotła bezpośrednio
palaczRybnik Opublikowano 23 Marca 2020 Autor #8 Opublikowano 23 Marca 2020 @sambor dziękuję za pomoc. Mam jeszcze jedno pytanie czy do instlacji warto dawać separator powietrza i zanieczyszczeń. Sprawdzałem ceny takichu rządzeń i są dość drogie, ale z drugiej strony taką instalację robi się na dziesięciolecia.
sambor Opublikowano 23 Marca 2020 #9 Opublikowano 23 Marca 2020 Jak prawidłowo zrobisz układ otwarty to separator powietrza sobie daruj , a zanieczyszczenia wyłapują filtry przed pompami, więc separator zanieczyszczeń też zbędny.
mironw Opublikowano 29 Marca 2020 #10 Opublikowano 29 Marca 2020 Ja bym CWU pociągną na Cu22 , a pion 3i 8 Cu15 , na Cu 10 to będą duże opory
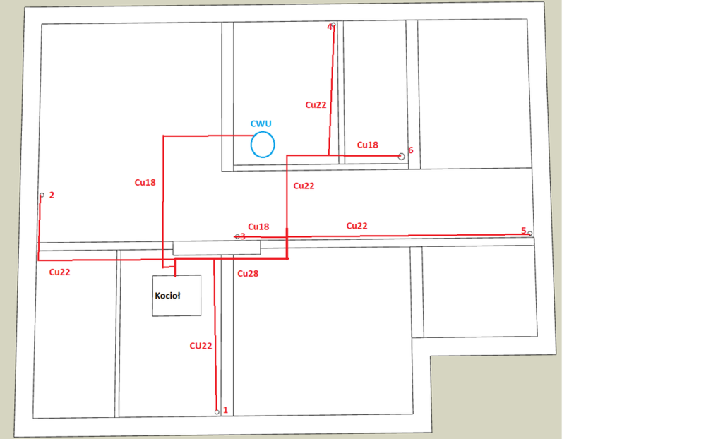
palaczRybnik Opublikowano 30 Marca 2020 Autor #11 Opublikowano 30 Marca 2020 Dzięki za odpowiedź. Poprawiłem schemat i zrobię według tego przekroju rur.
mironw Opublikowano 30 Marca 2020 #12 Opublikowano 30 Marca 2020 W dniu 22.03.2020 o 21:35, palaczRybnik napisał: ale w przyszłości planuje izolację strychu i stworzenie tam dwóch pomieszczeń to musisz to przemyśleć już teraz i do grzejników na strychu przewidzieć z których pionów i odpowiednio je teraz przewymiarować na przyszłość abyś nie musiał potem wyieniać aż do kotłowni , a jeszcze jak planujesz rozmieszczenie grzejników i rur na parterze i piętrze ?
palaczRybnik Opublikowano 31 Marca 2020 Autor #13 Opublikowano 31 Marca 2020 @mironw dziekuje za odpowiedz. Rury zasilające strych chciałem zrobić w otworze wentylacyjnym w kominie. Chce poświęcić jedną dziurę (są 4) na to żeby tamtendy poprowadzić przewody zasilające na strych oraz tamtendy planuję też doprowadzić rurę do zbiornika wyrównawczego jak również okablowanie (internet, domofon etc). Rury chce dobrze zaizolować, chce użyć do tego celu izolacji jaką się używa do rur solarnych. Dodatkowo będę montował wkład kominowy więc przy okazji zamuruję otwór od góry do tego kanału wentylacyjnego. Dodałem do mojego schematu mniej więcej ulokowanie grzejników. Zastanawiam się jeszcze nad pionem 6 bo tam niby będzei podpięty 1 grzejnik 666 W ale po drugiej stronie jest klatka schodowa na której jest dość chłodno i zastanawiam się czy nie wrzucić tam jednego większego grzejniki żeby nieco dogrzać klatkę.
mironw Opublikowano 31 Marca 2020 #14 Opublikowano 31 Marca 2020 To nie lepiej pion 3 zamienić na Cu22 i pociągnąć do strychu , mniej materiałów . A co do rozmieszczenia to chodziło mi o rozrysowanie parteru i piętra
palaczRybnik Opublikowano 31 Marca 2020 Autor #15 Opublikowano 31 Marca 2020 Niestety nie da rady pionem 3 ponieważ musiałbym na piętrze rozkuć całą ścianę a jest wszystko w miarę nowe po remoncie i dlatego chciałbym uniknąć kucia w ścianie. Mam tam też grzejnik zasilany dołem więc kucie kategorycznie odpada. Dorzucę rozmieszcznie grzejników później.
palaczRybnik Opublikowano 1 Kwietnia 2020 Autor #16 Opublikowano 1 Kwietnia 2020 Piętro - rozkład grzejników Parter i klatka - rozkład grzjeników
Rekomendowane odpowiedzi
Zarchiwizowany
Ten temat przebywa obecnie w archiwum. Dodawanie nowych odpowiedzi zostało zablokowane.