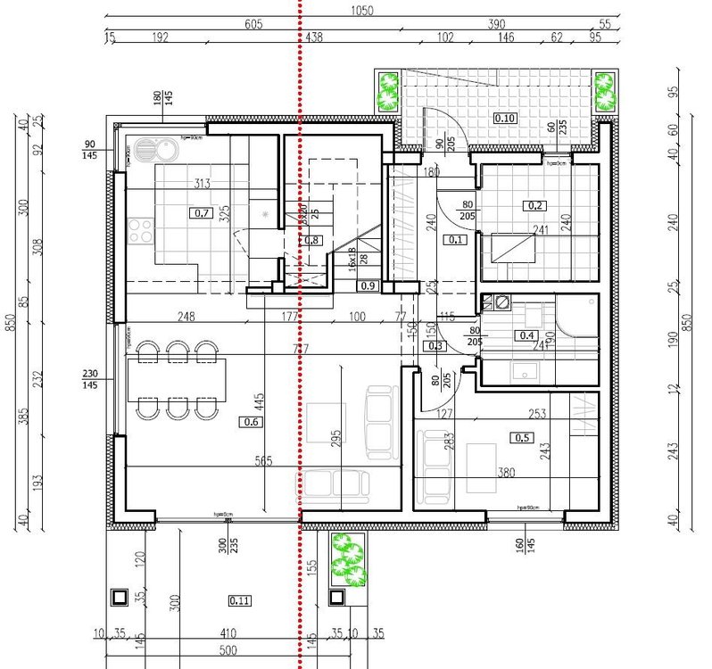
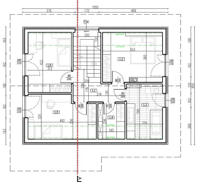
kzysiekpth Opublikowano 14 Stycznia 2020 #1 Opublikowano 14 Stycznia 2020 Witam, na wiosnę planuję zacząć budowę domu i od kilku miesięcy zastanawiam się nad ogrzewaniem. Padło na kocioł na pellet, myślałem o pompie ciepła ale z finansowego punktu widzenia mi się to nie kalkuluje. Dom będzie miał 136m² pow. całkowitej, do ogrzania 110m² (po podłogach), wszędzie podłogówka, grzejników nie chcę bo może w przyszłości będzie u mnie gaz, a może potanieją pompy i wolał bym instalację pod niskotemperaturowe źródło ciepła. Dom planuję budować z betonu komórkowego plus 15-20cm styropianu na ściany, 30cm wełny pod dachem, pełne deskowanie plus ocieplenie podłóg. Dodam że mieszkam na południu, okolice Suchej Beskidzkiej i pamiętam mroźne zimy gdzie przez tydzień potrafiły być temperatury po -25C a czasem i po -30. Link do wyliczeń ze strony cieplowlasciwie: http://cieplowlasciwie.pl/wynik/6uelCzy ktoś mógł by mi polecić jak powinna wyglądać u mnie instalacja? Jakiej mocy kocioł? Czy z buforem czy bez? (wolał bym bez po kotłownia mała no i cena...) Nie chciał bym się zdawać w 100% na instalatora i łykać wszystko jak kaczka :) Dobre opinie słyszałem o kotłach kostrzewa i kotłospaw, sterownikach plum i palnikach kipi. W załączniku dodaję rzuty z projektu. Z góry dzięki za pomoc.
eliks Opublikowano 14 Stycznia 2020 #2 Opublikowano 14 Stycznia 2020 Blackstar+ 12KW albo RTB Feniks. http://sanitsystem.pl/id,2091/prod,kociol-na-pellet-blackstar-+-12kw_280-+-montaz_ Przy tej modulacji obskoczy Ci podłogę bez bufora.
Kazio321 Opublikowano 14 Stycznia 2020 #3 Opublikowano 14 Stycznia 2020 Jest już Fenix dostępny? @eliks a nie wiesz kto może na Pomorzu zajmuje się dystrybucją i serwisem?
eliks Opublikowano 14 Stycznia 2020 #4 Opublikowano 14 Stycznia 2020 Feniks jest dostępny. Enecom Sopot.
Kazio321 Opublikowano 14 Stycznia 2020 #5 Opublikowano 14 Stycznia 2020 Kurde na enecom Fenix jest po 19k o.O
eliks Opublikowano 14 Stycznia 2020 #6 Opublikowano 14 Stycznia 2020 Nie przyglądałem się oficjalnym cenom jeszcze. Fakt że kocioł jest już kompletny i tam tylko raz w roku zaglądasz
Gość robin60 Opublikowano 14 Stycznia 2020 #7 Opublikowano 14 Stycznia 2020 2 godziny temu, kzysiekpth napisał: Czy ktoś mógł by mi polecić jak powinna wyglądać u mnie instalacja? Jakiej mocy kocioł? Czy z buforem czy bez? (wolał bym bez po kotłownia mała no i cena...) Nie chciał bym się zdawać w 100% na instalatora i łykać wszystko jak kaczka :) Dobre opinie słyszałem o kotłach kostrzewa i kotłospaw, sterownikach plum i palnikach kipi. U Ciebie instalacja powinna wyglądać tak: kocioł 20 KW + bufor 800 litrów (koszty nie adekwatne do komfortu zwrócą się bardzo szybko). zastanów się czy nie z wężownicą do CWU . Jak mało miejsca w kotłowni. Ponadto postęp idzie tak szybko , że do tego bufora podłączysz grzałkę, bądź pompę ciepła w przyszłości jak ceny na to pozwolą. i wspomożesz ten bufor w ładowaniu. Teraz Pompy Ciepła już mają pracę do 65 st, C. Możliwości jest wiele. Jeśli kocioł do tego bufora to Kotłospaw Slimko 20 KW. Tak na zdrowy rozum zastanów się w Twoim przypadku i Twej instalacji , czy kocioł ma chodzić NON - STOP, nawet jak by miał najlepszą modulację na świecie , te teorie odłóż między bajki. Czy ma się odpalić tylko 2 razy na dobę , gdzie jeden cykł pracy to max 2,5 godziny pracy i spalisz pół worka pelletu max, 15-to kilogramowego. Tylko dopowiem, za 16 tyś , to masz kocioł bufor i cały osprzęt i otwartą drogę do przyszłości.
eliks Opublikowano 14 Stycznia 2020 #8 Opublikowano 14 Stycznia 2020 Za 16k to ty nie kupisz nawet gołego Slimko 20KW z buforem 800l. Do tego dolicz potrzebny osprzęt. 1 godzinę temu, robin60 napisał: Teraz Pompy Ciepła już mają pracę do 65 st, C. Możliwości jest wiele. Mają. Ale jaki masz przy tym COP i ile wtedy wychodzi kWh przy obecnych cenach prądu?
Gość robin60 Opublikowano 14 Stycznia 2020 #9 Opublikowano 14 Stycznia 2020 Kupi zależy kto i jakie ceny oferuje na dziś. Ale za rok już jak wybuduje dom to kto wie , może i 20 tyś będzie mało. Ceny jak wszystko idzie w górę i to strasznie a otumaniony lud połknął haczyk z 500 + i innymi bonusami , od D Z.
kzysiekpth Opublikowano 14 Stycznia 2020 Autor #10 Opublikowano 14 Stycznia 2020 Kocioł Slimko 20KW + zbiornik kombinowany lemet 1000/200l z 1 wężownicą to koszt około 20tys. Blackstar+ 12kW ze zbiornikiem CWU lemet 200l z 1 wężownicą to koszt około 15.5tys. Do tego dochodzą koszty montażu I przychodzą mi do głowy 2 pytania: Czy kocioł Blackstar poradzi sobie w planowanym domku? I jak wyglądała by różnica w kosztach opału, bo na chłopski rozum to kocioł z buforem powinien być pod tym względem bardziej ekonomiczny i powinien dłużej pociągnąć przez fakt że będzie rzadziej się uruchamiał.
eliks Opublikowano 14 Stycznia 2020 #11 Opublikowano 14 Stycznia 2020 Zależy o jakich kotłach mówimy. To nie samochód że jeden "pociągnie" dłużej, drugi krócej. BS+ z zamierzenia ma bardzo dobrą sprawność na niskiej mocy a parametrów pilnuje sonda. Zgadzam się że są kotły jak np. Stalmark Ekosilver i jego klony nadają się tylko do bufora, bo to nie potrafi spraenie i czysto poniżej 5KW spalać, ale o tych konstrukcjach nie mówimy.
shogunzlasa Opublikowano 14 Stycznia 2020 #12 Opublikowano 14 Stycznia 2020 Robin jak zwykle kotłospawa slimko na każdym kroku wciska jakby to jedyny kocioł na rynku był. Czyszczenie tych płomieniówek też wygodne nie jest - przy pellecie rzadkie, ale miałbym to w d... Jeszcze całość na kolanach pasuje pucować. Dla mnie najlepsza cenowo opcja to Kocioł Leszka Katla 15kW z buforem 300-400 litrów. Wymiennik pionowy, jak wyciągniesz zawirowywacze to i całą zimę tego czyścić nie musisz jakby Ci się nie chciało. Kocioł z modułem B za 9500, do tego bufor, pompka, zawór 3D Herza lub Regulusa i będzie to działać po Bożemu. Ustawiasz jedną moc ładowania i masz to w d... Czasem korekte powietrza do pelletu zrobisz i wychodzisz. Jak nie jesteś pasjonatem - żyjesz i nie interesujesz się co się tam dzieje. Na czujniku spalin możesz zobaczeć czy tam nie wypucować kotła - a jak nie wypucujesz? Pali się dalej... Po co Wam baniaki po 800 litrów - ani tego przez drzwi nie przeniesiesz - czasem futryny z okien zrywać trzeba, żeby to wnieść. Do zasypowca tak, ale jako Bufor do instalki z pelletem? Po co? Straty postojowe takiego baniaka czasem niwelują korzyści. Kolega z Suchej i nie zakłada Lazara? :D Toż to wstyd na osiedlu będzie :P
Gość robin60 Opublikowano 14 Stycznia 2020 #13 Opublikowano 14 Stycznia 2020 Godzinę temu, shogunzlasa napisał: Robin jak zwykle kotłospawa slimko na każdym kroku wciska jakby to jedyny kocioł na rynku był. Czyszczenie tych płomieniówek też wygodne nie jest - przy pellecie rzadkie, ale miałbym to w d... Jeszcze całość na kolanach pasuje pucować. Kolego nic nie wciskam tylko dbam o przestrzeń w kotłowni autora by miał miejsce na bufor, zamiast kosza na pellet. Nie przesadzaj z tym czyszczeniem.
kzysiekpth Opublikowano 14 Stycznia 2020 Autor #14 Opublikowano 14 Stycznia 2020 2 godziny temu, shogunzlasa napisał: Kolega z Suchej i nie zakłada Lazara? :D Toż to wstyd na osiedlu będzie :P Mieszkam 8km od Suchej Beskidzkiej, z tego co sprawdziłem to firma Lazar jest z Jastrzębia Zdroju, nie bardzo widzę związek, ale w sumie nie interesowały mnie takie "gadżety" do tej pory więc pewnie czegoś nie wiem :) Kotły marki Kotłospaw polecali mi już na grupach na FB, tak samo jak kotły Kostrzewa więc skoro tutaj też już jest to jedną z opcji to coś w tym musi być. Rozumiem że gdybym się zdecydował na Slimko 20KW to bufor to takie "must have"? I czy koniecznie taki wielki ten bufor musiał by być? I druga sprawa, czy lepiej taki zbiornik kombinowany podpiąć czy może lepiej "zwykły" bufor i bojler na ścianie zawiesić?
g69 Opublikowano 15 Stycznia 2020 #15 Opublikowano 15 Stycznia 2020 @kzysiekpth mając wszędzie ogrzewanie podłogowe można rozważyć pracę od termostatów pokojowych na zasadzie ON/OFF dla palnika i pomp.Jeden termostat umieszczasz na parterze,drugi na poddaszu.Palnik się wygasi gdy parter i poddasze osiągnie zadaną temperaturę na termostacie.Jak nie przegniesz z histerezą na termostatach to się osiągnie akceptowalny komfort cieplny. Układ bez bufora.Do grzania CWU bojler.Najlepiej kocioł z małą pojemnością wodną,wtedy szybsze jest grzanie CWU jak także OP.Co za tym idzie mniej pelltu na bujnięcie układu. A za pieniądze przeznaczone na bufor zamontować dwa klimatyzatory(parter,poddasze) małej mocy z funkcją grzania.
shogunzlasa Opublikowano 15 Stycznia 2020 #16 Opublikowano 15 Stycznia 2020 9 godzin temu, kzysiekpth napisał: Mieszkam 8km od Suchej Beskidzkiej, z tego co sprawdziłem to firma Lazar jest z Jastrzębia Zdroju, nie bardzo widzę związek, Sucha i okolice zalane są w dużej mierze Lazarami :) Pamiętaj, że kocioł to tylko kawał blachy, ważny jest kształt tego klocka a nie firma. To od kogo jest palnik i sterowanie robi różnicę. Kipi - ma sterowanie pluma i nie ważne czy to spawał Jasio, Stasio, Kotłospaw, Mirek czy kto inny - jak kształt / przekrój odpowiada to firma ma mniejsze znaczenie. Kostrzewa ma dupiaty serwis, sterownik Estyma, który jest też mocno ograniczony. Palniki też tyłka nie urywają. Każdy chwali zazwyczaj co ma - pali się? Pali, działać działa. Ty potrzebujesz 5kW mocy przy -20, co oznacza, że palnik / kocioł przez większość sezonu (np przy -2, -5) będzie potrzebować może 2kW. Jak Kipi 20kW ma modulację od 5 do 20 to widać, że nawet minimum jest za dużo - dlatego potrzebujesz bufora żeby ten nadmiar upchać. Jak kupisz kocioł z małą pojemnością wodną bez bufora to nagrzejesz go szybko i musisz piec wyłączyć, ale że kocioł ma mało wody to i ona szybko wystygnie, więc włączy się znowu i tak w kółko. Przy buforze - zagrzejesz wodę i kocioł odpoczywa. Do kotła do 15kW wystarczy bufor 300-400 litrów. Taki bufor lemeta kosztuje poniżej 2 tysięcy zł. Więc możesz sprawić piec o niezłym przekroju z wygodnym czyszczeniem i dobrym sterowaniem po niższej cenie - nie przejmując się mocą minimalną. Większe kotły i bufory są droższe, ale moim zdaniem nie mają sensu do tak małych domów. Jak chcesz bufor mieć zrobiony z blachy 3-4mm żeby się lepiej poczuć to Ci go w okolicy pospawają poniżej tysiaka. Jak chcesz po taniości to możesz zapakować Ferroli Bio pellet 12kW + bufor 300L + Tech i3 do sterowania - kocioł kompakt, bufor nie taki duży, sterowanie wypasione. Jest jeszcze jedna opcja - pompa ciepła z klimatyzatora. Do domu z takim zapotrzebowaniem 7kW by styknęło - do tego kawałek grzałki na czarne dni. Inwestycja to koło 10 tys - plus termostaty na podłogówkę (bo to jedzie jeszcze na jednej temp. bez podłogówki). Lub możesz zrobić taką pompkę ciepła z tanim kotłem pelletowym lub zostawić sobie furtkę by taką pompę domontować - będzie pracować do -5, poniżej tego włączy się kocioł. Tutaj filmik z okolic suchej: https://www.youtube.com/watch?v=gRnJyXT8Xww
kzysiekpth Opublikowano 15 Stycznia 2020 Autor #17 Opublikowano 15 Stycznia 2020 @shogunzlasa dzięki za konretną odpowiedź Myślałem o pompie ciepła ale z finansowego punktu widzenia tego rozwiązania nie widzę, chyba że pompa plus fotowoltaika ale to już koszt między 50 a 60 tysięcy. Kolega z okolic montuje Panasonica T-capa 9kW (cena z montażem 27tys.) u mnie pewnie mogło by śmigać coś podobnego, cena może nawet do przełknięcia jeśli rachunki za grzanie będą niższe. Firma pod Krakowem która montuje tylko pompy marki Daikin zaproponowała mi pompę 11kW za 30k z montażem. Pytam o gwarancję ...3lata do tego coroczna wizyta serwisanta za 400zł żeby tej gwarancji nie utracić. Można przedłużyć na 5 lat ale to koszt już nie pamiętam czy 1500 czy 1700zł i dodatkowe dwa serwisy. Skasztani się coś po tych 3 latach i dupa. Koleś mówił że ostatnio dzwonił do niego facet z Nowego Targu, padła mu płyta główna w 10 letniej pompie, czy do 10 letnich pomp można dorwać części zamienne nie wiem, ale nawet nie chce mi się zastanawiać ;) Te 15-20tys za sam kocioł i ewentualny bufor to cena do przyjęcia. Powiedzmy że nie rozmawiamy teraz o kosztach tych 3 rozwiązań które mi zaproponowaliście czyli: Kocioł Slimko 20KW + bufor 800l Blackstar+ 12kW Kocioł 15kW + bufor 300-400l Jesteście Panowie w stanie określić co było by tańsze w skali roku? Chodzi mi o zużycie pelletu i prądu. Częste wygaszanie i rozpalanie kotła ma tu jakieś większe znaczenie w rachunkach za prąd? No i doradźcie jeszcze w sprawie CWU, w przypadku kotła Blackstar sprawa prosta bo pewnie bojler, a w pozostałych 2? Bufor kombinowany czy osobno bufor i bojler? Nie ukrywam zajmowanie miejsce ma tu dla mnie teraz większe znaczenie jak koszt danego rozwiązania. Kocioł z buforem do mnie przemawia z tego co wyczytałem to gdy nie będę z niego korzystać to będzie się wychładzał w okolicach 2-3 stopni na dobę, wg. mnie wypas.
PioBin Opublikowano 15 Stycznia 2020 #18 Opublikowano 15 Stycznia 2020 16 minut temu, kzysiekpth napisał: Bufor kombinowany czy osobno bufor i bojler? Nie ukrywam zajmowanie miejsce ma tu dla mnie teraz większe znaczenie jak koszt danego rozwiązania Kombinowany ze zbiornikiem wbudowanym na CWU (tanio nie bedzie). 1/3 - 1/4 od gory przeznaczona na CWU, reszta na CO. Kup taki co ma kilka kroccow, bedzie robil za sprzeglo przy kilku obiegach oraz gdybys chcial dolozyc inne zrodlo ciepla to tez obskoczy. Przy pojemnosci ~600l - 800l az nadto.
Gość robin60 Opublikowano 15 Stycznia 2020 #19 Opublikowano 15 Stycznia 2020 14 godzin temu, kzysiekpth napisał: Kotły marki Kotłospaw polecali mi już na grupach na FB, tak samo jak kotły Kostrzewa więc skoro tutaj też już jest to jedną z opcji to coś w tym musi być. Rozumiem że gdybym się zdecydował na Slimko 20KW to bufor to takie "must have"? I czy koniecznie taki wielki ten bufor musiał by być? I druga sprawa, czy lepiej taki zbiornik kombinowany podpiąć czy może lepiej "zwykły" bufor i bojler na ścianie zawiesić? Kocioł kotłospaw ma już wszystko w sobie, w tym i obsługę bufora , czujniki , pogodowkę 16 KW Ci wystarczy. A ten Katla co polecał Ci kolega wyżej. Nie idź tą drogą to złe myślenie tani ale goły. Najmniejszy bufor dla Ciebie to 600 litrów to nie jest dużo i najlepiej goły bez wężownic. W tedy masz rozwiązaną sprawę latem CWU, nie musisz grzać bufora by mieć ciepłą wodę. Bojler na ścianę powiesisz, i będziesz grzał wodę latem bezpośrednio z kotła Będzie tanio i oszczędnie.
PioBin Opublikowano 15 Stycznia 2020 #20 Opublikowano 15 Stycznia 2020 6 minut temu, robin60 napisał: W tedy masz rozwiązaną sprawę latem CWU, nie musisz grzać bufora by mieć ciepłą wodę. Przy kombinowanym nie grzejesz calego bufora tylko tyle ile zajmuje CWU, czyli np. 1/4 od gory, dajmy na to 150-200l. Cala filozofia to mądrze to podpiac. Tanie to nie jest to fakt. Tyle ze przy dwoch baniakach i "wiekszej" instalacji tez nie musi wyjsc duzo drozej. To jest proste i tez dziala.
shogunzlasa Opublikowano 15 Stycznia 2020 #21 Opublikowano 15 Stycznia 2020 9 minut temu, robin60 napisał: Kocioł kotłospaw ma już wszystko w sobie, w tym i obsługę bufora , czujniki , pogodowkę 16 KW Ci wystarczy. A ten Katla co polecał Ci kolega wyżej. Nie idź tą drogą to złe myślenie tani ale goły. Wow ma obsługę bufora? Toż to pisze że dokupujesz MODUŁ B za 550 zł i masz jeszcze 2 mieszacze w gratisie! Albo tyrknij do firmy to Ci na tym samym sterze co kotłospaw sprzedadzą pewnie za dopłatą z 300 zł - nie róbcie ludziom wody z mózgu... Co do pompy to się nie zrozumieliśmy - to co Ci wysłałem to przeróbka z klimatyzatora gdzie 12-13 tys. zł. kosztuje POMPA CIEPŁA 7kW Z MONTAŻEM I AUTOMATYKĄ DO CWU + GRZAŁKI. Czyli zestaw samowystarczalny - do -12 powinna pompa pociągnąć bez grzałek - gorzej z przełączeniem na CWU. Nie jest to może tak piękne jak oryginalna pompa ciepła bo wymiennik jest na wierzchu na ścianie, ale w działaniu nie różni się niczym od oryginalnych rozwiązań. Przykładowo niektóre jednostki zewnętrzne pomp ciepła i klimatyzatorów są te same - róznica jest w sterowaniu i tym, że jednostka wewnętrzna została zamieniona na wymiennik FREON-WODA. Co do 1 godzinę temu, kzysiekpth napisał: Jesteście Panowie w stanie określić co było by tańsze w skali roku? Chodzi mi o zużycie pelletu i prądu. Częste wygaszanie i rozpalanie kotła ma tu jakieś większe znaczenie w rachunkach za prąd? Kup to co w miarę się opłaca bo czy kupisz kocioł 20kW+bufor 800 litrów, czy 15 i bufor 400 - to różnica nie będzie duża w eksploatacji. Kupisz taki pellet spalisz więcej, kupisz inny spalisz mniej. Tam Ci się odpali 2 razy na dzień, w innym przypadku 3 lub 4ry - naprawdę chcesz się nad tym tak rozwodzić? Różnica w cenie zakupu spora więc nawet jeśli coś zaoszczędzisz na eksploatacji to zwróci Ci się pewnie już w 15 lat na pellecie. MASZ ZAPOTRZEBOWANIE 5KW!!! W normalne zimowe dni 2-3kW!!! Chcesz się pchać w duże kotły i ogromne baniaki Twoja wola, ale sensu ja tu nie widzę...
PioBin Opublikowano 15 Stycznia 2020 #22 Opublikowano 15 Stycznia 2020 @shogunzlasa jesli beda takie kotly ktore startuja od minimalnej 1-2kW (co np. zapewnia odbior budynku na poziomie +10*C na zewnatrz) z pelna sprawnoscia - to baniaki nie potrzebne. Szkoda na nie "piniedzy" ale póki co krucho z tym. Jesli wstawi kombinowany np. 600l to ~200l ma CWU oraz ~400l na CO z ktorego nie musi korzystac jesli nie chce (wystarczy przelaczyc recznie/automatycznie powrot z 1/3 wysokosci). To jest to samo co sugerowales ale w jednym opakowaniu. Inna wersja grzac czyms innym nie pelletem, ale to tez nie musi byc tanie (w montazu).
shogunzlasa Opublikowano 15 Stycznia 2020 #23 Opublikowano 15 Stycznia 2020 Nawet pompy ciepła czasem nie mają takich sprawności przy niskiej mocy. Tylko że tam wystarcza baniak 50-100 litrów jako większe sprzęgło, żeby PC nie taktowała co chwile i pomagała w defroście. Zbiornik kombinowany poza wyższą ceną ma tą wadę - że go szlag trafi szybciej niż zwykły zbiornik. Jak osobno się CWU w środku popsuje - znów trzeba dać dużo kasy, jak jest osobno i zbiornik CWU przeżre - wymieniasz baniak CWU. No ale przy kombinowanym jest jeden baniak - to fakt. Autor jak weźmie nawet i kocioł bez bufora TO TEŻ BĘDZIE ZADOWOLONY - przy tak małym odbiorze kocioł włączy się z 8 razy na dobę i też przeżyje. Jakby tego forum nie czytał to by spał spokojniej. Kocioł 12-15kW + bufor 300-400 + bojler 200L. Na ten dom to i tak za dużo bo WSZYSTKO JEST ZA DUŻE - po co ma być za duże bardziej?
g69 Opublikowano 18 Stycznia 2020 #24 Opublikowano 18 Stycznia 2020 W dniu 15.01.2020 o 07:01, shogunzlasa napisał: Jak kupisz kocioł z małą pojemnością wodną bez bufora to nagrzejesz go szybko i musisz piec wyłączyć, ale że kocioł ma mało wody to i ona szybko wystygnie, więc włączy się znowu i tak w kółko. Chyba nie testowałeś ogrzewania podłogowego w pracy od termostatu na zasadzie ON/OFF.
tom378 Opublikowano 27 Stycznia 2020 #25 Opublikowano 27 Stycznia 2020 W dniu 15.01.2020 o 13:48, shogunzlasa napisał: Autor jak weźmie nawet i kocioł bez bufora TO TEŻ BĘDZIE ZADOWOLONY - przy tak małym odbiorze kocioł włączy się z 8 razy na dobę i też przeżyje. Jakby tego forum nie czytał to by spał spokojniej. Kocioł 12-15kW + bufor 300-400 + bojler 200L. Na ten dom to i tak za dużo bo WSZYSTKO JEST ZA DUŻE - po co ma być za duże bardziej? Bardzo mądre i konkretne stwierdzenie. U mnie Slimko 12 kw bez bufora ( brak miejsca , no i następne koszty ) . Odpaleń na dobę najmniej 12 najwięcej 18 . Praca od termostatu . Nie widzę różnicy jeśli chodzi o rachunki za prąd. Więcej cykli odpaleń ale krótszych czasowo . Ile wytrzyma zapalarka - nie wiem - się okaże .
Rekomendowane odpowiedzi
Zarchiwizowany
Ten temat przebywa obecnie w archiwum. Dodawanie nowych odpowiedzi zostało zablokowane.