-
Postów
345 -
Dołączył
-
Ostatnia wizyta
-
Wygrane w rankingu
2
Typ zawartości
Forum
Wydarzenia
Blogi
Artykuły
Treść opublikowana przez pasik1002
-
Awaria CWU Dlaczego Nie Grzeje Cwu?
pasik1002 odpowiedział(a) na zasimex temat w Instalacje CO i CWU
na początek na pewno musisz wymienić rury z pexa w kotłowni proponuje wyjść z pieca rurami cu28 do trójnika na bojler , dalej do zbiornika i instalacji c.o ile sie da rurami cu 22. dodatkowo oba zbiorniki podłączyć szeregowo z powrotem zrobić to samo. na nitce do bojlera wstaw zawór regulacyjny( grzybkowy ). jak tak to podłączysz będziesz widział czy będzie konieczność wymiana rur do grzejników . i obowiązkowo zabezpieczyć kocioł jeżeli producent pozwala układ zamknięty to wstawić zawór dbv-1 a jak nie to zrobić z tego układ otwarty- 14 odpowiedzi
-
- Instalacja grzewcza
- Instalacja co cwu
-
(i 1 więcej)
Oznaczone tagami:
-
Awaria CWU Dlaczego Nie Grzeje Cwu?
pasik1002 odpowiedział(a) na zasimex temat w Instalacje CO i CWU
nazwałbym to przynajmniej masakrą hydrauliczną . 1.w domu masz bombę układ zamknięty ( brak wężownicy schładzającej , bądź zawowu dbv-1) 2. kocioł jak na 80 m2 za duży 3. zasilanie i powrót zrobione z pexa 20 a przekrój wewnętrzny na złączce zaciskanej to 13 mm tak mały układ powinien dobrze chodzić na 1 biegu a nie 3 a powiedz mi ile masz wężownic w zasobniku solarnym 1 czy 2 ??- 14 odpowiedzi
-
- Instalacja grzewcza
- Instalacja co cwu
-
(i 1 więcej)
Oznaczone tagami:
-
chciał bym przez to uzyskać oszczędność przez to że nie musiał bym wyłączać pompy jak mi w piecu wygaśnie. pompa załączała by sie jak różnica między zasilaniem a powrotem była by większa niż 10 stopni. a cena podobna do tradycyjnego termostatu przylgowego
-
Witam jestem na etapie montowania pompy kotłowej i myślę nad sterowaniem dla niej znalazłem coś takiego http://allegro.pl/termostat-roznicowy-sterownik-solarny-modul-pompa-i5182617833.html co myślicie o takim rozwiązaniu ???
-
De Dietrich De Dietrich Mcr Iii "awaria Zapłonu"
pasik1002 odpowiedział(a) na boleknh temat w Kotły gazowe
a zobacz tak z ciekawości czy dobrze podłączyli fazę do kotła bo jeśli sie pomylili może to być problemem zdejmik pokrywę sterownika ( tam gdzie masz te 2 pokrętła do regulacji ) i zobacz próbówką cz na "L" jest faza -
kup sbie coś takiego http://allegro.pl/zawor-kulowy-1-2-mocny-ze-srubunkiem-kurier-24h-i3556974727.html i wymień ten po lewej stronie u góry jak to powiedział kol automatyk
-
to ze jest czysty nie znaczy że działa mogła sie klapka zniekształcić i nie domyka najprościej zdemontować i dmuchnąć do niego w wtedy wiadomo czy działa czy nie. jeśli masz tylko hydrofon nie ma konieczności zakładania naczynia przeponowego bo jest nim hydrofor . oczywiście pod warunkiem że nie ma zaworu zwrotnego na dolocie zimnej wody do bojlera
-
jak zastosujesz syfon nr 2 to będziesz musiał dodatkowo dawać odpowietrznik. nr 1 jest lepszy. sprawdź czy zawór zwrotny działa poprawnie jak będziesz miał to rozebrane.
-
widocznie zawór zwrotny nie działa . jeśli używasz cały czas pompki możesz zrobić syfon przed zasobnikiem wtedy grawitacja ie zadziała i nie będzie wychładzało ci wody albo zmień zawór z klapowego na sprężynowy
-
na pewno nie są gorsze powiedział bym nawet że lepsze są danfossy
-
gdzieś ten gaz musi wyciekac
-
Beretta Wyciek Z Wymiennika Ciepła A Jego Naprawa ?
pasik1002 odpowiedział(a) na conderus temat w Kotły gazowe
tak jak mówi kris polutuj wymiennik lutem twardym albo zanieś komuś żeby ci to polutował -
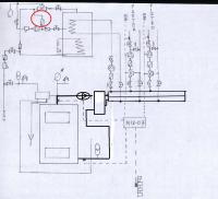
Prosze O Sprawdzenie I Opinie Schematu Co I Cwu
pasik1002 odpowiedział(a) na marekd temat w Instalacje CO i CWU
ja ten układ zrobił bym tak dodał bym pompę kotłową. wyjaśnijcie mi o co chodzi z tym podłączeniem ( czerwone kółko ) -
Prosze O Sprawdzenie I Opinie Schematu Co I Cwu
pasik1002 odpowiedział(a) na marekd temat w Instalacje CO i CWU
ja bym sie zastanowił nad sprzęgłem hydraulicznym przed rozdzielacz i dodatkową pompę kotłową . po co ta zimna woda do cyrkulacji ?? -
Problem Z Piecykiem Gazowym
pasik1002 odpowiedział(a) na krzysiek0121 temat w Kominki, kozy i inne piece
może jest przytkany dopływ powietrza do świeczki (powinna tam być taka opaska którą reguluje sie płomień ) -
Ariston Ariston - Problem Z Ciepłą Wodą,
pasik1002 odpowiedział(a) na MarcinAdaś temat w Kotły gazowe
chyba ze jest uszkodzony czujnik przepływu -
tak
-
Kominek Z Dystrybucja Goracego Powietrza Jako Jedyne Zrodlo Ciepla
pasik1002 odpowiedział(a) na lolosko temat w Instalacje CO i CWU
kotłownia w domu i tyle -
Jeden Piec -Dwie Temperatury, Czary Czy Co?
pasik1002 odpowiedział(a) na CM2X temat w Instalacje CO i CWU
zaizoluj ten czujnik jakąś izolacją , otuliną , zeby miala kontakt tylko z temp tej rury zasilającej -
może zapomniał odkręcić :P
-
byłem ostatnio na szkoleniu z termaflexu i też był poruszany ten temat. i wszyscy instalatorzy którzy byli na tym szkoleniu uznali iż ten kto robił to rozporządzenie nie miał o tym zielonego pojęcia :) oczywiście wszystkie zawory i kolana powinny być tak samo zaizolowane. a pytanie kto z instalatorów robi taką średnicą izolacje ??
-
nie koniecznie to błąd hydraulika może jak wszystko poodkręcał coś przestało grzać albo grzało słabiej
-
Dom 60 M2 Tylko Podłogówka - Wybór Kotła Gazowego Dwufunkcyjnego
pasik1002 odpowiedział(a) na lukasz8319 temat w Instalacje CO i CWU
u mnie kotły acv cieszą sie dobrą renomą i małą awaryjnością -
Dom 60 M2 Tylko Podłogówka - Wybór Kotła Gazowego Dwufunkcyjnego
pasik1002 odpowiedział(a) na lukasz8319 temat w Instalacje CO i CWU
z ciepłą wodą będziesz czekał długo aż cala zimna wyleci ( w zależności od średnicy rur ) jak masz tylko podłogówkę to nie potrzeba rozdzielacza z pompą i mieszaczem nie ma takiej potrzeby ustawisz na kotle 40 stopni i więcej nie będzie jak masz możliwość daj dobie pogodówkę ustaw krzywą grzania i bedzie dobrze a termostat pokojowy też da sobie radę -
Zmiana Ogrzewania Olejowego Na Gazowe
pasik1002 odpowiedział(a) na gromthor temat w Instalacje CO i CWU
to zależy jak zaizolowany jest dom , czy sa stare okna ??
