Fred01 Opublikowano 12 Października 2019 #1 Opublikowano 12 Października 2019 Witam wszystkich. Chciałbym się podzielić z Wami moimi doświadczeniami z przeróbką kotła Zębiec 25 kW na dolniaka. Dużo poczytałem i zdecydowałem się na palnik wirowy. Zakupiłem potrzebne płyty i cegły, zrobiłem prosty rysunek jak to będzie wyglądać. Docinanie szamotu nie było wcale takie proste, ale jakoś sobie poradziłem. Wrzucę fotki jak to wyglądało. Pierwsze rozpalanie nie było zbyt trudne ale trochę kopciło. Miałem bardzo wychłodzony komin i do tego mokry po deszczach. Długo nie paliłem w piecu.
Fred01 Opublikowano 12 Października 2019 Autor #2 Opublikowano 12 Października 2019 Po dwóch paleniach zdecydowałem się powiększyć wlot palnika, za drugim paleniem miałem problemy z ciągiem i gasło mi w piecu. Pierwotnie otwór miał wielkość 8x8 cm, powiększyłem go do 16x9 cm. Później rozpalanie było znacznie prostsze i lepiej ciągło. Tak wyglądała całość po złożeniu.
Fred01 Opublikowano 12 Października 2019 Autor #3 Opublikowano 12 Października 2019 Po powiększeniu powierzchni palnika zrezygnowałem z tych klinów po bokach, blokowały opał. Palę drewnem sosnowym. Kolejne zdjęcia przedstawiają ostateczną wersję przegrody oraz widok wymiennika po kilku paleniach. Ale przegroda dokończyła żywota po tygodniu, pękły mi płyty które stanowiły przegrodę, kilka centymetrów nad wlotem do palnika. Widać to na jednym ze zdjęć. Po tym rozebrałem przegrodę, choć trzymała się jeszcze w całości.
Fred01 Opublikowano 12 Października 2019 Autor #4 Opublikowano 12 Października 2019 Niestety ni dokończyłem kilku rzeczy, mianowicie klapki powietrza wtórnego i dokładniejszego uszczelnienia drzwi załadowczych.
mikkei Opublikowano 12 Października 2019 #5 Opublikowano 12 Października 2019 przegrode zrób z 1 odzielnego kawałka - ona rozgrzewa sie najbardziej - przez to ci popekała bo reszta szamotu nie rozgrzała sie aż tak jak jego dół... Najlepiej zrobić to z 1 grubego kawałka - np grubości 10cm i potem w tym wycinać otwor którym idzie płomien z komory zasypowej. Dół przegropdy potrafi sie rozgrzewac do 800-900'c (czasami aż swieci na czerwono jakby sie jarzył. Pomysł dobry ale troche masz mały wymiennik - do wegla to sie sprawdzi ale sosna to inny świat- na drewnie sosnowym jest długi płomien - najlepiej go rozbijać płytką nad palnikiem wirowym. Trzymam kciuki za dokonczenie konstrukcji Ps . zamiast szamotu aż do samej góry możesz dać grubą blache min. 10mm ( nad przegrodą ) ew nawet na zawiasie do boku - wtedy masz lepsze dojscie do czyszczenia wymiennika a boki takiej blachy uszczelnisz sznurem ceramicznym (coś a;la drzwi wejsciowe) a na skraju podspawany rowek w ktory wciskasz sznur ceramiczny i jak przykładasz tę blache do scianki to sznur dociska do wymiennika + zawsze masz luz kilka mm na powiekszenie blachy po rozdrzaniu. Ps blacha 10 raczej sie nie wygnie od temperatur 400'C , + ew zawsze mozesz do niej domocować od wew płytki szamotowe na mocowaniach punktowych.
Fred01 Opublikowano 13 Października 2019 Autor #6 Opublikowano 13 Października 2019 Za drugim razem złożę płyty przegrody inaczej, dam obie równolegle, tak żeby był podział temperatury na dół, który rozgrzewa się bardziej a górę chłodniejszą. Ogólnie byłem z palnika zadowolony, był widoczny dym jasny nad kominem, na pewno było go mniej niż zwykle. Najlepsze efekty widziałem podczas spalania trocin, wtedy wydobywał się mało zauważalny cień, podejrzewam że to była tylko para wodna. Na ściankach komory załadowczej zaczęła pojawiać się czarna połyskliwa warstwa, myślę że to zaczątek smoły. Wymiennik ciepła też nosił ślady takiej warstwy, było też dużo kurzu co jest chyba normalnym objawem. Wrzucę jeszcze Wam fotki przegrody po rozbiórce.
Fred01 Opublikowano 14 Października 2019 Autor #7 Opublikowano 14 Października 2019 Mam do Was pytanie odnośnie PW, czy podawać je bezpośrednio z popielnika, czy tak jak to jest przedstawione na zdjęciach, profilami od drzwiczek popielnikowych poprzez żar, wtedy PW jest dodatkowo podgrzewane.
SONY23 Opublikowano 14 Października 2019 #8 Opublikowano 14 Października 2019 Nie wiem czy słyszałeś o dyszy ( szczelinie Piecucha) ? To taki wlot powietrza z popielnika na samym wlocie do palnika. To jest najprostsze i chyba najlepsze na dzisiaj rozwiązanie. Poszukaj jest tu o tym cały wątek. A tak w ogóle, to masz zręczne ręce. Super rzeźbienie w szamocie. Szacun !
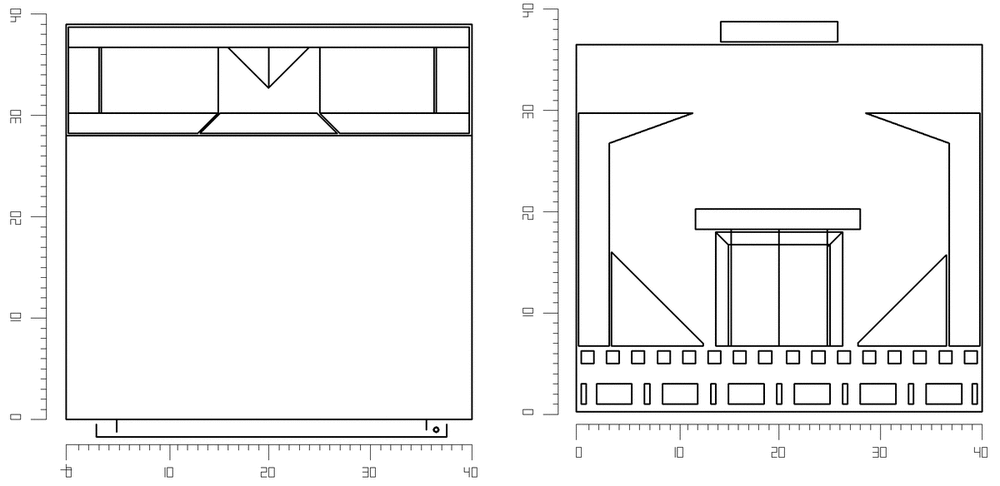
Fred01 Opublikowano 16 Października 2019 Autor #9 Opublikowano 16 Października 2019 W ostatnich dniach obmyślałem nowy projekt palnika do mojego pieca. Jest on dość ciekawy, myślę, że może Was zaskoczyć moja wyobraźnia. Założenie jest takie, żeby był trochę płytszy od poprzednika oraz zawirowywanie płomienia postanowiłem zastosować w pionie, a nie jak poprzednio w poziomie. Rysunek jest bardzo mało szczegółowy, obrazuje zasadę działania, linijki z boku pomogą w odczycie wymiarów. Jeśli za bardzo poniosła mnie wyobraźnia to bez problemu piszcie, przyjmę na klatę. Pytajcie jak co, chętnie odpowiem. Chodzi mi o to, żeby dobrze zamieszać spalinami, żeby nie leciały od razu szybko do wymiennika. Wrzucam rysunek.
Piecuch19 Opublikowano 17 Października 2019 #10 Opublikowano 17 Października 2019 Myślę że pierwsze rozwiązanie z kilkoma zmianami powinno być lepsze. Mieszanie pionowe sprawdzić się może na dużej mocy, ale na mniejszej nie będzie chciało się mieszać - ale mogę się mylić i jak sprawdzisz to będziemy wiedzieć. W pierwszej wersji poprawił bym: - komory wirowe nie powinny pracować oddzielnie Powinny być połączone ze sobą dla wyrównania ciśnień by zapobiec sytuacji gdzie w jednej dziurze będzie płomień a w drugiej tylko powietrze Skrócenie dziubka od zawirowacza o 3 cm na całej długości wyrównało by ciśnienia i płomień. Większe Wypalenie przegrody z lewej strony świadczy że tam się pali lepiej - lepszy przepływ - może nie symetrycznie względem otworu przegrody? - PW powinno być podane na wejściu otworu przegrody a nie z tyłu ( powinno być lepiej bo będzie lepsze wymieszanie i spalanie)
De-ef Opublikowano 24 Października 2019 #11 Opublikowano 24 Października 2019 Też mam KWK z palnikiem własnej konstrukcji, jak na razie działa całkiem nieźle. Zrobiony z myślą o regulacji za pomocą zmiany odległości między cegłami. W tej chwili jest to 7 cm i w zupełności wystarczy.
De-ef Opublikowano 24 Października 2019 #12 Opublikowano 24 Października 2019 Mogę jeszcze powiedzieć że teorie o mniejszym lub czystszym spalaniu na miarkowniku nie mają potwierdzenia w praktyce. Dodatkowo spalanie jest znacznie mniejsze przy większej różnicy temperatur między co i cwu, kiedy sterownik musi mocno podgrzać boiler a potem tylko trzyma żar niż w sytuacji gdy temperatury są w miarę równe i idzie równym ciągiem.
Rekomendowane odpowiedzi
Zarchiwizowany
Ten temat przebywa obecnie w archiwum. Dodawanie nowych odpowiedzi zostało zablokowane.