klaudiuszd Opublikowano 24 Maja 2018 #1 Opublikowano 24 Maja 2018 Witam wszystkich Pisze z prosba o pomoc w modernizacji swojej instalacji grzewczej. Moze pare slow o tym co jest aktualnie plus schemat. Zainstalowany kociol to Zebiec KWKD15-1 o mocy 15KW .. ma juz swoje lata, a tak sie zlozylo ze zrobili przylacze gazowe wiec postanowilem z tego skorzystac. Dom z lat 70 tych o powierzchni grzania jakies 160m2 do tego CWU 80L (spalnie 3.5T sredniej jakosci wegla przy 21-22 stopniach). Jesli chodzi o ocieplenie to jest na scianach zewnetrznych styropian 10 cm, w podlodze gdzie sie dalo tez 10cm i moze w tym roku uda mi sie polozyc welne skalna 30cm na strop jesli cos z budzetu na wymiane zostanie. Grzejniki aluminiowe dobrane na zasadzie 100W/m2 z Armatury .. lacznie jest ich 11 (+1 w przyszlosci dojdzie) przy czym nie na wszystkich sa termostaty. W kwestii samego schematu instalacji wyglada to tak: https://i.imgur.com/CqBBDW7.png Po przeczytaniu postow kilku madrych ludzi z forum zdecydowalem sie na zastosowanie kotla gazowego 1F z zasobnikiem. Wstepnie padlo na TERMET ECOCONDENS SILVER 20KW + ZASOBNIK 100L TERMET SG 100. Czy taka moc bedzie wystarczajaca dla mojego zastosowania? Jeden z instalatorow poleca wziecie 25KW i zmodulowanie na 15KW - wtedy ma wydajniej pracowac. Co o tym sadzicie? Natomiast ja wolalbym przeniesc calosc do innego pomieszczenia i zrobic wylot spalin przez sciane. Wtedy mozna zamontowac max 21KW z tego co wyczytalem na forum. Ogolnie to mam bardzo zniszczony komin dlatego obmyslilem taka alternatywe - przy okazji bedzie taniej jesli chodzi o materialy. Przechodzac do nowego schematu wstepnego: https://i.imgur.com/Gw06d5d.png Ze starej instalacji zostaje mi pompa Grundfos Alpha 25-60 z AudoAdaptem oraz jakis starego typu Turdus + zawor 3D Afriso (ktory sie jakos srednio spisywal, bedzie teraz potrzebny w ogole?) W nowym piecu bedzie juz wbudowana pompa cyrkulacyjna do C.O. bodajze Wilo jesli dobrze slyszalem. Niestety instrukcja Termeta nie jest szczegolowo opisana dlatego tez postanowilem podpatrzec jak to wyglada u konkurencji - w tym przypadku Immergas. Ponizej wklejam link odnosnie polaczenia pieca z zasobnikiem: https://www.immergas.pl/?module=documents&action=download_doc&id=7224 (strona 7) Czym mozna sie nia posluzyc jako przyklad do instalacji zasobnika Termetu? Tutaj zawor 3D i pompka sa zamontowane powrocie z C.O./CWU. Jeszcze pozostaje kwestia doboru naczynia wzbiorczego, niby wedlug instrukcji Termeta do instalacji o pojemnosci do 105L nie jest wymagane. Jakies sugestie? Wczesniej pisalem tak po krotce i jeden z bardziej doswiadczonych kolegow na forum zalecal 24 litrowy. Potrzebne do tego ukladu bedzie sprzeglo czy jakies inne wynalazki? Jeszcze mnie interesuje sprawa w jakie czujniki zainwestowac .. pogodowy wystarczy? Nie zalezy mi na sterowaniu piecem smartfonem itp. wystarczy zeby dogrzewal dobrze dom i tyle. Prosze o sugestie co mozna poprawic, dodac, jak rozmiescic najwazniejsze elementy jesli chodzi o schemat. Dzieki za dotrwanie do konca .. wole opisac wszystko jak najbardziej szczegolowo bo chce aby to wszystko dzialalo na lata i nie bylo takich kwiatkow jak w aktualnej instalacji polaczenie rury bezpieczenstwa z zasileniem C.O... Dzieki za jakakolwiek pomoc.
odpowietrznik Opublikowano 25 Maja 2018 #2 Opublikowano 25 Maja 2018 Wg.mnie kocioł 20kW wystarczy do współpracy z zasobnikiem 100l.zwłaszcza ze chcesz dać rurę powietrzno-spalinową przez ścianę.O dziwo Termet w odróżnieniu od innych producentów kotłów zaleca spadek rury powietrzno-spalinowej od kotła ok.3% Nie potrzebujesz żadnych sprzęgieł,dodatkowych pomp, zaworów 3D .Instalacja z samymi grzejnikami nie jest "wymagająca" Wystarczy czujnik zewnętrzny (zainstalowany najlepiej na północnej ścianie budynku) aby móc sterować pogodowo(ustawienie odpowiedniej krzywej grzewczej) Ewentualnie dodatkowe naczynie przeponowe do CO ale tu trzeba znać pojemność instalacji (kocioł+rury+grzejniki)Natomiast powinno być naczynie przeponowe do CWU powiedzmy 8l
klaudiuszd Opublikowano 25 Maja 2018 Autor #3 Opublikowano 25 Maja 2018 Dzieki za odpowiedz. Obliczylem ilosc wody w calej instalacji: Grzejniki ~40L | PEX16 ~36L | CU28 ~15L = ~91L + te pare rurek miedzy piecem, a zasobnikiem Jakie naczynie przeponowe bys proponowal? I co najwazniejsze gdzie jest zamontowac w systemie? Prosze o szczegoly. Czyli przy piecu/zasobniku same zawory odcinajace + filtry do wody na wejsciu wody tak jak jest to opisane w instrukcji? Na innych schematach tego typu widzialem jeszcze miejsce na zawory zwrotne .. czy w moim przypadku trzeba je gdzies dac?
sambor Opublikowano 25 Maja 2018 #4 Opublikowano 25 Maja 2018 Ja bym dał do CO minimum naczynie 12l, ale 24l też będzie dobre. Zawory zwrotne nie są potrzebne w inst CO i grzania CW. To co masz na schemacie podanym przez ciebie to wystarczy.
odpowietrznik Opublikowano 25 Maja 2018 #5 Opublikowano 25 Maja 2018 Dodatkowe naczynie przeponowe przed kotłem na powrocie.Należy ustawić ciśnienie wstępne w naczyniu w kotle(jeżeli najwyższy grzejnik jest <10m nad przyłączem naczynia to ciśnienie wstępne=1bar) i taką samą wartość w naczyniu dodatkowym.Potem uzupełnić wodę w instalacji do wartości=1,3bar Przed kotłem na powrocie również musi być filtr osadnikowy najlepiej magnetyczny
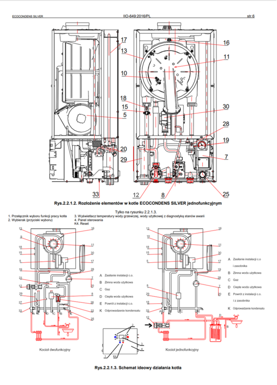
klaudiuszd Opublikowano 22 Września 2018 Autor #6 Opublikowano 22 Września 2018 Chciałem odświeżyć temat ponieważ co raz bliżej montaż kotła. Odnośnie schematu to mam jedno pytanie .. udało mi się znaleźć instrukcję na stronie Termeta ( model Silver 20 1F) oraz schemat instalacji. Zastanawiam się jakiego rodzaju zawór ma być zamontowany pod pozycją #12 (schemat po prawo) i czy w ogóle jest dołączony do kotła. No chyba raczej nie taki Afriso 3D który mam w starej instalacji bo przy nim jest jedynie tylko niepotrzebne kręcenie...
odpowietrznik Opublikowano 22 Września 2018 #7 Opublikowano 22 Września 2018 To zawór 3D przełączający,jest wbudowany w kocioł jednofunkcyjny,więc nic nie musisz kupować.Przełącza pomiędzy priorytetowym grzaniem CWU a CO Zauważ że kocioł 2F takiego zaworu nie posiada
klaudiuszd Opublikowano 22 Września 2018 Autor #8 Opublikowano 22 Września 2018 Dzieki za wyjaśnienie. Zmylił mnie po prostu ten fragment rurki (A) narysowany na czerwono .. tak jakbym musiał wyjść z kotła, a następnie zamontować jakiś zawór 3D.
klaudiuszd Opublikowano 2 Października 2018 Autor #9 Opublikowano 2 Października 2018 Napotkałem problem przy ewentualnym montażu zasobnika na wodę. Otóż linia zimnej wody jest zrobiona przy użyciu pex16. To chyba za mały przekrój aby cała grupa bezpieczeństwa wraz z naczyniem przeponowym działała prawidłowo, zgadza się? Jeśli już przerabiać w pexie to na 25 mm. Swoją drogą to naczynie przeponowe o jakiej pojemności do takiego zasobnika 120L? 1/10 objętości czyli 12L wystarczy?
odpowietrznik Opublikowano 2 Października 2018 #10 Opublikowano 2 Października 2018 Zasilanie zasobnika zimną wodą z sieci powinno być rurą 3/4"(zasobnik ma takie króćce przyłączeniowe)lub Cu 22,lub PEX 25(26) Naczynie przeponowe wystarczyłoby 8l ale 12ka nie zaszkodzi(tylko będzie droższe)
klaudiuszd Opublikowano 2 Października 2018 Autor #11 Opublikowano 2 Października 2018 Właśnie jest taka kwestia, że po drodze tej dosyć krótkiej linii jest kilka złączek zaprasowywanych które trochę szkoda teraz wyrzucic zwyczajnie do kosza. A wchodzi w grę zrobienie takiego objeścia w postaci zrobienia przejścia pex16 - pex25 na samym koncu odcinka potrzebnego do wpięcia grupy bezpieczeństwa i naczynia. Przejdzie takie coś czy trzeba wszystko od nowa robić?
odpowietrznik Opublikowano 2 Października 2018 #12 Opublikowano 2 Października 2018 Ja bym robił wszystko PEX 25(od głównego pionu-z piwnicy)fragment rury PEX 16 jest "wąskim gardłem"
klaudiuszd Opublikowano 2 Października 2018 Autor #13 Opublikowano 2 Października 2018 No niestety tak wychodzą "oszczędności" w dłuższej perspektywie. Robił to parę lat temu znajomy "po fachu". Dzięki za wsparcie, pozdrawiam.
klaudiuszd Opublikowano 6 Października 2018 Autor #14 Opublikowano 6 Października 2018 Otrzymałem złączki do alupexa 25 zaciskanego i niestety przekrój w nich się sporo zmniejsza. Na zwężeniu robi się jakieś 15 mm. Nie bardzo mnie to przekonuje szczerze powiedziawszy. Miedź natomiast jest dość droga .. metr bieżący fi 22 kosztuje około 30 pln + kształki (dwa lata temu za tyle można było kupić fi 28). Moje pytanie jest następujące: czy w grę wchodzą rury pp fi 25 wzmacniane włóknem szklanym (są też jakieś z wkładką aluminiową tylko czy warto dopłacać przy krótkich odcinkach)? Zgrzewarka kosztuje 100 parę złoty i nawet udało mi się znaleźć w komórce jakieś kawałki takich rur oraz parę kształtek do przećwiczenia. Ogólnie to planowałbym zrobić po stronie zasobnika cwu i kotła na gaz w ten sposób instalację. Widziałem nawet takie rozwiązanie w ofercie jakiejś tam firmy z serwisu gdzie można dodawać zlecenia do wykonania. Co o tym sądzicie? Ewentualnie proszę o polecenie sprawdzonego producenta. Najczęściej przewija się na serwisach aukcyjnych Sigma Li .. jednak nic mi to nie mówi.
Rekomendowane odpowiedzi
Zarchiwizowany
Ten temat przebywa obecnie w archiwum. Dodawanie nowych odpowiedzi zostało zablokowane.