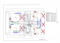
zip20 Opublikowano 11 Maja 2015 #1 Opublikowano 11 Maja 2015 WitamJestem właśnie na etapie rozkładania rurek (PEX) instalacji CO, co chciałbym wykonać samodzielnie. W związku z tym mam kilka pytań, poniżej zdjęcie z projektu. Dom ocieplony będzie styropianem 15cm, wylewka styropian 7cm okna są trochę większe niż standardowe 150/150 bo 180/150cm Z różnych źródeł wyczytałem że zapotrzebowanie na Moc domku to około 100W/m2 i zgadzało by sie to z mocami grzejników które są w projekcie. Niestety żonie nie podobają się panele i chce grzejniki aluminiowe i tu kilka pytań. Czy jeśli zastosuje grzejniki aluminiowe konkretnie te to czy dobrze przeliczyłem liczbę żeberek na pomieszczenie. Przykładowo salon 35,70m2+ Kuchnia 9,40m2 = suma pomieszczeń 45,1m2 Zakładając 100W/m2 wychodzi: 100W*45,1=4510W na oba pomieszczenia (dwa grzejniki)Patrząc w parametry grzejnika przy temp 75*C Moc (75/65/20*C) - 1120W na 10 żeberek czyli jedno żeberko 112W co by się zagadało z danymi producenta. I teraz dzieląc zapotrzebowanie pomieszczenia 4510W przez moc żeberka 112W wychodzi że potrzebuje 40 żeberek czyli po 20 żeberek na grzejnik. Teraz pytania: 1. Czy dobrze to sobie przeliczyłem, czy założona temperatura kotła (75*C) jest ok ? rozumiem że to temperatura w srogie mrozy a nie przy temperaturze na zewnątrz np. 0*C2.Czy moc grzejników w salonie nie jest za duża na PEX 16 jest to najdalej położony grzejnik i zastanawiam się czy nie lepiej te dwa grzejniki wykonać w PEX 20 ?3. W salonie planuje kominek nie wiem jeszcze czy z płaszczem wodnym ale rurki z salonu do kotłowni mogę podciągnąć i wymyśliłem że dla Mnie najprościej gdyby były z miękkiej miedzi. Położę je w otulinie tak jak PEX w wylewce i tu też pytanie o średnice czy CU18 wystarczy, czy jednak CU 22 będzie lepszym rozwiązaniem. Bedzie to rozwiązanie doraźne w okresie przejściowym (jesieno/zimowym)
Gość mak Opublikowano 11 Maja 2015 #2 Opublikowano 11 Maja 2015 Nie bardzo rozumiem po co chcesz "wyważać otwarte drzwi"? W projekcie masz dobrane grzejniki masz pokazane średnice rur, masz pokazany rozdzielacz, masz obliczone zapotrzebowanie Q= 6380W, i teoretycznie dobrany kocioł KWR 25kW. No i pytanie czy budynek jest parterowy czy może jeszcze jakieś piętro do ogrzania, Jak tylko ma być grzane to co przedstawiłeś na projekcie to twój kocioł (25 kW) spokojnie ogrzeje jeszcze 3 takie same domy sąsiadów. Ogrzewanie 80m2 kotłem o mocy 25kW to zwykła głupota. Nie za bardzo rozumiem twoje założenia co do zapotrzebowania na moc i doboru grzejników, w projekcie masz określone zapotrzebowanie i dzieląc 6380 W przez powierzchnię otrzymujesz wskaźnik na 1m2 co wynosi 78,96 W/m2, to nie wiem dlaczego chcesz przyjmować 100W/m2? Projekt jest z roku 2009 i jak użyte materiały są zgodne z założeniami projektu to masz gotowca, który trzeba tylko zrealizować, jak zostały wprowadzone zmiany np materiały ścienne, okna czy docieplenie to trzeba zaktualizować zapotrzebowanie na ciepło. I tyle musisz zrobić. Proponuję darować sobie kominek z płaszczem wodnym bo tylko komplikuje instalację, jak chcesz patrzeć na ogień to kup kominek powietrzny albo kozę .
kiminero Opublikowano 11 Maja 2015 #3 Opublikowano 11 Maja 2015 Tutaj chyba działa logika: WIĘKSZE JEST LEPSZE. A grzejniki jak masz policzone w projekcie, to każdy z osobna przekalkuluj. 25 kW dostępnej mocy, a w najmroźniejsze dni potrzeba 7 kW. Nie wydaje ci się to dziwne?
zip20 Opublikowano 11 Maja 2015 Autor #4 Opublikowano 11 Maja 2015 Jest jeszcze podasze (w załaczniku), tam sa zlikwidowane dwie dodakowe łazienki i trzeba zwiekszyc moc grzejników w tych pokojach o moc łazienki. Czyli moc podana w projekcie jest wystraczjąca i takową przeliczyć na grzejniki żeberkowe ? Nie wiem tylko przy jakim zakresie temperatury jest podana moc tych grzejników 75*C albo 90*C. Jaką moc maxymalną obsłuży PEX 16 ? cały czas obawiam się o ten salon że nie nie da rady i będą zimnie grzejniki w połowie.
sambor Opublikowano 11 Maja 2015 #5 Opublikowano 11 Maja 2015 To potrzebujesz całkowitą moc grzejną 13kW + ok 2-3 kW na potrzeby CWU - kocioł to max 15kW zasypowy lub z podajnikiem - moc z projektu 25kW jest za duża. Patrząc po mocach obliczeniowych grzejników projektant przyjął parametry zasilania grzejników na poziomie 70/60/20C. Aby dobrać moc grzejników do przerobionych pomieszczeń to trzeba podzielić moc sumaryczną piętra - ta z pod rysunku podzielić przez powierzchnię grzaną , a następnie pomnożyć przez powierzchnię nowych pomieszczeń. Pex 16 x 2 przy parametrach zasilania i powrotu podanych wyżej , bez problemu zasili grzejnik o mocy 2.2 kW. Jak się obawiasz to daj Pex 20x2
DoradcaKAN Opublikowano 11 Maja 2015 #6 Opublikowano 11 Maja 2015 Średnica 16x2 przy parametrze 70st. C i spadku dt=20st. C jest w stanie przenieść około 3000 - 3200 W. Sam możesz sprawdzić to tu: http://sankom.pl/online/sankom/kkt/kan/pl/opory/ Pozdrawiam.
sambor Opublikowano 11 Maja 2015 #7 Opublikowano 11 Maja 2015 Ale grzejniki są dobrane mocowo na zasilanie 70/60/20 - sam to możesz sprawdzić na stronie Purmo!
DoradcaKAN Opublikowano 11 Maja 2015 #8 Opublikowano 11 Maja 2015 Być może tak jest, ale przy parametrze 70st. C i dt=10st. C wychodzi że średnica 16x2, przy w miarę rozsądnych oporach, przeniesie już tylko około 1600 - 1700 W.
zip20 Opublikowano 11 Maja 2015 Autor #9 Opublikowano 11 Maja 2015 Teraz to już mam mętlik, czy te podane moce w projekcie są ok czy liczyc po swojemu 100W/m2. chce zakupić te grzejniki http://www.grupa-armatura.pl/katalog_51.html?produkt_id=1014&kat_id=212 to podaje producent: Moc grzewcza 1 Członu dla ^t = 50 ' C: 112 Moc grzewcza 1 Członu dla ^t = 60 ' C: 141a to .na stronie leroymerlin Moc (75/65/20°C) 1120 W
sambor Opublikowano 11 Maja 2015 #10 Opublikowano 11 Maja 2015 Masz moc grzewczą potrzebną dla danego pomieszczenia, więc przyjmij sobie np temp zasilającą = 60C i dla tej temperatury dobierz ilości żeberek w grzejnikach. Na wyjściu z kotła, dla ochrony powrotu zastosujesz zaw 4-D i będziesz mógł ustawić też temp zasilania na ok 60C. Tak jak pisałem poprzednio - do grzejników 2 kW możesz dać PEX 20.
zip20 Opublikowano 12 Maja 2015 Autor #11 Opublikowano 12 Maja 2015 Producent podaje tylko wartości dla deltaT=50*C -112W i dla deltaT=60*C-141W a nie wiem co to kompletnie oznacza. Na stronie leroymerlin wartości podane są w nawiasach i to już rozumiem (temp zasilania, temperatura powrotu, temperatura do uzyskania) - pytanie tylko skąd "leroymerlin" ma te wartości. Moc (55/45/20°C) 587 W Moc (75/65/20°C) 1120 W Moc (90/70/20°C) 1410 W Według tego: Oblicznia dla grzejnika w salonie temp 95*C 2040/141 = 14 żeberek Oblicznie dla grzejnika w salonie dla 75*C 2040/112= 18 - żeberek Oblicznia dla grzejnika w salonie dla 55*C 2040/58,7= 35 żeberek
kiminero Opublikowano 12 Maja 2015 #12 Opublikowano 12 Maja 2015 Przypominam jak liczona jest ΔT ΔT= (TZ+TP)/2 - TO , gdzie TZ - temperatura zasilania grzejnika, TP - temperatura powrotu grzejnika, TO -temperatura otoczenia. ΔT= (55+45)/2 - 20 = 30 ΔT= (75+65)/2 - 20 = 50 ΔT= (90+70)/2 - 20 = 60 Każda zmiana prowadzi do innych wyników. Przyjęło się, że deltę liczymy dla żądanych 20 sC w pomieszczeniu, ale jeśli temp ta będzie wyższa, to moc grzejnika będzie mniejsza, a zapotrzebowanie pomieszczenia na energię wyższe. Nie bez podstaw zakłada się, że podniesienie temperatury pomieszczenia o 1 stopień, pociąga za sobą 7% wzrost zużycia energii do ogrzania (różne są te szacunki). Dla konkretnego grzejnika musiałbyś poszukać dokładnych danych, tabel mocy lub równania charakterystyki cieplnej. Dla celów poglądowych znalazłem ulotkę grzejnika aluminiowego z podanym równaniem, gdzie Moc = 7,3833 * ΔT1,3233 (dla grzejnika 10 członowego). Z równania można sobie dowolnie wyprowadzić osiąganą moc dla różnych wariantów ΔT. ulotka_wulkan_0.pdf Osobiście dobrałbym grzejnik na 75 sC, ponieważ to i tak są warunki skrajne dla temp zewn -20. Przez większość sezonu będziesz potrzebował dużo niższych mocy, które osiągniesz spokojnie grzejąc 50-55 (temp na kotle to co innego). Jak już te -20 się pojawi to pogonisz grzejnik na 75 lub wyżej i nie zmarzniesz.
zip20 Opublikowano 12 Maja 2015 Autor #13 Opublikowano 12 Maja 2015 Dzięki wielkie ! Ostatnie pytanie nie związane z instalacją czy 7cm styropianu na podbetonce to mało ? bedzie to styropian ╗031 a więcej nie wcisne nie stety.
kiminero Opublikowano 12 Maja 2015 #14 Opublikowano 12 Maja 2015 Szału nie ma, ale tragedii też nie. Jeśli chudziaki już wylane, to zostaw jak jest. A projektowo jak przewidziano? P.S. Grzejniki można dobrać małe i osiągnąć efekt zasilając je wysoką temperaturą. Jeśli przyjdzie Ci do głowy modernizacja w kierunku kotła gazowego kondensacyjnego, to grzejniki dobrane pod kocioł węglowy mogą być za małe, by z efektu kondensacji skorzystać. Tu lepiej mieć grzejniki przewymiarowane. To tak na marginesie.
zip20 Opublikowano 12 Maja 2015 Autor #15 Opublikowano 12 Maja 2015 W projekcie było 8cm zwykłego styropianu. Chodziak jest z B20 7-10cm stlucznie tego teraz to masakra.
Rekomendowane odpowiedzi
Zarchiwizowany
Ten temat przebywa obecnie w archiwum. Dodawanie nowych odpowiedzi zostało zablokowane.