Skocz do zawartości

0degree

Stały forumowicz
  • Postów

    261
  • Dołączył

  • Ostatnia wizyta

  • Wygrane w rankingu

    1

Treść opublikowana przez 0degree

  1. Jarek napisz jakie sa wymiary twojego kotła (całego zestawu) wys/szer/głęb. rozumiem że wyjscie spalin masz do góry wiec jest mozliwosc dosunięcia do ściany. Jak się sprawuje ecoal? rzeczywiscie łatwo dostosowuje sie do zmiany kalorycznosci opału?
  2. Zobacz ile wychodzi przewodów z silnika do puszki przyłączeniowej, jeśli 4 to będzie ok jeśli 3 to kiepska sprawa. W silnikach jednofazowych aby zmienić kierunek wirowania należy zamienić między sobą końcówki uzwojenia pomocniczego[rozruchowego] Aby tego dokonać musisz ustalić które końcówki należą do uzwojenia głównego, a które do pomocniczego. Pomiarów możesz dokonać zwykłym multimetrem na zakresie rezystancja. Uzwojenie główne[praca]-rezystancja mniejsza ok-10 omów Uzwojenie pomocnicze[rozruch]-rezystancja wieksza ok-12/14omów
  3. Co do moich ustawień to muszę sie na razie wstrzymać bo jeszcze nie palę więc nie ma sensu. Ja mam zamiar w przyszłości rozbudować swój sterownik o regulator pogodowy np. taki który będzie precyzyjnie sterował temp wody na instalacje co. Na razie przecierasz szlaki z tymi ustawieniami, ale dobrze że się z nimi dzielisz na forum. Popytaj kolegę o nicku dareklop który też ma ten sam piec i sterownik oraz pokojowy, na pewno dużo Ci podpowie.
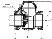
  4. Drążąc temat- czy dodanie zaworu zwrotnego w miejscu jak na rysunku rozwiąże problem zakłócenia grawitacji podczas braku zasilania i wyłączeniu pompki? schemat4.bmp
  5. Wiele moja odpowiedź nie wniesie do twojego problemu, napisze jednak gdyż mamy ten sam kocioł i sterownik. Odpowiedz sobie czy naprawdę potrzebujesz ten sterownik pokojowy? Nie lepiej w każdym pokoju zastosować regulacje temperatury za pomocą głowic termostatycznych przy grzejnikach/ podłogówkach, masz możliwość ustawienia w każdym pomieszczeniu innej temperatury, po co tyle komplikować?
  6. Niedługo zaczyna się sezon, więc i ustawienia użytkowników się posypią. Michalcc jaki masz palnik? bo ja mam miał/groszek z brzegu.
  7. Nie wiem dlaczego większość uczepiła się tych nieszczęsnych sprężynek, kiedy już od dawna są takie zawory: http://www.unisan.net.pl/perfexim-zawr-zwr...dn25-p-280.html
  8. Ok mój mail: kajec1979(małpa)wp.pl
  9. Dareklop a nie mógłbyś podać tych ustawień na forum? Sam jestem ciekawy co i jak, mój dziubarczyk kwm sgr 25kW stoi w garażu gotowy do podłączenia pod już wykonaną instalacje. Masz już ten sterownik z modulacją mocy? jakim paliwem palisz i jaki masz palnik? Pozdrawiam.
  10. Kukislaw i co zrobiłeś, podnosiłeś ten powrót czy zostawiłeś na tej grawitacji? Mam identyczny dylemat i chyba żeby nie zakłócić pracy na grawitacji podczas ewentualnego braku prądu zastosuje jednak zawór 3 drożny z połączeniem aby mi mieszał wodę idącą na instalacje z powrotem z grzejników (wtedy nie potrzeba by podnosić powrotu). Zależy mi na takim połączeniu ponieważ planuje ustawić temp na kotle 65, i w okresach jesienno wiosennych może być za gorąco (głowice będą). A co na to wszystko kolega Quitar?
  11. Biawar ma w swojej ofercie 220 litrowy o średnicy 58cm, to na wypadek gdybyś miał nie za dużo miejsca.
  12. Najlepiej jeśli już masz upatrzony już konkretny kocioł, zadzwoń do producenta i zapytaj o taką przeróbkę. Dużo firm chętnie podejmie się takiej roboty, niejednokrotnie bez dopłaty. Coś o tym wiem, ponieważ sam tak zrobiłem, gościu przez telefon wypytał mnie gdzie mam mieć wylot spalin (ja mam z góry) czy symetrycznie czy przesunąć do przodu, w którą strone mają sie otwierać dzwiczki, jaki kolor blach, ile wyjść wody z pieca itedeitepe. Za przeróbkę nic nie doliczyli do ceny. Pozdrawiam.
  13. Witam. Sterownik w piecu który mam zamówiony (key RK 2006L) ma opcje pozbycia się tych "zwierzątek". Polega ona na jednorazowym nagrzaniu cwu do 75 st.C. I podobno ma tym sposobem likwidować.
×
×
  • Dodaj nową pozycję...

Powiadomienie o plikach cookie

Używając tej strony zgadzasz się na Polityka prywatności.