IGNOROWANY
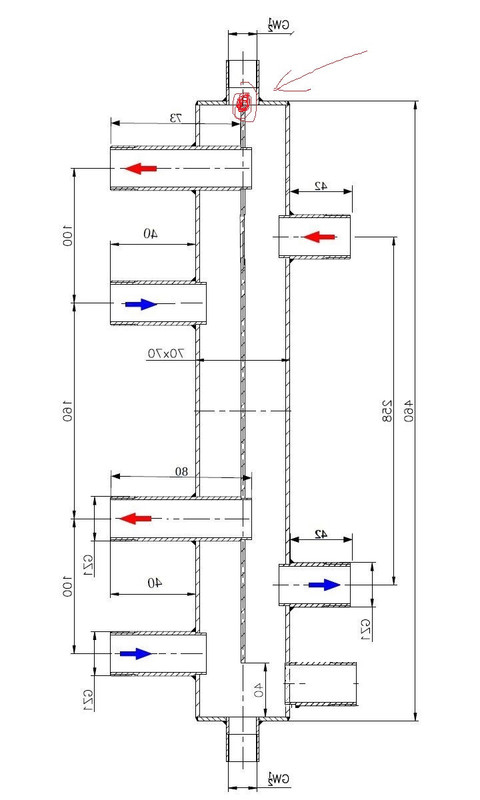
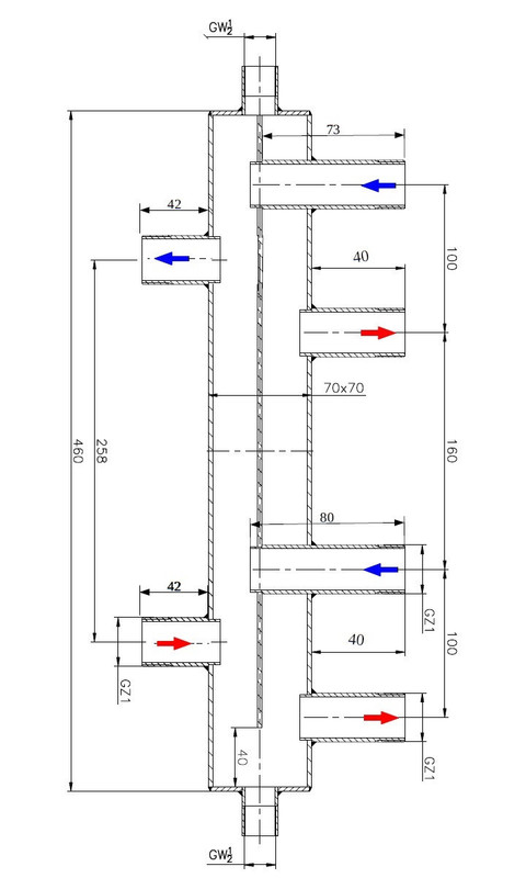
Sprzęgło hydrauliczne DEFRO DAS 50 ( ciepła woda idzie tylko na górny obieg) 100% podłogówki w całym domu
- Odpowiedz w tym temacie
- Ignoruj ten temat
- Czy wyłączyć ignorowanie tego tematu?
- Dodaj nowy temat
-
Ostatnio przeglądający 0 użytkowników
- Brak zarejestrowanych użytkowników przeglądających tę stronę.
-
Podobna zawartość
-
- 6 odpowiedzi
- 727 wyświetleń
-
- 3 odpowiedzi
- 1992 wyświetleń
-
Modernizacja instalacji co De Dietrich Modulens AGC 15 / 160SL + obieg mieszaczowy i bezpośredni + 100% podłogówka
Przez PiotrekDD,
- 0 odpowiedzi
- 393 wyświetleń
-
Wybór kotła na gaz Kocioł kondensacyjny + sprzęgło hydrauliczne grzejniki podłogówka i grzanie CWU
Przez RabelKamil,
- Dobór kotła
- kocioł kondesacyjny
- (i 3 więcej)
- 4 odpowiedzi
- 748 wyświetleń
-

Rekomendowane odpowiedzi
Dołącz do dyskusji
Możesz dodać zawartość już teraz a zarejestrować się później. Jeśli posiadasz już konto, zaloguj się aby dodać zawartość za jego pomocą.
Uwaga: Twój wpis zanim będzie widoczny, będzie wymagał zatwierdzenia moderatora.