Kondziar Opublikowano 2 Stycznia 2016 #1 Opublikowano 2 Stycznia 2016 Witam Prosiłbym o ocenę instalacji, ponieważ myślałem, że jest dobrze wykonana, a użytkownik sambor mnie uświadomił, że jest źle wykonana. Prosiłbym forumowiczów o opinie. Dom: Powierzchnia 113m2 (netto) z poddaszem użytkowym. Nowe budownictwo z hadykówki i styropianem 12cm oraz izolacja poddasza wełną mineralną. Stolarka okienna: nowa Kocioł gazowy: Valiant 240/3-3M + sterownik Auraton 2025 (umieszczony w najchłodniejszym pomieszczeniu). Instalacja: Ogrzewanie podłogowe na powierzchni 41m2 wyposażone w pompę z 3 stopniową regulacją oraz mieszaczem wody. Dodatkowo jest sterownik ST-21 do pompy z ustawieniem temperatury oraz histerezą. Podłogówka również wyposażona w głowicę regulacyjną od 2-4,5 czujnik temp wody oraz regulatory przepływu. W załączniku zdjęcie całej rozdzielni. Oprócz ogrzewania podłogowego są również grzejniki Trzeci załącznik ukazuje parter gdzie wszędzie jest wyłożona podłogówka oprócz pomieszczenia nr 2 i 8. Czerwonymi liniami zaznaczyłem grzejniki. Dodatkowo w pomieszczeniu nr 2 jest grzejnik aluminiowy (Armatura) składający się się z 10 żeberek. Pomieszczenie nr 3 ma również grzejnik drabinkowy (Gorgiel) z 16 szczebli. Czwarty załącznik ukazuje poddasze. Również zaznaczyłem czerwonymi liniami gdzie są grzejniki. Pomieszczenie nr 3 jest wyposażone w grzejnik (Armatura) składający się z 10 żeberek Pomieszczenie nr 4 jest wyposażone w grzejnik (Armatura) składające się z 12 żeberek Pomieszczenie nr 5 jest wyposażone w grzejnik (Armatura) składający się z 10 żeberek Pomieszczenie nr 6 jest wyposażone w grzejnik drabinkowy (Gorgiel) składający się z 19 szczebli oraz ogrzewanie podłogowe Pomieszczenie nr 7 jest wyposażone w trzy grzejniki oraz regulator pokojowy Auraton 2025 jeden aluminiowy Armatura 8 żeberek drugi aluminiowy Armatura 10 żeberek trzeci metalowy Purmo 40x90cm Prosiłbym o opinie co jest źle i jak to skonfigurować, aby było optymalnie. Sam próbowałem, różne konfigurację i zmieniałem ustawienia co dobę, ale nie bardzo mogłem ustalić najlepszego ustawienia. Z góry dziękuję za wszystkie wskazówki oraz życzę wszystkiego dobrego w nowym roku.
sambor Opublikowano 2 Stycznia 2016 #2 Opublikowano 2 Stycznia 2016 Jeżeli oba kotły są ustawione w 1 kotłowni to jest sprawa niedopuszczalna, sprzeczna z prawem budowlanym i zdrowym rozsądkiem
Kondziar Opublikowano 2 Stycznia 2016 Autor #3 Opublikowano 2 Stycznia 2016 Niestety są oba w jednym pomieszczeniu i ani instalator, ani kominiarz, ani serwisant Valiant nie poinformował mnie, że jest to sprzeczne z prawem :/ Co do bezpieczeństwa to zdaję sobie z tego sprawę i kocioł węglowy jest wykorzystywany tylko w okresie kiedy tylko lepiej przepalić na parę dni i później korzystać z ciepłej wody z zasobnika. W tym czasie gaz jest zakręcany zaworem przy liczniku. Dodatkowo jest nawiewnik oraz wentylator w celu wyciągania oparów.
sambor Opublikowano 2 Stycznia 2016 #4 Opublikowano 2 Stycznia 2016 I następny błąd - wentylacja mechaniczna wyciągowa w kotłowni! Opisuj dalej to może będą następne "kwiatki" Już nie mówię o tych co ci wczoraj w innym temacie opisywałem.
Kondziar Opublikowano 2 Stycznia 2016 Autor #5 Opublikowano 2 Stycznia 2016 W sumie już chyba wszystko opisałem. W kotłowni jest jeszcze kratka kanalizacyjna w razie zalania oraz wodomierz. W poniedziałek wywalam wentylator i pakuję zwykłą kratkę. Wczoraj napisałeś, że instalacja wykonana dziwnym schematem i na niefirmowych elementach. Możesz rozwinąć myśl, o jaki dziwny schemat chodzi? Czyżby łączenie podłogówki z grzejnikami?
sambor Opublikowano 2 Stycznia 2016 #6 Opublikowano 2 Stycznia 2016 A odpływ skroplin z kondensata jest? Do kotła kondensacyjnego nie robi się podłogówki na pompie mieszającej, ponadto elementy sterowania i regulacji muszą dedykowane do tego kotła. A u ciebie jest 2xNIE Taki mieszacz to się jeszcze czasami do kotła węglowego wstawia - aby on dobrze działał musi być temp na jego zasilani o co najmniej 20C wyższa niż temp wody na podłogę. Np chcesz mieć na podłogę 32C to z kotła powinna wychodzić woda o temp min 32+20=52C - proste? I jakie oszczędne :o A jak kocioł wie jaka temp jest potrzebna? Nie wie - brak komunikacji kotła z resztą! Poszukaj na stronie producenta kotła prawidłowego schematu i sam zobacz co masz źle.
Kondziar Opublikowano 2 Stycznia 2016 Autor #7 Opublikowano 2 Stycznia 2016 Ale z tego co wiem, mój kocioł nie jest kondensacyjny. http://www.vaillant.pl/klienci-indywidualni/produkty-i-systemy/atmotec-pro-vuw-646.pl_pl.html Co do odpływu przy kondensacyjnym to wiem i nie miałem możliwości takiego montować z innych względów. Jeżeli chodzi o mieszacz, to można go usunąć i zostawić rozdzielnia z samą pompą?
sambor Opublikowano 2 Stycznia 2016 #8 Opublikowano 2 Stycznia 2016 Co do kotła przeprosiny, widocznie z innego tematu przeniosłem wiedzę, ale to tym bardziej kocioł na śmieci won z tego pomieszczenia. mam nadzieję, żę w tym samym kominie działają. Możesz usunąć mieszacz , zostawić pompę, ale czy temp zasilania podłogi nie będzie za niska dla grzejników? PS Jak palisz na tak niskich temperaturach to gdześ ten kondensat musisz odbierąć
Kondziar Opublikowano 2 Stycznia 2016 Autor #9 Opublikowano 2 Stycznia 2016 Z przeniesieniem będzie problem, bo jeżeli miałby być na parterze, to kotłownia lub klatka schodowa a drugi komin jest w kuchni i salonie. Na poddaszu również wychodzi na klatce schodowej lub w łazience. Jedynym pomysłem, jest pozbycie się kotła węglowego. Oba piece są podłączone do tego samego komina, ale komin jest podzielony na 4 części i każdy kocioł wylot ma na oddzielną część.
Kondziar Opublikowano 4 Stycznia 2016 Autor #10 Opublikowano 4 Stycznia 2016 Nawiązując do pytań z tego tematu https://forum.info-ogrzewanie.pl/topic/20429-ogrzewanie-pod%C5%82ogowe-grzeje-tylko-cz%C4%99%C5%9Bciowo/page-2 Wczoraj przestawiłem pompę na 1 bieg, głowicę przestawiłem z 3,25 na 3,75 i mimo, że kocioł grzał przez ok. godzinę podłoga była zimna. Na wejściu miał 48, a na termometrze nad pompą mieszacza miał 48-50stopni. Jeszcze takie pytanka Dlaczego jak ustawię na kotle temp. np. 48stopni to po paru minutach kocioł podbija sobie temperaturę o 2-3 stopnie? Lepiej dać wyższą temp na kotle czy bardziej rozkręcić głowice grzejników/podłogówki? W temacie z powyższego linku wspomniałeś o małej modyfikacji mojej instalacji i patrzyłem to u mnie można zostawić listwy zasilające, chyba pompę. Trzeba by dołożyć zawór 3D jak widzę koszt ok. 200zł, ale nie wiem czy są dobre. Oczywiście trzeba by zmienić schemat połączeniowy. Wentylator wyleciał i zastąpiłem go kratką. P.S. Poprawiłem schemat, ponieważ brakowało regulatora pokojowego, złe miejsce podpięcia czujnika sterowanika ST21, oraz brak zaworków podłogówki.
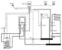
sambor Opublikowano 4 Stycznia 2016 #11 Opublikowano 4 Stycznia 2016 Teoretycznie instalacja powinna wyglądać tak jak na rys. poniżej Kosztów przeróbki nie znam, ale pewnie ok 3-4tys wyjdzie, sama elektronika której nie przeskoczysz to ok 3000 Sprzęgło i zaw 3-D z siłownikiem to ok 1200, pompa CO - 400.
Kondziar Opublikowano 4 Stycznia 2016 Autor #12 Opublikowano 4 Stycznia 2016 Faktycznie takie koszta mogą wyjść, sam sterownik VRC630 to koszt ok. 600zł. Na tą chwilę zostawię tak jak jest, a w okresie wakacyjnym będę modyfikował. Dzięki za wyjaśnienie, plusiki poleciały.
Kondziar Opublikowano 4 Stycznia 2016 Autor #13 Opublikowano 4 Stycznia 2016 Jeszcze takie pytanie, czy w grzejnikach zawór na powrocie powinien być odkręcony na maxa czy jednak trochę skręcony? Podobnie czy głowice na zasilaniu grzejnika lepiej jak są odkręcone na maxa czy jednak skręcone? W chwili obecnej czy ustawię na 4 czy na max czyli 6 nie odczuwam zmiany temp. w pomieszczeniu.
Rekomendowane odpowiedzi
Zarchiwizowany
Ten temat przebywa obecnie w archiwum. Dodawanie nowych odpowiedzi zostało zablokowane.