wolosk Opublikowano 3 Grudnia 2014 #1 Opublikowano 3 Grudnia 2014 Witam Mam prośbę aby ocenić lub podpowiedzieć czy taka modyfikacja instalacji będzie prawidłowa.
majschi Opublikowano 3 Grudnia 2014 #2 Opublikowano 3 Grudnia 2014 witam Zawór 4d minimum 6/4 oraz takie same rury w obiegu kotłowym i będzie ok pozdrawiam
wolosk Opublikowano 4 Grudnia 2014 Autor #3 Opublikowano 4 Grudnia 2014 Majschi dziękuję za odpowiedź. Czy na pionach zasilających założyć poprostu zawory i odpowietrzniki czy ciągnąć górą do naczynia wzbiorczego bo takie coś też gdzieś widziałem. A i króćce z pieca mam 1 1/4" i tu zastanawia mnie te 6/4
majschi Opublikowano 5 Grudnia 2014 #4 Opublikowano 5 Grudnia 2014 Na pionach wystarczą odpowietrzniki automatyczne wtedy rury odpowietrzające są zbędne. Zawór 4d warto dać większy wtedy nie ma problemu z grawitacją w obiegu kotłowym
wolosk Opublikowano 9 Grudnia 2014 Autor #5 Opublikowano 9 Grudnia 2014 Gdzieś czytałem że przy małej mocy kotła tj. do 25kW można wykorzystać rurę cyrkulacyjną jako rurę bezpieczeństwa. I tak myślę czy to przy moim kotle 17,5kW nie było by właściwe. Nie musiałbym prowadzić tej dodatkowej rury aż do naczynia. Czy to nie będzie strzał w kolano
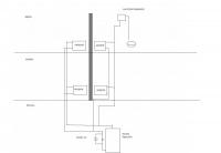
kiminero Opublikowano 9 Grudnia 2014 #6 Opublikowano 9 Grudnia 2014 To właśnie pokazuje rysunek nr 2.
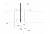
wolosk Opublikowano 9 Grudnia 2014 Autor #7 Opublikowano 9 Grudnia 2014 Na rysunku nr 2 jest rura bezpieczeństwa poprowadzona bezpośrednio z kotła. Chodzi mi o to czy zamiast ją prowadzić mogę wykorzystać jeden z pionów i z jego najwyższego punktu podpiąć sie do naczynia
kiminero Opublikowano 9 Grudnia 2014 #8 Opublikowano 9 Grudnia 2014 Nie możesz, ponieważ po drodze miałbyś zawór 4D, który ten pion grzejnikowy może odciąć od kotła.
wolosk Opublikowano 9 Grudnia 2014 Autor #9 Opublikowano 9 Grudnia 2014 Ok dzięki. Nie wiem czemu cały czas nie brałem pod uwagę stanu kiedy zawór 4d będzie zamknięty.
wolosk Opublikowano 23 Stycznia 2015 Autor #10 Opublikowano 23 Stycznia 2015 Znajomy któremu pokazałem to co chcę zrobić w instalacji powiedział że obawia się czy nie będę gotował wody w obiegu kotłowym i czy nie warto jednak dać na nim jakiejś pompy tak aby tylko ruch jakikolwiek wytwarzała. Jeśli tak to też na bypasie czy niekoniecznie
meping Opublikowano 23 Stycznia 2015 #11 Opublikowano 23 Stycznia 2015 Jeśli zachowasz odpowiednie przekroje w obiegu kotłowym (takie jak wyjście z kotła) to pompa na małym obiegu jest zbędna - sprawdzone na własnej instalacji ;) Ale jeśli koniecznie chcesz zużywać więcej prądu, to nie ma przeciwwskazań... ;)
Rekomendowane odpowiedzi
Zarchiwizowany
Ten temat przebywa obecnie w archiwum. Dodawanie nowych odpowiedzi zostało zablokowane.