Skocz do zawartości
IGNOROWANY

prośba o ocene prostego schematu ins.


marcin2424

Rekomendowane odpowiedzi

Opublikowano

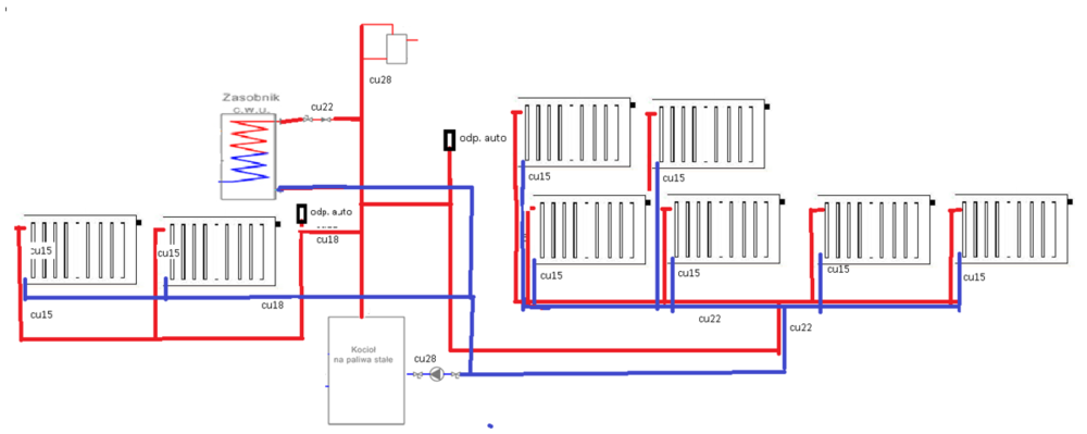
Witam! proszę ocene schematu ins co chodzi mi głównie średnice rurek i połączenie powrotów do pompki.Instalacja ma byc niestety tania:/. Piec na paliwo stałe 8kW grzejniki stalowe c22 od 800 do 1000. Z góry dziękuje za opinie.

instal..png

Opublikowano

Tanie mięso to psy jedzą...

Do wyliczenia średnic rur należy podać nie tylko ilość grzejników ale także ich moc (każdego) oraz temperaturę zasilania i powrotu.

Przed pompą brakuje filtru siatkowego skierowanego sitkiem do dołu.

Na zasilaniu wężownicy zbiornika CWU brakuje zaworu termostatycznego z kapilara do regulacji temperatury wody użytkowej.

Zarchiwizowany

Ten temat przebywa obecnie w archiwum. Dodawanie nowych odpowiedzi zostało zablokowane.

  • Ostatnio przeglądający   0 użytkowników

    • Brak zarejestrowanych użytkowników przeglądających tę stronę.
×
×
  • Dodaj nową pozycję...

Powiadomienie o plikach cookie

Używając tej strony zgadzasz się na Polityka prywatności.