Skocz do zawartości
IGNOROWANY

nowa część domu i projekt instalacji


MRfoto

Rekomendowane odpowiedzi

Opublikowano

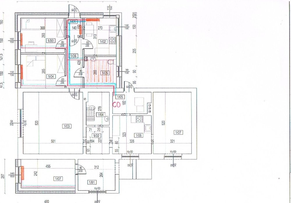
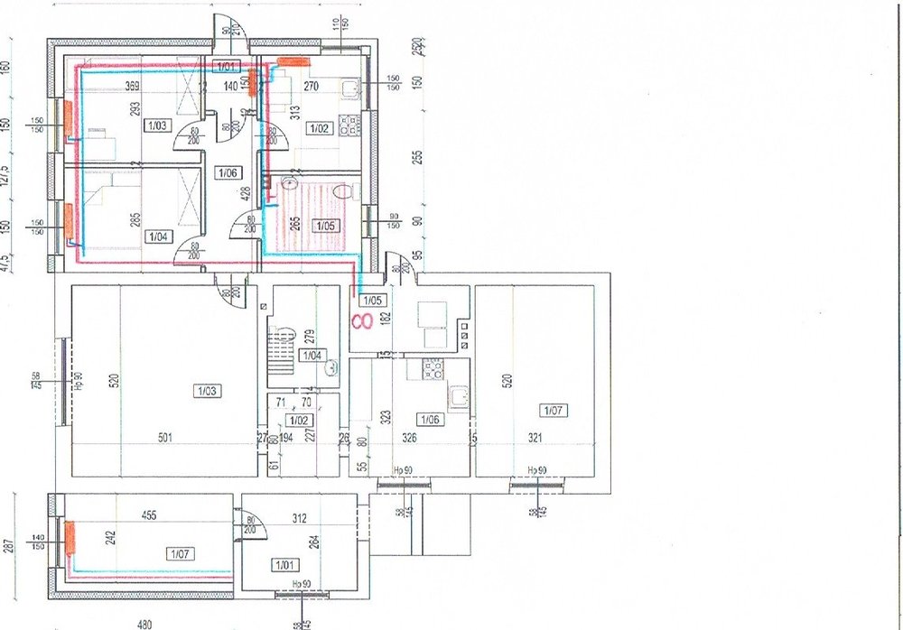
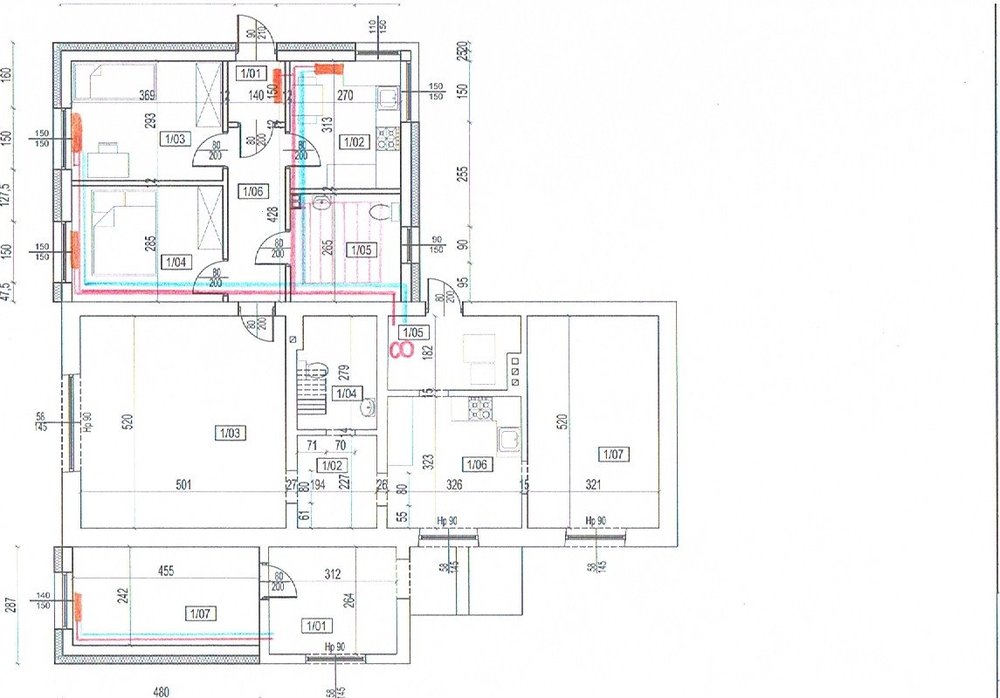
Witam , koledzy jeszcze w tym roku chciałbym rozbudować dom i wykonać "sam" w możliwym do zrealizowania zakresie instalacje C.O. nowej części domu. Prawdopodobnie będzie to instalacja na rurach typu PEX + standardowe grzejniki i ogrzewanie podłogowe w łazience. Mam kilka pomysłów na poprowadzenie rur które chciałbym Wam przedstawić i proszę żebyście odnieśli się do tematu.Na ilustracjach standardowo zasilanie jest oznaczone kolorem czerwonym a powrót kolorem niebieskim.

CO WERSJA 1.jpg

CO WERSJA 2.jpg

CO WERSJA 3.jpg

Zarchiwizowany

Ten temat przebywa obecnie w archiwum. Dodawanie nowych odpowiedzi zostało zablokowane.

  • Ostatnio przeglądający   0 użytkowników

    • Brak zarejestrowanych użytkowników przeglądających tę stronę.
×
×
  • Dodaj nową pozycję...

Powiadomienie o plikach cookie

Używając tej strony zgadzasz się na Polityka prywatności.