bohman Opublikowano 27 Lutego 2019 #1 Opublikowano 27 Lutego 2019 Witam. Chciałbym zapytać was o radę bo rozmawiałem już z czterema instalatorami i każdy mówi co innego. Do rzeczy: W całym domu ogrzewanie podłogowe ok 225m2 parter z poddaszem. Dom bardzo dobrze ocieplony, posadzki anhydrytowe. Projekt wykonywany był dla powierzchni 180m2 z którego wynika że przepływy będą na poziomie 1283 l/h łączna długość pexa to 1111m. 2 rozdzielacze po 7 obwodów. Do każdego rozdzielacza osobne zasilanie pexem 25x2,5. Brakujące 45m2 to pomieszczenie które pierwotnie miało być ogrzewane elektrycznie bo miało być rzadko użytkowane ale koniec końców będzie tam podłogówka. Nie mam na nie osobnego projektu ale z założenia będą tam z 3 pętle a temperatura ma być podtrzymywana na poziomie 15C. To pomieszczenie również jest ocieplone. Piec jaki chce zastosować to termet gold głównie ze względu na obsługę protokołu opentherm. Cały system sprzęgnięty będzie z systemem automatyki domowej domoticz a opentherm daje tu najwięcej możliwości. Na rozdzielaczach będą siłowniki sterowane przez system. Tak więc mamy ok 225m2, trzy rozdzielacze do podłogówki i przepływy zapewne na poziomie 1400 l/h. Tutaj pojawia się pytanie główne bo wszyscy instalatorzy z którymi rozmawiałem łącznie ze sprzedawcą w sklepie twierdzą że pompa wbudowana w piecu poradzi sobie z tą instalacją i nie trzeba montować sprzęgła wraz z grupą pompową. Chociaż ja osobiście mam wątpliwości po przeczytaniu kilku tematów z forum. Z drugiej zaś strony nie wiem czy dobrze czytam wykres ale ze strony producenta wynika ze pompa zamontowana w piecu przystosowana jest do przepływów na poziomie 1750L? Możecie wypowiedzieć się w tym temacie? zestaw pompowy + sprzęgło jest potrzebne? Czy w tym wypadku to zbędny wydatek? A może jakieś inne rozwiązanie?
zaworek Opublikowano 27 Lutego 2019 #2 Opublikowano 27 Lutego 2019 Pompa w kotle może dać radę.Jeżeli rzeczywiście globalny przepływ będzie 1400l/h a spadek ciśnienia w obiegu krytycznym przy tym przepływie nie będzie większy niż ok.45kPa
bohman Opublikowano 27 Lutego 2019 Autor #3 Opublikowano 27 Lutego 2019 Jest na to jakiś wzór obliczeniowy? Czy wyjdzie to dopiero podczas uruchomienia instalacji?
zaworek Opublikowano 27 Lutego 2019 #4 Opublikowano 27 Lutego 2019 Projekt ogrzewania podłogowego powinien zawierać parametry dotyczące pompy czyli przepływ i straty ciśnienia. Jak dysponujesz tymi danymi to patrzysz na wykres charakterystyki pompy zamontowanej w danym kotle.Przykład w załączniku.W praktyce zależy na ile wiarygodny jest projekt OZC i później poprawnie wykonany projekt OP
sambor Opublikowano 27 Lutego 2019 #5 Opublikowano 27 Lutego 2019 W projekcie Op powinien być taki lub bardzo podobny rysunek - czyli rozwinięcie inst, na nim masz podane co i jak z ciśnieniem dyspozycyjnym pompy, doborem rur i dane pętli bez tego nikt ci nawet na 75% nie odpowie czy ten kocioł sam pociągnie czy nie.
bohman Opublikowano 27 Lutego 2019 Autor #6 Opublikowano 27 Lutego 2019 w projekcie mam jeszcze jedynie takie dane jak: wydajnosc grzejnikow plaszczyznowych 9196W cisnienie dyspozycyjne 18,6 kpa Sam nie wiem czy patrzeć trochę z dystansem na to co podaje producent bo patrząc na wykresy jakie podaje konkurencja to wygląda jakby zostawali daleko w tyle za termetem który cenowo nie oszukujmy się jest jednym z tańszych pieców. Sprawdzałem dane techniczne pomp u konkurencji i u vailanta jest to ok 860 l/h, u junkersa ok 1000 l/h a u viessmana 1200 l/h? Chociaż termet podaje jasno ze korzysta z pomp Wilo Yonos PARA ST i ten wykres pokrywa się z tym co podaje sam producent pompy.
zaworek Opublikowano 27 Lutego 2019 #7 Opublikowano 27 Lutego 2019 Wszystko na to wskazuje że pompa w kotle da radę tej instalacji.Przy tej mocy podłogówki czyli 9,2kW i schłodzeniu czynnika grzewczego załóżmy 6K daje nam przepływ na poziomie ok.1320l/h tylko tobie dojdą jeszcze 3pętle,przepływ się trochę zwiększy powiedzmy przyjmując średnio 1.5l/min w każdej co da nam globalny przepływ w 17pętlach 1590l/h Cisnienie dyspozycyjne pompy=18,6kPa nie jest wysokie Jak któraś z tych pętli nie będzie masakrycznie długa to powinno być OK pod warunkiem że nie ma błędów w projektach.Tak kotły Termeta mają wyjątkowo mocną pompę.Wiele kotłów z wyższej półki może się schować pod tym względem.Niestety za to kotły Termeta "kuleją" jeżeli chodzi o sterowanie dwoma obiegami grzewczymi wysoko i niskotemp.(moduły SIM) Z uwagi na powyższe polecam Termeta do instalacji same grzejniki lub samo OP.
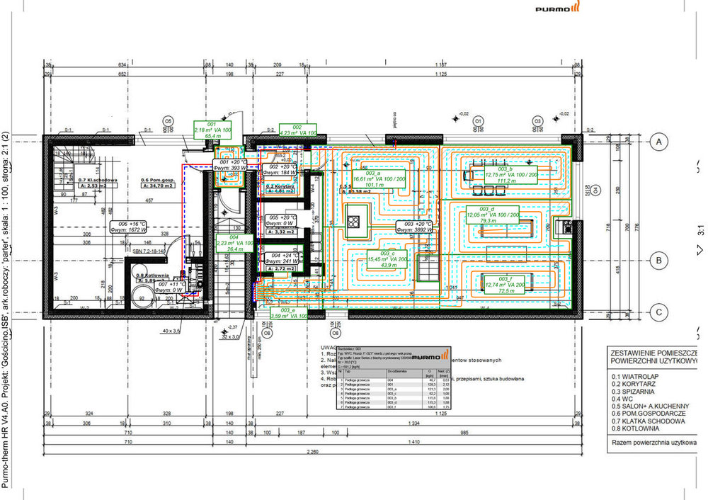
bohman Opublikowano 27 Lutego 2019 Autor #8 Opublikowano 27 Lutego 2019 dorzucam zdjęcia z projektu mam nadzieje że będzie tam coś widać. Dostałem tylko to plus zestawienia materiałów. Jakby faktycznie pompa w piecu dała radę było by to dla mnie niezłym odciążeniem finansowym który można wrzucić gdzieś indziej.
sambor Opublikowano 27 Lutego 2019 #9 Opublikowano 27 Lutego 2019 45 minut temu, bohman napisał: Chociaż termet podaje jasno ze korzysta z pomp Wilo Yonos PARA ST i ten wykres pokrywa się z tym co podaje sam producent pompy. I to właśnie jest pewien błąd albo wielbłąd gdyż dobierający musi się zastanawiać ile tego ciśnienia dyspozycyjnego pompy zostaje po przejściu przez sam kocioł a w nim są cienkie rurki i inne elementy powodujące opory hydrauliczne - czyli ciśnienie dyspozycyjne na wyjściu kotła powinno być o jakieś 15-20% mniejsze. Ale te ok 1500l powinno wydać przy ciśnieniu dyspozycyjnym ok 30kPa- tu warto przeliczyć rury zasilające , gdyż to one mogą być wąskim gardłem tej instalacji.
zaworek Opublikowano 27 Lutego 2019 #10 Opublikowano 27 Lutego 2019 Wg mnie zbyt optymistyczny współczynnik oporu cieplnego dla paneli 0.06 m2xK/W Nie będziesz w stanie osiągnąć tak niskiej wartości,do tego dojdzie jeszcze podkład pod panele.Najcieńsze panele 8mm mają opór rzędu 0,066 m2xK/W jeżeli nawet zastosujesz najlepszy podkład(pod wzgl.oporu) za ok.20zł/m2 czyli np Arbiton Multiprotec 1000 (opór=0,006m2xK/W) to sumarycznie jesteś w stanie osiągnąć 0,072m2xK/W Nie robiłbym stref brzegowych,to relikt przeszłości gdy budynki nie były tak dobrze ocieplone,dzisiejsza stolarka ma niski współczynnik przenikania ciepła.Lepiej zrobić na całości taki sam rozstaw rur aby uzyskać równomierny rozkład temp.podłogi.W projekcie jest jastrych cementowy a w rzeczywistości anhydryt
sambor Opublikowano 27 Lutego 2019 #11 Opublikowano 27 Lutego 2019 Ja przyjmuję dla paneli opory sumarycznie 0,105- 0,11 m2xK/W, ostatnio liczyłem dla desek 22mm- masakra , ma dodatek gościu się pyta czy kleić klejem , czy na lepik może położyć te deski bo taniej.
bohman Opublikowano 27 Lutego 2019 Autor #12 Opublikowano 27 Lutego 2019 5 minut temu, sambor napisał: Ale te ok 1500l powinno wydać przy ciśnieniu dyspozycyjnym ok 30kPa- tu warto przeliczyć rury zasilające , gdyż to one mogą być wąskim gardłem tej instalacji. mówimy o tych zasilających rozdzielacze? Myślałem jeszcze o tym by zastosować system trójnikowy i wyjsc 32-ką a potem zejśc na te 25 ale nie wiem czy będzie jakaś różnica. W przyszłym tygodniu wchodzi hydraulik i muszę podjąć jakąś sensowną decyzję. Jeżeli miałbym zastosować np 32 i jeśli okaże się że jest przewymiarowana ale nie wpływa to negatywnie na działanie instalacji to mogę taka zastosować by spać spokojnie. 15 minut temu, zaworek napisał: Wg mnie zbyt optymistyczny współczynnik oporu cieplnego dla paneli 0.06 m2xK/W Nie będziesz w stanie osiągnąć tak niskiej wartości,do tego dojdzie jeszcze podkład pod panele.Najcieńsze panele 8mm mają opór rzędu 0,066 m2xK/W jeżeli zastosujesz podkład za ok.20zł/m2 czyli np Arbiton Multiprotec 1000 (opór=0,006m2xK/W to sumarycznie jesteś w stanie osiągnąć 0,072m2xK/W Nie robiłbym stref brzegowych,to relikt przeszłości gdy budynki nie były tak dobrze ocieplone nie znam się na tym ale tak sobie myślę że projekt w sumie uwzględniał posadzkę betonową ale koniec końców będzie anchydryt który podobno ma lepszy współczynnik przewodzenia ciepła więc zapewne jeśli jest to błąd to powinien się teraz pokryć z tym wszystkim. Co do stref brzegowych to gdzieś tam kiedyś słyszałem ze pod oknami i przy ścianach zewnętrznych powinno się zagęszczać ale żeby od tego odchodzić to nie...? ale w sumie ma to sens przy tak grubych ociepleniach i szczelnych oknach....
zaworek Opublikowano 28 Lutego 2019 #13 Opublikowano 28 Lutego 2019 11 godzin temu, sambor napisał: I to właśnie jest pewien błąd albo wielbłąd gdyż dobierający musi się zastanawiać ile tego ciśnienia dyspozycyjnego pompy zostaje po przejściu przez sam kocioł a w nim są cienkie rurki i inne elementy powodujące opory hydrauliczne - czyli ciśnienie dyspozycyjne na wyjściu kotła powinno być o jakieś 15-20% mniejsze. Ale te ok 1500l powinno wydać przy ciśnieniu dyspozycyjnym ok 30kPa- tu warto przeliczyć rury zasilające , gdyż to one mogą być wąskim gardłem tej instalacji. I to właśnie jest dla mnie problem.W "moim" programie należy podać taki parametr jak opór hydrauliczny źródła ciepła w Kv lub Dzeta bo inaczej nie dopuści do obliczeń.W danych technicznych żadnego z producentów kotów nie jest podany ten parametr(przynajmniej dla kotłów wiszących mniejszej mocy) Konsultowałem się z działem technicznym paru producentów kotłów i nikt nie potrafił odpowiedzieć na moje pytanie(Sprawa utknęła w martwym punkcie.
sambor Opublikowano 28 Lutego 2019 #14 Opublikowano 28 Lutego 2019 Kiedyś pisałem z twoim poprzednim wcieleniem vel @odpowietrznik primo voto @PEX na ten temat i nawet podawałem w jednym z ostów wykres oporów typowego kotła kondensacyjnego do 30kW. Podam ci ten wykres jeszcze raz, ale powiedz co dał ci ten rebranding nicka? Obecnie tego parametru się osobno nie podaje, gdyż nie jest on wymagany. W poprzedniej generacji kotów kondensacyjnych była "moda" na dobieranie pomp w kotle do instalacji, obecnie daje się dużo większą pompę niż potrzeba w większości instalacji , sterowaną płynnie przez elektronikę kotła , często pompa kotła ma blokadę górnej części wydajności.
Rekomendowane odpowiedzi
Zarchiwizowany
Ten temat przebywa obecnie w archiwum. Dodawanie nowych odpowiedzi zostało zablokowane.