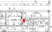
patrykoss8857 Opublikowano 24 Czerwca 2017 #1 Opublikowano 24 Czerwca 2017 Witam ponownie, mam nieduży domek 92m2. Jestem 3 dni po tynkach i chciałbym już rozplanować CWU i ZWU. Chciałbym poznać wasze zdanie, jak byście to rozwiązali? Dodam że nie mam jeszcze zrobionej wylewki końcowej, więc wszystkie instalacje będę "chował" w warstwie ocieplenia podłogi.Miałem kilka pomysłów, ale jestem w kropce. Z góry dziękuję za pomoc i poświęcony czas. ps. do tak małego domku, ja + żona + w bardzo bliskiej przyszłości bobo, jaki wybrać piec gazowy? jednofunkcyjny z zasobnikiem czy dwufunkcyjny? Kilka danych:Grubość warstwy ocieplenia: 20cm Piec: napewno gazowy Powierzchnia domu: 92m2Lokalizacja pieca: duży czerwony prostokątLokalizacja zbiornika z ciepłą wodą(przy wyborze jednofinkcyjnego pieca): nad piecem, na poddaszu ocieplonym - dom parterowy Rodzaj ogrzewania: 50/50 podłogówka/grzejniki
krisk Opublikowano 28 Czerwca 2017 #2 Opublikowano 28 Czerwca 2017 polecam kocioł Jednofunkcyjny z zasobnikiem, /Dwufunkcyjny to wyzwanie /jak nie ma miejsca/ Zasilanie zbiornika wepnij przed zawór 3D i będzie wszystko idealnie / oczywiście pompa na obieg CWU i pompa na CO Kup kocioł bez pompy lub z możliwością jej rozłączenia .... Kocioł ustawiasz z priorytetem CWU i masz spokój.... Pozdrawiam
patrykoss8857 Opublikowano 1 Lipca 2017 Autor #3 Opublikowano 1 Lipca 2017 dziękuję za odpowiedź, nie wiem czemu nie wstawiły się moje grafiki. załączam jeszcze raz. duży czerwony prostokąt to zbiornik CWU. zastanawiam się czy przy takich małych odległościach będzie potrzebna pompa obiegowa. i drugie pytanie to czy warto zamontować rozdzielacz do cwu np pod oknem łazienkowym oznaczonym symbolem "02" i wtedy pexem w podłodze do wszystkich urządzeń rozprowadzić wodę(wtedy bez łączeń w podłodze). Czy masz jakiś inny pomysł jak to zrobić z głową? np tradycyjnie zgrzewać rury stabi w podłodze:) pozdrawiam i spokojnego weekendu życzę
Maciek92 Opublikowano 1 Lipca 2017 #4 Opublikowano 1 Lipca 2017 Obejdzie się bez cyrkulacji. Z moich doświadczeń - najszybciej i najwygodniej jest ciągnąć instalację w systemie trójnikowym. Oczywiście łączenia prasowane zaciskarką (najlepiej elektryczną, bo imho ręczna nie daje takiej pewności). Jeśli będziesz używał rury i kształtek tego samego producenta to każda poważna firma da Ci gwarancję na szczelność takiej instalacji (oczywiście przy zachowaniu reżimu wykonawczego). Oczywiście podejście do wanny i prysznica pex 20, jeśli w kuchni planujesz zasilać zmywarkę z tego samego podejścia co baterię w zlewie (używając zaworu typu kombi) to również zrobiłbym podejście zwu pex 20.
patrykoss8857 Opublikowano 3 Lipca 2017 Autor #5 Opublikowano 3 Lipca 2017 system trójnikowy, najkrótszą możliwą drogą - przebijając się przez ścianę. Ale czy poprzez zgrzewanie rur typu boryszew instalacja będzie wykonana prawidłowo jak w przypadku pex? pytam bo boję się cen tych trójników do pexa, poza tym nie wiem czy w moim mieście wypożyczają zaciskarkę, a zgrzewarkę mam i umiem prawidłowo zgrzać, aby nie zrobić niepotrzebnych gardzieli, lub całkowicie nie zatkać rury.w tej instalacji używałbym rur 16 i 20. czy według schematu nie będzie zbyt odczuwalnych spadków ciśnienia np kiedy będę brał prysznic a żona będzie zmywać?pozdrawiam
sambor Opublikowano 3 Lipca 2017 #6 Opublikowano 3 Lipca 2017 Będą spadki ciśnienia. Weź pod uwagę zwężenia na złączkach. PEX16 to tylko do małej umywali lub do kibla.
patrykoss8857 Opublikowano 4 Lipca 2017 Autor #7 Opublikowano 4 Lipca 2017 to co proponujesz? główna rura pp 32 i od tego na trójnikach zgrzewane pp 25/20 do prysznica, wanny, umywalki, bidetu. Zimna woda podobnie, zgrzewana 32 jako główna, na trójnikach 25/20 prysznic, wanna, umywalka, bidet, pralka, kibelek
sambor Opublikowano 4 Lipca 2017 #8 Opublikowano 4 Lipca 2017 Jak zgrzewane PP to tylko tak, jak podałeś. Przy mniejszych to i prysznic i wanna mogą słabiej działać.
Bolczaczko Opublikowano 5 Lipca 2017 #9 Opublikowano 5 Lipca 2017 Pare miesiecy temu robiłem na 32 stabiglass, i odgałęzienia 25/20. A parę lat temu na 20 całość, ale tak jakby z rozdzielacza skręconego z 1 1/4 trójników, działało bez spadków ale mało odbiorów było.
Rekomendowane odpowiedzi
Zarchiwizowany
Ten temat przebywa obecnie w archiwum. Dodawanie nowych odpowiedzi zostało zablokowane.