Skocz do zawartości
IGNOROWANY

Pw Ciepła - Pytanie O Pompę Co Przed Belką Rozdzielacza


firmaremont

Rekomendowane odpowiedzi

Opublikowano

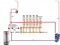
Witam.

Mam pewien dylemat, czy wg. przedstawionego rysunku, potrzebna jest pompa między

płytowym wymiennikiem ciepła (60KW), a belką rozdzielającą na poszczególne obiegi instalacji,

czy też pompa danej sekcji wystarczy. Gdyby wstawić pompę przed belką rozdzielającą, to musiałbym 

zrobić obieg między belkami, natomiast sama pompa wpychałaby wodę do instalacji, czego bym nie chciał.

 

Pozdrawiam.post-8331-0-50013600-1390939033_thumb.jpg

Opublikowano

Przy tak rozbudowanej instalacji trzeba dać pompę za wymiennikiem następnie sprzęgło hydrauliczne z którego zasilisz te odbiory z pompami i mieszaczami.

W innym przypadku będzie problem z wyregulowaniem przepływów przez wymiennik i stabilizacja temperatury w układzie grzewczym.

Opublikowano

Czyli tak jak się obawiałem, bez drugiej pompy CO np. MAGNA 25-60 się nie obejdzie + sprzęgło.

Mniej więcej tak jak przerysowałem powinno być dobrze. W wersji pierwotnej nie było belki rozdzielającej, jako sprzęgło

był bufor 500l. i system CO rozprowadzony był "trójnikowo" (wg. projektu ). Ale taki system z 

rozdzielacza będzie bardziej sterowny. Nie wszystkie pomieszczenia będą ogrzewane jednocześnie.

post-8331-0-22903200-1391018357_thumb.jpg

 

 

Opublikowano

Zastanawiam się jeszcze na pewną zmianą, a mianowicie mam możliwość zamontowania

2 naczyń wyrównawczych od kotła i od kominka na jednym poziomie, i tak naczynie od kotła 80l, nad kotłem w zasadzie w pionie.

Naczynie nad kominkiem samonapełniające. Czy to ma sens, mi się wydaje że tak będzie lepiej. Oczywiście można zamontować

zawór do automatycznego napełniający instalacje przy kotle (stałociśnieniowy)(http://www.afriso.pl/fam-p-578.html?page=1&cPath=1_532_543

jednak ja akurat preferuję uzupełniać ubytki wody w instalacji od góry.

 

post-8331-0-59481900-1391160770_thumb.jpg

Zarchiwizowany

Ten temat przebywa obecnie w archiwum. Dodawanie nowych odpowiedzi zostało zablokowane.

  • Ostatnio przeglądający   0 użytkowników

    • Brak zarejestrowanych użytkowników przeglądających tę stronę.
×
×
  • Dodaj nową pozycję...

Powiadomienie o plikach cookie

Używając tej strony zgadzasz się na Polityka prywatności.