Bufor z grzałkami pod fotovoltaikę. Konkurs .
Witam serdecznie , chciałbym Wam przedstawić nasz nowy projekt, który będziemy wprowadzać do naszej stałej oferty od Nowego roku. Na hasło ,, info-ogrzewanie" będzie udzielany specjalny rabat . Co sądzicie o takim rozwiązaniu ? Zapraszam do dyskusji.
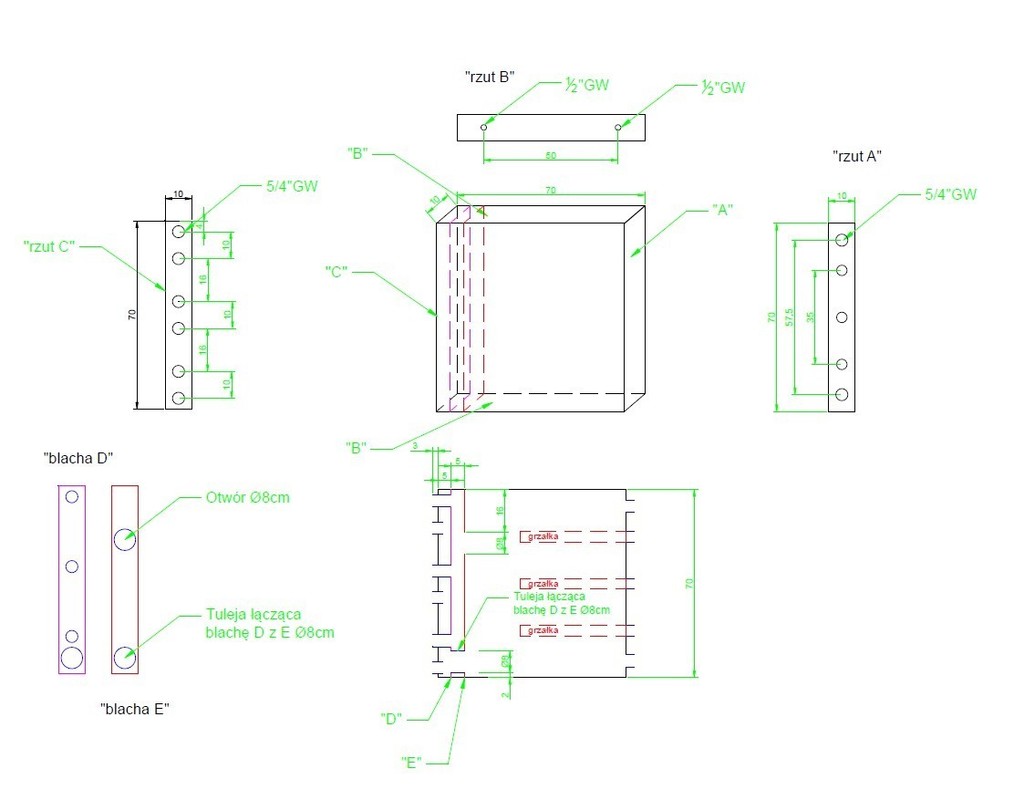
Jak dobrze wiecie czasami w instalacjach jest potrzeba zastosowania sprzęgła hydraulicznego, lub zbiornika tak zwanego bufora, który poprawi pracę naszego kotła gazowego, oraz całej instalacji. Ogólnie rozwiązanie jest znane, ale chcemy zrobić takiego gotowca, w którym można dodatkowo wykorzystać nadwyżkę z fotowoltaiki, lub jak ktoś lubi grzać wieczorem, to korzystać z taryfy nocnej . Chciałbym Wam pokazać jak to fajnie działa , jaki jest przepływ przez taki bufor i inne rzeczy ,które chcielibyście się dowiedzieć. Bufor ma pojemność 50 litrów i 3 grzałki na razie celowo nie podam jaka jest łączna moc grzałek bo chciałbym przy tej okazji przeprowadzić mały konkursik, w którym można wygrać rozdzielacz do ogrzewania podłogowego z rotametrami, naszej produkcji, rozdzielacz RPR od 2 do 10 obwodów w zależności od zwycięzcy jaki sobie zażyczy. Konkurs będzie trwał do 5 lutego i należy wskazać łączną moc w ,,watach'' jaką posiadają grzałki zamontowane obecnie w tym buforze, każdy może oddać swój głos tylko raz. Kto naszkicuje pierwszy prosty schemat instalacji dla wykorzystania takiego rozwiązania może oddać 3 głosy.( Schemat nie musi posiadać zaworów i filtrów.) Zwycięzcą będzie ta osoba, która trafi, lub będzie najbliżej prawdy, liczy się kto zgadnie to pierwszy. ,,Aby nikt nie odebrał to jako formę hazardu to za rozdzielacz będzie trzeba zapłacić 1zł" . Podczas wpisów na temat tego rozwiązania będę starał się coś podpowiedzieć i może komuś to pomoże, aby rozwiązać zagadkę, dlatego zachęcam do śledzenia mojego bloga. Konkurs będzie ogłoszony na ogólnym forum w zakładce instalacje i tam należy podawać Wasze odpowiedzi. A tutaj możemy sobie porozmawiać o tym rozwiązaniu. Zapraszam Was do naszej stacji prób i testów .

 
	



14 komentarzy
Rekomendowane komentarze