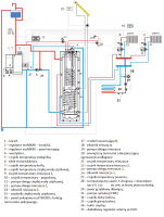
daxm Opublikowano 3 Lutego 2016 #1 Opublikowano 3 Lutego 2016 Witam kolegów ekspertów, Zwracam się z prośbą o ocenę instalacji C.O. z wykorzystaniem zbiornika kombinowanego. Pytania jakie mnie dręczą to: 1. Możliwość zastosowania naczynia wzbiorczego z pływakiem. 2. wg producenta średnica obiegu kotła to w przypadku zastosowania miedzi to min. 35 a rury stalowej 5/4. Co lepsze ? oraz czy zawór 4D musi być wówczas tej samej średnicy. 3. W przypadku pompy obiegowej - zamontować ją na zasilaniu czy powrocie, ponieważ wymyśliłem sobie że wężownica wewnątrz naczynia na CWU będzie pełniła funkcję priorytetu grzania CWU ale zastanawiam się czy jej działanie nie będzie się gryzło z pompą obiegową. Z góry dziękuję za porady.
sambor Opublikowano 3 Lutego 2016 #2 Opublikowano 3 Lutego 2016 Ten schemat jest zły, do grzania bufora zaw 4-D jest nie właściwy. Potrzeba zaw 3-D na powrocie np VTC511 55C i pompy na powrocie. Naczynie przelewowe zwykłe , bez pływaka.
daxm Opublikowano 3 Lutego 2016 Autor #3 Opublikowano 3 Lutego 2016 Teraz OK ? A co do pływaka, jest to rozwiązanie złe czy zbędne ?
sambor Opublikowano 3 Lutego 2016 #4 Opublikowano 3 Lutego 2016 Coś w tym rodzaju, tylko powrót z tej drugiej wężownicy trzeba wpiąć za pompą powrotu , przed samym kotłem. Inaczej będą dwie pompy w szeregu pracować a to złe rozwiązanie . Zbiornika z pływaniem nie wolno stosować przy kotłach, to rozwiązanie dla kominka, z resztą typowe naczynie z pływakiem to ok 10 -15l, a do takiego układu trzeba większe.
daxm Opublikowano 3 Lutego 2016 Autor #5 Opublikowano 3 Lutego 2016 Więc po zastosowaniu standardowego naczynia zasilanie z sieci podpinam na powrocie z kotła ponieważ zakładam że mieszacz na powrocie z bufora będzie zamknięty i otworzy się dopiero przy 55' ?
sambor Opublikowano 3 Lutego 2016 #6 Opublikowano 3 Lutego 2016 Zasilanie( napełnianie) podpinasz na samym dole układu aby powietrze miało ujście przez przez naczynie dodatkowo na zasilaniu zaw zwrotny lub antyskażeniowy, dodatkowo zwykły zawór odcinający,
daxm Opublikowano 3 Lutego 2016 Autor #7 Opublikowano 3 Lutego 2016 Jeżeli chodzi o zawór zwrotny i odcinający to Ok, antyskażeniowy mam już za licznikiem. Dziękuje zatem za uwagi, mam nadzieję że reszta będzie OK. A pisząc o pompach na powrocie miałeś na myśli wszystkie, czy tylko obiegową na piecu?
sambor Opublikowano 3 Lutego 2016 #8 Opublikowano 3 Lutego 2016 Pisząc o pompach to miałem tą sytuację z postu 3 gdzie miałeś pompę na powrocie kotła i jednocześnie podłączyłeś do niej małą wężownicę zasilaną przez drugą pompę - wtedy obie te pompy pracowały w szeregu, tak się nie robi
daxm Opublikowano 4 Lutego 2016 Autor #9 Opublikowano 4 Lutego 2016 Czy jeżeli obieg do bufora jest na rurze 5/4 to mogę wpiąć pompę 25-40 czy lepiej 32-40
sambor Opublikowano 4 Lutego 2016 #10 Opublikowano 4 Lutego 2016 Lepiej większa pompa, ale wtedy zaw 3-D też powinie być tego rozmiaru Ale 1" wystarcza zarówno dla rur jak i dla pompy
Rekomendowane odpowiedzi
Zarchiwizowany
Ten temat przebywa obecnie w archiwum. Dodawanie nowych odpowiedzi zostało zablokowane.