bubes Opublikowano 24 Kwietnia 2013 #1 Opublikowano 24 Kwietnia 2013 Dzień dobry. :) To moj pierwszy post. Jestem samoukiem=samorobem. Przeprowadzam właśnie kapitalny remont byłego sklepu- przerabiam go na swoje mieszkanie właściwie zostało samo CO I CWU. Narysowałem jak wyglądają pomieszczenia i gdzie znajdują się grzejniki oraz punkty wody. Piwnica, która ma taka sama powierzchnie taką samą co góra będzie kiedyś zaadoptowana, narazie nic tam nie ma. Łazienka i kuchnia jest zrobiona tzn z każdego punktu poschodziłem do piwnicy rurkami PP fi 20. Wybrałem system zgrzewany gdyż jest tani i szybki w montażu, ze zgrzewaniem jak i lutowaniem nie ma problemu z mojej strony. cala instalacja będzie w piwnicy tzn CO I CWU a kotłownia centralnie pod łazienka. tam gdzie jest napisane fi 15,18 tam jest już pociągnięta instalacja,tam gdzie nie ma to tak jak planuje ją pociągnąć. Nie bardzo wiem jak dobrać odpowiednie średnice rur do CO I CWU a na hydraulika mnie nie stać. Jeśli chodzi o ogrzewanie to mam w planach gazówkę i piec na paliwo stale plus jakiś zasobnik 200-250l (być może z automatyką sterującą). budynek nie ocieplony-jeszcze w tym roku to zrobię. Bardzo bym prosił forumowiczów o poradę odnośnie doboru średnicy rur do wody oraz centralnego. Pozdrawiam
bubes Opublikowano 25 Kwietnia 2013 Autor #2 Opublikowano 25 Kwietnia 2013 Widzę super pomoc ze strony forumowiczów ;)
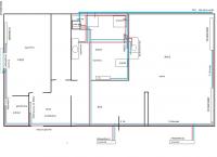
Gość mak Opublikowano 25 Kwietnia 2013 #3 Opublikowano 25 Kwietnia 2013 Oddziel CO od cwu! I napisz coś więcej o kotłach i jak chcesz rozwiazać podgrzew cwu z gazówki! Schemat który zamieściłeś jest niestety nieczytelny.
bubes Opublikowano 25 Kwietnia 2013 Autor #4 Opublikowano 25 Kwietnia 2013 CO I CWU nie jest połączone. Co do podgrzania CWU z gazówki to myślałem chyba o kotle dwufunkcyjnym ? Nie bardzo znam sie na tym i nie wiem co wybrać,dobrać. Co do zasilenia wody to główną nitkę chcę puścić rurą fi 32 PP póżniej rozgałęzienia na 25 i 20 ,będzie okej? Jaką średnicą zasilić CO chodzi mi o to aby wyjść z kotłowni i jechać sobie już dalej, zależy mi aby pociągnąć instalację do grzejników,kotłownię chcę zrobić póżniej.
majschi Opublikowano 25 Kwietnia 2013 #5 Opublikowano 25 Kwietnia 2013 rozumiem ze CO chcesz zrobiz z miedzi wiec z kotla wychodzisz 22 po drodze zasilasz grzejnik w lazience ( trojnik 22/15) dalej 22 do trojnika (22/ 18) ktory zasili z prawej strony stara instalacje a w lewo idziesz 18 do trzech grzejnikow a ostatni dajesz 15 mam nadzieje ze nie powiesisz kotla gazowego nad wanna
bubes Opublikowano 26 Kwietnia 2013 Autor #6 Opublikowano 26 Kwietnia 2013 majschi dzieki za odpowiedź. Tak jasne CO w miedzi całość.Właśnie nie byłem pewien czy 22 bedzie w stanie mi zasilić tak naprawdę 9 grzejników?Na chwile obecną planuję podłączyć 5 czyli samą górę.Kotłownia pod łazienką piętro nizej. A jak jest z przepisami na umieszczenie pieca gazowego i na paliwo stałe w jednym pomieszczeniu ?
majschi Opublikowano 26 Kwietnia 2013 #7 Opublikowano 26 Kwietnia 2013 z kotla gazowego na CO wychodzi gwint 3/4 wiec dawanie wiekszej srednicy niz 22 mija sie z celem przepisy zezwalaja na montaz kotla gazowego i weglowego w jednej kotlowni
Rekomendowane odpowiedzi
Zarchiwizowany
Ten temat przebywa obecnie w archiwum. Dodawanie nowych odpowiedzi zostało zablokowane.