IGNOROWANY
		
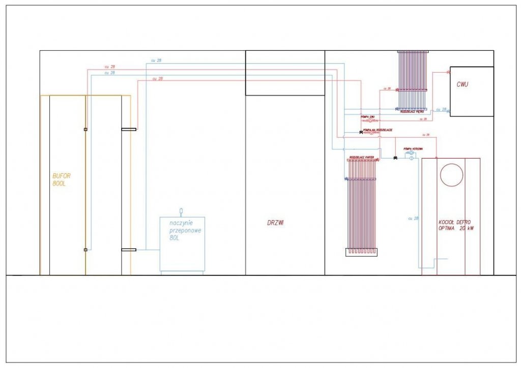
			Ocena poprawności schematu instalacji pod bufor 800L + kocioł 20kW
- Odpowiedz w tym temacie
- Ignoruj ten temat
- Czy wyłączyć ignorowanie tego tematu?
- Dodaj nowy temat
- 
Ostatnio przeglądający 0 użytkowników- Brak zarejestrowanych użytkowników przeglądających tę stronę.
 
- 
Podobna zawartość- 
					
					- 7 odpowiedzi
- 519 wyświetleń
 
- 
					
					- 132 odpowiedzi
- 5505 wyświetleń
 
- 
					
					- 11 odpowiedzi
- 1082 wyświetleń
 
- 
					Instalacja z kotłem na pellet i buforem Kocioł Na Pellet + Bufor - Wady I Zalety 1 2 3 4 34Przez Gość berthold61, - 826 odpowiedzi
- 181871 wyświetleń
 
- 
					
					- 1 odpowiedź
- 611 wyświetleń
 
 
- 
					
					

 
	 
	
Rekomendowane odpowiedzi
Dołącz do dyskusji
Możesz dodać zawartość już teraz a zarejestrować się później. Jeśli posiadasz już konto, zaloguj się aby dodać zawartość za jego pomocą.
Uwaga: Twój wpis zanim będzie widoczny, będzie wymagał zatwierdzenia moderatora.