Skocz do zawartości
IGNOROWANY

Problem Z Instalacją


danley

Rekomendowane odpowiedzi

Opublikowano
 Witam wszystkich forumowiczów i proszę jednocześnie o wskazówki

Zacznę od pieca-zamontowano u mnie piec żębiec swk 14 kw,który w założeniu projektanta instalacji ma ogrzać powierzchnie 120 m2mieszkania,34 m2 gabinetu,4m2 podłogówki w łazience oraz ciepłą wodę.

Jednak tak nie jest.

Ogólnie to paliłem węglem ,drzewem i nie jest najcieplej.

W domu jest do wytrzymania jednak w gabinecie tylko 1 grzejnik działa poprawnie,dwa następne nie grzeją wcale.

Firma która to robiła,była owszem jednak skończyło się na tym że oni nie wiedzą.

Był inny hydraulik powiedział aby odpowietrzyć co znów nic nie zmieniło.

Ostatnio znajomy zaproponował mi,żeby pompkę założyć nie na powrocie jak dotychczas lecz na wyjściu.

Dla porównania zrobiłem zdjęcia pieca i znalazłem w google propozycje znajomego.

I tu pytanie? czy to wogóle coś da?

Pozatym te grzejniki w gabinecie może są zamulone i należałoby je zciągnąć i przepłukać.

może być tak że instalacja jest zle zaprojektowana i wykonana?

Prosze o wskazówki 

pozdrawiam 

Daniel

 

tak wygląda  podłączenie pompy na powrocie

post-56876-0-93206800-1387379938_thumb.jpg

a tak chce zrobić znajomy

post-56876-0-85655000-1387379980_thumb.jpg

Opublikowano

Pompę zostaw masz dobrze. Na drugim zdjęci jest właśnie źle.

Czy grzejniki posiadają zawory termostatyczne ze wstępną nastawą ?

Jeżeli tak to należy zdławić te, które grzeją bo woda jest "leniwa" i płynie tam gdzie ma "lżej" ;) (czyli tam gdzie są mniejsze opory hydrauliczne).

Opublikowano

mam te zawory na każdym grzejniku...zdławić to znaczy zakręcić?

Opublikowano

Witam.

Podaj więcej danych.Z tego co piszesz wywnioskowałem że to nowa instalacja.

Aczkolwiek patrząc na zdjęcie można mieć wątpliwości.

Ja uważam że jeśli byłaby zrobiona prawidłowo to powinna grzać bez żadnych problemów i kryzowań czy ograniczeń przepływów.

Napisz gdzie masz wpięte naczynie wyrównawcze oraz na jakim poziomie jest kotłownia.

Ja u siebie zrobiłem instalację z 240 grzejników aluminiowych plus ogrzewacz,na jednej pompie i wszystko działa równomiernie,a nie jestem hydraulikiem.

Generalnie staraj się opisać wszystko dokłedniej,ewentualnie więcej zdjęć.

Tak na mój gust to w pierwszej kolejności nie podobają mi się przekroje rur przy kotle.

Opublikowano

Na moje oko to w obrębie kotła są rury Cu 28, więc wystarczy na przekazanie tych 14 kW z kotła.

Opublikowano

post-56876-0-48136300-1387401644_thumb.jpgpost-56876-0-65496400-1387401658_thumb.jpgpost-56876-0-38517300-1387401665_thumb.jpgZrobiłem zdjęcia zaworów 

Opublikowano

A więc tak...w tamtym roku postanowiliśmy kupić piec i dodać go gdyż ogrzewaliśmy wszystko gazem...piec na gaz też mam i mogę go włączyć jednak ze względu na koszt zainwestowaliśmy w piec.

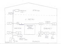
Piec mam w piwnicy natomiast naczynie wyrównawcze na strychu czyli 

1.piwnica

2.parter

3.piętro

4.strych

czyli naczynie jest oddalone około 8 metrów od pieca najwyżej...

mam w planie jutro rozrysować całą instalację porobić zdjęcia,wstawić na forum i zacząć działać

pozdrawiam

Opublikowano

Witam ponownie 

Zrobiłem rysunek z uwzględnieniem grzejników które nie grzeją,zaznaczając jednocześnie że one w tamtym roku grzały troche .

post-56876-0-13400800-1387445189_thumb.jpg

Opublikowano

Kryzowanie się kłania. Albo podpiąć gabinet z piwnicy.

Opublikowano

Witam.

Nie znam rozkładu pomieszczeń ale jabym zrobił drugi pion na grzejniki nr.3,4,5,6,7,8.

Ewentualnie tak jak kolega wcześniej pisał kryzowanie.

Tylko nie wiem jak u Ciebie ze średnicami rur.

Opublikowano

Aż się prosi by wykonać drugi pion i przejść piwnicą na prawą stronę.

Opublikowano

Witam wszystkich

Pompę zmieniłem na większą zrobiłem ją na wylocie,zciągnąłem grzejnik i wypłukałem i po sprawie...grzejniki jeszcze nigdy nie były takie gorące

pozdrawiam

Zarchiwizowany

Ten temat przebywa obecnie w archiwum. Dodawanie nowych odpowiedzi zostało zablokowane.

  • Ostatnio przeglądający   0 użytkowników

    • Brak zarejestrowanych użytkowników przeglądających tę stronę.
×
×
  • Dodaj nową pozycję...

Powiadomienie o plikach cookie

Używając tej strony zgadzasz się na Polityka prywatności.