Skocz do zawartości
IGNOROWANY

Proszę O Ocenę "projektu" Instalacji


szurek

Rekomendowane odpowiedzi

Opublikowano

Witam.

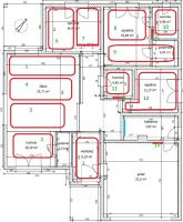
Załączam "projekty" (może bardziej schematy) instalacji CWU i ogrzewania podłogowego, bardzo proszę o wskazanie ewentualnych błędów.

1. tylko piec gazowy kondensacyjny z zamknięta komorą spalania

2. zasobnik ok 150l

3. ogrzewanie podłogowe w całym domu + sterowanie elektroniczne (siłowniki + rotametry) 

4. na podłogach płytki w całym domu

5. Ściany solbet 24cm + styropian 15cm grafit.

6. instalacja na rurach TECE Flex

 

 

CWU:

- średnice rur (stopniowanie przekrojów)- aby nie nie było spadków ciśnienia po odkręceniu wody w innym punkcie domu,

- cyrkulacja

- pralka i zmywarka podłączone do CWU

 

CO:

- ilość obwodów

- podłączenie grzejników w łazience i garażu do niskiego parametru (temperatura podłogówki) gdy razem z grzejnikami wychodzi 15 obwodów (12+3), podłączyć je przed rozdzielaczem na jakimś trójniku czy zastosować rozdzielacz na 15 obwodów?

 

post-72904-0-81154600-1496741177_thumb.jpg

post-72904-0-14194800-1496741187_thumb.jpg

Opublikowano

Żadnego schematu nie zamieściłeś nad którym można by dyskutować to po pierwsze. Po drugie to nic nie wiadomo o kotle a szczególnie o jego pompie aby można było powiedzieć czy ta instalacja zadziała. Do takiej instalacji podstawą jest PROJEKT z doborem urządzeń. Rotametry to na pewno nie jest część elektronicznego sterowania.

Radzę nie bawić się w projektanta tylko zleć jego wykonanie fachowcowi

Zarchiwizowany

Ten temat przebywa obecnie w archiwum. Dodawanie nowych odpowiedzi zostało zablokowane.

  • Ostatnio przeglądający   0 użytkowników

    • Brak zarejestrowanych użytkowników przeglądających tę stronę.
×
×
  • Dodaj nową pozycję...

Powiadomienie o plikach cookie

Używając tej strony zgadzasz się na Polityka prywatności.