Skocz do zawartości
IGNOROWANY

Modernizacja Instalacji C.o I C.w.u


tidia

Rekomendowane odpowiedzi

Opublikowano

Cześć.

Panowie musze zmodernizowac instalacje c.o i c.w.u, Mam kilka planów ale i problemów. Mianowicie nie wiem jak zrobic  instalacje aby jej nie skomplikowac.Tzn w instalacji ma pracowac piec na paliwo stale 18 kw i kominek  oraz 2 pompy i  2 razy zasobnik cwu, Dlatego tak bo budynek jest duzy i odleglosci znaczne.A i sa tez niezle wymagania do pracy instalacji.

 

Teraz instalacja jest a chce ja przerobic,sterowanienia to koszmar.

 

Pominmy tu dane typu,jaki budynek z czego,okna, ocieplenie itp.

 

Budynek to 2 osobne mieszkania w jednym Piec na paliwo stale i ma grzac oba mieszkania a w drugim kominek z plaszczem 15-19 kw,jako rezerwa na chlodne dni i tylko na te mieszkanie, ale ma byc jedna instalacja.

 

Pytanie jak to wykonac. Mam problem ze sterowaniem,zaworami ,pompami. Chce aby piec zasilal cala instalacje a kominek tylko czesc gdy gasnie lub nie pali sie piec, mysle o np. zaworach trójdrożnych lub zaworach zwrotnych.

 

Musze na kartce narysowac plan i wrzuce tu..

 

1.Jak rozdzielac gdzie ma isc ciepla woda z kominka na co, czy na cwu czy c.o - zaworami ,zaworami trójdrogowymi czy tylko pompy wystarcza ?

 

Sterownik to kominkowy pid 392 z priorytetem pomp ale nie wiem czy to zadziala?musze miec 2 pompy w 2 mieszkaniu 1 c.o - kominek , i  jedna na cwu lub sterowanie zaworami ,oraz przed mieszkaniem jedna pompa bo odleglosc od pieca jest duza.To juz przetestowane.

 

2.Jak odlaczac ogrzewanie  z pieca gdy pali sie kominek?

 

 

Jak ktos chce mi pomoc to prosze?

Opublikowano

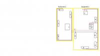
Odręczny schemat aktualnej instalacji. Oznaczone sa 2 mieszkania ,  2 pompy, piec,kominek,grzejniki,2 x c.w.u

 

Budynek 1  - piec ma zasilac 2  budynki 

Budynek 2 - kominek ma zasilac tylko  budynek 2 i oba wymienniki cwu

 

Musze dac 3 pompe do kominka i sterownik, gdzie dac i jakie zawory, czy  dac zwrotne lub trójdrogowe 

Jak zasilic z kominka oba cwu.

 

Musze pamietac o tym by cieplo z kominka nie zasilalo  budynku 2 poza  c.w.u.

post-68546-0-87360200-1468742961_thumb.jpg

Opublikowano

Odręczny schemat aktualnej instalacji. Oznaczone sa 2 mieszkania ,  2 pompy, piec,kominek,grzejniki,2 x c.w.u

 

Budynek 1  - piec ma zasilac 2  budynki 

Budynek 2 - kominek ma zasilac tylko  budynek 2 i oba wymienniki cwu

 

Musze dac 3 pompe do kominka i sterownik, gdzie dac i jakie zawory, czy  dac zwrotne lub trójdrogowe 

Jak zasilic z kominka oba cwu.

 

Musze pamietac o tym by cieplo z kominka nie zasilalo  budynku 2 poza  c.w.u.

 

post-68546-0-49479500-1468745886_thumb.jpg

Opublikowano

Ja widze to tak  dolozylem 2 zawory zwrotne  przed pompa p2 i za 2 c.w.u  patrzac od strony kominka.  Martwi mnie efekt jaki bedzie w przypadku gdy palic bedzie sie w piecu i w kominku.Jak zadzialaja zawory zwrotne?

A moze zamiast nich dac trojdrozne moze zwykle kulowe.

Moze przed cwu dac pompe ale czy gdy nie bedzie pracowac bedzie dzialac jak zawor?

post-68546-0-34105700-1468749054_thumb.jpg

Zarchiwizowany

Ten temat przebywa obecnie w archiwum. Dodawanie nowych odpowiedzi zostało zablokowane.

  • Ostatnio przeglądający   0 użytkowników

    • Brak zarejestrowanych użytkowników przeglądających tę stronę.
×
×
  • Dodaj nową pozycję...

Powiadomienie o plikach cookie

Używając tej strony zgadzasz się na Polityka prywatności.