Michal0820
Forumowicz-
Postów
17 -
Dołączył
-
Ostatnia wizyta
Typ zawartości
Forum
Wydarzenia
Blogi
Artykuły
Treść opublikowana przez Michal0820
-
hej ArturS74. Ja od jakiego czasu używam pelletu Alaska. partię "testową" 15 worków zakupiłem w lutym tego roku, potem dokupiłem więcej. Mam kocioł BS+16, podczas użytkowania nie odnotowałem żadnych problemów. ostatnio udało mi sie "dorwać" w cenie letniej bezpośrednio od producenta (mam do niego ok 40 km), więc uwzględniając koszt transportu wyszło mi ok 780 pln / tonę.
-
dobór kotła na pellet Pomoc w doborze kotła na pellet
Michal0820 odpowiedział(a) na Michal0820 temat w Kotły pelletowe
w międzyczasie chciałem zapytać forumowiczów - moze ktoś kto użytkuje Blackstara+, Lagune bądź RTB feniksa jest z moich rejonów (powiedzmy Oleśnica /Namysłów/ Kępno / Ostrzeszów)? Może byłaby możliwość podskoczyć i zobaczyć jak to wygląda, działa, ew. zmierzyć kikla rzeczy (np.nie będzie problwmu w mojej niskiej piwnicy) itp? -
dobór kotła na pellet Pomoc w doborze kotła na pellet
Michal0820 odpowiedział(a) na Michal0820 temat w Kotły pelletowe
gmaj22 mógłbym prosić o rozwinięcie / wyjaśnienie dlaczego to połączenie koniecznie trzeba zmienić? z gory dzieki -
dobór kotła na pellet Pomoc w doborze kotła na pellet
Michal0820 odpowiedział(a) na Michal0820 temat w Kotły pelletowe
Hej drodzy forumowicze. W międzyczasie otrzymałem pierwsze propozycje projektowe potencjalnej instalacji mojej przyszłej kotłowni - z kotłem pelletowym. Dom ok 140 m2 do ogrzania. Instalacja grzewcza starego typu –kaloryfery, rury stalowe oraz zbiornik CWU. Chciałbym was zapytać które z proponowanych rozwiązań byloby lepsze w mojej sytuacji. Z tego co widzę jedno rozwiązanie jest z zaworem 4D a drugie 3D (w tym wariancie błędnie zamiast grzejników na rys jest podłogówka – muszę to zweryfikować) wariant 1- instalacja z zaworem 4D wariant 2 - instalacja z zaworem 3D (Zawór ATV 55) Z góry dziękuję za wskazówki, komentarze itp -
dobór kotła na pellet Pomoc w doborze kotła na pellet
Michal0820 odpowiedział(a) na Michal0820 temat w Kotły pelletowe
Radik81 ale rozumiem ze ten wymiar (golasa) który podałeś czyli szer 70 cm gł 65 cm wys 129 cm to wymiary jakie ma "rozmontowany" kociol gotowy do wnoszenia do kotłowni? -
dobór kotła na pellet Pomoc w doborze kotła na pellet
Michal0820 odpowiedział(a) na Michal0820 temat w Kotły pelletowe
radik81 dziękuję bardzo za to ze rozkręciłeś swoją "Włoszkę" i pomierzyłeś oraz obfotografowałeś. Faktycznie jest spora różnica miedzy kompletną a "golasem" do transportu. W moim przypadku kazdy centymetr się liczy:) Przy wymiarach golasa 70 x 65 x 129 cm moze i udałoby się oknem na "plecach" jakoś wsunąć:). Kolejne światełko w tunelu ;-) Mam nad czym myśleć -
dobór kotła na pellet Pomoc w doborze kotła na pellet
Michal0820 odpowiedział(a) na Michal0820 temat w Kotły pelletowe
radik81 Jakbys mógł pomierzyć -byłbym wdzięczny. A jak daloby radę zrobic zdjecia takiego "golasa" (rozumiem ze tak mozna go do wnoszenia rozmontowac?) to byloby super. Bede dzis mierzył wszystkie drzwi (choć schody mam drewniane i moga nie wytrzymac 350 kg + waga wnoszących) oraz okna w piwnicach.. ewentualnie zobaczę które potencjalnie musialbym wybić, aby otwor powiekszyc -
dobór kotła na pellet Pomoc w doborze kotła na pellet
Michal0820 odpowiedział(a) na Michal0820 temat w Kotły pelletowe
Mam na krótkiej liście... ale musze sprawdzic czy mam którędy go wsadzic do kotłowni... -
dobór kotła na pellet Pomoc w doborze kotła na pellet
Michal0820 odpowiedział(a) na Michal0820 temat w Kotły pelletowe
Suspenser tak jak mowi Eliks - chcę mieć święty spokój i spać spokojnie, więc wkład i tak zrobie. W miedzy czasie był u mnie potencjalny instalator, porobił pomiary i stwierdził że najlepiej jakbym miał dodatkowo bufor z 800 L - ale to oczywiscie pociąga za sobą dodatkowe koszty juz na etapie planowania i montażu kotłowni ( o miejscu nie mówiąc). Z drugiej strony czytałem na forum (np. komentarz eliksa) ze nawet taka "stara" instalacja dobrze radzi sobie bez bufora, i nie przeżera majątku ;-) W kwestii kotłów dalej czytam, sprawdzam, szukam... poza wspomnianą trójką Pellux comfort touch (12kW), Pellux 100 touch (20kW), Blackstar+, rozważam też Red Selecta i Galmet Genesis Plus KPP... Ale tak to bywa... i głębiej w las tym wiecej drzew:) Niemniej mam nadzieje ze z pomocą forum i forumowiczów uda mi się "dobrać i zrobić" względnie dobrą kotłownię i uniknę całej masy błędów i przekłamań. Z góry dziękuje za pomoc i podziękowania dla eliks i reded za dotychczasowe dodatkowe wskazówki -
dobór kotła na pellet Pomoc w doborze kotła na pellet
Michal0820 odpowiedział(a) na Michal0820 temat w Kotły pelletowe
ups! jestem od niedawna na forum. Obiecuje cytować tylko gdy to konieczne! -
dobór kotła na pellet Pomoc w doborze kotła na pellet
Michal0820 odpowiedział(a) na Michal0820 temat w Kotły pelletowe
hej Suspenser. dziękujęza odpowiedź i wskazówki. cieszy mnie ze nie będę musiał wymieniać całej instalacji, i że można wykorzystać i dostosować obecną. Dziękuję za zaproszenie, mam nieco więcej km (bo mieszkam kawałek za Oleśnicą w kier. Wa-wy), ale spróbuje się wybrać w twoje rejony - wiedzy nigdy za wiele. Dziś miałem tez kominiarza - zmierzył mi komin -i wymiar ma ok. 24 x 15 cm, ale radzi wziąść poprawkę i liczyć 22 x 14 cm. Zakładam że to nieco mi zawęzi wybór kotła, bo jak sprawdzilem Biawar Pellux - to tam wlot komina musi miec fi 160 mm. No i muszę się rozejrzeć za jakąś ekipą od wkładów kominowych. Oczywiście w dalszym ciągu jeśli którykolwiek z forumowiczów ma jakies wskazówki co do wyboru kotła pelletowego (biorąc pod uwagę powyższe informacje) - będę wdzieczny. -
dobór kotła na pellet Pomoc w doborze kotła na pellet
Michal0820 odpowiedział(a) na Michal0820 temat w Kotły pelletowe
hej robin60. dziękuję za cenne uwagi. Co do remontu kotłowni - jest planowany jak będzie juz poustalane wszystko (terminy itp) to wtedy będę robił remont. Co do wymiany rur - dzięki - zanotowałem ta cenną uwagę. Sprawdze z instalatorami co proponują w tej sytuacji. -
dobór kotła na pellet Pomoc w doborze kotła na pellet
Michal0820 odpowiedział(a) na Michal0820 temat w Kotły pelletowe
eliks a mozesz naswietlić nieco więcej temat? tzn jakieś szczegóły? będę bardzo wdzięczny -
dobór kotła na pellet Pomoc w doborze kotła na pellet
Michal0820 odpowiedział(a) na Michal0820 temat w Kotły pelletowe
hej pospisz Rozwiazanie faktycznie interesujące. niestety obecnie rozwiązanie z pompą nie wchodzi w rachubę (1. kwestia kasy, 2. zmiana we wniosku oznaczałaby że wypadnę z puli (bardzo krótkiej) dofinansowania). Mam jedynie pole manewru pellet + fotowoltaika. Więc dlatego liczę na wiedzę i doświadczenie forumowiczów - co z tego co jest dostępne / możliwe można "wyrzeźbić". -
dobór kotła na pellet Pomoc w doborze kotła na pellet
Michal0820 odpowiedział(a) na Michal0820 temat w Kotły pelletowe
hej pospisz w ramach gminnego projektu - mam opcje wymiany starego pieca na gazowy (brak sieci w okolicy) badź pelletowy eco design, 5 klasa, a do tego mogę zainstalować fotowoltanikę. Niestety nawet ze środkami własnymi nie udźwignę obecnie pompy do tego (m.in.wymieniałem poszycie dachu pod instalacje fotowolt). Więc dlatego rozglądam się za pelleciakiem. O pompie myśle przyszłościowo, ale najpierw będę chciał ocieplić sciany domu. Dlatego zastanawiam się co i jak zrobić w obecnej sytuacji aby osiągnąc jak najlepszy efekt "z tego co mogę" (jako że jeszcze roboty się nie zaczęły, więc jest pole do manewru) -
dobór kotła na pellet Pomoc w doborze kotła na pellet
Michal0820 odpowiedział(a) na Michal0820 temat w Kotły pelletowe
robin60 wydaje mi się że z ortografią u mnie nie najgorzej, może nieco gorzej z interpunkcją, ewentualnie może brak w moim poście polskich znaków - ale uczymy się całe życie - więc każda konstruktywna krytyka jest mile widziana - choć ja tu nie jestem po porady / opinie z języka polskiego. Jak wspominałem jestem "zielony" w temacie - czytałem trochę na forum i wspomniany Blackstar się tam przewijał. Dlatego pytam tu na forum - jakie rozwiązanie powinienem zastosować ( jaki kocioł, co do tego itp). Jeśli chodzi o wkład do komina - to 100% zgoda - kominiarz już dawno umówiony na inspekcję komina i ocenę co i jak. Mógłbym cię prosić o rozwinięcie " tam roboty co nie miara i nie małe pieniądze. Zaś projekt tylko przewiduje wymianę kotła do obecnej instalacji. A to według mnie bardzo kiepskie rozwiązanie w Twym przypadku."? Mógłbyś mi nieco rozjaśnić dlaczego to bardzo kiepskie rozwiązanie? I ewentualnie mógłbym prosić o wskazówki co poza wymianą pieca zrobić więcej aby to nie było kiepskie rozwiazanie? z góry serdecznie dziękuję -
dobór kotła na pellet Pomoc w doborze kotła na pellet
Michal0820 opublikował(a) temat w Kotły pelletowe
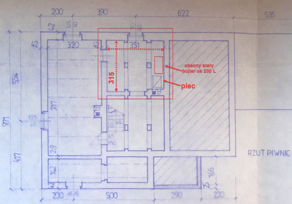
Witam serdecznie Chciałbym prosić forumowiczów o pomoc w doborze kotła na pellet, jaka instalacja bylaby najlepsza/najkorzystniejsza, określenia niezbędnych elementów dodatkowych gwarantujących dobrą pracę kotła (np sondy etc). Nie chodzi mi o gadżetyJ Jestem z Dolnego Sląska, powiat oleśnicki. Biorę udział w programie gminnym wymiany starych zródeł ciepła, gdzie mozna pozyskać znaczne dofinansowanie na wymianę starego pieca. Główne założenia projektu -> piec musi spełniać normy ekoprojektu obowiązujących od 2020r lub wymagań klasy 5 (norma PN-EN 3030-5:2012) ->Czyli ecodesign i kl 5. Wazne aby piec był wyposażony w automatyczny podajnik paliwa i nie będą posiadały rusztu awaryjnego ani elementów umożliwiających jego zamontowanie.Warunkiem obligatoryjnym jest koniecznośćwyposażenia w system zarządzania energią (termostaty,czujniki temperatury, pogodowe,obecności i in. urządzenia oraz oprogramowania) Dom wybudowany w latach 50-tych zeszłego wieku. Materiał –cegła, dach skośny kryty dachówką. Piwnica,parter, piętro oraz poddasze nieuzytkowe. Łączna powierzchnia domu ok 140 m2 ( poddasze nieuzytkowe nie uwzglednione) Sciane zewnętrzne nie ocieplone, stropy ocieplone (wełna 15 cm ytong 0,35). Kotłownia ma ok 11 m2 (3,5 x 3,15). w kotłowni wysokosc do stropu ok 1,75 m. Instalacja grzewcza kaloryfery (ok 9 sztuk, wiekszosc zeliwne,załozone termostaty).Piec „stary” weglowy, zuzycie ok 3,5 tony węgla + troche drewna w sezonie grzeczym. Służy do grzania i woda ciepła uzytkowa (stary bojler ok 200 L). Instalacja grawitacyjna, zbiornik wyrównawczy na podaszu Komin cegła, dł całkowita ok 10 m, srednica ok 16 -17 cm (bede weryfikował z kominiarzem) Rozglądałem się nieco za kotłami ( czytałem nieco na forum) i wpadły mi w oko Biawar Pellux comfort touch 12kW (teoretycznie ogrzeje do 240m2), Pellux 100 touch 20kW (to propozycja od przedstawiciela handl.), i ewnentualnie Blackstar+ (duzo dobrych opinii na forum ;-) ) Pytanie jaka moc byłaby najlepsza w mojej sytuacji, który z kotłów, ewentualnie – jak wyglada to kosztowo (szacunkowo). określenia niezbędnych elementów dodatkowych gwarantujących dobrą pracę kotła (np sondy etc). Oczywiscie nie chciałbym spędzać cąłych dni w kotłowni. W ramach projektu – planowana rowniez fotowoltaika (dofinansowanie). Bylbym wdzieczny równiez za wskazówki – jaki pellet rekomendujecie, ewentualnie od jakich dostawców. W załączeniu kilka zdjęc – plan piwnicy z zaznaczona kotłownia, i zdjecia obecne kotłowni. Będe wdziećzny za pomoc, wskazówki, jeśli brakuje jakichś infomracji – postaram się dodać. Kazda rada jak urządzić dobrze kotłownie mile widziana I z góry dziękuję za wyrozumiałość – jestem względnie zielony w temacie. -
witam serdecznie forumowiczów i forumowiczki
Michal0820 odpowiedział(a) na Michal0820 temat w Przywitaj się
hej Eliks dziękuje za powitanie. no taką mam cichą nadzieję... bo juz mam zawroty głowy od informacji jakie słysze od handlowców, instalatorów itp. -
Cześć Wszystkim forumowiczom i forumowiczkom :) chciałbym się przywitać :) Jestem tu nowy, od jakiegos czasu czytałem co nieco na forach. Jako że w moim rejonie są dofinanowania do wymiany żródeł ciepła, zastanawiam sięnad zmianą starego kopciucha na cos nowszego (pellet) Pomyślałem ze dobrze byłoby założyć tu profil, i skorzystać z wiedzy i doświadczenia forumowiczów - chciałbym być " mądry przed szkodą", i uniknąć potencjalnych błędów, pomyłek początkującego pelleciarza. Tak więc witam wszystkich serdecznie i z góry dziękuję za wszelką pomoc, wiedze doswiadczenia i w szczególności wyrozumiałość (w przypadku mojego nieobycia z pewnymi tematami).
